Exposé
Objektart:
Wohnung
» Dachgeschoss
» Miete
Standort: Wohnung »
Deutschland » Baden-Württemberg » Sigmaringen (Kreis) » 88356 Ostrach
3-Zimmer Neubauwohnung
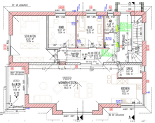
Obergeschoss-Grundriss
Das Wichtigste auf einen Blick:
| Objektnummer: | 9403893 |
Preise
| Kaltmiete (netto) | 1.000 € |
| Nebenkosten | 200 € |
| Heizkosten enthalten | Ja |
| Kaution | 2.000 € |
Flächen
| Wohnfläche | 114 m² |
Objekt Adresse
88356 88356 Ostrach
- Baden-Württemberg
Sonstige Angaben
| Baujahr | 2022 |
| Zimmer | 3 |
| Verfügbar ab | 01.02.2026 |
| Bad | 1 |
| Anzahl der Etagen im Haus | 2 |
| Inserat befindet sich im Stockwerk | 1 |
| Bad | 1 |
| Bad | Dusche |
| Boden | Fliesen, Kunststoff |
| Balkone | 1 |
| Garten | Ja |
| Terrassen | 0 |
| Keller | Ja |
| Energieausweistyp | Bedarfsausweis |
| Energieeffizienzklasse | B |
| Endenergiebedarf | 62 kWh/(m²*a) |
| Heizungsart | Fußbodenheizung |
| Energieträger/Befeuerung | Fernwärme |
Objektbeschreibung
Objektbeschreibung:
Die helle 3-Zimmer-Wohnung befindet sich im Obergeschoss in einem neuen Zweifamilienhaus, welche ab 01. Februar 2026 zu vermieten ist. Die Wohnung liegt in einem Neubaugebiet in einem Teilort von Ostrach in ruhiger Lage und ist somit ideal für Paare oder Familien, die Wert auf Ruhe und Platz zum Wohlfühlen legen.
Ausstattung:
Wohnfläche: ca. 114qm
Zimmer: 3 -> 2 Schlafzimmer, ein großer Wohn- und Essbereich mit Küche und Speis
Bad: Dusche, Badewanne, WC, 2 Waschbecken
Gäste-WC: WC, Handwaschbecken
Sonstige Räume: Kellerraum mit ca. 17pm, Balkon mit ca. 9pm, Gemeinsamer Waschraum im Untergeschoss
Bitte beachten: Nur an Nichtraucher und ohne Haustiere zu vermieten.
Die Wohnung verfügt über eine Fußbodenheizung. Ein besonderes Highlight der Wohnung ist die freie Sicht mit einem tollen Blick ins Grüne.
Stellplätze sind auf dem Grundstück vorhanden. Zusätzlich ist nach Absprache eine Gartennutzung möglich.
Mietkonditionen:
Kaltmiete: 1.000€ / Monat
Nebenkosten: ca. 200€ / Monat
Kaution: 2.000€ (2 Kaltmieten)
Verfügbar: ab Februar 2026
Wir freuen uns auf Ihre Anfrage!
Die helle 3-Zimmer-Wohnung befindet sich im Obergeschoss in einem neuen Zweifamilienhaus, welche ab 01. Februar 2026 zu vermieten ist. Die Wohnung liegt in einem Neubaugebiet in einem Teilort von Ostrach in ruhiger Lage und ist somit ideal für Paare oder Familien, die Wert auf Ruhe und Platz zum Wohlfühlen legen.
Ausstattung:
Wohnfläche: ca. 114qm
Zimmer: 3 -> 2 Schlafzimmer, ein großer Wohn- und Essbereich mit Küche und Speis
Bad: Dusche, Badewanne, WC, 2 Waschbecken
Gäste-WC: WC, Handwaschbecken
Sonstige Räume: Kellerraum mit ca. 17pm, Balkon mit ca. 9pm, Gemeinsamer Waschraum im Untergeschoss
Bitte beachten: Nur an Nichtraucher und ohne Haustiere zu vermieten.
Die Wohnung verfügt über eine Fußbodenheizung. Ein besonderes Highlight der Wohnung ist die freie Sicht mit einem tollen Blick ins Grüne.
Stellplätze sind auf dem Grundstück vorhanden. Zusätzlich ist nach Absprache eine Gartennutzung möglich.
Mietkonditionen:
Kaltmiete: 1.000€ / Monat
Nebenkosten: ca. 200€ / Monat
Kaution: 2.000€ (2 Kaltmieten)
Verfügbar: ab Februar 2026
Wir freuen uns auf Ihre Anfrage!
Ausstattung
Balkon, Garten, Keller, Duschbad, Gäste-WC, Fliesen
Sonstige Informationen
Heizungsart: Fußbodenheizung
Energieträger: Fernwärme
Makleranfragen nicht erwünscht. Nach § 7 UWG sind unaufgeforderte Kontaktaufnahmen durch Makler ohne ausdrückliche Einwilligung des Empfängers verboten!
ohne-makler (OM) ist weder Anbieter noch Vermittler der Immobilie. OM betreibt eine Plattform für Immobilieneigentümer, die unter anderem die gleichzeitige Veröffentlichung einzelner Inserate auf mehreren Immobilienportalen ermöglicht. Die Inhalte dieser Inserate werden ausschließlich von Dritten verantwortet. Für die Richtigkeit, Vollständigkeit oder Rechtmäßigkeit der Angaben übernimmt OM keine Haftung. Hinweise auf mögliche Rechtsverstöße können jederzeit gemeldet werden und werden nach Prüfung umgehend bearbeitet.