Exposé
Objektart:
Wohnung
» Dachgeschoss
» Miete
Standort: Wohnung »
Deutschland » Baden-Württemberg » Heilbronn (Kreis) » Bad Rappenau
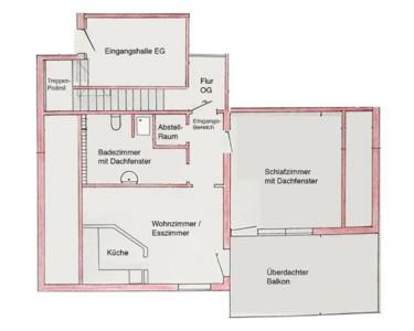
2 Zimmer DG-Wohnung, Miniküche & überdachtem Balkon in Bad Rappenau
Das Wichtigste auf einen Blick:
| Objektnummer: | 9404027 |
Preise
| Kaltmiete (netto) | 630 € |
| Nebenkosten | 80 € |
| Kaution | 1.660 € |
Flächen
| Wohnfläche | 63 m² |
Objekt Adresse
Eichenstr. 19
74906 Bad Rappenau
- Baden-Württemberg
Sonstige Angaben
| Baujahr | 1980 |
| Zimmer | 2 |
| Verfügbar ab | sofort |
| Bad | 1 |
| Anzahl der Etagen im Haus | 2 |
| Inserat befindet sich im Stockwerk | 1 |
| Küche | Einbauküche |
| Bad | 1 |
| Bad | Dusche |
| Boden | Fliesen |
| Balkone | 1 |
| Terrassen | 0 |
| Energieausweistyp | Verbrauch |
| Energieeffizienzklasse | D |
| Energieverbrauchkennwert | 130 kWh/(m²*a) |
| Heizungsart | Fußbodenheizung |
| Energieträger/Befeuerung | Gas |
Objektbeschreibung
Die 2-Zimmer-Dachgeschosswohnung in der Eichenstraße 19 in Bad Rappenau liegt im 1. OG und ist sofort bezugsfrei. 63 m² Wohnfläche, ein helles Wohnzimmer mit separater Einbauküche, ein Schlafzimmer mit direktem Zugang zur großen überdachten West-Terrasse sowie ein Tageslichtbad mit neuer begehbarer Dusche bilden den Grundriss.
Böden aus Stein/Fliesen mit Fußbodenheizung, viele Fenster und eine Abstellkammer sind vorhanden.
Die Wohnung ist möbliert (Bett, Schrank, Couch, Tische, Stühle, Lampen) und verfügt über eine Einbauküche inkl. Mikrowelle. Ein Flat-TV mit SAT-Empfang ist ebenfalls enthalten. Nebenkosten inkl. Heizung und Warmwasser. Waschmaschinenanschluss im Bad.
Ein Fahrrad-/Rollerplatz in der Garage ist vorhanden; Parken vor dem Haus problemlos möglich. Haustiere nicht erlaubt.
Böden aus Stein/Fliesen mit Fußbodenheizung, viele Fenster und eine Abstellkammer sind vorhanden.
Die Wohnung ist möbliert (Bett, Schrank, Couch, Tische, Stühle, Lampen) und verfügt über eine Einbauküche inkl. Mikrowelle. Ein Flat-TV mit SAT-Empfang ist ebenfalls enthalten. Nebenkosten inkl. Heizung und Warmwasser. Waschmaschinenanschluss im Bad.
Ein Fahrrad-/Rollerplatz in der Garage ist vorhanden; Parken vor dem Haus problemlos möglich. Haustiere nicht erlaubt.
Ausstattung
Balkon, Duschbad, Einbauküche, Fliesen
Lage des Objektes
Die Wohnung liegt in Bad Rappenau West, einem ruhigen und etablierten Wohngebiet mit kurzer Distanz zu wichtigen Zielen der Stadt. Die Anbindung ist unkompliziert: Die A6 erreicht man in rund sieben Minuten, ebenso die neue LIDL-Zentrale in Bad Wimpfen. Die Vulpius-Klinik liegt nur wenige Minuten entfernt.
Der Weg in die Innenstadt beträgt etwa zehn Gehminuten. Dort finden sich Einkaufsmöglichkeiten, Gastronomie, Ärzte und der Zugang zum ÖPNV. Die Lage bietet eine gute Mischung aus Ruhe, Nähe zum Alltag und schneller Erreichbarkeit der regionalen Arbeitgeber.
Infrastruktur (im Umkreis von 5 km):
Apotheke, Lebensmittel-Discount, Allgemeinmediziner, Kindergarten, Grundschule, Hauptschule, Realschule, Gymnasium, Gesamtschule, Öffentliche Verkehrsmittel
Der Weg in die Innenstadt beträgt etwa zehn Gehminuten. Dort finden sich Einkaufsmöglichkeiten, Gastronomie, Ärzte und der Zugang zum ÖPNV. Die Lage bietet eine gute Mischung aus Ruhe, Nähe zum Alltag und schneller Erreichbarkeit der regionalen Arbeitgeber.
Infrastruktur (im Umkreis von 5 km):
Apotheke, Lebensmittel-Discount, Allgemeinmediziner, Kindergarten, Grundschule, Hauptschule, Realschule, Gymnasium, Gesamtschule, Öffentliche Verkehrsmittel
Sonstige Informationen
Heizungsart: Fußbodenheizung
Energieträger: Gas
Makleranfragen nicht erwünscht. Nach § 7 UWG sind unaufgeforderte Kontaktaufnahmen durch Makler ohne ausdrückliche Einwilligung des Empfängers verboten!
ohne-makler (OM) ist weder Anbieter noch Vermittler der Immobilie. OM betreibt eine Plattform für Immobilieneigentümer, die unter anderem die gleichzeitige Veröffentlichung einzelner Inserate auf mehreren Immobilienportalen ermöglicht. Die Inhalte dieser Inserate werden ausschließlich von Dritten verantwortet. Für die Richtigkeit, Vollständigkeit oder Rechtmäßigkeit der Angaben übernimmt OM keine Haftung. Hinweise auf mögliche Rechtsverstöße können jederzeit gemeldet werden und werden nach Prüfung umgehend bearbeitet.