Exposé
Objektart:
Wohnung
» Etage
» Miete
Standort: Wohnung »
Deutschland » Thüringen » Weimar, Stadt (Kreis) » Weimar
Tolle Wohnung wird für Sie saniert!
Zuhause die Nähe genießen
Das Wichtigste auf einen Blick:
| Objektnummer: | 9403915 |
Preise
| Warmmiete | 685 € |
| Kaltmiete (netto) | 500 € |
| Nebenkosten | 85 € |
| Kaution | 1500,00 € |
Flächen
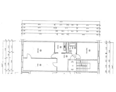
| Wohnfläche | 70,26 m² |
| Nutzfläche | 70,26 m² |
Objekt Adresse
Humboldtstraße 64 g
99425 Weimar
Sonstige Angaben
| Baujahr | 1988 |
| Zimmer | 3 |
| Verfügbar ab | 01.02.2026 |
| Bad | 1 |
| Inserat befindet sich im Stockwerk | 1 |
| Bad | 1 |
| Bad | Wanne |
| Keller | Ja |
| Energieausweistyp | Verbrauch |
| Energieeffizienzklasse | C |
| Energieverbrauchkennwert | 85.00 kWh/(m²*a) |
| Heizungsart | Zentralheizung |
| Energieträger/Befeuerung | Fernwärme |
Objektbeschreibung
- sanierter 4 geschossiger Altneubau
- Spielplatz vor der Tür
- neue Fenster und Dämmung sorgen für eine sehr gute Energiebilanz
- ruhige Lage
- Spielplatz vor der Tür
- neue Fenster und Dämmung sorgen für eine sehr gute Energiebilanz
- ruhige Lage
Ausstattung
Die Wohnung wird aktuell saniert.
Lage des Objektes
- Weimar Süd
- Kaufland und Bushaltestelle fußläufig erreichbar
- 7 min. bis in das Stadtzentrum
- 5 min. bis zur Autobahn A4
- grünes, ruhiges Wohnumfeld
- Kaufland und Bushaltestelle fußläufig erreichbar
- 7 min. bis in das Stadtzentrum
- 5 min. bis zur Autobahn A4
- grünes, ruhiges Wohnumfeld
Sonstige Informationen
Finden Sie Ihr neues Zuhause unter www.tag-wohnen.de und vereinbaren Sie Ihren persönlichen Besichtigungstermin. Wir freuen uns auf Ihre Anfrage.
Profitieren Sie als TAG Wohnen-Mieter von unseren Partnerangeboten und sichern Sie sich viele Sonderrabatte und günstige Konditionen u.a. in den Bereichen Unterhaltung, Umzug, Ernährung und Mobilität.
Strom und Gas von lekker Energie – Sichern Sie sich Ihren exklusiven TAG Wohnen-Bonus unter www.lekker.de/kunden/tag-wohnen
Alle Angaben in diesem Exposé wurden sorgfältig getätigt. Fehlerhafte Angaben können nicht ausgeschlossen werden, daher sind die Angaben ohne Gewähr. Maßgeblich sind die im Mietvertrag geschlossenen Vereinbarungen.
Grundriss