Exposé
Objektart:
Wohnung
» Dachgeschoss
» Miete
Standort: Wohnung »
Deutschland » Saarland » Stadtverband Saarbrücken (Kreis) » Saarbrücken
Wohlfühlwohnung mit Aussicht im Dachgeschoss auf der Bellevue
Das Wichtigste auf einen Blick:
| Objektnummer: | 9399849 |
Preise
| Kaltmiete (netto) | 980 € |
| Nebenkosten | 160 € |
Flächen
| Wohnfläche | 98 m² |
Objekt Adresse
66117 Saarbrücken
- Saarland
Sonstige Angaben
| Baujahr | 1960 |
| Zimmer | 3,5 |
| Verfügbar ab | nach Absprache |
| Bad | 1 |
| Inserat befindet sich im Stockwerk | 2 |
| Bad | 1 |
| Boden | Fliesen, Parkett, Laminat |
| Keller | Ja |
| Energieausweistyp | Bedarfsausweis |
| Endenergiebedarf | 180 kWh/(m²*a) |
| Heizungsart | Zentralheizung |
| Energieträger/Befeuerung | Gas |
Objektbeschreibung
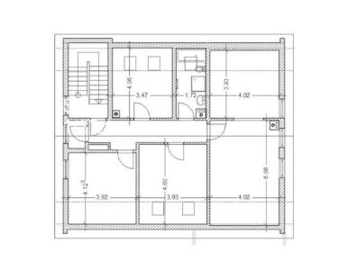
Willkommen auf der Bellevue, einer der begehrtesten Adressen Saarbrückens! Diese charmante, lichtdurchflutete 3,5-Zimmer-Dachgeschosswohnung bietet auf großzügigen 98 m² modernen Wohnkomfort. Es ist auch ein Umbau auf 4 Zimmer möglich.
Die Wohnung verfügt über ein Hauptbad mit Wanne, Dusche, WC und Fenster sowie ein Gäste-WC mit Fenster. Die Räume sind großzügig geschnitten, und von den Fenstern genießen Sie einen schönen Blick über die Dächer der Stadt oder ins Grüne.
Die Wohnung liegt in einem kleinen, gepflegten Mehrfamilienhaus in ruhiger Wohngegend. Der Deutsch-Französische Garten ist nur wenige Minuten zu Fuß entfernt. Supermärkte (Rewe, Netto, Aldi) sowie Ärzte sind bequem fußläufig, mit dem Rad, Bus oder Auto erreichbar.
Die nahegelegene Bushaltestelle wird von zwei Linien angefahren, die Sie direkt in die Innenstadt oder zur Universität bringen – eine perfekte Anbindung für Beruf und Studium.
Highlights der Wohnung
- 3,5 Zimmer mit durchdachtem Grundriss – ideal für Paare oder kleine Familien
- Helles, großzügiges Wohnzimmer mit gemütlicher Dachschräge und viel Charme
- Badezimmer mit Wanne, Dusche und WC
- Separates Gäste-WC mit Fenster
- Kellerraum für zusätzlichen Stauraum
- Waschmaschinenstellplatz im Waschkeller mit Möglichkeit zum Trocknen der Wäsche
- Gepflegtes Mehrfamilienhaus mit nur 4 Parteien
- Ruhige Wohnlage in grünem Umfeld, trotzdem schnell im Stadtzentrum
- Haustiere nach Rücksprache möglich
Die Wohnung verfügt über ein Hauptbad mit Wanne, Dusche, WC und Fenster sowie ein Gäste-WC mit Fenster. Die Räume sind großzügig geschnitten, und von den Fenstern genießen Sie einen schönen Blick über die Dächer der Stadt oder ins Grüne.
Die Wohnung liegt in einem kleinen, gepflegten Mehrfamilienhaus in ruhiger Wohngegend. Der Deutsch-Französische Garten ist nur wenige Minuten zu Fuß entfernt. Supermärkte (Rewe, Netto, Aldi) sowie Ärzte sind bequem fußläufig, mit dem Rad, Bus oder Auto erreichbar.
Die nahegelegene Bushaltestelle wird von zwei Linien angefahren, die Sie direkt in die Innenstadt oder zur Universität bringen – eine perfekte Anbindung für Beruf und Studium.
Highlights der Wohnung
- 3,5 Zimmer mit durchdachtem Grundriss – ideal für Paare oder kleine Familien
- Helles, großzügiges Wohnzimmer mit gemütlicher Dachschräge und viel Charme
- Badezimmer mit Wanne, Dusche und WC
- Separates Gäste-WC mit Fenster
- Kellerraum für zusätzlichen Stauraum
- Waschmaschinenstellplatz im Waschkeller mit Möglichkeit zum Trocknen der Wäsche
- Gepflegtes Mehrfamilienhaus mit nur 4 Parteien
- Ruhige Wohnlage in grünem Umfeld, trotzdem schnell im Stadtzentrum
- Haustiere nach Rücksprache möglich
Ausstattung
Keller, Gäste-WC, Parkett, Laminat, Fliesen
Lage des Objektes
Die Wohnung befindet sich in der beliebten Wohngegend Bellevue in Saarbrücken, wo urbanes Leben und Natur harmonisch zusammenkommen. Die Haltestelle Parsevalstraße ist nur zwei Gehminuten entfernt und bietet beste Verbindungen in die Innenstadt, zur Universität und weitere Ziele. Supermärkte, Ärzte, Apotheken, Banken, Gastronomie sowie Kitas und Schulen sind bequem erreichbar. Ein besonderes Highlight ist der fußläufige Deutsch-Französische Garten – mit Themengärten, Spielplätzen, Cafés und dem Deutschmühlenweiher ein idealer Ort für Freizeit, Sport und Erholung.
Infrastruktur (im Umkreis von 5 km):
Apotheke, Lebensmittel-Discount, Allgemeinmediziner, Kindergarten, Grundschule, Hauptschule, Realschule, Gymnasium, Gesamtschule, Öffentliche Verkehrsmittel
Infrastruktur (im Umkreis von 5 km):
Apotheke, Lebensmittel-Discount, Allgemeinmediziner, Kindergarten, Grundschule, Hauptschule, Realschule, Gymnasium, Gesamtschule, Öffentliche Verkehrsmittel
Sonstige Informationen
Heizungsart: Zentralheizung
Energieträger: Gas
Bitte stellen Sie sich im Falle einer Anfrage kurz vor (Name, Alter, Beruf/Studium, gewünschter Mietbeginn). Wir bitten um Verständnis, dass wir ausschließlich auf Anfragen reagieren, bei denen vollständige Kontaktdaten angegeben werden. Dazu gehören Ihr vollständiger Name, Anschrift, Ihre E-Mail-Adresse sowie eine Telefonnummer, unter der wir Sie erreichen können. Vielen Dank für Ihr Verständnis und Ihre Mithilfe für einen reibungslosen Ablauf.
Makleranfragen nicht erwünscht. Nach § 7 UWG sind unaufgeforderte Kontaktaufnahmen durch Makler ohne ausdrückliche Einwilligung des Empfängers verboten!
ohne-makler (OM) ist weder Anbieter noch Vermittler der Immobilie. OM betreibt eine Plattform für Immobilieneigentümer, die unter anderem die gleichzeitige Veröffentlichung einzelner Inserate auf mehreren Immobilienportalen ermöglicht. Die Inhalte dieser Inserate werden ausschließlich von Dritten verantwortet. Für die Richtigkeit, Vollständigkeit oder Rechtmäßigkeit der Angaben übernimmt OM keine Haftung. Hinweise auf mögliche Rechtsverstöße können jederzeit gemeldet werden und werden nach Prüfung umgehend bearbeitet.