Exposé
Objektart:
Haus
» Stadthaus
» Kauf
Standort: Haus »
Deutschland » Hessen » Main-Kinzig-Kreis (Kreis) » Gelnhausen
EIN JUWEL IN DER HISTORISCHEN ALTSTADT VON GELNHAUSEN
Wohnen/Terrasse
Das Wichtigste auf einen Blick:
| Objektnummer: | 9398461 |
Preise
| Kaufpreis | 983.000 € |
| Nebenkosten | keine Angabe |
Flächen
| Wohnfläche | 273 m² |
| Grundstücksfläche | 405 m² |
| Maklerprovision | keine Provision, courtagefrei |
Objekt Adresse
63571 Gelnhausen
- Hessen
Sonstige Angaben
| Baujahr | 1890 |
| Zimmer | 10 |
| Verfügbar ab | nach Absprache |
| Bad | 3 |
| Garage/Stellplätze | 2 |
| Anzahl der Etagen im Haus | 3 |
| Küche | Einbauküche |
| Bad | 3 |
| Bad | Dusche, Wanne |
| Boden | Fliesen, Parkett |
| Balkone | 1 |
| Garten | Ja |
| Terrassen | 1 |
| Garage/Stellplätze | 2 |
| Keller | Ja |
| Heizungsart | Zentralheizung |
| Energieträger/Befeuerung | Öl |
Objektbeschreibung
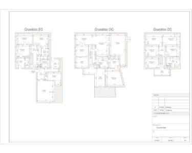
Dieses denkmalgeschützte Altstadthaus aus dem Jahr 1890 verbindet historischen Charme mit modernem Wohnkomfort. Auf einem Grundstück von rund 405 m² erstreckt sich die Immobilie über drei Etagen mit 273 m² Wohnfläche und insgesamt 10 Zimmern.
Neben der Hauptwohnung über 2 Etagen bietet das Haus eine separate Einliegerwohnung sowie sehr charmante Außenbereiche: Terrasse, Balkone und ein Nebenbau bieten zusätzliche Nutzungsmöglichkeiten, wie z.B. Sauna und Fitnessraum. Eine Saunavorbereitung existiert bereits. Eine Doppelgarage und 2 Stellplätze stehen im eigenen Hof zur Verfügung.
Neben der Hauptwohnung über 2 Etagen bietet das Haus eine separate Einliegerwohnung sowie sehr charmante Außenbereiche: Terrasse, Balkone und ein Nebenbau bieten zusätzliche Nutzungsmöglichkeiten, wie z.B. Sauna und Fitnessraum. Eine Saunavorbereitung existiert bereits. Eine Doppelgarage und 2 Stellplätze stehen im eigenen Hof zur Verfügung.
Ausstattung
Balkon, Terrasse, Garten, Keller, Vollbad, Duschbad, Einbauküche, Kamin, Parkett, Fliesen
Bemerkungen:
Die Sanierung erfolgte mit großer Wertschätzung für die historische Substanz und einem feinem Blick für Details. Der ursprüngliche Charakter blieb gewahrt und wurde durch hochwertige Akzente bereichert.
Bemerkungen:
Die Sanierung erfolgte mit großer Wertschätzung für die historische Substanz und einem feinem Blick für Details. Der ursprüngliche Charakter blieb gewahrt und wurde durch hochwertige Akzente bereichert.
Lage des Objektes
Das Haus befindet sich in der historischen Altstadt Gelnhausen in besonders ruhiger Lage. Die Umgebung ist geprägt von Fachwerkhäusern und einer gewachsenen Infrastruktur. In nur 3 Minuten zu Fuß erreicht man den Ober- und Untermarkt. Einkaufsmöglichkeiten, Schulen, Ärzte und öffentliche Verkehrsmittel sind ebenfalls schnell erreichbar. Nicht zu vergessen, der schöne Stadtgarten, der sich in unmittelbarer Nähe befindet.
Infrastruktur (im Umkreis von 5 km):
Apotheke, Lebensmittel-Discount, Allgemeinmediziner, Kindergarten, Grundschule, Hauptschule, Realschule, Gymnasium, Gesamtschule, Öffentliche Verkehrsmittel
Infrastruktur (im Umkreis von 5 km):
Apotheke, Lebensmittel-Discount, Allgemeinmediziner, Kindergarten, Grundschule, Hauptschule, Realschule, Gymnasium, Gesamtschule, Öffentliche Verkehrsmittel
Sonstige Informationen
Heizungsart: Zentralheizung
Energieträger: Öl
Provisionsfrei - direkt vom Eigentümer
Besichtigungstermine nach Vereinbarung
ohne-makler (OM) ist weder Anbieter noch Vermittler der Immobilie. OM betreibt eine Plattform für Immobilieneigentümer, die unter anderem die gleichzeitige Veröffentlichung einzelner Inserate auf mehreren Immobilienportalen ermöglicht. Die Inhalte dieser Inserate werden ausschließlich von Dritten verantwortet. Für die Richtigkeit, Vollständigkeit oder Rechtmäßigkeit der Angaben übernimmt OM keine Haftung. Hinweise auf mögliche Rechtsverstöße können jederzeit gemeldet werden und werden nach Prüfung umgehend bearbeitet.
Wohnen/Essbereich
Wohnbereich
Wohnen
Treppenhaus
Treppenhaus
Bad
Terrasse/Garten