Exposé
Objektart:
Wohnung
» Etage
» Miete
Standort: Wohnung »
Deutschland » Rheinland-Pfalz » Mainz, kreisfreie Stadt (Kreis) » Mainz
Erstbezug nach Teilrenovierung in der Oberstadt
Eingansbereich Carl-Benz-Str.
Das Wichtigste auf einen Blick:
| Objektnummer: | 9392787 |
Preise
| Kaltmiete (netto) | 1.190 € |
| Nebenkosten | 100 € |
Flächen
| Wohnfläche | 75 m² |
Objekt Adresse
Carl-Benz-Straße 12
55131 Mainz
- Rheinland-Pfalz
Sonstige Angaben
| Baujahr | 1965 |
| Zimmer | 3 |
| Verfügbar ab | sofort |
| Bad | 1 |
| Inserat befindet sich im Stockwerk | 3 |
| Bad | 1 |
| Boden | Fliesen, Laminat |
| Energieausweistyp | Verbrauch |
| Energieeffizienzklasse | D |
| Energieverbrauchkennwert | 107 kWh/(m²*a) |
| Heizungsart | Zentralheizung |
| Energieträger/Befeuerung | Fernwärme |
Objektbeschreibung
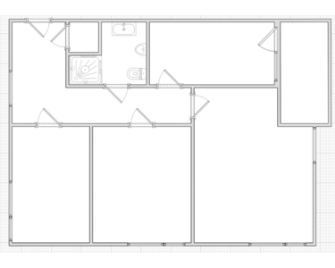
Helle 3-Zimmer-Wohnung (ca. 75 m²) im 3. OG mit Aufzug – Erstbezug nach Renovierung, sofort flexibel beziehbar.
Diese charmante Wohnung überzeugt durch einen sehr gepflegten Gesamtzustand der Anlage sowie durch die frisch renovierten Räumlichkeiten: Es wurden neue hochwertige Bodenbeläge verlegt und neu gestrichen sowie neue Lichtschalter und Steckdosen verbaut.
Ein echtes Plus ist die große Loggia (ca. 1,8 × 3,8 m), die von Küche und Wohnzimmer zugänglich ist. Sie verfügt über eine elektrische Markise.
Der Grundriss eignet sich sowohl für Paare/Familien als auch für eine WG.
Die Wohnung verfügt über eine Abstellkammer im Eingangsbereich und ein eigenes Kellerabteil. Ein Tiefgaragenstellplatz kann optional in einer nahegelegenen Tiefgarage angemietet werden.
Objektzustand: Erstbezug nach Sanierung
Diese charmante Wohnung überzeugt durch einen sehr gepflegten Gesamtzustand der Anlage sowie durch die frisch renovierten Räumlichkeiten: Es wurden neue hochwertige Bodenbeläge verlegt und neu gestrichen sowie neue Lichtschalter und Steckdosen verbaut.
Ein echtes Plus ist die große Loggia (ca. 1,8 × 3,8 m), die von Küche und Wohnzimmer zugänglich ist. Sie verfügt über eine elektrische Markise.
Der Grundriss eignet sich sowohl für Paare/Familien als auch für eine WG.
Die Wohnung verfügt über eine Abstellkammer im Eingangsbereich und ein eigenes Kellerabteil. Ein Tiefgaragenstellplatz kann optional in einer nahegelegenen Tiefgarage angemietet werden.
Objektzustand: Erstbezug nach Sanierung
Ausstattung
Laminat, Fliesen
Bemerkungen:
Erstbezug nach Renovierung: neue, hochwertige Bodenbeläge & Lichtschalter und Steckdosen erneuert
Loggia: ca. 1,8 × 3,8 m, Zugang von Küche & Wohnzimmer, elektrische Markise
Küche: einfache Küche mit guten Geräten vorhanden; kann ggf. übernommen werden oder wird vor Einzug entsorgt
Bad: Duschkabine, Spiegelschrank mit Stauraum; zusätzlich WC + Pissoir (bei Bedarf entfernbar)
Heizung/Warmwasser: zentral, Fernwärme
Smart: smarte Thermostate vorhanden, zentrale Steuerung aller Heizkörper möglich
Stauraum: Abstellkammer im Eingangsbereich + Kellerabteil
Haus: moderner Aufzug, gepflegte Anlage
Optional: Stellplatz in nahegelegener Tiefgarage anmietbar
Bemerkungen:
Erstbezug nach Renovierung: neue, hochwertige Bodenbeläge & Lichtschalter und Steckdosen erneuert
Loggia: ca. 1,8 × 3,8 m, Zugang von Küche & Wohnzimmer, elektrische Markise
Küche: einfache Küche mit guten Geräten vorhanden; kann ggf. übernommen werden oder wird vor Einzug entsorgt
Bad: Duschkabine, Spiegelschrank mit Stauraum; zusätzlich WC + Pissoir (bei Bedarf entfernbar)
Heizung/Warmwasser: zentral, Fernwärme
Smart: smarte Thermostate vorhanden, zentrale Steuerung aller Heizkörper möglich
Stauraum: Abstellkammer im Eingangsbereich + Kellerabteil
Haus: moderner Aufzug, gepflegte Anlage
Optional: Stellplatz in nahegelegener Tiefgarage anmietbar
Lage des Objektes
Die Wohnung liegt in der Carl-Benz-Straße 12, 55131 Mainz – mit kurzen Wegen und sehr guter Anbindung:
Bäcker ca. 2 Minuten fußläufig, weitere Einkaufsmöglichkeiten in der Umgebung
Straßenbahn in direkter Nähe – schnelle Verbindung Richtung Innenstadt
Autobahnanbindung in wenigen Minuten – ideal für Pendler
Bäcker ca. 2 Minuten fußläufig, weitere Einkaufsmöglichkeiten in der Umgebung
Straßenbahn in direkter Nähe – schnelle Verbindung Richtung Innenstadt
Autobahnanbindung in wenigen Minuten – ideal für Pendler
Sonstige Informationen
Heizungsart: Zentralheizung
Energieträger: Fernwärme
Makleranfragen nicht erwünscht. Nach § 7 UWG sind unaufgeforderte Kontaktaufnahmen durch Makler ohne ausdrückliche Einwilligung des Empfängers verboten!
ohne-makler (OM) ist weder Anbieter noch Vermittler der Immobilie. OM betreibt eine Plattform für Immobilieneigentümer, die unter anderem die gleichzeitige Veröffentlichung einzelner Inserate auf mehreren Immobilienportalen ermöglicht. Die Inhalte dieser Inserate werden ausschließlich von Dritten verantwortet. Für die Richtigkeit, Vollständigkeit oder Rechtmäßigkeit der Angaben übernimmt OM keine Haftung. Hinweise auf mögliche Rechtsverstöße können jederzeit gemeldet werden und werden nach Prüfung umgehend bearbeitet.
Eingangsbereich
Flur Blick Richtung Wohnzimmer
Flur Blick Richtung Eingang
Schlafzimmer 1
Wohnzimmer
Wohnzimmer
Küche
Küche und Loggia
Blick aus der Loggia
Markise
Schlafzimmer 2
Badezimmer
Bazimmer und Dusche