Exposé
Objektart:
Haus
» Einfamilienhaus
» Kauf
ZADAR, SMOKOVIĆ – Luxusvilla mit Pool in ruhiger Lage
Angeboten von:
Nekretnine1 j.d.o.o.
Pomerio 27
51000 Rijeka
Kroatien
Telefon:+385 95 714 8583
Ansprechpartner/in
Nekretnine1.hrDas Wichtigste auf einen Blick:
| Objektnummer: | 9392589 |
Preise
| Kaufpreis | 1 € |
| Nebenkosten | keine Angabe |
Flächen
| Gesamtfläche | 295 m² |
| Grundstücksfläche | 3.030 m² |
Objekt Adresse
23000 Zemunik Donji
- Dalmatien-Zadar (Region) [Zadarska]
Sonstige Angaben
| Baujahr | 2019 |
| Zimmer | 8 |
| Verfügbar ab | keine Angabe |
| Bad | 5 |
| Anzahl der Etagen im Haus | 0 |
| Bad | 5 |
Objektbeschreibung
ZADAR, SMOKOVIĆ – Luxusvilla mit Pool in ruhiger Lage
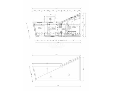
In Smoković bei Zadar steht eine luxuriöse, modern eingerichtete Villa mit Pool zum Verkauf. Die ebenerdige Villa mit einer Wohnfläche von 235,27 m² befindet sich auf einem großzügigen Grundstück von 3030 m². Sie besteht aus einem Haupt- und einem Nebengebäude. Das Hauptgebäude verfügt über ein geräumiges Wohnzimmer, eine offene Küche mit Essbereich, vier Schlafzimmer mit jeweils eigenem Bad, ein Gäste-WC, einen Abstellraum, einen Wintergarten und eine Garage. Auf der überdachten Terrasse befindet sich ein Esstisch, und im Innenhof erwarten Sie ein Swimmingpool, eine Liegewiese und ein Kinderspielplatz.
Im Nebengebäude mit einer Fläche von 37,77 m² befinden sich eine zusätzliche Wohnung mit einem Schlafzimmer, einem Badezimmer und einem Grillplatz im Innenbereich, ein Abstellraum mit separatem Eingang sowie ein Keller mit einer Fläche von weiteren 24 m².
Die Villa ist mit modernster Technik ausgestattet, vollklimatisiert und verfügt über eine Fußbodenheizung mit Wärmepumpen. Für die Böden wurden Parkett und Keramikfliesen verlegt. Die Fenster und Türen sind aus Aluminium, und das geräumige Wohnzimmer verfügt über Deckenklimaanlagen. Eine große Glaswand sorgt tagsüber für viel Tageslicht.
Das Objekt mit etabliertem Tourismusbetrieb liegt 13 km vom Stadtzentrum von Zadar entfernt, der nächstgelegene Flughafen Zemunik ist 7 km entfernt.
Sehr geehrte Kunden, die Maklergebühr wird gemäß den Allgemeinen Geschäftsbedingungen berechnet.
https://costa-nekretnine.hr/o-nama/opci-uvjeti-poslovanja
ID CODE: 148
In Smoković bei Zadar steht eine luxuriöse, modern eingerichtete Villa mit Pool zum Verkauf. Die ebenerdige Villa mit einer Wohnfläche von 235,27 m² befindet sich auf einem großzügigen Grundstück von 3030 m². Sie besteht aus einem Haupt- und einem Nebengebäude. Das Hauptgebäude verfügt über ein geräumiges Wohnzimmer, eine offene Küche mit Essbereich, vier Schlafzimmer mit jeweils eigenem Bad, ein Gäste-WC, einen Abstellraum, einen Wintergarten und eine Garage. Auf der überdachten Terrasse befindet sich ein Esstisch, und im Innenhof erwarten Sie ein Swimmingpool, eine Liegewiese und ein Kinderspielplatz.
Im Nebengebäude mit einer Fläche von 37,77 m² befinden sich eine zusätzliche Wohnung mit einem Schlafzimmer, einem Badezimmer und einem Grillplatz im Innenbereich, ein Abstellraum mit separatem Eingang sowie ein Keller mit einer Fläche von weiteren 24 m².
Die Villa ist mit modernster Technik ausgestattet, vollklimatisiert und verfügt über eine Fußbodenheizung mit Wärmepumpen. Für die Böden wurden Parkett und Keramikfliesen verlegt. Die Fenster und Türen sind aus Aluminium, und das geräumige Wohnzimmer verfügt über Deckenklimaanlagen. Eine große Glaswand sorgt tagsüber für viel Tageslicht.
Das Objekt mit etabliertem Tourismusbetrieb liegt 13 km vom Stadtzentrum von Zadar entfernt, der nächstgelegene Flughafen Zemunik ist 7 km entfernt.
Sehr geehrte Kunden, die Maklergebühr wird gemäß den Allgemeinen Geschäftsbedingungen berechnet.
https://costa-nekretnine.hr/o-nama/opci-uvjeti-poslovanja
ID CODE: 148