Exposé
Objektart:
Wohnung
» Etage
» Kauf
Standort: Wohnung »
Deutschland » Rheinland-Pfalz » Trier, Stadt (Kreis) » Trier
Achtung Steuerfüchse - Steuern sparen durch Sonderabschreibungen im KFW 40 QNG Energiesparhaus
Wohnungen 7, 16, 25, 34
Das Wichtigste auf einen Blick:
| Objektnummer: | 9392367 |
Preise
| Kaufpreis | 333.300 € |
| Nebenkosten | keine Angabe |
Flächen
| Wohnfläche | 61,14 m² |
| Fläche teilbar ab | 61,14 m² |
Objekt Adresse
54294 Trier
Sonstige Angaben
| Baujahr | 2026 |
| Zimmer | 3 |
| Verfügbar ab | Ende 2027 |
| Bad | 1 |
| Bad | 1 |
| Bad | Dusche |
| Boden | Fliesen, Parkett |
| Keller | Ja |
| Energieausweistyp | Bedarfsausweis |
| Ausstellungsdatum | 27. 10. 2025 |
| Gültig bis | 26.10.2035 |
| Baujahr (laut Energieausweis) | 2025 |
| Energieeffizienzklasse | A+ |
| Energietyp | KfW-40 |
| Endenergiebedarf | 29,95 kWh/(m²*a) |
| Heizungsart | Fernwärme, Fußbodenheizung |
| Wesentlicher Energieträger | Fernwärme, Strom |
| Energieträger/Befeuerung | Elektro, Fernwärme |
Objektbeschreibung
Modernes barrierefreies Wohnen mit moderner Heiztechnik im KFW 40 QNG Energiesparhaus im neuen Wohngebiet "Grünes Quartier" mit guter Verkehrsanbindung nach
Luxemburg . Helle sonnige Wohnung in modernem KFW 40 QNG Energiesparhaus. Sehr hohe Steuervorteile durch Kombination von degressive Abschreibung und Sonderabschreibung Mietwohnungsbau für Vermieter möglich !
Altengerechtes schönes Wohnen mit moderner kostengünstiger Heiztechnik in gefragter Lage im neuen "Grünen Quartier" im ruhigen Innenbereich. In dieser exponierten Lage entstehen moderne attraktive Eigentumswohnungen von ca. 22 bis ca. 110 m² mit moderner Technik in altersgerechter Ausführung mit Aufzug und Tiefgarage in nachhaltiger Bauweise im hochwertigen Standard KFW 40 QNG. Eine hochwertige Außenfassade mit ansprechender Klinkerfassade, elektrische Rollläden, ein moderner Aufzug, schöne Fliesen und Sanitärausstattungen, attraktive Parkettböden, hochwertige Wohnungseingangstüren, moderne 3-fach verglaste Fenster, eine gute Elektroausstattung, eine kontrollierter Wohnraumbelüftung mit Wärmerückgewinnung sowie attraktive Parkettböden werden ausgeführt. Bei der Konzeption des Objektes wurde besonders nachhaltiges Bauen geachtet, was durch den sehr aufwendigen KFW 40 QNG Standard dokumentiert wird. Die Kombination von moderner Technik sowie hochwertiger Isolierung führt zu sehr günstigen Heizkosten bzw. Nebenkosten. Alle Wohnungen verfügen über schöne Balkone oder großzügige Terrassen. Jeder Wohnung ist ein Kellerraum im Untergeschoss zugeordnet. Die Wohnungen im Erdgeschoß erhalten auf Wunsch einen Garten.
Das Angebot bezieht sich auf die Wohnung 16 im 1. Obergeschoß. Von der zentralen Diele mit Garderobe gelangen Sie in den hellen Wohn/Eßbereich mit offener Küche von ca. 22 m² mit Ausgang auf den schönen Balkon. Gleichermaßen sind das geräumige Schlafzimmer von ca. 13 m², das Kinderzimmer/Büro von ca. 10 m², der Abstellraum sowie das Duschbad von ca. 5 m² von der Diele erreichbar. Die Wohnung hat eine Wohnfläche von ca. 62 m². Die Wohnung ist barrierefrei
Die baugleiche Wohnung kann im Erdgeschoß, 2. Obergeschoß sowie im 3. Obergeschoß erworben werden.
Der Wohnung ist ein Kellerraum zugeordnet.
Es besteht die Möglichkeit Tiefgaragenstellplätze für 26.500 EUR zu erwerben. Die Wohnanlage erfüllt die technischen Voraussetzungen um die KFW 40 Darlehen von 150.000 EUR ab 1,45 % nach den Programmen 297, 298 ab 0,01 % zu ermöglichen.
Die Wohnungen können bei einem Erwerb bis zum Jahr der Fertigstellung und einer Vermietung entsprechend den Änderungen des Wirtschaftschancengesetzes mit einer degressiven Abschreibung gemäß ( § 7 Abs.5a EStG) von jährlich 5 % bezogen auf den jeweiligen Buchwert abgeschrieben werden. Hierdurch werden hohe Steuervorteile erzielt.
Aufgrund des Standards KFW 40 QNG und der weiteren Voraussetzungen ist eine Kombination der degressiven Abschreibung von 5 % mit der Mietwohnabschreibung (§ 7 b EStG) möglich. Hier können zusätzlich 4 Jahre Sonderabschreibungen von 5 % von bis zu 4.000 EUR pro m² in Anspruch genommen werden. Sowohl bei der Kostengrenze von 5.200 EUR pro m² als auch beim Abschreibungswert von 4.000 EUR pro m² können die Wohn- und Nebenflächen (Bruttogrundflächen) zugrunde gelegt werden (BMF Schreiben vom 07.07.2020, Tz 52 BStBlI 2020 Seite 623). Hierdurch erhöhen sich die abschreibungsfähigen Flächen sehr stark. Die Vorgaben und die Kostengrenzen sind eingehalten Beispiel Wohnung
Kaufpreis mit TG-Stellplatz 237.400 EUR - Abschreibungen Jahr 1 – 4 ca. 91.484,80 EUR
Fragen Sie Ihren Steuerberater. Dieser berät Sie ausführlich.
Der Baubeginn ist für Frühjahr 2026 vorgesehen. Die Fertigstellung ist für Ende 2027 geplant.
Die Betreuung des Objektes erfolgt zusätzlich durch einen öffentlich bestellten Bausachverständigen. Dies ist ein zusätzlicher Qualitätsbeweis.
Luxemburg . Helle sonnige Wohnung in modernem KFW 40 QNG Energiesparhaus. Sehr hohe Steuervorteile durch Kombination von degressive Abschreibung und Sonderabschreibung Mietwohnungsbau für Vermieter möglich !
Altengerechtes schönes Wohnen mit moderner kostengünstiger Heiztechnik in gefragter Lage im neuen "Grünen Quartier" im ruhigen Innenbereich. In dieser exponierten Lage entstehen moderne attraktive Eigentumswohnungen von ca. 22 bis ca. 110 m² mit moderner Technik in altersgerechter Ausführung mit Aufzug und Tiefgarage in nachhaltiger Bauweise im hochwertigen Standard KFW 40 QNG. Eine hochwertige Außenfassade mit ansprechender Klinkerfassade, elektrische Rollläden, ein moderner Aufzug, schöne Fliesen und Sanitärausstattungen, attraktive Parkettböden, hochwertige Wohnungseingangstüren, moderne 3-fach verglaste Fenster, eine gute Elektroausstattung, eine kontrollierter Wohnraumbelüftung mit Wärmerückgewinnung sowie attraktive Parkettböden werden ausgeführt. Bei der Konzeption des Objektes wurde besonders nachhaltiges Bauen geachtet, was durch den sehr aufwendigen KFW 40 QNG Standard dokumentiert wird. Die Kombination von moderner Technik sowie hochwertiger Isolierung führt zu sehr günstigen Heizkosten bzw. Nebenkosten. Alle Wohnungen verfügen über schöne Balkone oder großzügige Terrassen. Jeder Wohnung ist ein Kellerraum im Untergeschoss zugeordnet. Die Wohnungen im Erdgeschoß erhalten auf Wunsch einen Garten.
Das Angebot bezieht sich auf die Wohnung 16 im 1. Obergeschoß. Von der zentralen Diele mit Garderobe gelangen Sie in den hellen Wohn/Eßbereich mit offener Küche von ca. 22 m² mit Ausgang auf den schönen Balkon. Gleichermaßen sind das geräumige Schlafzimmer von ca. 13 m², das Kinderzimmer/Büro von ca. 10 m², der Abstellraum sowie das Duschbad von ca. 5 m² von der Diele erreichbar. Die Wohnung hat eine Wohnfläche von ca. 62 m². Die Wohnung ist barrierefrei
Die baugleiche Wohnung kann im Erdgeschoß, 2. Obergeschoß sowie im 3. Obergeschoß erworben werden.
Der Wohnung ist ein Kellerraum zugeordnet.
Es besteht die Möglichkeit Tiefgaragenstellplätze für 26.500 EUR zu erwerben. Die Wohnanlage erfüllt die technischen Voraussetzungen um die KFW 40 Darlehen von 150.000 EUR ab 1,45 % nach den Programmen 297, 298 ab 0,01 % zu ermöglichen.
Die Wohnungen können bei einem Erwerb bis zum Jahr der Fertigstellung und einer Vermietung entsprechend den Änderungen des Wirtschaftschancengesetzes mit einer degressiven Abschreibung gemäß ( § 7 Abs.5a EStG) von jährlich 5 % bezogen auf den jeweiligen Buchwert abgeschrieben werden. Hierdurch werden hohe Steuervorteile erzielt.
Aufgrund des Standards KFW 40 QNG und der weiteren Voraussetzungen ist eine Kombination der degressiven Abschreibung von 5 % mit der Mietwohnabschreibung (§ 7 b EStG) möglich. Hier können zusätzlich 4 Jahre Sonderabschreibungen von 5 % von bis zu 4.000 EUR pro m² in Anspruch genommen werden. Sowohl bei der Kostengrenze von 5.200 EUR pro m² als auch beim Abschreibungswert von 4.000 EUR pro m² können die Wohn- und Nebenflächen (Bruttogrundflächen) zugrunde gelegt werden (BMF Schreiben vom 07.07.2020, Tz 52 BStBlI 2020 Seite 623). Hierdurch erhöhen sich die abschreibungsfähigen Flächen sehr stark. Die Vorgaben und die Kostengrenzen sind eingehalten Beispiel Wohnung
Kaufpreis mit TG-Stellplatz 237.400 EUR - Abschreibungen Jahr 1 – 4 ca. 91.484,80 EUR
Fragen Sie Ihren Steuerberater. Dieser berät Sie ausführlich.
Der Baubeginn ist für Frühjahr 2026 vorgesehen. Die Fertigstellung ist für Ende 2027 geplant.
Die Betreuung des Objektes erfolgt zusätzlich durch einen öffentlich bestellten Bausachverständigen. Dies ist ein zusätzlicher Qualitätsbeweis.
Ausstattung
Modernes barrierefreies Wohnen mit moderner Heiztechnik im KFW 40 QNG Energiesparhaus im neuen Wohngebiet "Grünes Quartier" mit guter Verkehrsanbindung nach
Luxemburg . Helle sonnige Wohnung in modernem KFW 40 QNG Energiesparhaus. Sehr hohe Steuervorteile durch Kombination von degressive Abschreibung und Sonderabschreibung Mietwohnungsbau für Vermieter möglich !
Altengerechtes schönes Wohnen mit moderner kostengünstiger Heiztechnik in gefragter Lage im neuen "Grünen Quartier" im ruhigen Innenbereich. In dieser exponierten Lage entstehen moderne attraktive Eigentumswohnungen von ca. 22 bis ca. 110 m² mit moderner Technik in altersgerechter Ausführung mit Aufzug und Tiefgarage in nachhaltiger Bauweise im hochwertigen Standard KFW 40 QNG. Eine hochwertige Außenfassade mit ansprechender Klinkerfassade, elektrische Rollläden, ein moderner Aufzug, schöne Fliesen und Sanitärausstattungen, attraktive Parkettböden, hochwertige Wohnungseingangstüren, moderne 3-fach verglaste Fenster, eine gute Elektroausstattung, eine kontrollierter Wohnraumbelüftung mit Wärmerückgewinnung sowie attraktive Parkettböden werden ausgeführt. Bei der Konzeption des Objektes wurde besonders nachhaltiges Bauen geachtet, was durch den sehr aufwendigen KFW 40 QNG Standard dokumentiert wird. Die Kombination von moderner Technik sowie hochwertiger Isolierung führt zu sehr günstigen Heizkosten bzw. Nebenkosten. Alle Wohnungen verfügen über schöne Balkone oder großzügige Terrassen. Jeder Wohnung ist ein Kellerraum im Untergeschoss zugeordnet. Die Wohnungen im Erdgeschoß erhalten auf Wunsch einen Garten.
Das Angebot bezieht sich auf die Wohnung 16 im 1. Obergeschoß. Von der zentralen Diele mit Garderobe gelangen Sie in den hellen Wohn/Eßbereich mit offener Küche von ca. 22 m² mit Ausgang auf den schönen Balkon. Gleichermaßen sind das geräumige Schlafzimmer von ca. 13 m², das Kinderzimmer/Büro von ca. 10 m², der Abstellraum sowie das Duschbad von ca. 5 m² von der Diele erreichbar. Die Wohnung hat eine Wohnfläche von ca. 62 m². Die Wohnung ist barrierefrei
Die baugleiche Wohnung kann im Erdgeschoß, 2. Obergeschoß sowie im 3. Obergeschoß erworben werden.
Der Wohnung ist ein Kellerraum zugeordnet.
Es besteht die Möglichkeit Tiefgaragenstellplätze für 26.500 EUR zu erwerben. Die Wohnanlage erfüllt die technischen Voraussetzungen um die KFW 40 Darlehen von 150.000 EUR ab 1,45 % nach den Programmen 297, 298 ab 0,01 % zu ermöglichen.
Die Wohnungen können bei einem Erwerb bis zum Jahr der Fertigstellung und einer Vermietung entsprechend den Änderungen des Wirtschaftschancengesetzes mit einer degressiven Abschreibung gemäß ( § 7 Abs.5a EStG) von jährlich 5 % bezogen auf den jeweiligen Buchwert abgeschrieben werden. Hierdurch werden hohe Steuervorteile erzielt.
Aufgrund des Standards KFW 40 QNG und der weiteren Voraussetzungen ist eine Kombination der degressiven Abschreibung von 5 % mit der Mietwohnabschreibung (§ 7 b EStG) möglich. Hier können zusätzlich 4 Jahre Sonderabschreibungen von 5 % von bis zu 4.000 EUR pro m² in Anspruch genommen werden. Sowohl bei der Kostengrenze von 5.200 EUR pro m² als auch beim Abschreibungswert von 4.000 EUR pro m² können die Wohn- und Nebenflächen (Bruttogrundflächen) zugrunde gelegt werden (BMF Schreiben vom 07.07.2020, Tz 52 BStBlI 2020 Seite 623). Hierdurch erhöhen sich die abschreibungsfähigen Flächen sehr stark. Die Vorgaben und die Kostengrenzen sind eingehalten Beispiel Wohnung
Kaufpreis mit TG-Stellplatz 237.400 EUR - Abschreibungen Jahr 1 – 4 ca. 91.484,80 EUR
Fragen Sie Ihren Steuerberater. Dieser berät Sie ausführlich.
Der Baubeginn ist für Frühjahr 2026 vorgesehen. Die Fertigstellung ist für Ende 2027 geplant.
Die Betreuung des Objektes erfolgt zusätzlich durch einen öffentlich bestellten Bausachverständigen. Dies ist ein zusätzlicher Qualitätsbeweis.
Luxemburg . Helle sonnige Wohnung in modernem KFW 40 QNG Energiesparhaus. Sehr hohe Steuervorteile durch Kombination von degressive Abschreibung und Sonderabschreibung Mietwohnungsbau für Vermieter möglich !
Altengerechtes schönes Wohnen mit moderner kostengünstiger Heiztechnik in gefragter Lage im neuen "Grünen Quartier" im ruhigen Innenbereich. In dieser exponierten Lage entstehen moderne attraktive Eigentumswohnungen von ca. 22 bis ca. 110 m² mit moderner Technik in altersgerechter Ausführung mit Aufzug und Tiefgarage in nachhaltiger Bauweise im hochwertigen Standard KFW 40 QNG. Eine hochwertige Außenfassade mit ansprechender Klinkerfassade, elektrische Rollläden, ein moderner Aufzug, schöne Fliesen und Sanitärausstattungen, attraktive Parkettböden, hochwertige Wohnungseingangstüren, moderne 3-fach verglaste Fenster, eine gute Elektroausstattung, eine kontrollierter Wohnraumbelüftung mit Wärmerückgewinnung sowie attraktive Parkettböden werden ausgeführt. Bei der Konzeption des Objektes wurde besonders nachhaltiges Bauen geachtet, was durch den sehr aufwendigen KFW 40 QNG Standard dokumentiert wird. Die Kombination von moderner Technik sowie hochwertiger Isolierung führt zu sehr günstigen Heizkosten bzw. Nebenkosten. Alle Wohnungen verfügen über schöne Balkone oder großzügige Terrassen. Jeder Wohnung ist ein Kellerraum im Untergeschoss zugeordnet. Die Wohnungen im Erdgeschoß erhalten auf Wunsch einen Garten.
Das Angebot bezieht sich auf die Wohnung 16 im 1. Obergeschoß. Von der zentralen Diele mit Garderobe gelangen Sie in den hellen Wohn/Eßbereich mit offener Küche von ca. 22 m² mit Ausgang auf den schönen Balkon. Gleichermaßen sind das geräumige Schlafzimmer von ca. 13 m², das Kinderzimmer/Büro von ca. 10 m², der Abstellraum sowie das Duschbad von ca. 5 m² von der Diele erreichbar. Die Wohnung hat eine Wohnfläche von ca. 62 m². Die Wohnung ist barrierefrei
Die baugleiche Wohnung kann im Erdgeschoß, 2. Obergeschoß sowie im 3. Obergeschoß erworben werden.
Der Wohnung ist ein Kellerraum zugeordnet.
Es besteht die Möglichkeit Tiefgaragenstellplätze für 26.500 EUR zu erwerben. Die Wohnanlage erfüllt die technischen Voraussetzungen um die KFW 40 Darlehen von 150.000 EUR ab 1,45 % nach den Programmen 297, 298 ab 0,01 % zu ermöglichen.
Die Wohnungen können bei einem Erwerb bis zum Jahr der Fertigstellung und einer Vermietung entsprechend den Änderungen des Wirtschaftschancengesetzes mit einer degressiven Abschreibung gemäß ( § 7 Abs.5a EStG) von jährlich 5 % bezogen auf den jeweiligen Buchwert abgeschrieben werden. Hierdurch werden hohe Steuervorteile erzielt.
Aufgrund des Standards KFW 40 QNG und der weiteren Voraussetzungen ist eine Kombination der degressiven Abschreibung von 5 % mit der Mietwohnabschreibung (§ 7 b EStG) möglich. Hier können zusätzlich 4 Jahre Sonderabschreibungen von 5 % von bis zu 4.000 EUR pro m² in Anspruch genommen werden. Sowohl bei der Kostengrenze von 5.200 EUR pro m² als auch beim Abschreibungswert von 4.000 EUR pro m² können die Wohn- und Nebenflächen (Bruttogrundflächen) zugrunde gelegt werden (BMF Schreiben vom 07.07.2020, Tz 52 BStBlI 2020 Seite 623). Hierdurch erhöhen sich die abschreibungsfähigen Flächen sehr stark. Die Vorgaben und die Kostengrenzen sind eingehalten Beispiel Wohnung
Kaufpreis mit TG-Stellplatz 237.400 EUR - Abschreibungen Jahr 1 – 4 ca. 91.484,80 EUR
Fragen Sie Ihren Steuerberater. Dieser berät Sie ausführlich.
Der Baubeginn ist für Frühjahr 2026 vorgesehen. Die Fertigstellung ist für Ende 2027 geplant.
Die Betreuung des Objektes erfolgt zusätzlich durch einen öffentlich bestellten Bausachverständigen. Dies ist ein zusätzlicher Qualitätsbeweis.
Lage des Objektes
Trier-westlicher Stadtteil, gefragter Stadtteil der sich durch viele Investitionen aktuell sehr positiv verändert. Er verfügt über eine gute Infrastruktur und sehr gute Verkehrsanbindung in alle Richtungen. Es sind diverse Einkaufsmöglichkeiten wie z.B. Aldi, Edeka etc. sowie Banken, Ärzte, Apotheke, Gastronomie, Sport- und Freizeitmöglichkeiten im Stadtteil vorhanden. Ebenso befinden sich Kindergarten und Schulen in der näheren Umgebung. Es ist eine gute Verkehrsanbindung durch den öffentlichen Nahverkehr in die Innenstadt gegeben. Ebenso ist für den Individualverkehr nach Luxemburg, Koblenz und Saarbrücken eine sehr gute Verkehrsanbindung gegeben. Diese wurde noch durch die neue Bahntrasse" Weststrecke" mit Haltepunkt in fußläufiger Entfernung des Objektes verbessert. Hierdurch kann man direkt zur Haltstelle Luxemburg Kirchberg fahren. Weitere Infos finden Sie unter:
https://www.trier.de/umwelt-verkehr/oeffentlicher-verkehr/bahnverkehr/projekt-weststrecke/.
Das Gelände des ehemaligen Bundesbahnausbesserungswerkes wird vollständig neu entwickelt und in das "Grüne Quartier" umgewandelt. Hier entstehen attraktive Wohnbebauungen, Praxen, Senioren-Wohnen etc. in ansprechender Architektur und einem modernen Energiekonzept.
Das "Grüne Quartier" wird zu einer neuen gefragten Adresse.
https://www.trier.de/umwelt-verkehr/oeffentlicher-verkehr/bahnverkehr/projekt-weststrecke/.
Das Gelände des ehemaligen Bundesbahnausbesserungswerkes wird vollständig neu entwickelt und in das "Grüne Quartier" umgewandelt. Hier entstehen attraktive Wohnbebauungen, Praxen, Senioren-Wohnen etc. in ansprechender Architektur und einem modernen Energiekonzept.
Das "Grüne Quartier" wird zu einer neuen gefragten Adresse.
Sonstige Informationen
Vereinbaren Sie einen Beratungstermin !
Der Energieausweis liegt vor.
Dieser wird dem Interessenten vor dem Besichtigungstermin mit dem Exposé zur Verfügung gestellt.
In Zusammenarbeit mit einem Finanzierungsvermittler sind wir Ihnen gerne bei der Gestaltung Ihrer Finanzierung behilflich. Die Zinsen können auf die Dauer von 10 oder 15 Jahren festgeschrieben werden. Sondertilgungen sind möglich.
Die Wohnanlage erfüllt die technischen Voraussetzungen um die KFW Darlehen nach den Programmen 297, 298 und dem Programm 300 (Familienförderung) zu ermöglichen.
Bei den Programmen 297 und 298 sind aufgrund des Standards KFW 40 QNG je Wohnung Darlehen von 150.000 EUR zu günstigen Zinsen möglich. Die Zinssätze richten sich nach dem Tilgungszeitraum und betragen:
a) bei einer Tilgung innerhalb 10 Jahren 1,41 %
b) bei einer Tilgung innerhalb 25 Jahren 2,30 %
c) bei einer Tilgung innerhalb 35 Jahren 2,47 %.
Die Förderungen sind an keine persönlichen Voraussetzungen gebunden. Sie sind sowohl für die Eigennutzung sowie für die Vermietung möglich.
Beim Programm 300 - Familienförderung sind aufgrund des Standards KFW 40 je Wohnung Darlehen für eine Familie mit einem Kind von 220.000 EUR zu sehr günstigen Zinsen möglich. Die Zinssätze richten sich nach der Zinsfestschreibung und dem Tilgungszeitraum und betragen
bei einer Zinsfestschreibung von 10 Jahren:
a) bei einer Tilgung innerhalb 10 Jahren 0,01 %
b) bei einer Tilgung innerhalb 25 Jahren 1,136 %
c) bei einer Tilgung innerhalb 35 Jahren 1,36 %.
Es sind auch Zinsfestschreibungen von 20 Jahren zu höheren Zinsen möglich.
Diese Förderungen sind an persönlichen Voraussetzungen gebunden. Die Zinssätze verändern sich entsprechend den Vorgaben der KFW. Die KFW Darlehen können über die jeweils finanzierende Bank mit dem Sitz in Deutschland beantragt und abgewickelt werden.
Hinweis bei Vermietung: Die Wohnungen können bei einem Erwerb bis zum Jahr der Fertigstellung und einer Vermietung entsprechend den aktuellen Änderungen des Wirtschaftschancengesetzes mit einer degressiven Abschreibung von jährlich 5 % bezogen auf den jeweiligen Buchwert abgeschrieben werden. Hierdurch werden hohe Steuervorteile erzielt.
Aufgrund des Standards KFW 40 QNG und der weiteren Voraussetzungen ist eine Kombination der degressiven Abschreibung von 5 % mit der Sonderabschreibung für den Mietwohnungsneubau möglich. Hier können zusätzlich 4 Jahre Sonderabschreibungen von 5 % von bis zu 4.000 EUR pro m² in Anspruch genommen werden. Sowohl bei der Kostengrenze von 5.200 EUR pro m² als auch beim Abschreibungswert von 4.000 EUR pro m² können die Wohn- und Nebenflächen (Bruttogrundfläche) zugrunde gelegt werden, so dass die Kostengrenzen eingehalten werden.
Wohnung 1 Kaufpreis mit TG-Stellplatz 237.400 EUR - Abschreibungen Jahr 1 – 4 ca. 91.484 EUR
Wir übernehmen weder eine steuerliche Beratung noch die Haftung für steuerliche Ziele. Sprechen Sie mit Ihrem Steuerberater. Dieser berät Sie gerne umfassend und fachgerecht unter Berücksichtigung Ihrer persönlichen Situation.
Die Betreuung des Objektes erfolgt zusätzlich durch einen öffentlich bestellten Bausachverständigen. Dieser führt gemeinsam mit den Käufern die Abnahmen der Wohnungen sowie des Gemeinschaftseigentums durch. Dies ist ein zusätzlicher Qualitätsbeweis.
weitere interessante Kauf- oder Mietangebote finden Sie unter www.scherf-immobilien.de
02
Lageplan 1
Grundriss Erdgeschoss
Grundriss 1. Obergeschoss
Grundriss 3. Obergeschoss
Grundriss 4. Obergeschoss
Lageplan Haus 2 und 2b
01
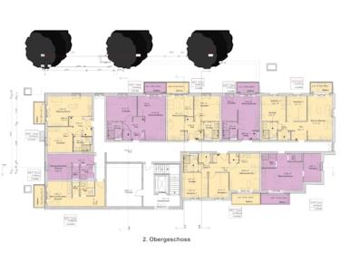
Grundriss 2. Obergeschoss
Wohnungen 9, 18, 27, 36