Exposé
Objektart:
Büro / Praxen
» Praxis
» Kauf
Standort: Büro / Praxen »
Deutschland » Berlin » Berlin, Stadt (Kreis) » Berlin
FITNESS-STUDIO==5% RENDITE=GEWERBE=141QM==NOLLENDORFSTR.=PRAXIS=BÜRO=PRIVATVERKAUF=PROVISIONSFREI!!
FITNESS-STUDIO
Das Wichtigste auf einen Blick:
| Objektnummer: | 9391886 |
Preise
| Kaufpreis | 480.000 € |
| Nebenkosten | keine Angabe |
Flächen
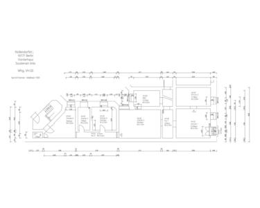
| Gesamtfläche | 141 m² |
| Bürofläche | 141 m² |
| Maklerprovision | keine Provision, courtagefrei |
Objekt Adresse
10777 Berlin
- Berlin
Sonstige Angaben
| Baujahr | 1900 |
| Verfügbar ab | nach Absprache |
| Anzahl der Etagen im Haus | 5 |
| Inserat befindet sich im Stockwerk | 0 |
| Bad | Dusche |
| Energieausweistyp | Verbrauch |
| Heizungsart | Zentralheizung |
| Energieträger/Befeuerung | Gas |
Objektbeschreibung
FITNESS-STUDIO==5% RENDITE==141QM==NOLLENDORFSTR.==TRENDIGES SOUTERRAIN==PROVISIONSFREI!!
Trendbezirk Schöneberg, Bestlage NOLLENDORFSTRASSE, (Nähe Winterfeldmarkt/Wochenmarkt), TE im Souterrain, 5 Räume
Die Fassade des Gebäudes ist sehr geschmackvoll erneuert worden. Die zum Verkauf stehenden Räume sind an ein Fitness Center (Personal Training) vermietet. Sehr geschmackvoll ausgebaute Räume im Souterrain eines Jahrhundertwendegebäudes. Freigelegtes und versiegeltes Ziegelmauerwerk im gesamten Gewerbe. Stilvolles Bad, zusätzliches WC,
Nur € 378,- Wohngeld,.... bei 141 qm, hier wird sehr gut verwaltet.
Trendbezirk Schöneberg, Bestlage NOLLENDORFSTRASSE, (Nähe Winterfeldmarkt/Wochenmarkt), TE im Souterrain, 5 Räume
Die Fassade des Gebäudes ist sehr geschmackvoll erneuert worden. Die zum Verkauf stehenden Räume sind an ein Fitness Center (Personal Training) vermietet. Sehr geschmackvoll ausgebaute Räume im Souterrain eines Jahrhundertwendegebäudes. Freigelegtes und versiegeltes Ziegelmauerwerk im gesamten Gewerbe. Stilvolles Bad, zusätzliches WC,
Nur € 378,- Wohngeld,.... bei 141 qm, hier wird sehr gut verwaltet.
Ausstattung
Duschbad, Gäste-WC
Bemerkungen:
== PROVISIONSFREIER PRIVATVERKAUF ==
Makleranfragen sind nicht erwünscht.
BESICHTIGUNG nach Vereinbarung unter 0172-3174800 möglich!
Bitte senden Sie mir eine kurze Kontakt-Email zu, wenn Sie an einer Besichtigung interessiert sind, ich sende Ihnen dann das Exposé zu.
Bemerkungen:
== PROVISIONSFREIER PRIVATVERKAUF ==
Makleranfragen sind nicht erwünscht.
BESICHTIGUNG nach Vereinbarung unter 0172-3174800 möglich!
Bitte senden Sie mir eine kurze Kontakt-Email zu, wenn Sie an einer Besichtigung interessiert sind, ich sende Ihnen dann das Exposé zu.
Lage des Objektes
SCHÖNEBERG, Nollendorfstraße, eine der beliebtesten Straßen Berlins......,
VIELE AUSGEBAUTE SOUTERRAIN-GEWERBE IN UNMITTELBARER NÄHE!!
sehr beliebter Wohn-/Gewerbestandort, fast alle Umgebungsgebäude sind modernisiert, die Infrastruktur ist hervorragend, kleine inhabergeführte Geschäfte, Zwischen U-Bahn Luise-Viktoria-Platz und Nollendorfplatz, Winterfeldmarkt fußläufig in 5 Gehminuten erreichbar,
Infrastruktur (im Umkreis von 5 km):
Apotheke, Lebensmittel-Discount, Allgemeinmediziner, Kindergarten, Grundschule, Hauptschule, Realschule, Gymnasium, Gesamtschule, Öffentliche Verkehrsmittel
VIELE AUSGEBAUTE SOUTERRAIN-GEWERBE IN UNMITTELBARER NÄHE!!
sehr beliebter Wohn-/Gewerbestandort, fast alle Umgebungsgebäude sind modernisiert, die Infrastruktur ist hervorragend, kleine inhabergeführte Geschäfte, Zwischen U-Bahn Luise-Viktoria-Platz und Nollendorfplatz, Winterfeldmarkt fußläufig in 5 Gehminuten erreichbar,
Infrastruktur (im Umkreis von 5 km):
Apotheke, Lebensmittel-Discount, Allgemeinmediziner, Kindergarten, Grundschule, Hauptschule, Realschule, Gymnasium, Gesamtschule, Öffentliche Verkehrsmittel
Sonstige Informationen
Heizungsart: Zentralheizung
Energieträger: Gas
HIS Hickstein Immobilien Systemanalyse
Rudolf-Ditzen-Weg 15
13156 Berlin
Tel: 0172 3174800
Fax: 030 49918099
E-Mail: hickstein-immobilien@gmx.de
Vertretungsberechtigter: Ulrich Hickstein
Berufsaufsichtsbehörde: Gewerbeerlaubnis gemäß § 34c GewO erteilt vom Wirtschaftsamt Berlin Pankow
Bezirksamt Pankow, Ordnungsamt Pankow, Fröbelstr., Prenzl.Berg FA Pankow/Weißensee, Storkowerstr., Berlin
Verbraucherinformationen:
Online-Streitbeilegung gemäß Art. 14 Abs. 1 ODR-VO: Die Europäische Kommission stellt eine Plattform zur Online-Streitbeilegung (OS) bereit, die Sie hier finden:
ec.europa.eu/consumers/odr
Der Anbieter nimmt nicht am Streitbeilegungsverfahren vor einer Verbraucherschlichtungsstelle teil.
Makleranfragen nicht erwünscht. Nach § 7 UWG sind unaufgeforderte Kontaktaufnahmen durch Makler ohne ausdrückliche Einwilligung des Empfängers verboten!
ohne-makler (OM) ist weder Anbieter noch Vermittler der Immobilie. OM betreibt eine Plattform für Immobilieneigentümer, die unter anderem die gleichzeitige Veröffentlichung einzelner Inserate auf mehreren Immobilienportalen ermöglicht. Die Inhalte dieser Inserate werden ausschließlich von Dritten verantwortet. Für die Richtigkeit, Vollständigkeit oder Rechtmäßigkeit der Angaben übernimmt OM keine Haftung. Hinweise auf mögliche Rechtsverstöße können jederzeit gemeldet werden und werden nach Prüfung umgehend bearbeitet.
Einladender Eingang
Bad mit Dusche
Die Nollendorfstraße....
Innenhof
Fassade
sichtbares Ziegelmauerwerk
EINGANG ZUM FITNESS-STUDIO
Innenhoffassade
Relaxbereich
gepflegter Innenhof
Bad
Kardioraum
Eingangsbereich
Flurbereich
Jugendstilfassade
Grundriss