Exposé
Objektart:
Wohnung
» Dachgeschoss
» Miete
Standort: Wohnung »
Deutschland » Nordrhein-Westfalen » Mettmann (Kreis) » Langenfeld
Schöne Dachgeschosswohnung mit Parkettboden, Erstbezug nach Sanierung im Zentrum von Langenfeld
Wohnzimmer 1
Das Wichtigste auf einen Blick:
| Objektnummer: | 9390573 |
Preise
| Kaltmiete (netto) | 800 € |
| Nebenkosten | 120 € |
| Kaution | 2.400 € |
Flächen
| Wohnfläche | 74 m² |
Objekt Adresse
40764 Langenfeld
- Nordrhein-Westfalen
Sonstige Angaben
| Baujahr | 1958 |
| Zimmer | 3 |
| Verfügbar ab | sofort |
| Bad | 1 |
| Anzahl der Etagen im Haus | 2 |
| Inserat befindet sich im Stockwerk | 2 |
| Bad | 1 |
| Boden | Parkett |
| Heizungsart | Zentralheizung |
| Energieträger/Befeuerung | Gas |
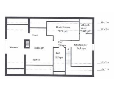
Objektbeschreibung
Bei dieser ansprechenden Immobilie handelt es sich um eine Wohnung im Dachgeschoss eines 3-Familien Hauses, die durch eine großzügige Aufteilung und schöne Innenausstattung mit Echtholz-Parkett besticht.
Die Wohnfläche beträgt ca. 74 m² und gliedert sich wie folgt:
•Diele
•Wohnzimmer
•Schlafzimmer
•Kinderzimmer
•Küche/ Esszimmer
•Duschbad
Der Fußboden in allen Wohnräumen ist mit Stabparkett belegt. Im modernen Duschbad ist der Boden mit großen Fliesen belegt.
Für Ihre Waschmaschine ist im Bad ein Platz vorgesehen.
Ebenso schließt sich ans Schlafzimmer ein Abstellraum an, der auch als Kleiderschrank genutzt werden kann.
Einkaufsmöglichkeiten, der Markt, das Rathaus sowie Bus-Haltestellen sind fußläufig erreichbar. Die S-Bahn ist ca. 15 Minuten Fußweg entfernt.
Objektzustand: Erstbezug nach Sanierung
Die Wohnfläche beträgt ca. 74 m² und gliedert sich wie folgt:
•Diele
•Wohnzimmer
•Schlafzimmer
•Kinderzimmer
•Küche/ Esszimmer
•Duschbad
Der Fußboden in allen Wohnräumen ist mit Stabparkett belegt. Im modernen Duschbad ist der Boden mit großen Fliesen belegt.
Für Ihre Waschmaschine ist im Bad ein Platz vorgesehen.
Ebenso schließt sich ans Schlafzimmer ein Abstellraum an, der auch als Kleiderschrank genutzt werden kann.
Einkaufsmöglichkeiten, der Markt, das Rathaus sowie Bus-Haltestellen sind fußläufig erreichbar. Die S-Bahn ist ca. 15 Minuten Fußweg entfernt.
Objektzustand: Erstbezug nach Sanierung
Ausstattung
Parkett
Bemerkungen:
Im Dezember 2025 wurde die Wohnung komplett renoviert: neuer Parkettfußboden in allen Wohnräumen, neues modernes Bad mit begehbarer Dusche. Sämtliche Türen und Zargen wurden erneuert ebenso wurden alle Wände frisch tapeziert und weiß gestrichen.
Die Fenster werden im Januar 2026 erneuert.
Die Wohnung verfügt über einen eigenen Glasfaseranschluss.
Bemerkungen:
Im Dezember 2025 wurde die Wohnung komplett renoviert: neuer Parkettfußboden in allen Wohnräumen, neues modernes Bad mit begehbarer Dusche. Sämtliche Türen und Zargen wurden erneuert ebenso wurden alle Wände frisch tapeziert und weiß gestrichen.
Die Fenster werden im Januar 2026 erneuert.
Die Wohnung verfügt über einen eigenen Glasfaseranschluss.
Lage des Objektes
Die Stadt Langenfeld mit ca. 60.000 Einwohner liegt verkehrstechnisch günstig zwischen den Rheinmetropolen Köln und Düsseldorf.
Absolut zentrale Lage mitten in der Innenstadt von Langenfeld.
Alle öffentlichen Verkehrsmittel erreicht man innerhalb weniger Minuten (Bus und S-Bahn), beide Autobahnauffahrten in Richtung Köln und Düsseldorf (A59 + A3) in 3 Minuten. Ämter, Banken, Schulen und das Einkaufszentrum liegen in unmittelbarer Nähe.
Infrastruktur (im Umkreis von 5 km):
Apotheke, Lebensmittel-Discount, Allgemeinmediziner, Gymnasium, Öffentliche Verkehrsmittel
Absolut zentrale Lage mitten in der Innenstadt von Langenfeld.
Alle öffentlichen Verkehrsmittel erreicht man innerhalb weniger Minuten (Bus und S-Bahn), beide Autobahnauffahrten in Richtung Köln und Düsseldorf (A59 + A3) in 3 Minuten. Ämter, Banken, Schulen und das Einkaufszentrum liegen in unmittelbarer Nähe.
Infrastruktur (im Umkreis von 5 km):
Apotheke, Lebensmittel-Discount, Allgemeinmediziner, Gymnasium, Öffentliche Verkehrsmittel
Sonstige Informationen
Heizungsart: Zentralheizung
Energieträger: Gas
Energieausweis nicht vorhanden
Makleranfragen nicht erwünscht. Nach § 7 UWG sind unaufgeforderte Kontaktaufnahmen durch Makler ohne ausdrückliche Einwilligung des Empfängers verboten!
ohne-makler (OM) ist weder Anbieter noch Vermittler der Immobilie. OM betreibt eine Plattform für Immobilieneigentümer, die unter anderem die gleichzeitige Veröffentlichung einzelner Inserate auf mehreren Immobilienportalen ermöglicht. Die Inhalte dieser Inserate werden ausschließlich von Dritten verantwortet. Für die Richtigkeit, Vollständigkeit oder Rechtmäßigkeit der Angaben übernimmt OM keine Haftung. Hinweise auf mögliche Rechtsverstöße können jederzeit gemeldet werden und werden nach Prüfung umgehend bearbeitet.
Wohnzimmer 2
Wohnzimmer 3
Schlafzimmer 1
Schlafzimmer 2
Schlafzimmer 3
Abstellkammer 1
Abstellkammer 2
Kinderzimmer 1
Kinderzimmer 2
Kinderzimmer 3
Küche 1
Küche 2
Küche/ Esszimmer
Bad 2
Bad 3
Bad 1
Diele
Eingang
Grundriss