Exposé
Objektart:
Haus
» Einfamilienhaus
» Kauf
ISTRIEN, ŠIŠAN - Geräumiges, unfertiges Haus mit großem Baugrundstück
Angeboten von:
Nekretnine1 j.d.o.o.
Pomerio 27
51000 Rijeka
Kroatien
Telefon:+385 95 714 8583
Ansprechpartner/in
Nekretnine1.hrDas Wichtigste auf einen Blick:
| Objektnummer: | 9390157 |
Preise
| Kaufpreis | 1.200.000 € |
| Nebenkosten | keine Angabe |
Flächen
| Gesamtfläche | 157 m² |
| Grundstücksfläche | 4.667 m² |
Objekt Adresse
52204 Ližnjan
- Istrien
Sonstige Angaben
| Baujahr | 2013 |
| Zimmer | 8 |
| Verfügbar ab | keine Angabe |
| Bad | 2 |
| Anzahl der Etagen im Haus | 2 |
| Bad | 2 |
Objektbeschreibung
ISTRIEN, ŠIšAN – Großzügiges, noch nicht fertiggestelltes Haus mit großem Baugrundstück
HERVORRAGENDE INVESTITIONSMÖGLICHKEIT IN RUHIGER LAGE
In der begehrten Lage von Šišan steht ein geräumiges Haus mit 157 m² Wohnfläche und einem m² großen, angelegten Garten zum Verkauf. Das zusätzliche Baugrundstück umfasst m² und bietet vielfältige Möglichkeiten für die Entwicklung von Mehrfamilienhäusern, Einfamilienhäusern oder luxuriösen Villen mit Pool.
Das Anwesen befindet sich in einer ruhigen, grünen Straße und ist gleichzeitig nur wenige Autominuten vom Meer sowie von Medulin, Ližnjan und Pula entfernt. Diese seltene Gelegenheit vereint hochwertige Bauweise, großzügige Fläche und wirtschaftliches Potenzial.
Saubere Unterlagen, Alleineigentum
Hausmerkmale
Baujahr: 2013
Innenausbau noch nicht fertiggestellt – ideal zur individuellen Gestaltung Außenwände: Kalkputz + 29 cm Ziegelstein + 4 cm Wärmedämmung
Tragende Wände: 25 cm Ziegelstein
Trennwände: Porenbeton
Stahlbetondecken zwischen den Geschossen
Wasser- und Elektroinstallation abgeschlossen (Stromanschluss vorbereitet)
Hochwertige, wärmedämmende Fassade
Stabiles und langlebiges Gebäude – ideal für viele Jahre Nutzung ohne zusätzliche Investitionen in die Struktur
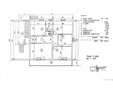
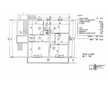
Grundriss
KELLER – 97,40 m² + Abstellraum 13,75 m²
Zwei große Garagen (Höhe 280 cm)
Umbaumöglichkeit zu einer Taverne, einem Wellnessbereich, einem Hobbyraum, einem Fitnessraum oder einer Wohnung
Zusätzlicher Abstellraum unter der Treppe
ERDGESCHOSS / 1. OBERGESCHOSS
Küche + Essbereich (21,80 m²) mit Zugang zur Terrasse
Wohnzimmer mit Zugang zur Terrasse (7,95 m²)
Zwei Schlafzimmer, eines davon mit eigenem Bad Badezimmer 10,15 m²
Eingangsbereich 9,25 m²
2. OG – Identischer Grundriss und gleiche Größe
Das Baugrundstück wurde ganzjährig gepflegt und bietet hervorragende Entwicklungsmöglichkeiten.
Bau mehrerer Einfamilienhäuser
Bau von Luxusvillen mit Swimmingpool
Kombination aus Wohn- und Kapitalanlagenutzung
Große Grundstücke dieser Art sind in Šišan äußerst selten, und der Markt verzeichnet eine starke Nachfrage nach neuen Wohneinheiten in dieser Gegend.
Lagevorteile
Šišan ist ein ruhiges istrisches Dorf, bekannt für seine grüne Umgebung, großzügige Grundstücke, hervorragende Radwege und die Nähe zu unberührten Stränden.
Ruhe, Privatsphäre und Natur
Ideales Umfeld für Familien
Hohe Nachfrage nach Mietwohnungen in den Sommermonaten
Nähe zu touristischen Zentren, aber ohne Lärm und Menschenmassen
Hervorragende Verkehrsanbindung
5 Min. nach Ližnjan
7 Min. nach Medulin
10 Min. nach Pula
Šišan hat sich in den letzten Jahren stark entwickelt und ist dank seiner großen Grundstücke, der vielen Grünflächen und der strategischen Lage zwischen Medulin und Pula zu einem begehrten Wohngebiet geworden.
Wir stehen Ihnen bei Fragen gerne zur Verfügung – verpassen Sie diese einmalige Gelegenheit nicht!
Sehr geehrte Kunden, die Vermittlungsprovision wird gemäß den Allgemeinen Geschäftsbedingungen berechnet: www.dux-nekretnine.hr/opci-uvjeti-poslovanja
ID CODE: 44080
HERVORRAGENDE INVESTITIONSMÖGLICHKEIT IN RUHIGER LAGE
In der begehrten Lage von Šišan steht ein geräumiges Haus mit 157 m² Wohnfläche und einem m² großen, angelegten Garten zum Verkauf. Das zusätzliche Baugrundstück umfasst m² und bietet vielfältige Möglichkeiten für die Entwicklung von Mehrfamilienhäusern, Einfamilienhäusern oder luxuriösen Villen mit Pool.
Das Anwesen befindet sich in einer ruhigen, grünen Straße und ist gleichzeitig nur wenige Autominuten vom Meer sowie von Medulin, Ližnjan und Pula entfernt. Diese seltene Gelegenheit vereint hochwertige Bauweise, großzügige Fläche und wirtschaftliches Potenzial.
Saubere Unterlagen, Alleineigentum
Hausmerkmale
Baujahr: 2013
Innenausbau noch nicht fertiggestellt – ideal zur individuellen Gestaltung Außenwände: Kalkputz + 29 cm Ziegelstein + 4 cm Wärmedämmung
Tragende Wände: 25 cm Ziegelstein
Trennwände: Porenbeton
Stahlbetondecken zwischen den Geschossen
Wasser- und Elektroinstallation abgeschlossen (Stromanschluss vorbereitet)
Hochwertige, wärmedämmende Fassade
Stabiles und langlebiges Gebäude – ideal für viele Jahre Nutzung ohne zusätzliche Investitionen in die Struktur
Grundriss
KELLER – 97,40 m² + Abstellraum 13,75 m²
Zwei große Garagen (Höhe 280 cm)
Umbaumöglichkeit zu einer Taverne, einem Wellnessbereich, einem Hobbyraum, einem Fitnessraum oder einer Wohnung
Zusätzlicher Abstellraum unter der Treppe
ERDGESCHOSS / 1. OBERGESCHOSS
Küche + Essbereich (21,80 m²) mit Zugang zur Terrasse
Wohnzimmer mit Zugang zur Terrasse (7,95 m²)
Zwei Schlafzimmer, eines davon mit eigenem Bad Badezimmer 10,15 m²
Eingangsbereich 9,25 m²
2. OG – Identischer Grundriss und gleiche Größe
Das Baugrundstück wurde ganzjährig gepflegt und bietet hervorragende Entwicklungsmöglichkeiten.
Bau mehrerer Einfamilienhäuser
Bau von Luxusvillen mit Swimmingpool
Kombination aus Wohn- und Kapitalanlagenutzung
Große Grundstücke dieser Art sind in Šišan äußerst selten, und der Markt verzeichnet eine starke Nachfrage nach neuen Wohneinheiten in dieser Gegend.
Lagevorteile
Šišan ist ein ruhiges istrisches Dorf, bekannt für seine grüne Umgebung, großzügige Grundstücke, hervorragende Radwege und die Nähe zu unberührten Stränden.
Ruhe, Privatsphäre und Natur
Ideales Umfeld für Familien
Hohe Nachfrage nach Mietwohnungen in den Sommermonaten
Nähe zu touristischen Zentren, aber ohne Lärm und Menschenmassen
Hervorragende Verkehrsanbindung
5 Min. nach Ližnjan
7 Min. nach Medulin
10 Min. nach Pula
Šišan hat sich in den letzten Jahren stark entwickelt und ist dank seiner großen Grundstücke, der vielen Grünflächen und der strategischen Lage zwischen Medulin und Pula zu einem begehrten Wohngebiet geworden.
Wir stehen Ihnen bei Fragen gerne zur Verfügung – verpassen Sie diese einmalige Gelegenheit nicht!
Sehr geehrte Kunden, die Vermittlungsprovision wird gemäß den Allgemeinen Geschäftsbedingungen berechnet: www.dux-nekretnine.hr/opci-uvjeti-poslovanja
ID CODE: 44080