Exposé
Objektart:
Haus
» Bungalow
» Kauf
Standort: Haus »
Deutschland » Sachsen » Kamenz (Kreis) » Pulsnitz
Entdecken Sie den Bungalow-Lifestyle im STREIF Haus Design
streif-bungalow garten
Das Wichtigste auf einen Blick:
| Objektnummer: | 9389568 |
Preise
| Kaufpreis | 599.195 € |
| Nebenkosten | keine Angabe |
Flächen
| Wohnfläche | 107 m² |
| Nutzfläche | 107 m² |
| Grundstücksfläche | 523 m² |
Objekt Adresse
01896 Pulsnitz
Sonstige Angaben
| Baujahr | 2027 |
| Zimmer | 3 |
| Verfügbar ab | keine Angabe |
| Bad | 1 |
| Anzahl der Etagen im Haus | 1 |
| Küche | Offene Küche |
| Bad | 1 |
| Bad | Dusche, Wanne, Fenster |
| Energietyp | KfW-40 |
| Energieträger/Befeuerung | Luft-Wärme-Pumpe |
Objektbeschreibung
Bungalow mit Satteldach mit flexiblem Raumkonzept
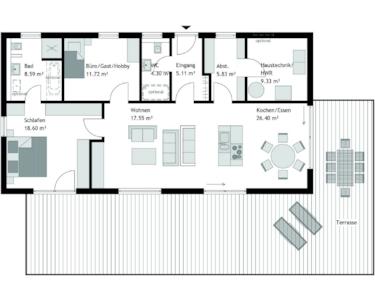
Entdecken Sie die Möglichkeiten, Ihr Traumhaus als Bungalow mit einem Satteldach zu realisieren und erleben Sie eine zeitgemäße Architektur gepaart mit einem einzigartigen Raumkonzept. Der Wohn-/Ess- und Kochbereich erstreckt sich über großzügige 44 m² und bietet höchsten Komfort. Eine halbhohe Wand, die optional auch raumhoch sein kann, trennt geschickt den Koch- vom Wohnbereich und schafft so eine harmonische Balance zwischen gemeinsamen Beisammensein und klarer Struktur. Große Panoramafenster sowie eine geräumige Panorama-Hebeschiebetür sorgen für ein helles und offenes Ambiente, das Innen- und Außenbereich harmonisch miteinander verbindet. Der Schlafbereich überzeugt mit großzügiger Stellfläche für Schränke und einem direkten Zugang zum geräumigen Badezimmer. Ein zusätzlicher Raum, flexibel als Büro, Gäste- oder Hobbyraum nutzbar, sowie ein zweites Badezimmer mit optionaler Dusche, runden das Raumangebot ab. Auf Anfrage kann der Grundriss des Bungalows auch barrierefrei gestaltet werden, um allen individuellen Bedürfnissen gerecht zu werden.
Entdecken Sie die Möglichkeiten, Ihr Traumhaus als Bungalow mit einem Satteldach zu realisieren und erleben Sie eine zeitgemäße Architektur gepaart mit einem einzigartigen Raumkonzept. Der Wohn-/Ess- und Kochbereich erstreckt sich über großzügige 44 m² und bietet höchsten Komfort. Eine halbhohe Wand, die optional auch raumhoch sein kann, trennt geschickt den Koch- vom Wohnbereich und schafft so eine harmonische Balance zwischen gemeinsamen Beisammensein und klarer Struktur. Große Panoramafenster sowie eine geräumige Panorama-Hebeschiebetür sorgen für ein helles und offenes Ambiente, das Innen- und Außenbereich harmonisch miteinander verbindet. Der Schlafbereich überzeugt mit großzügiger Stellfläche für Schränke und einem direkten Zugang zum geräumigen Badezimmer. Ein zusätzlicher Raum, flexibel als Büro, Gäste- oder Hobbyraum nutzbar, sowie ein zweites Badezimmer mit optionaler Dusche, runden das Raumangebot ab. Auf Anfrage kann der Grundriss des Bungalows auch barrierefrei gestaltet werden, um allen individuellen Bedürfnissen gerecht zu werden.
Ausstattung
Das Streif City Haus wird im Standard KFW 40 PLUS ausgeführt. KfW Effizienshaus inkl. Haustechnik aus dem STREIF-Programm in der Ausbaustufe FF+ inklusive einer gedämmten Fundamentplatte.
■ Rohbau (geschlossene Gebäudehülle) mit Fenstern, Haustür, Dacheindeckung
■ Außenfassade inkl. Außenputz, vor Ort komplett fertiggestellt
■ Komplette Blechner-/Spenglerarbeiten
■ lnnen-/Außenwände wärme- und schallgedämmt und mit Gipsfaserplatten geschlossen
■ Geschosstreppe (außer Bungalow)
■ Decken wärme- und schallgedämmt und mit Gipskarton Bauplatten geschlossen
■ Elektroinstallation, einschließlich erforderlichem Zählerschrank und Inbetriebnahme
■ Heizungsanlage inkl. Inbetriebnahme
■ Innenfensterbänke Kunststeinbänke (Gussmarmorbänke) inkl. Einbau
■ Estrich
■ Sanitärräume mit Wand- und Bodenfliesen
■ Sanitärräume mit Sanitärobjekten
■ 6,23 kWp Photovoltaikanlage und 7,7 kWh Speicher
Die Innentüren sowie Wand-, Decken- und Bodenbeläge der übrigen Räume sind Eigenleistungen des Bauherren.
STREIF Frischluft-Wärmepumpen-Technologie - inklusive
- Heizen mit frischer Außenluft
- Kein Gasanschluss, kein Öl- oder Pelletlagerraum
- Keine Heizkörper
- Wärmetauscher mit bis zu 85% Wärmerückgewinnung
Die dargestellten Bilder können Sonderausstattungen beinhalten, die nicht im Preis enthalten sind!
zzgl. Ortüblicher Baunebenkosten
Selbstverständlich können wir Ihr Haus auch schlüsselfertig / bezugsfertig errichten.
■ Bodenbeläge, Sockelleisten verlegt
■ Maler- und Tapezierarbeiten
■ Innentüren inkl. Einbau
■ Rohbau (geschlossene Gebäudehülle) mit Fenstern, Haustür, Dacheindeckung
■ Außenfassade inkl. Außenputz, vor Ort komplett fertiggestellt
■ Komplette Blechner-/Spenglerarbeiten
■ lnnen-/Außenwände wärme- und schallgedämmt und mit Gipsfaserplatten geschlossen
■ Geschosstreppe (außer Bungalow)
■ Decken wärme- und schallgedämmt und mit Gipskarton Bauplatten geschlossen
■ Elektroinstallation, einschließlich erforderlichem Zählerschrank und Inbetriebnahme
■ Heizungsanlage inkl. Inbetriebnahme
■ Innenfensterbänke Kunststeinbänke (Gussmarmorbänke) inkl. Einbau
■ Estrich
■ Sanitärräume mit Wand- und Bodenfliesen
■ Sanitärräume mit Sanitärobjekten
■ 6,23 kWp Photovoltaikanlage und 7,7 kWh Speicher
Die Innentüren sowie Wand-, Decken- und Bodenbeläge der übrigen Räume sind Eigenleistungen des Bauherren.
STREIF Frischluft-Wärmepumpen-Technologie - inklusive
- Heizen mit frischer Außenluft
- Kein Gasanschluss, kein Öl- oder Pelletlagerraum
- Keine Heizkörper
- Wärmetauscher mit bis zu 85% Wärmerückgewinnung
Die dargestellten Bilder können Sonderausstattungen beinhalten, die nicht im Preis enthalten sind!
zzgl. Ortüblicher Baunebenkosten
Selbstverständlich können wir Ihr Haus auch schlüsselfertig / bezugsfertig errichten.
■ Bodenbeläge, Sockelleisten verlegt
■ Maler- und Tapezierarbeiten
■ Innentüren inkl. Einbau
Lage des Objektes
Pulsnitz ist eine kleine Stadt im Landkreis Bautzen in Sachsen, etwa 20 Kilometer nordöstlich von Dresden gelegen. Die Stadt liegt malerisch in der Nähe des Pulsnitzflusses und ist von einer reizvollen, ländlichen Umgebung umgeben, die sich ideal für Outdoor-Aktivitäten wie Wandern und Radfahren eignet.
Die Anbindung an das Verkehrsnetz ist gut, da Pulsnitz über die Bundesstraße B98 erreichbar ist, die eine Verbindung zu den umliegenden Städten und zur Autobahn A4 bietet. Diese Lage ermöglicht es den Bewohnern, sowohl die Vorzüge des ländlichen Lebens als auch die Nähe zu größeren Städten wie Dresden und Bautzen zu genießen.
Pulsnitz hat eine charmante Altstadt mit historischen Gebäuden und einer angenehmen Atmosphäre. Die Stadt bietet eine grundlegende Infrastruktur mit Einkaufsmöglichkeiten, Schulen und medizinischen Einrichtungen, die den täglichen Bedarf der Einwohner decken. Zudem ist Pulsnitz bekannt für ihre traditionsreiche Handwerkskunst, insbesondere in der Herstellung von Süßwaren, was der Stadt einen besonderen Charakter verleiht.
Insgesamt bietet Pulsnitz eine harmonische Kombination aus ländlicher Idylle, guter Erreichbarkeit und einem freundlichen Gemeinschaftsleben, was es zu einem attraktiven Wohnort für Familien und Naturliebhaber macht.
Die Anbindung an das Verkehrsnetz ist gut, da Pulsnitz über die Bundesstraße B98 erreichbar ist, die eine Verbindung zu den umliegenden Städten und zur Autobahn A4 bietet. Diese Lage ermöglicht es den Bewohnern, sowohl die Vorzüge des ländlichen Lebens als auch die Nähe zu größeren Städten wie Dresden und Bautzen zu genießen.
Pulsnitz hat eine charmante Altstadt mit historischen Gebäuden und einer angenehmen Atmosphäre. Die Stadt bietet eine grundlegende Infrastruktur mit Einkaufsmöglichkeiten, Schulen und medizinischen Einrichtungen, die den täglichen Bedarf der Einwohner decken. Zudem ist Pulsnitz bekannt für ihre traditionsreiche Handwerkskunst, insbesondere in der Herstellung von Süßwaren, was der Stadt einen besonderen Charakter verleiht.
Insgesamt bietet Pulsnitz eine harmonische Kombination aus ländlicher Idylle, guter Erreichbarkeit und einem freundlichen Gemeinschaftsleben, was es zu einem attraktiven Wohnort für Familien und Naturliebhaber macht.
Sonstige Informationen
Sie brauchen einen kompetenten und verlässlichen Baupartner? Wir stehen Ihnen von Anfang an zur Seite und begleiten Sie auf dem Weg in Ihr Eigenheim.
Mit großem Engagement, Persönlichkeit und der Fachfirma STREIF mit immensen Bau-Know-how, die seit 1929 auf über 90.000 realisierte Wohnträume zurückblicken kann.
Jedes Haus von STREIF wird individuell als Energiesparhaus geplant und gebaut. Eine nachhaltige, ökologische und wohngesunde Bauweise, eine zertifizierte Ausführungsqualität und eine kurze Bauzeit, dafür stehen wir.
Gerne beraten wir Sie nach Vereinbarung im Musterhaus Dresden Schönefeld oder ganz unkompliziert bei Ihnen zu Hause und erstellen Ihnen ein Angebot mit einer realistisch ermittelten Aufstellung der Gesamt-Investition.
Wir freuen uns auf Ihren Anruf / Nachricht!
Ihr STREIF Fachberater
Frank Strobel
E-Mail: frank.strobel@streif.de
Mobil: 0172 - 9374300
Hinweis:
Vorverkauf und Irrtümer vorbehalten. Bilder können Sonderbauteile darstellen, die im Preis nicht enthalten sind und abweichend von textlichen Inhalten sein.
zzgl. Baunebenkosten.
Der Grundstückserwerb stellt keine STREIF Leistung dar.
Hinweis zu den gesetzlichen Pflichtangaben gemäß der EnEV 2016: Bei dem hier angebotenen Haus handelt es sich um ein Neubauprojekt.
Wir weisen darauf hin, dass zu diesem projektierten Haus noch kein Energieausweis vorliegt. Der Energieausweis wird Ihnen spätestens im Rahmen der Erstellung des Objektes ausgehändigt
Grundriss Erdgeschoss
Frank Strobel
Streif Haus Barrierefrei leben
Musterhaus Dresden
Musterhaus
Dusche
Wohnzimmer Sitzecke
Kamin
Fairster Kundenservice ()
Höchste Nachhaltigkeit - Kopie
Fairstes Preis-Leistung
Höchste Nachhaltigkeit
Fairster Fertighaushersteller
Fairstes Preis-Leistung - Kopie
QR-Code