Exposé
Objektart:
Wohnung
» Terrassen
» Kauf
Standort: Wohnung »
Deutschland » Berlin » Berlin, Stadt (Kreis) » Berlin
Provisionsfreie Gartenwohnung nahe dem Helmholtzplatz 93 m² Wohnfläche + 82 m² Garten
Das Wichtigste auf einen Blick:
| Objektnummer: | 9388930 |
Preise
| Kaufpreis | 669.000 € |
| Nebenkosten | keine Angabe |
Flächen
| Wohnfläche | 93 m² |
| Maklerprovision | keine Provision, courtagefrei |
Objekt Adresse
Duncker Str. 20
10437 Berlin
- Berlin
Sonstige Angaben
| Baujahr | 1898 |
| Zimmer | 2 |
| Verfügbar ab | nach Absprache |
| Inserat befindet sich im Stockwerk | 0 |
| Bad | Wanne |
| Boden | Fliesen, Laminat |
| Balkone | 0 |
| Garten | Ja |
| Terrassen | 1 |
| Energieausweistyp | Verbrauch |
| Energieverbrauchkennwert | 69 kWh/(m²*a) |
| Heizungsart | Zentralheizung |
| Energieträger/Befeuerung | Gas |
Objektbeschreibung
Provisionsfreie Gartenwohnung nahe dem Helmholtzplatz
93 m² Wohnfläche + 82 m² Garten
PRIVAT VERKAUFT.
Zum Verkauf steht eine charmante Gartenwohnung in der Dunckerstraße – nur wenige Schritte vom beliebten Helmholtzplatz entfernt. Die Wohnung befindet sich im Erdgeschoss eines gepflegten Altbaus und bietet eine Wohnfläche von ca. 93 m² sowie einen großzügigen Garten mit ca. 82 m². Der Verkauf erfolgt provisionsfrei von privat.
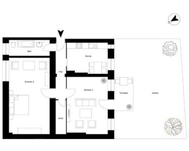
Aktueller Grundriss:
Die Wohnung ist derzeit als großzügige 2-Zimmer-Wohnung gestaltet und verfügt über ein Wohnzimmer, ein Schlafzimmer, eine Küche, ein Badezimmer, eine Abstellkammer sowie den Garten. (Siehe Grundriss und Fotos.)
Gestaltungsmöglichkeiten:
Durch eine Renovierung wäre eine Umgestaltung zur 3-Zimmer-Wohnung möglich. Auch eine offene Wohnküche zum Wohnzimmer oder andere individuelle Raumkonzepte lassen sich gut realisieren.
Besonderheiten:
Das Highlight dieser Wohnung ist der große Garten – eine grüne Oase mitten in Berlin-Prenzlauer Berg, ideal zum Entspannen, Gärtnern oder für Haustiere. Ideal für Menschen mit Hunden, Katzen oder sonstige Tiere…
Barrierearm:
Die Wohnung eignet sich hervorragend für Paare, kleine Familien, Senioren oder Menschen mit eingeschränkter Mobilität. Der Zugang ist nahezu barrierefrei – lediglich drei Stufen trennen den Eingang von der Wohnung, die mit einer kleinen Rampe überwindbar wären.
Weitere Vorteile:
Sofort bezugsfrei – ideal zur Eigennutzung oder als Kapitalanlage. Ein sofortiger Einzug durch den neuen Eigentümer ist möglich.
93 m² Wohnfläche + 82 m² Garten
PRIVAT VERKAUFT.
Zum Verkauf steht eine charmante Gartenwohnung in der Dunckerstraße – nur wenige Schritte vom beliebten Helmholtzplatz entfernt. Die Wohnung befindet sich im Erdgeschoss eines gepflegten Altbaus und bietet eine Wohnfläche von ca. 93 m² sowie einen großzügigen Garten mit ca. 82 m². Der Verkauf erfolgt provisionsfrei von privat.
Aktueller Grundriss:
Die Wohnung ist derzeit als großzügige 2-Zimmer-Wohnung gestaltet und verfügt über ein Wohnzimmer, ein Schlafzimmer, eine Küche, ein Badezimmer, eine Abstellkammer sowie den Garten. (Siehe Grundriss und Fotos.)
Gestaltungsmöglichkeiten:
Durch eine Renovierung wäre eine Umgestaltung zur 3-Zimmer-Wohnung möglich. Auch eine offene Wohnküche zum Wohnzimmer oder andere individuelle Raumkonzepte lassen sich gut realisieren.
Besonderheiten:
Das Highlight dieser Wohnung ist der große Garten – eine grüne Oase mitten in Berlin-Prenzlauer Berg, ideal zum Entspannen, Gärtnern oder für Haustiere. Ideal für Menschen mit Hunden, Katzen oder sonstige Tiere…
Barrierearm:
Die Wohnung eignet sich hervorragend für Paare, kleine Familien, Senioren oder Menschen mit eingeschränkter Mobilität. Der Zugang ist nahezu barrierefrei – lediglich drei Stufen trennen den Eingang von der Wohnung, die mit einer kleinen Rampe überwindbar wären.
Weitere Vorteile:
Sofort bezugsfrei – ideal zur Eigennutzung oder als Kapitalanlage. Ein sofortiger Einzug durch den neuen Eigentümer ist möglich.
Ausstattung
Terrasse, Garten, Vollbad, Laminat, Fliesen
Bemerkungen:
Ausstattung:
• Gepflegter Altbau mit historischem Charme (Baujahr 1898)
• Terrasse/Garten. 82 m² großer Garten zur alleinigen Nutzung
• Einbauküche
• Sehr gute Raumaufteilung
• Tageslichtbad mit Badewanne
• Laminatboden
• Keller und Abstellkammer in der Wohnung
• Zentrale Gasheizung
• Gepflegter Objektzustand
• Hausgeld: 350 €/Monat
• Instandhaltungsrücklage: 138,90 €/Monat
• Gesamtrücklagen: ca. 60.000 €
• Individuelle Grundrissgestaltung möglich
• Sofort bezugsfrei
Energie
Baujahr (gemäß Energieausweis): 1898
Endenergiebedarf: 69 kWh(m²*a)
Energieausweis: Energieverbrauchsausweis
Energieeffizienzklasse: B
Energieverbrauch für Warmwasser enthalten
Energieverbrauch: 69 kWh(m²*a)
Heizungsart: Zentralheizung
Wesentliche Energieträger: Gas
Für Fragen bin ich gerne zu Verfügung. Weitere Fotos Infos und Unterlage auf Anfrage.
Bemerkungen:
Ausstattung:
• Gepflegter Altbau mit historischem Charme (Baujahr 1898)
• Terrasse/Garten. 82 m² großer Garten zur alleinigen Nutzung
• Einbauküche
• Sehr gute Raumaufteilung
• Tageslichtbad mit Badewanne
• Laminatboden
• Keller und Abstellkammer in der Wohnung
• Zentrale Gasheizung
• Gepflegter Objektzustand
• Hausgeld: 350 €/Monat
• Instandhaltungsrücklage: 138,90 €/Monat
• Gesamtrücklagen: ca. 60.000 €
• Individuelle Grundrissgestaltung möglich
• Sofort bezugsfrei
Energie
Baujahr (gemäß Energieausweis): 1898
Endenergiebedarf: 69 kWh(m²*a)
Energieausweis: Energieverbrauchsausweis
Energieeffizienzklasse: B
Energieverbrauch für Warmwasser enthalten
Energieverbrauch: 69 kWh(m²*a)
Heizungsart: Zentralheizung
Wesentliche Energieträger: Gas
Für Fragen bin ich gerne zu Verfügung. Weitere Fotos Infos und Unterlage auf Anfrage.
Lage des Objektes
Lage – Leben am Helmholtzplatz in der Dunckerstraße
Die Wohnung befindet sich in der begehrten Dunckerstraße, nur wenige Schritte vom beliebten Helmholtzplatz entfernt – einem der charmantesten Kieze im Herzen von Berlin-Prenzlauer Berg. Die Umgebung ist geprägt von historischen Altbauten, kleinen Cafés, Boutiquen, Bio-Supermärkten und einem lebendigen Kiezleben. Der Helmholtzplatz ist ein beliebter Treffpunkt für Familien, Kreative und Genießer und bietet Grünflächen, Spielplätze sowie eine hervorragende Infrastruktur. Dank der hervorragenden Anbindung an den öffentlichen Nahverkehr (S-Bahn, U-Bahn, Tram und Bus) erreicht man das Berliner Stadtzentrum in wenigen Minuten. Eine Lage, die urbanes Leben und entspannte Nachbarschaft ideal vereint.
Infrastruktur (im Umkreis von 5 km):
Apotheke, Lebensmittel-Discount, Allgemeinmediziner, Kindergarten, Grundschule, Hauptschule, Realschule, Gymnasium, Gesamtschule, Öffentliche Verkehrsmittel
Die Wohnung befindet sich in der begehrten Dunckerstraße, nur wenige Schritte vom beliebten Helmholtzplatz entfernt – einem der charmantesten Kieze im Herzen von Berlin-Prenzlauer Berg. Die Umgebung ist geprägt von historischen Altbauten, kleinen Cafés, Boutiquen, Bio-Supermärkten und einem lebendigen Kiezleben. Der Helmholtzplatz ist ein beliebter Treffpunkt für Familien, Kreative und Genießer und bietet Grünflächen, Spielplätze sowie eine hervorragende Infrastruktur. Dank der hervorragenden Anbindung an den öffentlichen Nahverkehr (S-Bahn, U-Bahn, Tram und Bus) erreicht man das Berliner Stadtzentrum in wenigen Minuten. Eine Lage, die urbanes Leben und entspannte Nachbarschaft ideal vereint.
Infrastruktur (im Umkreis von 5 km):
Apotheke, Lebensmittel-Discount, Allgemeinmediziner, Kindergarten, Grundschule, Hauptschule, Realschule, Gymnasium, Gesamtschule, Öffentliche Verkehrsmittel
Sonstige Informationen
Heizungsart: Zentralheizung
Energieträger: Gas
Makleranfragen nicht erwünscht. Nach § 7 UWG sind unaufgeforderte Kontaktaufnahmen durch Makler ohne ausdrückliche Einwilligung des Empfängers verboten!
ohne-makler (OM) ist weder Anbieter noch Vermittler der Immobilie. OM betreibt eine Plattform für Immobilieneigentümer, die unter anderem die gleichzeitige Veröffentlichung einzelner Inserate auf mehreren Immobilienportalen ermöglicht. Die Inhalte dieser Inserate werden ausschließlich von Dritten verantwortet. Für die Richtigkeit, Vollständigkeit oder Rechtmäßigkeit der Angaben übernimmt OM keine Haftung. Hinweise auf mögliche Rechtsverstöße können jederzeit gemeldet werden und werden nach Prüfung umgehend bearbeitet.