Exposé
Objektart:
Haus
» Einfamilienhaus
» Kauf
Standort: Haus »
Deutschland » Bayern » Augsburg (Kreis) » Meitingen
Freistehendes Einfamilienhaus in familienfreundlicher Lage
Ostansicht
Das Wichtigste auf einen Blick:
| Objektnummer: | 9388731 |
Preise
| Kaufpreis | 370.000 € |
| Nebenkosten | keine Angabe |
Flächen
| Wohnfläche | 159 m² |
| Grundstücksfläche | 621 m² |
| Maklerprovision | keine Provision, courtagefrei |
Objekt Adresse
86405 Meitingen
- Bayern
Sonstige Angaben
| Baujahr | 1955 |
| Zimmer | 6 |
| Verfügbar ab | sofort |
| Bad | 2 |
| Garage/Stellplätze | 1 |
| Anzahl der Etagen im Haus | 2 |
| Bad | 2 |
| Balkone | 0 |
| Garten | Ja |
| Terrassen | 1 |
| Garage/Stellplätze | 1 |
| Keller | Ja |
| Energieausweistyp | Bedarfsausweis |
| Energieeffizienzklasse | H |
| Endenergiebedarf | 258 kWh/(m²*a) |
| Heizungsart | Zentralheizung |
| Energieträger/Befeuerung | Öl |
Objektbeschreibung
Privatverkauf, Provisionsfrei
Sofort Bezugsfrei
Besichtigungstermin nur mit Finanzierungsbestätigung.
Das Haus wurde 1955 erbaut, 1964 wurde es um einen Ostanbau und der dort angrenzenden großzügigen überdachten Terasse erweitert.
Beide Bereiche sind unterkellert.
Im OG befindet sich Richtung Nordseite eine Gaube 1970 wurde die Garage mit angrenzender Heimwerkstatt errichtet.
Das elektrische Garagentor wurde Anfang der 2000er nachgerüstet.
1981 wurde das Dach komplett erneuert.
2005 wurden im Altbau die Fenster auf doppelt verglaste Kunststofffenster gewechselt.
Die Ölheizung ist von 2010, 2025 wurde der ursprüngliche Stahltank stillgelegt.
Aufgrund des Alters ist das Haus Sanierungsbedürftig
Das Objekt ist mittlerweile weitestgehend ausgeräumt (Abweichungen zu Bildern)
Alle Angaben ohne Gewähr. Änderungen und Irrtümer
vorbehalten.
Sofort Bezugsfrei
Besichtigungstermin nur mit Finanzierungsbestätigung.
Das Haus wurde 1955 erbaut, 1964 wurde es um einen Ostanbau und der dort angrenzenden großzügigen überdachten Terasse erweitert.
Beide Bereiche sind unterkellert.
Im OG befindet sich Richtung Nordseite eine Gaube 1970 wurde die Garage mit angrenzender Heimwerkstatt errichtet.
Das elektrische Garagentor wurde Anfang der 2000er nachgerüstet.
1981 wurde das Dach komplett erneuert.
2005 wurden im Altbau die Fenster auf doppelt verglaste Kunststofffenster gewechselt.
Die Ölheizung ist von 2010, 2025 wurde der ursprüngliche Stahltank stillgelegt.
Aufgrund des Alters ist das Haus Sanierungsbedürftig
Das Objekt ist mittlerweile weitestgehend ausgeräumt (Abweichungen zu Bildern)
Alle Angaben ohne Gewähr. Änderungen und Irrtümer
vorbehalten.
Ausstattung
Terrasse, Garten, Keller
Bemerkungen:
Der Kachelofen im Wohnessbereich darf weiterhin betrieben werden.
Einbauschränke im OG in den Dachschrägen
Gartenhütte aus Metall
Bemerkungen:
Der Kachelofen im Wohnessbereich darf weiterhin betrieben werden.
Einbauschränke im OG in den Dachschrägen
Gartenhütte aus Metall
Lage des Objektes
Das Objekt befindet sich in Meitingen, Herbertshofen, im Landkreis Augsburg. Der Ort liegt ruhig, aber verkehrsgünstig zwischen Augsburg und Donauwörth. Geschäfte für den täglichen Bedarf, Ärzte, eine Schule und Kindergärten sind direkt im Ort in wenigen Minuten erreichbar.
Infrastruktur (im Umkreis von 5 km):
Apotheke, Lebensmittel-Discount, Allgemeinmediziner, Kindergarten, Grundschule, Öffentliche Verkehrsmittel
Infrastruktur (im Umkreis von 5 km):
Apotheke, Lebensmittel-Discount, Allgemeinmediziner, Kindergarten, Grundschule, Öffentliche Verkehrsmittel
Sonstige Informationen
Heizungsart: Zentralheizung
Energieträger: Öl
Makleranfragen nicht erwünscht. Nach § 7 UWG sind unaufgeforderte Kontaktaufnahmen durch Makler ohne ausdrückliche Einwilligung des Empfängers verboten!
ohne-makler (OM) ist weder Anbieter noch Vermittler der Immobilie. OM betreibt eine Plattform für Immobilieneigentümer, die unter anderem die gleichzeitige Veröffentlichung einzelner Inserate auf mehreren Immobilienportalen ermöglicht. Die Inhalte dieser Inserate werden ausschließlich von Dritten verantwortet. Für die Richtigkeit, Vollständigkeit oder Rechtmäßigkeit der Angaben übernimmt OM keine Haftung. Hinweise auf mögliche Rechtsverstöße können jederzeit gemeldet werden und werden nach Prüfung umgehend bearbeitet.
Haustüre Südseite
Diele
Wohnbereich EG
Essbereich
Küche
Badezimmer EG
Schlafzimmer EG
Wohnzimmer EG
Treppe
Diele OG
Arbeitszimmer OG
kleines Schlafzimmer OG Gaube
Badezimmer OG
großes Schlafzimmer OG
großes Schlafzimmer OG
Terasse Ostseite
Garage
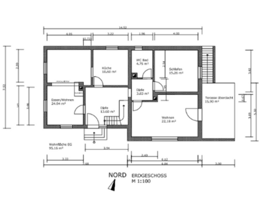
Grundriss EG
Grundriss OG
Grundriss Keller
Grundstück inkl bebaute Fläche