Exposé
Objektart:
Haus
» Einfamilienhaus
» Kauf
Standort: Haus »
Deutschland » Brandenburg » Oberhavel (Kreis) » Kremmen
kernsanierte WellnessOase mit maximaler Privatsphäre
Das Wichtigste auf einen Blick:
| Objektnummer: | 9385023 |
Preise
| Kaufpreis | 335.000 € |
| Nebenkosten | keine Angabe |
Flächen
| Wohnfläche | 104,51 m² |
| Nutzfläche | 49,48 m² |
| Gesamtfläche | 736 m² |
| Grundstücksfläche | 736 m² |
| Maklerprovision | 3,57% inkl. 19.00% MwSt. |
Objekt Adresse
16766 Kremmen
Sonstige Angaben
| Baujahr | 1920 |
| Zimmer | 4 |
| Verfügbar ab | keine Angabe |
| Bad | 2 |
| Anzahl der Etagen im Haus | 3 |
| Küche | Einbauküche |
| Bad | 2 |
| Bad | Dusche, Wanne, Fenster |
| Boden | Laminat |
| Garten | Ja |
Objektbeschreibung
Willkommen in Ihrem neuen Zuhause, welches 2000 umfassend kernsaniert wurde und modernes Wohnen mit absoluter Ruhe verbindet.
Highlights auf einen Blick:
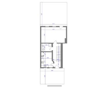
• Auf ca. 105 m² Wohnfläche und weiteren ca. 50 m² Nutzfläche bietet dieses Haus ein exklusives Wohnerlebnis über drei Ebenen
• EG: Offener Wohn-/Essbereich, moderne Einbauküche
• OG: Zwei helle Zimmer und ein elegantes Wannenbad mit Fenster.
• DG: Ein zusätzlich ausgebautes Zimmer, ideal als Home-Office, Atelier oder Gästezimmer
• ca. 735 m² großes Grundstück bietet viel Privatsphäre.
• Doppelgarage und 1–2 weitere Außenstellplätze runden das Angebot ab.
Das Herzstück des Hauses: Der großzügige, lichtdurchflutete Wohn- und Essbereich im Erdgeschoss bildet das Zentrum Ihres neuen Zuhauses. Von hier aus treten Sie direkt auf die traumhafte, fast 30 m² große Terrasse im geschützten Hinterhof. Dieser uneinsehbare Garten ist ein echtes Highlight: Er bietet nicht nur Platz für eine stilvolle Lounge-Ecke, sondern ist bereits für Ihren eigenen Whirlpool prädestiniert – pure Entspannung garantiert!
Habe ich Sie neugierig gemacht? Nehmen Sie Kontakt auf, für eine unverbindliche Besichtigung
Highlights auf einen Blick:
• Auf ca. 105 m² Wohnfläche und weiteren ca. 50 m² Nutzfläche bietet dieses Haus ein exklusives Wohnerlebnis über drei Ebenen
• EG: Offener Wohn-/Essbereich, moderne Einbauküche
• OG: Zwei helle Zimmer und ein elegantes Wannenbad mit Fenster.
• DG: Ein zusätzlich ausgebautes Zimmer, ideal als Home-Office, Atelier oder Gästezimmer
• ca. 735 m² großes Grundstück bietet viel Privatsphäre.
• Doppelgarage und 1–2 weitere Außenstellplätze runden das Angebot ab.
Das Herzstück des Hauses: Der großzügige, lichtdurchflutete Wohn- und Essbereich im Erdgeschoss bildet das Zentrum Ihres neuen Zuhauses. Von hier aus treten Sie direkt auf die traumhafte, fast 30 m² große Terrasse im geschützten Hinterhof. Dieser uneinsehbare Garten ist ein echtes Highlight: Er bietet nicht nur Platz für eine stilvolle Lounge-Ecke, sondern ist bereits für Ihren eigenen Whirlpool prädestiniert – pure Entspannung garantiert!
Habe ich Sie neugierig gemacht? Nehmen Sie Kontakt auf, für eine unverbindliche Besichtigung
Lage des Objektes
Ländliche Idylle mit perfektem Anschluss
Das Objekt befindet sich im gutbürgerlichen Kremmener Ortsteil Flatow. Hier wohnen Sie umgeben von weiten Feldern und märkischer Natur, ohne auf eine moderne Infrastruktur verzichten zu müssen.
Bildung & Familie: Die Kita „Spatzennest“ ist nur ca. 600 m entfernt (7 Min. Fußweg). Grund- und Oberschulen befinden sich im nahen Kremmen (ca. 6 km / 8 Automin.), sicher erreichbar mit dem Schulbus.
Mobilität: Ein Highlight für Pendler! Die Autobahnauffahrt Kremmen (A24) liegt fast vor der Tür (ca. 2,5 km / 3 Automin.). Die Berliner Stadtgrenze erreichen Sie in nur ca. 20 Min. Der Bahnhof Flatow (1,2 km / 15 Min. Fußweg) bietet mit dem RB55 eine entspannte Anbindung Richtung Berlin/Kremmen.
Versorgung & Freizeit: Für den täglichen Einkauf bietet Flatow lokale Angebote (Bäcker/Hofläden). Große Supermärkte, Ärzte und Apotheken finden Sie im 6 km entfernten Kremmen. Die Freizeitqualität ist hoch: Der berühmte Spargelhof Kremmen und das historische Scheunenviertel sind in 8 Min. mit dem Auto erreicht. Die umliegenden Wälder und Seen laden zu ausgiebigen Outdoor-Aktivitäten ein.
Flatow - hier ist die Welt noch in Ordnung.
Das Objekt befindet sich im gutbürgerlichen Kremmener Ortsteil Flatow. Hier wohnen Sie umgeben von weiten Feldern und märkischer Natur, ohne auf eine moderne Infrastruktur verzichten zu müssen.
Bildung & Familie: Die Kita „Spatzennest“ ist nur ca. 600 m entfernt (7 Min. Fußweg). Grund- und Oberschulen befinden sich im nahen Kremmen (ca. 6 km / 8 Automin.), sicher erreichbar mit dem Schulbus.
Mobilität: Ein Highlight für Pendler! Die Autobahnauffahrt Kremmen (A24) liegt fast vor der Tür (ca. 2,5 km / 3 Automin.). Die Berliner Stadtgrenze erreichen Sie in nur ca. 20 Min. Der Bahnhof Flatow (1,2 km / 15 Min. Fußweg) bietet mit dem RB55 eine entspannte Anbindung Richtung Berlin/Kremmen.
Versorgung & Freizeit: Für den täglichen Einkauf bietet Flatow lokale Angebote (Bäcker/Hofläden). Große Supermärkte, Ärzte und Apotheken finden Sie im 6 km entfernten Kremmen. Die Freizeitqualität ist hoch: Der berühmte Spargelhof Kremmen und das historische Scheunenviertel sind in 8 Min. mit dem Auto erreicht. Die umliegenden Wälder und Seen laden zu ausgiebigen Outdoor-Aktivitäten ein.
Flatow - hier ist die Welt noch in Ordnung.