Exposé
Objektart:
Haus
» Einfamilienhaus
» Kauf
Luxusvilla mit Pool, ideal für den Urlaub, Vinišće – Trogir
Angeboten von:
BONUM NEKRETNINE d.o.o.
Bana Josipa Jelacica 6a
22000 Sibenik
Kroatien
Telefon:00385 95 750 5763
Ansprechpartner/in
Bonum nekretnine| Mobil | 095 750 5763 |
Das Wichtigste auf einen Blick:
| Objektnummer: | 9381744 |
Preise
| Kaufpreis | 850.000 € |
| Nebenkosten | keine Angabe |
Flächen
| Gesamtfläche | 260 m² |
| Grundstücksfläche | 474 m² |
Objekt Adresse
21222 Marina
- Dalmatien-Split [Splitsko-Dalmatinska]
Sonstige Angaben
| Baujahr | 2026 |
| Zimmer | 6 |
| Verfügbar ab | keine Angabe |
| Bad | 4 |
| Anzahl der Etagen im Haus | 1 |
| Bad | 4 |
Objektbeschreibung
U der ruhigen und attraktiven Umgebung von Vinišće, unweit von Trogir, befindet sich eine moderne Villa, die für unbeschwerte Erholung und maximalen Genuss des mediterranen Lebensstils konzipiert wurde. Dank der erhöhten Lage bietet die Immobilie einen schönen Meerblick, während die zeitgemäße Architektur mit großen Glasfronten das Gefühl von Weite und Licht zusätzlich betont.
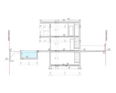
Die Villa erstreckt sich über drei Etagen. Im Untergeschoss befindet sich eine großzügige Spiel-/Konoba-Lounge, ideal für gesellige Abende und zusätzliche Freizeitangebote, sowie ein Vorraum mit Treppenhaus. Das Erdgeschoss ist als offener Wohnbereich mit Wohnzimmer und Küche gestaltet, ergänzt durch Nebenräume (Abstellraum, Hauswirtschaft/Technik) und ein separates WC. Der Wohnraum geht nahtlos in eine großzügige überdachte Terrasse und eine überdachte Sommerküche über – direkt am Pool und der Sonnenterrasse.
Im Obergeschoss stehen vier Schlafzimmer und vier Badezimmer zur Verfügung, was diese Villa sowohl für größere Familien als auch für die touristische Vermietung besonders attraktiv macht. Ein besonderer Vorteil ist die Fußbodenheizung in den Badezimmern und Schlafzimmern, die das ganze Jahr über zusätzlichen Komfort bietet.
Der Außenbereich ist als private Oase mit Pool, Sonnendeck und Entspannungszonen gestaltet. Die überdachte Terrasse und die Sommerküche schaffen das perfekte Ambiente für Mahlzeiten und geselliges Beisammensein im Freien – bei optimaler Nutzung des mediterranen Klimas.
Der Meerblick begleitet das Wohngefühl durch die wichtigsten Innenräume und Außenflächen und vermittelt echtes „Holiday-Home“-Flair.
Vinišće ist bekannt für Ruhe, kristallklares Meer und eine entspannte Atmosphäre und zugleich praktisch mit Trogir sowie allen wichtigen Einrichtungen für Aufenthalt oder Vermietung verbunden. Diese Villa ist eine ausgezeichnete Wahl zur privaten Nutzung und zugleich eine attraktive Investition für luxuriösen Urlaub mit hoher Nachfrage am Mietmarkt.
ID CODE: 872-V4
Die Villa erstreckt sich über drei Etagen. Im Untergeschoss befindet sich eine großzügige Spiel-/Konoba-Lounge, ideal für gesellige Abende und zusätzliche Freizeitangebote, sowie ein Vorraum mit Treppenhaus. Das Erdgeschoss ist als offener Wohnbereich mit Wohnzimmer und Küche gestaltet, ergänzt durch Nebenräume (Abstellraum, Hauswirtschaft/Technik) und ein separates WC. Der Wohnraum geht nahtlos in eine großzügige überdachte Terrasse und eine überdachte Sommerküche über – direkt am Pool und der Sonnenterrasse.
Im Obergeschoss stehen vier Schlafzimmer und vier Badezimmer zur Verfügung, was diese Villa sowohl für größere Familien als auch für die touristische Vermietung besonders attraktiv macht. Ein besonderer Vorteil ist die Fußbodenheizung in den Badezimmern und Schlafzimmern, die das ganze Jahr über zusätzlichen Komfort bietet.
Der Außenbereich ist als private Oase mit Pool, Sonnendeck und Entspannungszonen gestaltet. Die überdachte Terrasse und die Sommerküche schaffen das perfekte Ambiente für Mahlzeiten und geselliges Beisammensein im Freien – bei optimaler Nutzung des mediterranen Klimas.
Der Meerblick begleitet das Wohngefühl durch die wichtigsten Innenräume und Außenflächen und vermittelt echtes „Holiday-Home“-Flair.
Vinišće ist bekannt für Ruhe, kristallklares Meer und eine entspannte Atmosphäre und zugleich praktisch mit Trogir sowie allen wichtigen Einrichtungen für Aufenthalt oder Vermietung verbunden. Diese Villa ist eine ausgezeichnete Wahl zur privaten Nutzung und zugleich eine attraktive Investition für luxuriösen Urlaub mit hoher Nachfrage am Mietmarkt.
ID CODE: 872-V4