Exposé
Objektart:
Haus
» Doppelhaushaelfte
» Kauf
Standort: Haus »
Deutschland » Bayern » Rosenheim (Kreis) » Prien am Chiemsee
Neubau einer voll unterkellerten DHH mit großem Grund in Toplage am Kurpark in Prien am Chiemsee
haus-3-2-logo
Das Wichtigste auf einen Blick:
| Objektnummer: | 9383012 |
Preise
| Kaufpreis | 1.097.000 € |
| Nebenkosten | keine Angabe |
Flächen
| Wohnfläche | 136,5 m² |
| Gesamtfläche | 175 m² |
| Grundstücksfläche | 435 m² |
| Maklerprovision | -Auf den Grundstückskaufpreis 2,38% inkl. MwSt. |
Objekt Adresse
83209 Prien am Chiemsee
Sonstige Angaben
| Baujahr | 2027 |
| Zimmer | 5 |
| Verfügbar ab | Anfang 2027 |
| Garage/Stellplätze | 1 |
| Anzahl der Etagen im Haus | 3 |
| Garage/Stellplätze | 1 |
| Heizungsart | Fußbodenheizung |
| Energieträger/Befeuerung | Luft-Wärme-Pumpe |
Objektbeschreibung
Diese moderne und voll unterkellerte Doppelhaushälfte (EG+OG+DG+Keller) entsteht in Prien am Chiemsee in sehr beliebter und ruhiger Lage. Das Haus wird massiv in Ziegelbauweise mit modernem Wärmedämmverbundsystem gebaut und bietet Ihnen flexible Grundrisse. Es wird nach neuesten energetischen Standards für Sie gebaut und schlüsselfertig übergeben, so dass keine Eigenleistungen notwendig sind. Die Wohnfläche beträgt ca. 136,5 m² (Hobbyraum und Terrasse sind in der Wohnfläche NICHT miteingerechnet), die Nutzfläche nach DIN 277 beträgt ca. 175 m². Das Grundstück hat mit 435 m² eine angenehme Größe und verfügt über einen großen Garten. Das Haus wurde mit 5 Zimmern und 2 Bädern geplant, kann aber ganz nach Ihrem persönlichen Bedarf angepasst werden. Die dargestellten Grundrisse sind Beispiele seitens des Generalübernehmers und können noch individuell angepasst werden. Zu dem Haus wurde eine Garage geplant, welche preislich noch dazukommt oder in Eigenleistung errichtet wird. Alle Fenster sind aus Kunststoff, 3-fach verglast und mit elektrischen Rollläden ausgestattet. Die Grundstücks- und Haustechnik werden nach aktuellem Standard geplant: zur effizienten Beheizung ist eine moderne Luft/Wasser-Wärmepumpe vorgesehen. Die angestrebte Bauzeit beträgt ca. 1 Jahr ab Baubeginn. Die Zahlung des Hauspreises wird zu 30% nach Kellerübergabe und zu 70% nach Hausübergabe fällig. Weitere Informationen übermitteln wir gerne anhand der Bauleistungsbeschreibung.
Ausstattung
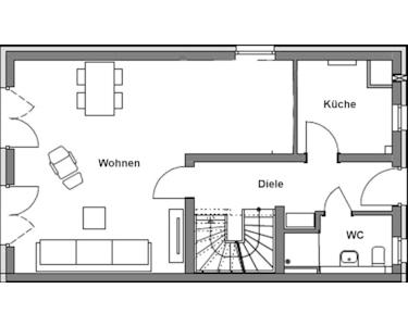
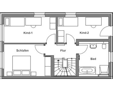
Die Doppelhaushälfte verfügt über insgesamt 3 Etagen und einen Keller (EG+OG+DG+Keller). Im Erdgeschoß befinden sich der große Wohn- Essbereich, die Küche, ein Flur, und ein Duschbad. Im Obergeschoß sind das Schlafzimmer, 2 Kinderzimmer und ein weiteres Bad. Im Dachgeschoss ist ein geräumiges Studio. Im Keller sind ein Hobbyraum, ein Kellerraum und ein Hauswirtschaftsraum. Die genaue Aufteilung ist noch genau bestimm- und variierbar.
Das Haus verfügt über eine hochwertige Ausstattung und ist mit allen wichtigen Details ausgestattet. Zu diesen gehören unter anderem:
- Massive Ziegelbauweise mit Wärmedämmverbundsystem und weißer Putzfassade.
- Hochwertige Kunststofffenster mit Dreifachverglasung.
- Elektrische Rollläden mit Aluminiumpanzer.
- Moderne Luft/Wasser-Wärmepumpe mit großem Warmwasserspeicher.
- Fußbodenheizung in den Wohnbereichen (mit Einzelraumregelung / Raumthermostaten). Die Anlage ist energieeffizient ausgelegt und kann in Kombination mit der Wärmepumpe auch kühlen.
- Kontrollierte Lüftungsanlage (zentral, Schutz der Gebäudehülle vor Feuchte).
- Hochwertiges Fliesenpaket (Badezimmer, Gäste-WC, Diele, Flure, Küche) und Markensanitärobjekte.
- Innentüren mit pflegeleichter CPL-Oberfläche (verschiedene Farbvarianten wählbar).
- Stahlholmtreppe mit massiven Holzstufen.
- Außenfensterbänke aus Aluminium (bei Putzfassade) / Innenfensterbänke in Naturstein oder Werkstein.
- Umfangreiche Elektroinstallation sowie Leerrohr-Vorrüstung für spätere Erweiterungen.
- Schutz- und Serviceleistungen: baubegleitende Organisation und Versicherungen sind Bestandteil des Angebots. Individuelle Qualitätsprüfungen und Zusatzversicherungen sind möglich.
- Photovoltaik-Anlage optional gegen Aufpreis
Baunebenkosten:
Baunebenkosten in Höhe von ca. 55.000€ sind bereits im Kaufpreis inbegriffen!
Dazu gehören z.B. Hausanschlüsse, Baustrom, Bauwasser, Allgemeine Gebühren (Herstellungsbeiträge, Genehmigungen), Vermessungskosten, Teilungskosten, Eventualkosten (Gemeinsame Zuwegung, Bordsteinabsenkung) etc..
Auch Abrisskosten i.H.v. ca. 11.000€ sind bereits in den Kaufpreis einkalkuliert
Die genaue Aufstellung der Baunebenkosten erhalten Sie im Rahmen eines individuellen Investitionsplanes
Das Haus verfügt über eine hochwertige Ausstattung und ist mit allen wichtigen Details ausgestattet. Zu diesen gehören unter anderem:
- Massive Ziegelbauweise mit Wärmedämmverbundsystem und weißer Putzfassade.
- Hochwertige Kunststofffenster mit Dreifachverglasung.
- Elektrische Rollläden mit Aluminiumpanzer.
- Moderne Luft/Wasser-Wärmepumpe mit großem Warmwasserspeicher.
- Fußbodenheizung in den Wohnbereichen (mit Einzelraumregelung / Raumthermostaten). Die Anlage ist energieeffizient ausgelegt und kann in Kombination mit der Wärmepumpe auch kühlen.
- Kontrollierte Lüftungsanlage (zentral, Schutz der Gebäudehülle vor Feuchte).
- Hochwertiges Fliesenpaket (Badezimmer, Gäste-WC, Diele, Flure, Küche) und Markensanitärobjekte.
- Innentüren mit pflegeleichter CPL-Oberfläche (verschiedene Farbvarianten wählbar).
- Stahlholmtreppe mit massiven Holzstufen.
- Außenfensterbänke aus Aluminium (bei Putzfassade) / Innenfensterbänke in Naturstein oder Werkstein.
- Umfangreiche Elektroinstallation sowie Leerrohr-Vorrüstung für spätere Erweiterungen.
- Schutz- und Serviceleistungen: baubegleitende Organisation und Versicherungen sind Bestandteil des Angebots. Individuelle Qualitätsprüfungen und Zusatzversicherungen sind möglich.
- Photovoltaik-Anlage optional gegen Aufpreis
Baunebenkosten:
Baunebenkosten in Höhe von ca. 55.000€ sind bereits im Kaufpreis inbegriffen!
Dazu gehören z.B. Hausanschlüsse, Baustrom, Bauwasser, Allgemeine Gebühren (Herstellungsbeiträge, Genehmigungen), Vermessungskosten, Teilungskosten, Eventualkosten (Gemeinsame Zuwegung, Bordsteinabsenkung) etc..
Auch Abrisskosten i.H.v. ca. 11.000€ sind bereits in den Kaufpreis einkalkuliert
Die genaue Aufstellung der Baunebenkosten erhalten Sie im Rahmen eines individuellen Investitionsplanes
Lage des Objektes
Die Doppelhaushälfte befindet sich in attraktiver Wohnlage von Prien am Chiemsee, einem der gefragtesten Orte im Chiemgau, der für seine hohe Lebensqualität, die Nähe zum See und die hervorragende Infrastruktur bekannt ist. Das Haus befindet sich in Toplage am beliebten Herrnberg in der Nähe des Kurparkes. Das gewachsene Wohnumfeld ist geprägt von Ein- und Zweifamilienhäusern sowie gepflegten Gärten und bietet eine angenehme Mischung aus Ruhe und guter Erreichbarkeit aller Einrichtungen des täglichen Bedarfs. Der Bahnhof von Prien ist in etwa zehn Gehminuten bequem erreichbar und ermöglicht eine sehr gute Anbindung an den regionalen und überregionalen Bahnverkehr. Von hier bestehen regelmäßige Verbindungen in Richtung Rosenheim, Salzburg und München, wodurch sich der Standort auch ideal für Berufspendler eignet. Die nahegelegene Autobahnanbindung sorgt zusätzlich für eine schnelle Erreichbarkeit der umliegenden Städte und des Alpenraums. Die Versorgung im Alltag ist durch zahlreiche Einkaufsmöglichkeiten, Dienstleister und gastronomische Angebote im Ortskern bestens gewährleistet. Ärzte verschiedener Fachrichtungen, Apotheken sowie weitere medizinische Einrichtungen sind in kurzer Distanz vorhanden und bieten eine umfassende gesundheitliche Betreuung. Familien profitieren von einem breiten Angebot an Kinderbetreuungseinrichtungen, Grund- und weiterführenden Schulen, die im Ort gut erreichbar sind und Prien als familienfreundlichen Wohnstandort auszeichnen. Prien bietet ein vielfältiges Freizeit- und Erholungsangebot. Die Nähe zum Chiemsee eröffnet zahlreiche Möglichkeiten für Wassersport, Spaziergänge und Radtouren entlang des Ufers sowie Ausflüge zu den Inseln. Darüber hinaus laden die umliegenden Berge und Naturgebiete zu Wanderungen, sportlichen Aktivitäten und Erholung zu jeder Jahreszeit ein. Ein reges Vereinsleben, kulturelle Veranstaltungen und verschiedene Sportangebote sorgen für Abwechslung und eine lebendige Gemeinschaft. Auch am Abend zeigt sich der Ort vielseitig und lebendig, mit einer Auswahl an gastronomischen Betrieben und Möglichkeiten zum geselligen Beisammensein, ohne dabei an Ruhe und Überschaubarkeit zu verlieren. Insgesamt vereint die Lage dieser Doppelhaushälfte naturnahes Wohnen, eine sehr gute Infrastruktur und eine ausgezeichnete Verkehrsanbindung und bietet damit ideale Voraussetzungen für ein komfortables und hochwertiges Leben im Chiemgau.
Sonstige Informationen
Haftungsausschluss:
Alle Angaben in diesem Exposé wurden mit größter Sorgfalt zusammengestellt und beruhen auf Informationen, die uns vom Eigentümer bzw. Dritten zur Verfügung gestellt wurden. Eine Gewähr für die Richtigkeit, Vollständigkeit und Aktualität dieser Angaben können wir jedoch nicht übernehmen.
Wohnfläche (WoFlV): 136,5 m²
Nutzfläche (DIN 277): 175 m²
Die genannten Werte dienen zur Orientierung und sind vor Abschluss des Kaufvertrags eigenständig zu prüfen. Maßgeblich sind ausschließlich die im notariellen Kaufvertrag und im Werkvertrag festgelegten Vereinbarungen.
Grundrisse, Visualisierungen und Illustrationen dienen der Veranschaulichung, sind nicht maßstabsgetreu und können optionale Sonderausstattungen zeigen. Ausschlaggebend ist die individuelle Planung mit dem Generalübernehmer.
Zwischenverkauf, Preisänderungen und Irrtümer bleiben ausdrücklich vorbehalten.
Weitere Informationen zu diesem und zu weiteren Objekten finden Sie unter www.Immobilien-Ried.de
Beispiel-Wohnzimmer
Beispiel-Küche-Essbereich
Beispiel-Schlafzimmer
Beispiel-Kinderzimmer
Beispiel-Zimmer
Beispiel-Bad
Grundriss-EG
Grundriss-OG
Grundriss-DG
Grundriss-KG