Exposé
Objektart:
Wohnung
» Etage
» Kauf
Standort: Wohnung »
Deutschland » Berlin » Berlin, Stadt (Kreis) » Berlin
Provisionsfrei: Ruhige Altbau-3-Zimmer-Wohnung mit Wohnküche & Top-Anbindung – Berlin-Lichtenberg
Hausansicht
Das Wichtigste auf einen Blick:
| Objektnummer: | 9383142 |
Preise
| Kaufpreis | 424.000 € |
| Nebenkosten | keine Angabe |
| Hausgeld | 340 € |
Flächen
| Wohnfläche | 86 m² |
| Maklerprovision | keine Provision, courtagefrei |
Objekt Adresse
10317 Berlin
- Berlin
Sonstige Angaben
| Baujahr | 1930 |
| Zimmer | 3 |
| Verfügbar ab | sofort |
| Bad | 1 |
| Anzahl der Etagen im Haus | 5 |
| Inserat befindet sich im Stockwerk | 1 |
| Küche | Einbauküche |
| Bad | 1 |
| Bad | Wanne |
| Boden | Parkett |
| Balkone | 1 |
| Terrassen | 0 |
| Keller | Ja |
| Energieausweistyp | Verbrauch |
| Energieverbrauchkennwert | 105 kWh/(m²*a) |
| Heizungsart | Zentralheizung |
| Energieträger/Befeuerung | Gas |
Objektbeschreibung
Diese provisionsfreie 3-Zimmer-Altbauwohnung liegt in Berlin-Lichtenberg in einer Lage, die in Berlin selten ist: nur ca. 2 Gehminuten zur S-Bahn, dabei angenehm ruhig – und die Innenstadt ist mit S- und U-Bahn schnell und teils ohne Umsteigen erreichbar. Ideal für Eigennutzer, die zentral wohnen möchten, ohne auf Wohnqualität zu verzichten.
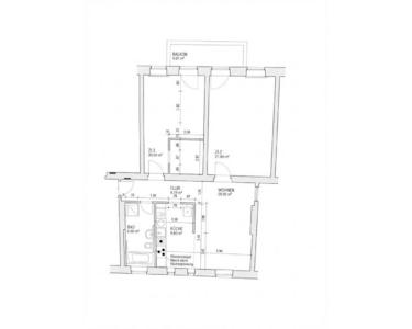
Der Grundriss ist durchdacht und alltagstauglich: Zwei abschließbare Zimmer bieten flexible Nutzung (Schlafen, Arbeiten, Kind/Gäste), ergänzt durch einen großzügigen Wohn- und Essbereich mit offener Küche als Mittelpunkt der Wohnung.
Die Küche ist funktional und bietet mit einer Marmor-Arbeitsplatte sowie neu eingebauter Spüle und Armatur wertige Details. Der übrige Zustand der Küche ist gebraucht, aber voll nutzbar.
Ein besonderer Komfortfaktor ist das Schlafzimmer mit begehbarem Kleiderschrank, in dem vor Kurzem neue Einbauten / Einbauschränke installiert wurden – viel Stauraum, ohne Wohnfläche zu verlieren.
Das Badezimmer bietet mit einer großen Badewanne und einer separaten Dusche (Walk-in-/bodengleiche Dusche) sowohl Alltagstauglichkeit als auch Komfort.
Zusätzlich gehört zur Wohnung ein großes Kellerabteil, das im Altbau besonders wertvoll ist. Insgesamt befindet sich die Wohnung in einem gepflegten Zustand; einzelne Ausstattungsdetails wurden in den letzten Jahren erneuert, sodass ein sofortiger Einzug ohne größeren Renovierungsaufwand möglich ist.
Der Grundriss ist durchdacht und alltagstauglich: Zwei abschließbare Zimmer bieten flexible Nutzung (Schlafen, Arbeiten, Kind/Gäste), ergänzt durch einen großzügigen Wohn- und Essbereich mit offener Küche als Mittelpunkt der Wohnung.
Die Küche ist funktional und bietet mit einer Marmor-Arbeitsplatte sowie neu eingebauter Spüle und Armatur wertige Details. Der übrige Zustand der Küche ist gebraucht, aber voll nutzbar.
Ein besonderer Komfortfaktor ist das Schlafzimmer mit begehbarem Kleiderschrank, in dem vor Kurzem neue Einbauten / Einbauschränke installiert wurden – viel Stauraum, ohne Wohnfläche zu verlieren.
Das Badezimmer bietet mit einer großen Badewanne und einer separaten Dusche (Walk-in-/bodengleiche Dusche) sowohl Alltagstauglichkeit als auch Komfort.
Zusätzlich gehört zur Wohnung ein großes Kellerabteil, das im Altbau besonders wertvoll ist. Insgesamt befindet sich die Wohnung in einem gepflegten Zustand; einzelne Ausstattungsdetails wurden in den letzten Jahren erneuert, sodass ein sofortiger Einzug ohne größeren Renovierungsaufwand möglich ist.
Ausstattung
Balkon, Keller, Vollbad, Einbauküche, Parkett, Sonstiges (s. Text)
Bemerkungen:
•Altbauwohnung
•Gepflegter Zustand
•Holzdielen
•Großzügiger Wohn- und Essbereich mit offener Küche
•Küche mit Marmor-Arbeitsplatte, neuem Waschbecken und neuer Armatur
•Schlafzimmer mit begehbarem Kleiderschrank und neuen Regalen
•Badezimmer
•Großes Kellerabteil
•Provisionsfreier Privatverkauf
Bemerkungen:
•Altbauwohnung
•Gepflegter Zustand
•Holzdielen
•Großzügiger Wohn- und Essbereich mit offener Küche
•Küche mit Marmor-Arbeitsplatte, neuem Waschbecken und neuer Armatur
•Schlafzimmer mit begehbarem Kleiderschrank und neuen Regalen
•Badezimmer
•Großes Kellerabteil
•Provisionsfreier Privatverkauf
Lage des Objektes
Die Wohnung liegt im Berliner Bezirk Lichtenberg (Wönnichstraße), in einer Lage, die zentrale Erreichbarkeit und ruhiges Wohnen ideal miteinander verbindet. Die S-Bahn-Station ist in ca. zwei Minuten fußläufig erreichbar.
Von hier aus besteht eine sehr gute Anbindung an die Berliner Innenstadt. Sowohl mit der S- als auch mit der U-Bahn lassen sich viele zentrale Ziele schnell und teilweise ohne Umsteigen erreichen.
Trotz der hervorragenden Verkehrsanbindung ist das Wohnumfeld angenehm ruhig. Einkaufsmöglichkeiten, Cafés, Ärzte und weitere Einrichtungen des täglichen Bedarfs befinden sich in der näheren Umgebung. Die Lage ist besonders beliebt bei Eigennutzern, die stadtnah wohnen möchten, ohne auf Wohnqualität zu verzichten.
Infrastruktur (im Umkreis von 5 km):
Apotheke, Lebensmittel-Discount, Allgemeinmediziner, Kindergarten, Grundschule, Hauptschule, Realschule, Gymnasium, Gesamtschule, Öffentliche Verkehrsmittel
Von hier aus besteht eine sehr gute Anbindung an die Berliner Innenstadt. Sowohl mit der S- als auch mit der U-Bahn lassen sich viele zentrale Ziele schnell und teilweise ohne Umsteigen erreichen.
Trotz der hervorragenden Verkehrsanbindung ist das Wohnumfeld angenehm ruhig. Einkaufsmöglichkeiten, Cafés, Ärzte und weitere Einrichtungen des täglichen Bedarfs befinden sich in der näheren Umgebung. Die Lage ist besonders beliebt bei Eigennutzern, die stadtnah wohnen möchten, ohne auf Wohnqualität zu verzichten.
Infrastruktur (im Umkreis von 5 km):
Apotheke, Lebensmittel-Discount, Allgemeinmediziner, Kindergarten, Grundschule, Hauptschule, Realschule, Gymnasium, Gesamtschule, Öffentliche Verkehrsmittel
Sonstige Informationen
Heizungsart: Zentralheizung
Energieträger: Gas
Makleranfragen nicht erwünscht. Nach § 7 UWG sind unaufgeforderte Kontaktaufnahmen durch Makler ohne ausdrückliche Einwilligung des Empfängers verboten!
ohne-makler (OM) ist weder Anbieter noch Vermittler der Immobilie. OM betreibt eine Plattform für Immobilieneigentümer, die unter anderem die gleichzeitige Veröffentlichung einzelner Inserate auf mehreren Immobilienportalen ermöglicht. Die Inhalte dieser Inserate werden ausschließlich von Dritten verantwortet. Für die Richtigkeit, Vollständigkeit oder Rechtmäßigkeit der Angaben übernimmt OM keine Haftung. Hinweise auf mögliche Rechtsverstöße können jederzeit gemeldet werden und werden nach Prüfung umgehend bearbeitet.
Balkonzugang von beiden Zimmer
Flur, Blick von Wohnungstür
begehbarer Kleiderschrank
Schlafzimmer
Zimmer 2
Innenhof
Kellerabteil