Exposé
Objektart:
Haus
» Mehrfamilienhaus
» Miete
Standort: Haus »
Deutschland » Berlin » Berlin, Stadt (Kreis) » Berlin
Mehrfamilienhaus NEUBAU komplett zu vermieten mit 5 Wohnungen und Keller in Berlin Reinickendorf
Hausansicht
Das Wichtigste auf einen Blick:
| Objektnummer: | 9382808 |
Preise
| Kaltmiete (netto) | 6.750 € |
| Nebenkosten | keine Angabe |
| Kaution | 20.000 € |
Flächen
| Wohnfläche | 320 m² |
| Grundstücksfläche | 520 m² |
Objekt Adresse
Kienhorststr. 103A
13403 Berlin
- Berlin
Sonstige Angaben
| Baujahr | 2025 |
| Zimmer | 10 |
| Verfügbar ab | sofort |
| Bad | 5 |
| Anzahl der Etagen im Haus | 3 |
| Küche | Einbauküche |
| Bad | 5 |
| Bad | Dusche |
| Boden | Fliesen, Kunststoff |
| Balkone | 1 |
| Garten | Ja |
| Terrassen | 1 |
| Barrierefrei | |
| Keller | Ja |
| Energieausweistyp | Bedarfsausweis |
| Energieeffizienzklasse | A |
| Endenergiebedarf | 45 kWh/(m²*a) |
| Heizungsart | Fußbodenheizung |
| Energieträger/Befeuerung | Luft-Wärme-Pumpe |
Objektbeschreibung
Der Vermieter ist gleichzeitig der Eigentümer des Objekts.
Willkommen in diesem exklusiven Neubau-Mehrfamilienhaus in Berlin-Reinickendorf, das voraussichtlich ab dem 1. Januar 2026 bezugsfrei sein wird.
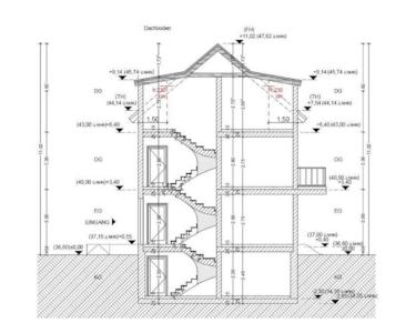
Mit einer großzügigen Wohnfläche von insgesamt ca. 320m² aufgeteilt in 5 eigenständige Wohneinheiten und einem Keller.
ERDGESCHOSS:
- WHG1 Terrassen-Wohnung links 2 Zimmer mit Küchennische und Bad mit Terrasse ca. 45m²
- WHG2 Terrassen-Wohnung rechts 2 Zimmer mit Küchennische und Bad mit Terrasse ca. 45m²
1. OBERGESCHOSS:
- WHG3 Balkonwohnung links 2 Zimmer mit Küchennische und Bad mit Balkon ca. 40m²
- WHG4 Balkonwohnung rechts 2 Zimmer mit Küchennische und Bad mit Balkon ca. 40m²
2. OBERGESCHOSS/DACHGESCHOSS:
- WHG5 Dachgeschosswohnung 2 Zimmer mit Küchennische und Bad ca. 67,5m²
KELLERGESCHOSS:
- 80m² komplett ausgebautes, eigenständiges, angeschlossenes Kellergeschoss mit vollflächiger Fußbodenheizung, Einbauküchenvorrichtung und WC-Raum
GRUNDSTÜCK:
- Grundstücksgröße ca. 520m², offen zugänglich
- Freifläche ca. 350m² vielseitig nutzbar, z. B. möglicher Kinderspielplatz, Sport- und Freizeitflächen
Willkommen in diesem exklusiven Neubau-Mehrfamilienhaus in Berlin-Reinickendorf, das voraussichtlich ab dem 1. Januar 2026 bezugsfrei sein wird.
Mit einer großzügigen Wohnfläche von insgesamt ca. 320m² aufgeteilt in 5 eigenständige Wohneinheiten und einem Keller.
ERDGESCHOSS:
- WHG1 Terrassen-Wohnung links 2 Zimmer mit Küchennische und Bad mit Terrasse ca. 45m²
- WHG2 Terrassen-Wohnung rechts 2 Zimmer mit Küchennische und Bad mit Terrasse ca. 45m²
1. OBERGESCHOSS:
- WHG3 Balkonwohnung links 2 Zimmer mit Küchennische und Bad mit Balkon ca. 40m²
- WHG4 Balkonwohnung rechts 2 Zimmer mit Küchennische und Bad mit Balkon ca. 40m²
2. OBERGESCHOSS/DACHGESCHOSS:
- WHG5 Dachgeschosswohnung 2 Zimmer mit Küchennische und Bad ca. 67,5m²
KELLERGESCHOSS:
- 80m² komplett ausgebautes, eigenständiges, angeschlossenes Kellergeschoss mit vollflächiger Fußbodenheizung, Einbauküchenvorrichtung und WC-Raum
GRUNDSTÜCK:
- Grundstücksgröße ca. 520m², offen zugänglich
- Freifläche ca. 350m² vielseitig nutzbar, z. B. möglicher Kinderspielplatz, Sport- und Freizeitflächen
Ausstattung
Balkon, Terrasse, Garten, Keller, Duschbad, Einbauküche, Gäste-WC, Barrierefrei, Fliesen
Bemerkungen:
Dieses Haus bietet viel Platz für Familien, Paare oder Singles als repräsentativen Wohnsitz.
Es wurde im Jahr 2025 erbaut und besticht durch eine moderne, gehobene und nach dem neuesten Stand der Technik gebaute Innen- und Außenausstattung.
- Fußbodenheizung vollflächig im ganzen Haus mit Raumregler
- Fenster modern 3-fach verglast; teilweise bodentief im französischen Stil mit Absturzsicherungsgeländer
- Bäder hochwertig gefliest mit ebenerdiger Dusche, hochwertige Armaturen und Rainshower; Waschmaschinennische und Anschluss vorhanden
- hochwertiger Vinyl-Bodenbelag fugenlos
- Balkone mit Bangkirai-Belag
- Terrassen Naturstein
- elektrische Rolläden in den EG-Wohnungen
- das ganze Haus ist schwellenlos,
- Wohnungen im EG sind behindertengerecht
- Zugang zum Haus behindertengerecht mit Rampe
- Treppenhaus gefliest und mit hochwertigem Absturzgeländer anthrazit im französischen Stil
- Wärmeversorgung über moderne Wärmepumpe
- WDVS auf dem neuesten Stand der Technik
- einbruchsichere Wohnungseingangstüren aus Holz mit OTS
- einbruchsichere Hauseingangstür aus Alu mit OTS
- Elektrik auf neuestem Stand der Technik
- Wasserversorgung auf neuestem Stand der Technik
- separate Stromzähler je Einheit (5 Zähler)
- separate Wasserzähler je Einheit (5 Zähler)
- Internetversorgung im gesamten Haus in jedem Zimmer verfügbar für Glasfaser vorbereitet
Bemerkungen:
Dieses Haus bietet viel Platz für Familien, Paare oder Singles als repräsentativen Wohnsitz.
Es wurde im Jahr 2025 erbaut und besticht durch eine moderne, gehobene und nach dem neuesten Stand der Technik gebaute Innen- und Außenausstattung.
- Fußbodenheizung vollflächig im ganzen Haus mit Raumregler
- Fenster modern 3-fach verglast; teilweise bodentief im französischen Stil mit Absturzsicherungsgeländer
- Bäder hochwertig gefliest mit ebenerdiger Dusche, hochwertige Armaturen und Rainshower; Waschmaschinennische und Anschluss vorhanden
- hochwertiger Vinyl-Bodenbelag fugenlos
- Balkone mit Bangkirai-Belag
- Terrassen Naturstein
- elektrische Rolläden in den EG-Wohnungen
- das ganze Haus ist schwellenlos,
- Wohnungen im EG sind behindertengerecht
- Zugang zum Haus behindertengerecht mit Rampe
- Treppenhaus gefliest und mit hochwertigem Absturzgeländer anthrazit im französischen Stil
- Wärmeversorgung über moderne Wärmepumpe
- WDVS auf dem neuesten Stand der Technik
- einbruchsichere Wohnungseingangstüren aus Holz mit OTS
- einbruchsichere Hauseingangstür aus Alu mit OTS
- Elektrik auf neuestem Stand der Technik
- Wasserversorgung auf neuestem Stand der Technik
- separate Stromzähler je Einheit (5 Zähler)
- separate Wasserzähler je Einheit (5 Zähler)
- Internetversorgung im gesamten Haus in jedem Zimmer verfügbar für Glasfaser vorbereitet
Lage des Objektes
Das Haus befindet sich in Berlin-Reinickendorf, einem etablierten Berliner Bezirk. Die Umgebung bietet eine gute Infrastruktur mit Einkaufsmöglichkeiten für den täglichen Bedarf sowie mit Schulen und Freizeitmöglichkeiten. Die Anbindung an den öffentlichen Nahverkehr ist gut, was eine schnelle Erreichbarkeit anderer Stadtteile ermöglicht. Reinickendorf zeichnet sich durch eine Mischung aus urbanem Leben und grünen Oasen aus.
Infrastruktur (im Umkreis von 5 km):
Apotheke, Lebensmittel-Discount, Allgemeinmediziner, Kindergarten, Grundschule, Hauptschule, Realschule, Gymnasium, Gesamtschule, Öffentliche Verkehrsmittel
Infrastruktur (im Umkreis von 5 km):
Apotheke, Lebensmittel-Discount, Allgemeinmediziner, Kindergarten, Grundschule, Hauptschule, Realschule, Gymnasium, Gesamtschule, Öffentliche Verkehrsmittel
Sonstige Informationen
Heizungsart: Fußbodenheizung
Energieträger: Luft-/Wasserwärme
viele Nutzungsmöglichkeiten wie z. B. Generationshaus, Studentisches Wohnen, Wohngemeinschaften, Mitarbeiterunterkunft, Senioren-WG, Pflegeheim, Betreutes Wohnen, Service-Wohnen, Hospiz u. v. m.
Haustiere erlaubt.
Nichtraucher erwünscht.
Makleranfragen nicht erwünscht. Nach § 7 UWG sind unaufgeforderte Kontaktaufnahmen durch Makler ohne ausdrückliche Einwilligung des Empfängers verboten!
ohne-makler (OM) ist weder Anbieter noch Vermittler der Immobilie. OM betreibt eine Plattform für Immobilieneigentümer, die unter anderem die gleichzeitige Veröffentlichung einzelner Inserate auf mehreren Immobilienportalen ermöglicht. Die Inhalte dieser Inserate werden ausschließlich von Dritten verantwortet. Für die Richtigkeit, Vollständigkeit oder Rechtmäßigkeit der Angaben übernimmt OM keine Haftung. Hinweise auf mögliche Rechtsverstöße können jederzeit gemeldet werden und werden nach Prüfung umgehend bearbeitet.
Hausansicht
Treppenhaus
Treppenhaus
Treppenhaus
Treppenhaus
Treppenhaus
Treppenhaus
Wohnung EG mit Terasse
Wohnung EG mit Terasse
Wohnung EG mit Terasse
Wohnung EG mit Terasse
Wohnung EG mit Terasse
Wohnung EG mit Terasse
Wohnung EG mit Terasse
Wohnung EG mit Terasse
Wohnung EG mit Terasse
Wohnung EG mit Terasse
Wohnung EG mit Terasse
Wohnung OG mit Balkon
Wohnung OG mit Balkon
Wohnung OG mit Balkon
Wohnung OG mit Balkon
Wohnung OG mit Balkon
Wohnung OG mit Balkon
Wohnung OG mit Balkon
Wohnung OG mit Balkon
Wohnung OG mit Balkon
Wohnung OG mit Balkon
Wohnung Dachgeschoss
Wohnung OG mit Balkon
Wohnung OG mit Balkon
Wohnung OG mit Balkon
Wohnung Dachgeschoss
Wohnung Dachgeschoss
Wohnung Dachgeschoss
Wohnung Dachgeschoss
Wohnung Dachgeschoss
Wohnung Dachgeschoss
Wohnung Dachgeschoss
Wohnung Dachgeschoss
Wohnung Dachgeschoss
Wohnung Dachgeschoss
Wohnung Dachgeschoss
Wohnung Dachgeschoss
Wohnung Dachgeschoss
Ansicht Nord
Ansicht Ost
Ansicht Süd
Ansicht West
Erdgeschoss Plan
Obergeschoss Plan
Dachgeschoss Plan
Schnitt Ost
Schnitt Süd
Schnitt West