Exposé
Objektart:
Büro / Praxen
» Ausstellungsflaeche
» Miete
Standort: Büro / Praxen »
Deutschland » Baden-Württemberg » Rhein-Neckar-Kreis (Kreis) » Reilingen
Vielseitig nutzbare Gewerbefläche mit großem Gestaltungsspielraum, 8€ pro m²
Außenansicht
Das Wichtigste auf einen Blick:
| Objektnummer: | 9382740 |
Preise
| Miete für das Objekt | Auf Anfrage |
| Nebenkosten | keine Angabe |
Flächen
| Gesamtfläche | 380 m² |
| Bürofläche | 380 m² |
| Maklerprovision | keine Provision, courtagefrei |
Objekt Adresse
Wilhelmstraße 78
68799 Reilingen
- Baden-Württemberg
Sonstige Angaben
| Baujahr | 1995 |
| Verfügbar ab | sofort |
| Inserat befindet sich im Stockwerk | 1 |
| Boden | Teppich, Kunststoff |
| Energieausweistyp | Verbrauch |
| Heizungsart | Zentralheizung |
| Energieträger/Befeuerung | Gas |
Objektbeschreibung
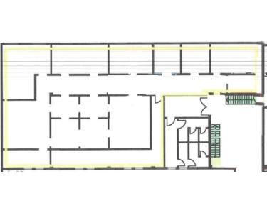
Diese vielseitig nutzbare Gewerbefläche im 1. Obergeschoss eines gepflegten Wohn- und Geschäftshauses bietet auf rund 380 m² eine großzügige Grundlage für beispielsweise moderne Arbeits-, Präsentations-, Fitnessraum- oder Schulungskonzepte.
Die offene, langgestreckte Grundstruktur eignet sich auch ideal für Unternehmen, die große, zusammenhängende Bereiche benötigen – beispielsweise für Showrooms, Schulungsräume, offene Bürolandschaften, Kreativ- oder Praxisbereiche.
Zahlreiche Fenster sorgen dafür, dass die Fläche hell und lichtdurchflutet ist und viel Spielraum für individuelle Aufteilungen, Arbeitsinseln oder Präsentationsflächen bittet. Mehrere abgetrennte Räume sowie Sanitärbereiche und ein Bistrobereich (kann nach Wunsch demontiert werden) runden das Angebot ab.
Die Fläche befindet sich in einem gepflegten Zustand und kann nach Absprache teilsaniert oder renoviert übergeben werden. Dadurch eröffnen sich vielfältige Möglichkeiten, die Immobilie exakt an Ihr Nutzungskonzept anzupassen.
Die offene, langgestreckte Grundstruktur eignet sich auch ideal für Unternehmen, die große, zusammenhängende Bereiche benötigen – beispielsweise für Showrooms, Schulungsräume, offene Bürolandschaften, Kreativ- oder Praxisbereiche.
Zahlreiche Fenster sorgen dafür, dass die Fläche hell und lichtdurchflutet ist und viel Spielraum für individuelle Aufteilungen, Arbeitsinseln oder Präsentationsflächen bittet. Mehrere abgetrennte Räume sowie Sanitärbereiche und ein Bistrobereich (kann nach Wunsch demontiert werden) runden das Angebot ab.
Die Fläche befindet sich in einem gepflegten Zustand und kann nach Absprache teilsaniert oder renoviert übergeben werden. Dadurch eröffnen sich vielfältige Möglichkeiten, die Immobilie exakt an Ihr Nutzungskonzept anzupassen.
Ausstattung
Gäste-WC, Teppichboden
Bemerkungen:
•Variable Nutzungsmöglichkeiten und großzügige, offene Raumstruktur – ideal z.B. für Showroom, Büro, Schulung, Praxis, Studio oder Agenturen sowie für Präsentationsflächen, moderne Arbeitswelten bis hin zum kleinen Lagerflächen
•Flexible Raumgestaltung: Auf Wunsch können Trennwände verändert oder ergänzt werden
•Parkplätze: Außenstellplätze & Tiefgaragenplätze auf Wunsch verfügbar
•Sanitäranlagen vorhanden
Bemerkungen:
•Variable Nutzungsmöglichkeiten und großzügige, offene Raumstruktur – ideal z.B. für Showroom, Büro, Schulung, Praxis, Studio oder Agenturen sowie für Präsentationsflächen, moderne Arbeitswelten bis hin zum kleinen Lagerflächen
•Flexible Raumgestaltung: Auf Wunsch können Trennwände verändert oder ergänzt werden
•Parkplätze: Außenstellplätze & Tiefgaragenplätze auf Wunsch verfügbar
•Sanitäranlagen vorhanden
Lage des Objektes
Die Immobilie befindet sich in gut erschlossener Lage in Reilingen. Der Standort bietet eine gute Verkehrsanbindung genau zwischen A5 (6 km, 7 Minuten) und A6 (11 km, 10 Minuten) und ist mit dem Auto und mit öffentlichen Verkehrsmitteln gut zu erreichen. In der Umgebung befinden sich zahlreiche Geschäfte, Dienstleister und gastronomische Angebote.
Infrastruktur (im Umkreis von 5 km):
Apotheke, Lebensmittel-Discount, Allgemeinmediziner, Kindergarten, Grundschule, Gesamtschule, Öffentliche Verkehrsmittel
Infrastruktur (im Umkreis von 5 km):
Apotheke, Lebensmittel-Discount, Allgemeinmediziner, Kindergarten, Grundschule, Gesamtschule, Öffentliche Verkehrsmittel
Sonstige Informationen
Heizungsart: Zentralheizung
Energieträger: Gas
HERAUSGEBER
SPGI Grundstücks GmbH
Wilhelmstraße 78
68799 Reilingen
Fon +49 (0)6205 977496
Fax +49 (0)6205 977468
spgi@schaumaplast.de
Angaben gemäß § 5 DDG (Gesetz über Nutzung von Telediensten)
Geschäftsführer: Bernhard Hauck, Markus Hoffmann
Sitz der Gesellschaft ist Reilingen.
Eingetragen beim Registergericht Mannheim HRB 753795
Umsatzsteueridentifikationsnummer: DE 453291862
Makleranfragen nicht erwünscht. Nach § 7 UWG sind unaufgeforderte Kontaktaufnahmen durch Makler ohne ausdrückliche Einwilligung des Empfängers verboten!
ohne-makler (OM) ist weder Anbieter noch Vermittler der Immobilie. OM betreibt eine Plattform für Immobilieneigentümer, die unter anderem die gleichzeitige Veröffentlichung einzelner Inserate auf mehreren Immobilienportalen ermöglicht. Die Inhalte dieser Inserate werden ausschließlich von Dritten verantwortet. Für die Richtigkeit, Vollständigkeit oder Rechtmäßigkeit der Angaben übernimmt OM keine Haftung. Hinweise auf mögliche Rechtsverstöße können jederzeit gemeldet werden und werden nach Prüfung umgehend bearbeitet.
Flur
Flur und Treppenaufstieg
Eingangsbereich
Zugang zu den Räumen
Geräumiges Büro
Großzügig geschnittener Raum
Treppenhaus
Grundriss