Exposé
Objektart:
Büro / Praxen
» Bueroflaeche
» Miete
Standort: Büro / Praxen »
Deutschland » Berlin » Berlin, Stadt (Kreis) » Berlin
Attraktive Büro- bzw. Praxisetage in zentraler Lage von Berlin-Lichtenberg
BIS_Immobilien
Das Wichtigste auf einen Blick:
| Objektnummer: | 9382673 |
Preise
| Kaltmiete | 2.681,25 € |
| Nebenkosten | keine Angabe |
| Kaution | 9000 |
Flächen
| Nutzfläche | 195 m² |
| Gesamtfläche | 195 m² |
| Bürofläche | 195 m² |
| Maklerprovision | 1 X Nettokaltmiete |
Objekt Adresse
10365 Berlin
Sonstige Angaben
| Baujahr | 1920 |
| Zimmer | 5 |
| Verfügbar ab | auf Anfrage |
| Anzahl der Etagen im Haus | 4 |
| Inserat befindet sich im Stockwerk | 1 |
| Küche | Einbauküche |
| Fahrstuhl | Ja |
| Baujahr (laut Energieausweis) | 1920 |
Objektbeschreibung
Ca. 195 m² im ruhigen Innenhof, vollständig möbliert, sofort bezugsfertig, fußläufig S- und U-Bahn Lichtenberg
Zur Vermietung steht eine hochwertig ausgestattete und äußerst gepflegte Büro- bzw. Praxisetage in zentraler Lage von Berlin-Lichtenberg. Die Einheit befindet sich im Hochparterre eines charmanten Altbaus aus ca. 1920 und liegt ruhig im Innenhof eines Wohn- und Gewerbekomplexes. Die großzügige Fläche von ca. 195 m² überzeugt durch einen funktionalen und zugleich repräsentativen Grundriss, der sich ideal für Büro- oder Praxisnutzungen eignet. Die Einheit ist neuwertig, modern ausgestattet und vollständig möbliert. Ein besonderes Highlight ist der große Balkon mit Blick in den ruhigen Innenhof, der zusätzliche Aufenthaltsqualität bietet.
Nutzungsmöglichkeiten
Die Einheit ist zur Nutzung als Büro- bzw. Praxisetage vorgesehen und eignet sich ideal für:
• Unternehmen und Agenturen
• Freiberufler
• Praxisgemeinschaften
• Beratungs- oder Dienstleistungsbetriebe
• Atelier für künstlerische Entfaltung
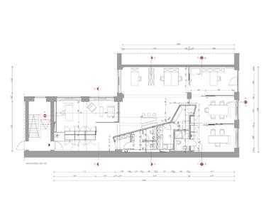
Flächenaufteilung:
• Großer, zentraler Flur
• Besprechungszimmer
• Sehr großer Büroraum (Open-Space-tauglich)
• Zwei weitere Büroräume
• Chefbüro mit angrenzendem Wannenbad
• Kleine Küche mit Kochmöglichkeit
• Separates Damen-WC
• Separates Herren-WC
• Großer Balkon
Ein Grundriss ist vorhanden.
Zur Vermietung steht eine hochwertig ausgestattete und äußerst gepflegte Büro- bzw. Praxisetage in zentraler Lage von Berlin-Lichtenberg. Die Einheit befindet sich im Hochparterre eines charmanten Altbaus aus ca. 1920 und liegt ruhig im Innenhof eines Wohn- und Gewerbekomplexes. Die großzügige Fläche von ca. 195 m² überzeugt durch einen funktionalen und zugleich repräsentativen Grundriss, der sich ideal für Büro- oder Praxisnutzungen eignet. Die Einheit ist neuwertig, modern ausgestattet und vollständig möbliert. Ein besonderes Highlight ist der große Balkon mit Blick in den ruhigen Innenhof, der zusätzliche Aufenthaltsqualität bietet.
Nutzungsmöglichkeiten
Die Einheit ist zur Nutzung als Büro- bzw. Praxisetage vorgesehen und eignet sich ideal für:
• Unternehmen und Agenturen
• Freiberufler
• Praxisgemeinschaften
• Beratungs- oder Dienstleistungsbetriebe
• Atelier für künstlerische Entfaltung
Flächenaufteilung:
• Großer, zentraler Flur
• Besprechungszimmer
• Sehr großer Büroraum (Open-Space-tauglich)
• Zwei weitere Büroräume
• Chefbüro mit angrenzendem Wannenbad
• Kleine Küche mit Kochmöglichkeit
• Separates Damen-WC
• Separates Herren-WC
• Großer Balkon
Ein Grundriss ist vorhanden.
Ausstattung
Ausstattung:
• sehr gepflegter Zustand
• Pflegeleichter Epoxidharzboden in allen Räumen
• Dusch- bzw. Wannenbad angrenzend an das Chefbüro
• Separate Sanitäranlagen für Damen und Herren
• Kleine Einbauküche
• IT- und Netzwerkinfrastruktur mit allen erforderlichen Anschlüssen
• Komplett möbliert
Möblierung / Geschäftsausstattung:
Das Gewerbeobjekt wird vollständig möbliert angeboten. Zur Ausstattung gehören unter anderem:
• Schreibtische und Bürostühle
• Couch und Tisch im Besprechungsraum
• Zahlreiche Einbauschränke
• Zeitlose Büroschränke und Sideboards
Optional besteht die Möglichkeit, die gesamte Geschäftsausstattung gegen einen noch zu verhandelnden Abstand zu erwerben oder alternativ anzumieten.
• sehr gepflegter Zustand
• Pflegeleichter Epoxidharzboden in allen Räumen
• Dusch- bzw. Wannenbad angrenzend an das Chefbüro
• Separate Sanitäranlagen für Damen und Herren
• Kleine Einbauküche
• IT- und Netzwerkinfrastruktur mit allen erforderlichen Anschlüssen
• Komplett möbliert
Möblierung / Geschäftsausstattung:
Das Gewerbeobjekt wird vollständig möbliert angeboten. Zur Ausstattung gehören unter anderem:
• Schreibtische und Bürostühle
• Couch und Tisch im Besprechungsraum
• Zahlreiche Einbauschränke
• Zeitlose Büroschränke und Sideboards
Optional besteht die Möglichkeit, die gesamte Geschäftsausstattung gegen einen noch zu verhandelnden Abstand zu erwerben oder alternativ anzumieten.
Lage des Objektes
Die Immobilie befindet sich in der Siegfriedstraße im Berliner Stadtteil Lichtenberg. Die Lage zeichnet sich durch eine hervorragende Infrastruktur sowie eine gute Mischung aus Wohnen, Gewerbe und Dienstleistung aus.
Verkehrsanbindung:
Der S- und U-Bahnhof Lichtenberg ist fußläufig erreichbar und gewährleistet eine ausgezeichnete Anbindung an den öffentlichen Nahverkehr.
Umfeld:
Einzelhandel, Büroeinheiten, Praxen, Schulen sowie Wohnbebauung prägen das direkte Umfeld.
Trotz der zentralen Lage bietet die Einheit eine ruhige Arbeitsatmosphäre durch ihre Position im Innenhof. Zahlreiche öffentliche Parkplätze stehen im Innenhof zur Verfügung.
Verkehrsanbindung:
Der S- und U-Bahnhof Lichtenberg ist fußläufig erreichbar und gewährleistet eine ausgezeichnete Anbindung an den öffentlichen Nahverkehr.
Umfeld:
Einzelhandel, Büroeinheiten, Praxen, Schulen sowie Wohnbebauung prägen das direkte Umfeld.
Trotz der zentralen Lage bietet die Einheit eine ruhige Arbeitsatmosphäre durch ihre Position im Innenhof. Zahlreiche öffentliche Parkplätze stehen im Innenhof zur Verfügung.
Sonstige Informationen
Sonstiges:
Alle Angaben basieren auf den Informationen des Eigentümers. Irrtümer und Zwischenvermietung bleiben vorbehalten.
Gerne stehen wir Ihnen für weitere Informationen oder zur Vereinbarung eines Besichtigungstermins zur Verfügung.
Fazit:
Diese hochwertig ausgestattete und vollständig möblierte Büro- bzw. Praxisetage vereint großzügige Flächen, flexible Nutzungsmöglichkeiten und eine ruhige Innenhoflage mit exzellenter Verkehrsanbindung. Dank sofortiger Verfügbarkeit, repräsentativem Grundriss und optionaler Übernahme der kompletten Geschäftsausstattung bietet das Objekt ideale Voraussetzungen für einen schnellen und reibungslosen Start am Standort Berlin-Lichtenberg
1
2
3
4
5
6
7
8
9
10
11
12
13
14
15
16
17
18
19
20
21
22
23
Grundriss