Exposé
Objektart:
Wohnung
» Etage
» Kauf
Standort: Wohnung »
Deutschland » Baden-Württemberg » Esslingen (Kreis) » Aichwald
Altersgerechtes Wohnen*Gepflegte Etagenwohnung mit Balkon und Tiefgaragenstellplatz in ruhiger Lage*
Balkon 1. OG
Das Wichtigste auf einen Blick:
| Objektnummer: | 9382253 |
Preise
| Kaufpreis | 250.000 € |
| Nebenkosten | keine Angabe |
| Hausgeld | 400 € |
Flächen
| Wohnfläche | 86,81 m² |
| Nutzfläche | 12 m² |
| Maklerprovision | 4,76% vom Kaufpreis (inkl. MwSt.) |
Objekt Adresse
73773 Aichwald
- Baden-Württemberg
Sonstige Angaben
| Baujahr | 1972 |
| Zimmer | 3 |
| Verfügbar ab | nach Vereinbarung |
| Bad | 1 |
| Inserat befindet sich im Stockwerk | 1 |
| Küche | Einbauküche |
| Bad | 1 |
| Bad | Wanne |
| Boden | Fliesen, Teppich, Linoleum |
| Balkone | 1 |
| Fahrstuhl | Ja |
| Keller | Ja |
| Energieausweistyp | Verbrauch |
| Gültig bis | 2024-04-28 |
| Energieeffizienzklasse | D |
| Energieverbrauchkennwert | 106,8 kWh/(m²*a) |
| Heizungsart | Zentralheizung |
| Wesentlicher Energieträger | Oel |
| Energieträger/Befeuerung | Öl |
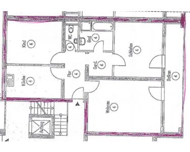
Objektbeschreibung
- - gepflegtes Mehrfamilienhaus (Baujahr 1972)
- - teilweise baujahrstypischer Bauweise
- - Etagenwohnung im 1. OG mit Aufzug erreichbar
- - ca. 87 qm Wohnfläche verteilt auf 3 Zimmer, Küche, Bad, WC
- - geräumiges Wohnzimmer, 2 Schlafzimmer vorhanden
- - große Küche mit EBK
- - innenliegendes Bad mt Wanne und Waschbecken
- - separates, innenliegendes WC
- - großer Balkon mit Blick ins Grüne
- - Bodenbeläge (Fliesen, Teppich, Linoleum)
- - Öl-Zentralheizung (2000)
- - PVC-ISO-Fenster (2004)
- - eigener ca. 12 qm großer Kellerraum vorhanden
- - Tiefgaragenstellplatz (Preis VB15.000 Euro)
- - Wohnung ist derzeit vermietet
Lage des Objektes
- - ruhige Ortsrandlage von Aichwald / OT Schanbach
- - familienfreundliche Wohnsiedlung
- - gute Verkehrsanbindung
- - Dinge des täglichen Bedarfs bequem erreichbar
- - Kita und Grundschule am Ort
Küche 1. OG
2. Schlafzimmer 1. OG
Wannenbad 1. OG
Flur 1. OG