Exposé
Objektart:
Wohnung
» Dachgeschoss
» Kauf
Standort: Wohnung »
Deutschland » Niedersachsen » Emsland (Kreis) » Haren (Ems)
Citynahes Wohnen über den Dächern von Haren – Ideal für Eigennutzer oder Kapitalanleger
DG Wohnung in top Lage
Das Wichtigste auf einen Blick:
| Objektnummer: | 9382127 |
Preise
| Kaufpreis | 160.000 € |
| Nebenkosten | keine Angabe |
Flächen
| Wohnfläche | 72,7 m² |
Objekt Adresse
49733 Haren (Ems)
Sonstige Angaben
| Baujahr | 1992 |
| Zimmer | 2 |
| Verfügbar ab | nach Vereinbarung |
| Bad | 1 |
| Küche | Einbauküche |
| Bad | 1 |
| Bad | Dusche, Fenster |
| Boden | Fliesen, Laminat |
| Balkone | 1 |
| Keller | Ja |
| Energieausweistyp | Bedarfsausweis |
| Ausstellungsdatum | 11. 05. 2025 |
| Gültig bis | 10.05.2035 |
| Baujahr (laut Energieausweis) | 1992 |
| Energieeffizienzklasse | D |
| Endenergiebedarf | 105.1 kWh/(m²*a) |
| Wesentlicher Energieträger | Erdgas Leicht |
| Energieträger/Befeuerung | Gas |
Objektbeschreibung
Charmante Dachgeschosswohnung im Herzen von Haren – Ideal für Eigennutzer oder Kapitalanleger
Diese gepflegte Eigentumswohnung im Dachgeschoss (2. Obergeschoss) eines ruhigen, zentral gelegenen Mehrfamilienhauses bietet eine hervorragende Gelegenheit, komfortables Wohnen mit einer erstklassigen Innenstadtlage zu verbinden. Mit einer Wohnfläche von ca. 72,70 m² überzeugt die Wohnung durch eine durchdachte Raumaufteilung, moderne Ausstattungsdetails und eine attraktive Wohnatmosphäre. Das Gebäude wurde 1992 erbaut und umfasst insgesamt 14 Wohneinheiten, wodurch eine angenehme Hausgemeinschaft gewährleistet ist.
Diese Dachgeschosswohnung kombiniert eine top Innenstadtlage, eine gepflegte Ausstattung und eine durchdachte Raumgestaltung. Ob als komfortables Eigenheim oder sicheres Anlageobjekt – hier investieren Sie in eine wertstabile Immobilie im Herzen von Haren. Einziehen, wohlfühlen und die Vorzüge der Stadt direkt vor der Haustür genießen.
Diese gepflegte Eigentumswohnung im Dachgeschoss (2. Obergeschoss) eines ruhigen, zentral gelegenen Mehrfamilienhauses bietet eine hervorragende Gelegenheit, komfortables Wohnen mit einer erstklassigen Innenstadtlage zu verbinden. Mit einer Wohnfläche von ca. 72,70 m² überzeugt die Wohnung durch eine durchdachte Raumaufteilung, moderne Ausstattungsdetails und eine attraktive Wohnatmosphäre. Das Gebäude wurde 1992 erbaut und umfasst insgesamt 14 Wohneinheiten, wodurch eine angenehme Hausgemeinschaft gewährleistet ist.
Diese Dachgeschosswohnung kombiniert eine top Innenstadtlage, eine gepflegte Ausstattung und eine durchdachte Raumgestaltung. Ob als komfortables Eigenheim oder sicheres Anlageobjekt – hier investieren Sie in eine wertstabile Immobilie im Herzen von Haren. Einziehen, wohlfühlen und die Vorzüge der Stadt direkt vor der Haustür genießen.
Ausstattung
Ausstattung & Wohnkomfort
Die Wohnung präsentiert sich in einem relativ guten und gepflegten Gesamtzustand. Durch die Lage im Dachgeschoss genießen Sie eine helle, freundliche Wohnatmosphäre mit besonderem Charme.
Zu den Ausstattungsmerkmalen zählen:
- Großzügiger Wohn- und Essbereich mit direktem Zugang zum Balkon
- Balkon mit schönem Ausblick – perfekt, um nach Feierabend zu entspannen
- Einbauküche aus dem Jahr 2020, modern, gepflegt und bereits im Kaufpreis enthalten
- Renoviertes Badezimmer (2022) mit ansprechender Ausstattung und Dusche
- Kunststofffenster, erneuert im Jahr 2009, sorgen für gute Energieeffizienz und Wärmedämmung
- Gastherme im Keller – zentrale Versorgung für Wärme und Warmwasser
- Separater Kellerraum – ideal für zusätzlichen Stauraum
- Gemeinschaftlicher Waschraum im Kellergeschoss
- Grundstücksanteil nach WEG-Regelung
Die Wohnung bietet ausreichend Platz für Singles, Paare oder auch als attraktives Renditeobjekt für Vermieter. Die neutrale und gepflegte Ausstattung ermöglicht einen schnellen Einzug ohne großen Renovierungsaufwand.
Gebäude & Gemeinschaft
Das Mehrfamilienhaus aus dem Jahr 1992 ist solide gebaut und wird regelmäßig instandgehalten. Mit insgesamt 14 Wohneinheiten ist das Haus weder zu groß noch zu klein – genau richtig für eine angenehme nachbarschaftliche Struktur. Gemeinsame Bereiche wie der Waschraum oder das Treppenhaus werden zuverlässig durch einen Hausmeisterservice gepflegt.
Kosten & Nebenkosten
Das monatliche Hausgeld beträgt 233,00 € und beinhaltet bereits Kosten für Gas, Schornsteinfeger, Hausmeister, Treppenhausreinigung und Winterdienst.
Zusätzlich fallen an:
Strom: 105 € pro Monat
Wasser: ca. 100 € vierteljährlich
Die Wohnung präsentiert sich in einem relativ guten und gepflegten Gesamtzustand. Durch die Lage im Dachgeschoss genießen Sie eine helle, freundliche Wohnatmosphäre mit besonderem Charme.
Zu den Ausstattungsmerkmalen zählen:
- Großzügiger Wohn- und Essbereich mit direktem Zugang zum Balkon
- Balkon mit schönem Ausblick – perfekt, um nach Feierabend zu entspannen
- Einbauküche aus dem Jahr 2020, modern, gepflegt und bereits im Kaufpreis enthalten
- Renoviertes Badezimmer (2022) mit ansprechender Ausstattung und Dusche
- Kunststofffenster, erneuert im Jahr 2009, sorgen für gute Energieeffizienz und Wärmedämmung
- Gastherme im Keller – zentrale Versorgung für Wärme und Warmwasser
- Separater Kellerraum – ideal für zusätzlichen Stauraum
- Gemeinschaftlicher Waschraum im Kellergeschoss
- Grundstücksanteil nach WEG-Regelung
Die Wohnung bietet ausreichend Platz für Singles, Paare oder auch als attraktives Renditeobjekt für Vermieter. Die neutrale und gepflegte Ausstattung ermöglicht einen schnellen Einzug ohne großen Renovierungsaufwand.
Gebäude & Gemeinschaft
Das Mehrfamilienhaus aus dem Jahr 1992 ist solide gebaut und wird regelmäßig instandgehalten. Mit insgesamt 14 Wohneinheiten ist das Haus weder zu groß noch zu klein – genau richtig für eine angenehme nachbarschaftliche Struktur. Gemeinsame Bereiche wie der Waschraum oder das Treppenhaus werden zuverlässig durch einen Hausmeisterservice gepflegt.
Kosten & Nebenkosten
Das monatliche Hausgeld beträgt 233,00 € und beinhaltet bereits Kosten für Gas, Schornsteinfeger, Hausmeister, Treppenhausreinigung und Winterdienst.
Zusätzlich fallen an:
Strom: 105 € pro Monat
Wasser: ca. 100 € vierteljährlich
Lage des Objektes
Lage – Wohnen direkt in der Harener Innenstadt
Die Wohnung befindet sich in einer der begehrtesten Lagen von Haren. Die zentrale Lage macht die Wohnung sowohl für Eigennutzer als auch für Kapitalanleger besonders interessant. Hier wohnen Sie ruhig und dennoch mitten im Geschehen.
Haren (Ems) gehört zu den beliebtesten Wohnorten im nördlichen Emsland und überzeugt durch eine ideale Kombination aus städtischem Komfort, guter Infrastruktur und hoher Lebensqualität. Die lebendige Innenstadt bietet vielfältige Einkaufsmöglichkeiten, Ärzte, Apotheken, Restaurants und Cafés – alles schnell und bequem erreichbar. Familien profitieren von einem attraktiven Bildungsangebot mit mehreren Kindergärten, Grundschulen sowie weiterführenden Schulen.
Die Lage an der Ems und die Nähe zum Feriengebiet Dankern machen Haren besonders reizvoll: Spazierwege, Radstrecken, der Yachthafen und zahlreiche Freizeit- und Sportangebote bieten Erholung direkt vor der Haustür. Eine gute Verkehrsanbindung, kurze Wege Richtung Niederlande und eine aktive Vereinslandschaft runden das Angebot ab. Haren ist ein Wohnort, der Lebensqualität, Natur und urbanes Leben perfekt verbindet.
Die Wohnung befindet sich in einer der begehrtesten Lagen von Haren. Die zentrale Lage macht die Wohnung sowohl für Eigennutzer als auch für Kapitalanleger besonders interessant. Hier wohnen Sie ruhig und dennoch mitten im Geschehen.
Haren (Ems) gehört zu den beliebtesten Wohnorten im nördlichen Emsland und überzeugt durch eine ideale Kombination aus städtischem Komfort, guter Infrastruktur und hoher Lebensqualität. Die lebendige Innenstadt bietet vielfältige Einkaufsmöglichkeiten, Ärzte, Apotheken, Restaurants und Cafés – alles schnell und bequem erreichbar. Familien profitieren von einem attraktiven Bildungsangebot mit mehreren Kindergärten, Grundschulen sowie weiterführenden Schulen.
Die Lage an der Ems und die Nähe zum Feriengebiet Dankern machen Haren besonders reizvoll: Spazierwege, Radstrecken, der Yachthafen und zahlreiche Freizeit- und Sportangebote bieten Erholung direkt vor der Haustür. Eine gute Verkehrsanbindung, kurze Wege Richtung Niederlande und eine aktive Vereinslandschaft runden das Angebot ab. Haren ist ein Wohnort, der Lebensqualität, Natur und urbanes Leben perfekt verbindet.
Sonstige Informationen
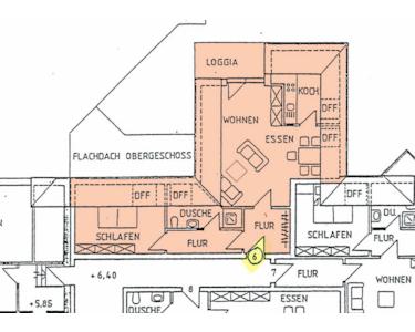
Wohnflächenaufteilung
Wohnung Nr. 6 DG nach WEG:
Flur ca. 5,69 m²
Flur ca. 5,55 m²
Wohnzimmer ca. 31,24 m²
Küche ca. 9,28 m²
Schlafzimmer ca. 15,06 m²
Badezimmer ca. 6,19 m²
Loggia ca. 1,88 m² anteilig
1 separater Kellerraum, gemeinschaftlicher Waschraum
Hausansicht
Hausansicht
Ausblick
Hauseingang
Wohnzimmer
Wohnzimmer
Wohnzimmer
Wohnzimmer
Wohnzimmer
Küche
Küche
Küche
Flur
Flur
Schlafzimmer
Flur
Badezimmer
Badezimmer
Treppenhaus
Treppenhaus
21
22
23
24
Grundriss Whg. Nr. 6
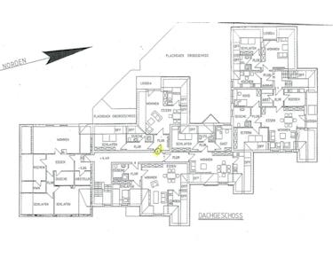
Grundriss OG gesamt