Exposé
Objektart:
Haus
» Doppelhaushaelfte
» Kauf
Standort: Haus »
Deutschland » Mecklenburg-Vorpommern » Ludwigslust (Kreis) » Ludwigslust
Effizienzhaus A+ im Zentrum von Ludwigslust
Das Wichtigste auf einen Blick:
| Objektnummer: | 9381869 |
Preise
| Kaufpreis | 489.000 € |
| Nebenkosten | keine Angabe |
Flächen
| Wohnfläche | 158 m² |
| Grundstücksfläche | 558 m² |
| Maklerprovision | keine Provision, courtagefrei |
Objekt Adresse
19288 Ludwigslust
- Mecklenburg-Vorpommern
Sonstige Angaben
| Baujahr | 2025 |
| Zimmer | 5 |
| Verfügbar ab | nach Absprache |
| Bad | 2 |
| Anzahl der Etagen im Haus | 3 |
| Küche | Einbauküche |
| Bad | 2 |
| Bad | Dusche, Wanne |
| Boden | Fliesen, Laminat, Kunststoff |
| Balkone | 0 |
| Garten | Ja |
| Terrassen | 1 |
| Energieausweistyp | Bedarfsausweis |
| Energieeffizienzklasse | A |
| Endenergiebedarf | 44 kWh/(m²*a) |
| Heizungsart | Fußbodenheizung |
| Energieträger/Befeuerung | Fernwärme |
Objektbeschreibung
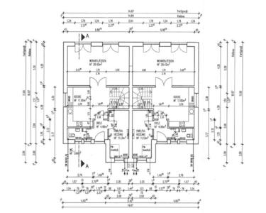
Diese ansprechende Doppelhaushälfte über 3 Etagen, errichtet in massiver Bauweise, zeichnet sich durch eine gehobene Innenausstattung aus und kann nach Absprache bezogen werden. Viel Platz zum Wohnen, Gärtnern, Spielen oder zum Grillen mit Freunden. Eine moderne Einbauküche steht zur Verfügung. Das 2025 erbaute Gebäude wird mit Fernwärme beheizt.
Effizienzhaus 55- Paket:
- Dämmung unter der Sohlplatte 12 cm WLG 0,035
- Putzfassade als 2- schaliges Mauerwerk mit Kerndämmung WLG 0,024, U- Wert = 0,13 W/ m²K
- Zwischensparrendämmung 240 mm WLG 0,035
- 3- fach Verglasung der Fenster/ Warme Kante Ug= 0,50
- Fenster Fa. Veka 6 Kammerprofil
- Fußbodenheizung EG und DG
Effizienzhaus 55- Paket:
- Dämmung unter der Sohlplatte 12 cm WLG 0,035
- Putzfassade als 2- schaliges Mauerwerk mit Kerndämmung WLG 0,024, U- Wert = 0,13 W/ m²K
- Zwischensparrendämmung 240 mm WLG 0,035
- 3- fach Verglasung der Fenster/ Warme Kante Ug= 0,50
- Fenster Fa. Veka 6 Kammerprofil
- Fußbodenheizung EG und DG
Ausstattung
Terrasse, Garten, Vollbad, Duschbad, Einbauküche, Gäste-WC, Laminat, Fliesen
Bemerkungen:
- Fußbodenfliesen EG und DG
- elektrische Aluminium- Rollläden EG und DG
- Lunos Lüftungsanlage mit Wärmerückgewinnung
- Vorbereitung Photovoltaik
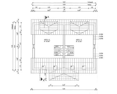
- Spitzboden ausgebaut, ca. 32 m² - Galeriegeschoss
- Glasfaseranschluss für Internet, TV und Telefon
- LED- Deckenstrahler im Dachgeschoss
- hochwertige Treppenanlagen
- hochwertige Innentüren
- ebenerdige Dusche mit Duschrinne, Bidet und Badewanne
- Waschtische im Bad und im Gäste- WC
- hochwertige Einbauküche mit Markengeräten
- EG 68,86 m²
- DG 57,28 m²
- Galerie 32,00 m²
- Schuppen im Garten
- Vorbereitung für Ladestation
Bemerkungen:
- Fußbodenfliesen EG und DG
- elektrische Aluminium- Rollläden EG und DG
- Lunos Lüftungsanlage mit Wärmerückgewinnung
- Vorbereitung Photovoltaik
- Spitzboden ausgebaut, ca. 32 m² - Galeriegeschoss
- Glasfaseranschluss für Internet, TV und Telefon
- LED- Deckenstrahler im Dachgeschoss
- hochwertige Treppenanlagen
- hochwertige Innentüren
- ebenerdige Dusche mit Duschrinne, Bidet und Badewanne
- Waschtische im Bad und im Gäste- WC
- hochwertige Einbauküche mit Markengeräten
- EG 68,86 m²
- DG 57,28 m²
- Galerie 32,00 m²
- Schuppen im Garten
- Vorbereitung für Ladestation
Lage des Objektes
Ludwigslust hat ca. 12.600 Einwohner, ein wunderschönes Schloss mit einem weitläufigen Schlosspark. In ca. 5 km Entfernung befindet sich eine Autobahnauffahrt zur A 14. Das Autobahnkreuz zwischen A24 und A 14 befindet sich in ca. 12 km Entfernung.
Die Innenstadt von Ludwigslust bietet eine optimale Infrastruktur, u.a. ein modernes Klinikum, ein reichhaltiges Kulturangebot, das Schloss mit Museum, die Stadthalle sowie ein Kino. Zahlreiche Geschäfte für den täglichen Bedarf, kleine Cafés und sehr gute Restaurants bieten für jeden Geschmack eine große Auswahl.
Sämtliche Schulen sind gut erreichbar. Ein ausgesprochen breites Angebot an Sport- und Freizeitmöglichkeiten ist in der näheren Umgebung ebenfalls vorhanden. Die Stadt besitzt einen Bahnhof mit IC/ ICE-Anschluss in Richtung Hamburg (ca. 45 min), Berlin (ca. 75 min) und Schwerin (ca. 25 min).
Infrastruktur (im Umkreis von 5 km):
Apotheke, Lebensmittel-Discount, Allgemeinmediziner, Kindergarten, Grundschule, Hauptschule, Realschule, Gymnasium, Gesamtschule, Öffentliche Verkehrsmittel
Die Innenstadt von Ludwigslust bietet eine optimale Infrastruktur, u.a. ein modernes Klinikum, ein reichhaltiges Kulturangebot, das Schloss mit Museum, die Stadthalle sowie ein Kino. Zahlreiche Geschäfte für den täglichen Bedarf, kleine Cafés und sehr gute Restaurants bieten für jeden Geschmack eine große Auswahl.
Sämtliche Schulen sind gut erreichbar. Ein ausgesprochen breites Angebot an Sport- und Freizeitmöglichkeiten ist in der näheren Umgebung ebenfalls vorhanden. Die Stadt besitzt einen Bahnhof mit IC/ ICE-Anschluss in Richtung Hamburg (ca. 45 min), Berlin (ca. 75 min) und Schwerin (ca. 25 min).
Infrastruktur (im Umkreis von 5 km):
Apotheke, Lebensmittel-Discount, Allgemeinmediziner, Kindergarten, Grundschule, Hauptschule, Realschule, Gymnasium, Gesamtschule, Öffentliche Verkehrsmittel
Sonstige Informationen
Heizungsart: Fußbodenheizung
Energieträger: Fernwärme
Makleranfragen nicht erwünscht. Nach § 7 UWG sind unaufgeforderte Kontaktaufnahmen durch Makler ohne ausdrückliche Einwilligung des Empfängers verboten!
ohne-makler (OM) ist weder Anbieter noch Vermittler der Immobilie. OM betreibt eine Plattform für Immobilieneigentümer, die unter anderem die gleichzeitige Veröffentlichung einzelner Inserate auf mehreren Immobilienportalen ermöglicht. Die Inhalte dieser Inserate werden ausschließlich von Dritten verantwortet. Für die Richtigkeit, Vollständigkeit oder Rechtmäßigkeit der Angaben übernimmt OM keine Haftung. Hinweise auf mögliche Rechtsverstöße können jederzeit gemeldet werden und werden nach Prüfung umgehend bearbeitet.