Exposé
Objektart:
Wohnung
» Etage
» Miete
Standort: Wohnung »
Deutschland » Mecklenburg-Vorpommern » Ludwigslust (Kreis) » Boizenburg/Elbe
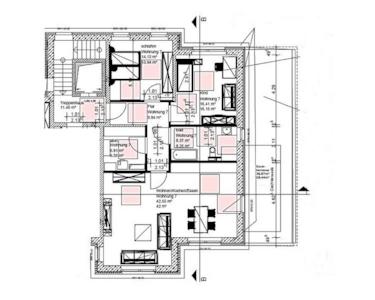
ERSTBEZUG / EINMALIG: Große, moderne 3,5-Raum-Wohnung mit 37 m² Dachterrasse in ruhiger Lage
Hausansicht - WE-Lage
Das Wichtigste auf einen Blick:
| Objektnummer: | 9381788 |
Preise
| Kaltmiete (netto) | 1.300 € |
| Nebenkosten | 225 € |
| Heizkosten enthalten | Ja |
| Kaution | 2.600 € |
Flächen
| Wohnfläche | 114 m² |
Objekt Adresse
19258 Boizenburg/Elbe
- Mecklenburg-Vorpommern
Sonstige Angaben
| Baujahr | 2025 |
| Zimmer | 3,5 |
| Verfügbar ab | nach Absprache |
| Bad | 1 |
| Inserat befindet sich im Stockwerk | 2 |
| Bad | 1 |
| Bad | Wanne |
| Boden | Fliesen, Kunststoff |
| Balkone | 2 |
| Terrassen | 1 |
| Fahrstuhl | Ja |
| Energieausweistyp | Bedarfsausweis |
| Energieeffizienzklasse | A |
| Endenergiebedarf | 33 kWh/(m²*a) |
| Heizungsart | Fußbodenheizung |
| Energieträger/Befeuerung | Luft-Wärme-Pumpe |
Objektbeschreibung
Modernes Mehrfamilienhaus mit 8 WE, Fahrstuhl und Nebengelass
Unser Haus ist Baujahr 2025 und nach dem KFW55-Standard errichtet.
Diese große 3-Raum-Wohnung ist großzügig geschnitten und ideal für Paare oder junge Familien.
Das Highlight dieser tollen Wohnung ist die einzigartige, riesige Dachterrasse mit einer Fläche von ca. 37 m²! (Bewohner anderer Wohnungen haben natürlich keinen Zugang zu dieser Dachterrasse.)
Die Wohnfläche beträgt 114m² (Innenbereich 96m² zzgl. Dachterrasse gem. WoFlV).
Gehobene Ausstattung:
- Designbodenbelag
- Bad mit Echtglas-Dusche und Badewanne
- Fahrstuhl
- riesige 37 m² Dachterrasse
- Fußbodenheizung
- elektrische Außenjalousien an den Fenstern zum Innenhof für mehr Privatsphäre
- zusätzlicher Abstell-/Haushaltsraum in der Wohnung
- Nebengelass zu jeder Wohnung: überdachter Stellplatz mit privatem Abstell-/Arbeitsraum
Zusätzliche Vorteile:
- Neubau mit Erstbezug!
- Provisionsfrei: freie Vermietung von Privat
- niedrige Kaution: 2 statt 3 Nettokaltmieten Mietkaution
- geringe Nebenkosten
- wenig Energieverbrauch dank KFW55-Bauweise
- Energiequelle: Wärmepumpe
Unser Haus ist Baujahr 2025 und nach dem KFW55-Standard errichtet.
Diese große 3-Raum-Wohnung ist großzügig geschnitten und ideal für Paare oder junge Familien.
Das Highlight dieser tollen Wohnung ist die einzigartige, riesige Dachterrasse mit einer Fläche von ca. 37 m²! (Bewohner anderer Wohnungen haben natürlich keinen Zugang zu dieser Dachterrasse.)
Die Wohnfläche beträgt 114m² (Innenbereich 96m² zzgl. Dachterrasse gem. WoFlV).
Gehobene Ausstattung:
- Designbodenbelag
- Bad mit Echtglas-Dusche und Badewanne
- Fahrstuhl
- riesige 37 m² Dachterrasse
- Fußbodenheizung
- elektrische Außenjalousien an den Fenstern zum Innenhof für mehr Privatsphäre
- zusätzlicher Abstell-/Haushaltsraum in der Wohnung
- Nebengelass zu jeder Wohnung: überdachter Stellplatz mit privatem Abstell-/Arbeitsraum
Zusätzliche Vorteile:
- Neubau mit Erstbezug!
- Provisionsfrei: freie Vermietung von Privat
- niedrige Kaution: 2 statt 3 Nettokaltmieten Mietkaution
- geringe Nebenkosten
- wenig Energieverbrauch dank KFW55-Bauweise
- Energiequelle: Wärmepumpe
Ausstattung
Balkon, Terrasse, Dachterrasse, Fahrstuhl, Vollbad, Fliesen
Bemerkungen:
Gehobene Ausstattung:
- Designbodenbelag
- Tageslicht-Bad mit Echtglas-Dusche und Badewanne
- Fahrstuhl
- riesige 37 m² Dachterrasse
- Fußbodenheizung
- elektrische Außenjalousien an den Fenstern zum Innenhof für mehr Privatsphäre
- zusätzlicher Abstell-/Haushaltsraum in der Wohnung
- Nebengelass zu jeder Wohnung: überdachter Stellplatz mit privatem Abstell-/Arbeitsraum
Zusätzlich gibt es behindertengerechte Parkplätze auf dem Hof.
Bemerkungen:
Gehobene Ausstattung:
- Designbodenbelag
- Tageslicht-Bad mit Echtglas-Dusche und Badewanne
- Fahrstuhl
- riesige 37 m² Dachterrasse
- Fußbodenheizung
- elektrische Außenjalousien an den Fenstern zum Innenhof für mehr Privatsphäre
- zusätzlicher Abstell-/Haushaltsraum in der Wohnung
- Nebengelass zu jeder Wohnung: überdachter Stellplatz mit privatem Abstell-/Arbeitsraum
Zusätzlich gibt es behindertengerechte Parkplätze auf dem Hof.
Lage des Objektes
Das Mehrfamilienhaus mit 8 Wohneinheiten und Nebengelass befindet sich in einer ruhigen Wohngegend in einer Seitenstraße, umgeben von Eigenheimen mit wenig Durchgangsverkehr.
In der Nähe befinden sich:
- ein Discounter (450m Fußweg)
- ein Bäcker
- eine Raiffeisenbank
- der Bahnhof (550m Fußweg)
- eine Apotheke
- Ärzte und Tierärzte
Infrastruktur (im Umkreis von 5 km):
Apotheke, Lebensmittel-Discount, Allgemeinmediziner, Kindergarten, Öffentliche Verkehrsmittel
In der Nähe befinden sich:
- ein Discounter (450m Fußweg)
- ein Bäcker
- eine Raiffeisenbank
- der Bahnhof (550m Fußweg)
- eine Apotheke
- Ärzte und Tierärzte
Infrastruktur (im Umkreis von 5 km):
Apotheke, Lebensmittel-Discount, Allgemeinmediziner, Kindergarten, Öffentliche Verkehrsmittel
Sonstige Informationen
Heizungsart: Fußbodenheizung
Energieträger: Luft-/Wasserwärme
BESICHTIGUNGSANFRAGEN BITTE NUR BEI ERNSTHAFTEM INTERESSE.
Makleranfragen nicht erwünscht. Nach § 7 UWG sind unaufgeforderte Kontaktaufnahmen durch Makler ohne ausdrückliche Einwilligung des Empfängers verboten!
ohne-makler (OM) ist weder Anbieter noch Vermittler der Immobilie. OM betreibt eine Plattform für Immobilieneigentümer, die unter anderem die gleichzeitige Veröffentlichung einzelner Inserate auf mehreren Immobilienportalen ermöglicht. Die Inhalte dieser Inserate werden ausschließlich von Dritten verantwortet. Für die Richtigkeit, Vollständigkeit oder Rechtmäßigkeit der Angaben übernimmt OM keine Haftung. Hinweise auf mögliche Rechtsverstöße können jederzeit gemeldet werden und werden nach Prüfung umgehend bearbeitet.
Aufzug
Flur
Schlafen
Schlafen
Kind
Kind
Kind
Kind
Tageslicht-Bad
Echtglas-Dusche
Tageslicht-Bad
Großer Abstellraum
Wohnen/Essen/Kochen
Wohnen/Essen/Kochen
Wohnen/Essen/Kochen
Wohnen/Essen/Kochen
Wohnen/Essen/Kochen
37m² Dachterrasse
37m² Dachterrasse
Carport m. Abstellraum
Carport m. Abstellraum
Abstellraum