Exposé
Objektart:
Wohnung
» Etage
» Miete
Standort: Wohnung »
Deutschland » Sachsen » Chemnitz, Stadt (Kreis) » Chemnitz
Mit neuem Bad! 71m² Wohnung in Bernsdorf!
Hausansicht Detail
Angeboten von:
Marko Künne Immobilien
Käthe-Kollwitz-Str. 58c
04109 Leipzig
Deutschland
Telefon:+49(0)341-4429566
Fax:+49(0)341-2253930
www.kuenne-immobilien.de
Ansprechpartner/in
Marko Künne Immobilien
Markus Richter
| Telefon: | 0176 76706734 |
| Fax: | 0341 2253930 |
Das Wichtigste auf einen Blick:
| Objektnummer: | 9381268 |
Preise
| Kaltmiete | 355 € |
| Warmmiete | 533 € |
| Nebenkosten | 178 € |
| Heizkosten enthalten | Ja |
| Mietpreis pro m² | 5 € |
| Kaution | 710 € |
Flächen
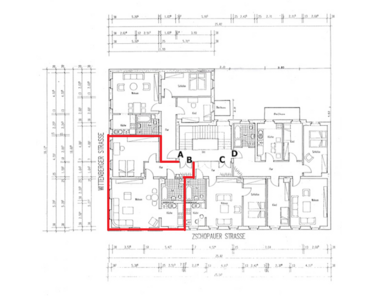
| Wohnfläche | 71 m² |
Objekt Adresse
Zschopauer Straße 142
09126 Chemnitz
- Sachsen
Sonstige Angaben
| Zimmer | 2 |
| Verfügbar ab | sofort |
| Inserat befindet sich im Stockwerk | 3 |
| Bad | Wanne |
| Boden | Fliesen, Parkett |
Objektbeschreibung
NEU in der Vermietung: Mit neuem Bad! 71m² Wohnung in Bernsdorf!
- 3.Obergeschoss im gepflegten Altbau
- helle 2 Zimmerwohnung
- ca. 71 m² Wohnfläche
- saniertes Bad mit Badewanne
- separate Küche
Worauf warten Sie noch? Jetzt Besichtigung vereinbaren!
PS: Bilder vom neuen Bad und der Küche folgen zeitnah.
" frisch, engagiert, solide "
Die Künne Immobilien Gruppe ist professioneller Dienstleister der Immobilienbranche und steht Ihnen in den Bereichen Projektentwicklung, Verkauf, Vermietung, Verwaltung und Facility Management zur Verfügung.
Für weitere Informationen und Einblicke besuchen Sie unsere Homepage: www.kuenne-gruppe.de Sie wollen Ihre Immobilie verkaufen? Egal ob Mehrfamilien- oder Einfamilienhaus, Eigentumswohnung, Grundstück oder Neubau- bzw. Bauträgerprojekt. Wir vermitteln kompetent, transparent und zügig Ihre Immobilie, bundesweit.
- 3.Obergeschoss im gepflegten Altbau
- helle 2 Zimmerwohnung
- ca. 71 m² Wohnfläche
- saniertes Bad mit Badewanne
- separate Küche
Worauf warten Sie noch? Jetzt Besichtigung vereinbaren!
PS: Bilder vom neuen Bad und der Küche folgen zeitnah.
" frisch, engagiert, solide "
Die Künne Immobilien Gruppe ist professioneller Dienstleister der Immobilienbranche und steht Ihnen in den Bereichen Projektentwicklung, Verkauf, Vermietung, Verwaltung und Facility Management zur Verfügung.
Für weitere Informationen und Einblicke besuchen Sie unsere Homepage: www.kuenne-gruppe.de Sie wollen Ihre Immobilie verkaufen? Egal ob Mehrfamilien- oder Einfamilienhaus, Eigentumswohnung, Grundstück oder Neubau- bzw. Bauträgerprojekt. Wir vermitteln kompetent, transparent und zügig Ihre Immobilie, bundesweit.
Lage des Objektes
Die Zschopauer Straße 142 liegt im lebhaften Stadtteil Bernsdorf in Chemnitz, in unmittelbarer Nähe zur Technischen Universität. Die Umgebung bietet eine Mischung aus Wohn- und Geschäftsbauten sowie zahlreiche Einkaufsmöglichkeiten und Gastronomie. Öffentliche Verkehrsmittel sind fußläufig erreichbar, das Stadtzentrum ist nur wenige Minuten entfernt. Ideal für urbanes Wohnen in zentraler Lage.
Sonstige Informationen
Alle Angaben sind ohne Gewähr und basieren ausschließlich auf Informationen, die uns von unserem Auftraggeber zur Verfügung gestellt wurden. Wir übernehmen keine Gewähr für die Vollständig, Richtigkeit und Aktualität dieser Angaben
Wohnzimmer
Wohnzimmer
Schlafzimmer
Schlafzimmer
Treppenhaus
Hausansicht Detail
Grundriss