Exposé
Objektart:
Wohnung
» Etage
» Kauf
Wohnungen mit 2 Schlafzimmern, 2 Badezimmern, Klimaanlage, optionalem Tiefgaragenstellplatz und Gemeinschaftspool nur 100 m vom Strand
Das Wichtigste auf einen Blick:
| Objektnummer: | 9380314 |
Preise
| Kaufpreis | 297.000 € |
| Nebenkosten | keine Angabe |
Flächen
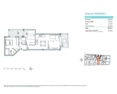
| Wohnfläche | 77 m² |
Objekt Adresse
03140 Guardamar del Segura
- Valencia
Sonstige Angaben
| Zimmer | 3 |
| Verfügbar ab | keine Angabe |
| Bad | 2 |
| Küche | Offene Küche |
| Bad | 2 |
| Boden | Fliesen |
| Terrassen | 1 |
| Fahrstuhl | Ja |
Objektbeschreibung
Diese wunderschönen Wohnungen in Strandnähe verfügen über eine konstruierte Fläche von ca. 77 m² - 89 m² (inklusive Terrassen) mit
2 Schlafzimmern,
2 Badezimmern,
1 Wohn-/Esszimmer mit
moderner Einbauküche und
1 Terrasse (ca. 6 m² - 9 m²).
Das Gebäude liegt in einer der begehrtesten Gegenden von Guardamar del Segura. Ein architektonisches Projekt, das dank seiner Nähe zum Strand, der nur 100 Meter entfernt ist, und seiner großen Auswahl an Dienstleistungen und Annehmlichkeiten die perfekte Wahl für Menschen sein wird, die ein wirklich einzigartiges Zuhause suchen. Seine Einrichtungen, darunter ein Pool und eine Sonnenterrasse auf dem Dach, werden den glücklichen Bewohnern einen unvergleichlichen Ort der Ruhe und Entspannung bieten.
Das Gebäude wird vierundvierzig Wohnungen sowie sechsundfünfzig Parkplätze und achtundvierzig Abstellräume umfassen. Die exklusiven Wohnungen werden in verschiedenen Formaten angeboten, mit ein bis drei Schlafzimmern und einem oder zwei Bädern. Alle werden über eine Terrasse verfügen, während die unteren Etagen sich zu einem wunderschönen Innenhof öffnen werden.
2 Schlafzimmern,
2 Badezimmern,
1 Wohn-/Esszimmer mit
moderner Einbauküche und
1 Terrasse (ca. 6 m² - 9 m²).
Das Gebäude liegt in einer der begehrtesten Gegenden von Guardamar del Segura. Ein architektonisches Projekt, das dank seiner Nähe zum Strand, der nur 100 Meter entfernt ist, und seiner großen Auswahl an Dienstleistungen und Annehmlichkeiten die perfekte Wahl für Menschen sein wird, die ein wirklich einzigartiges Zuhause suchen. Seine Einrichtungen, darunter ein Pool und eine Sonnenterrasse auf dem Dach, werden den glücklichen Bewohnern einen unvergleichlichen Ort der Ruhe und Entspannung bieten.
Das Gebäude wird vierundvierzig Wohnungen sowie sechsundfünfzig Parkplätze und achtundvierzig Abstellräume umfassen. Die exklusiven Wohnungen werden in verschiedenen Formaten angeboten, mit ein bis drei Schlafzimmern und einem oder zwei Bädern. Alle werden über eine Terrasse verfügen, während die unteren Etagen sich zu einem wunderschönen Innenhof öffnen werden.
Ausstattung
Jede Wohnung wird mit einer Klimaanlage und einer Hausautomatisierung ausgestattet sein, die es den Bewohnern ermöglicht, verschiedene Aspekte ihrer Wohnung zu steuern und zu automatisieren und so einen unvergleichlichen Komfort und eine hohe Energieeffizienz zu bieten. Die Küche, das Herzstück jeder Wohnung, wird mit hochwertigen Geräten wie Backofen, Geschirrspüler, Kühl- und Gefrierschrank, Dunstabzugshaube und Induktionskochfeld ausgestattet und bietet so einen funktionalen und modernen Raum zum Kochen und Genießen von Mahlzeiten in fröhlicher Runde. Darüber hinaus besteht die Möglichkeit, einen überdachten Garagenplatz und einen Abstellraum im selben Gebäude zu erwerben, um zusätzlichen Komfort und Stauraum zu bieten.
Lage des Objektes
Das Gebäude genießt eine wirklich privilegierte Lage, ganz in der Nähe des Strandes und umgeben von einer ganzen Reihe von Dienstleistungen und Annehmlichkeiten wie Restaurants, Geschäften, Supermärkten und Unterhaltungsmöglichkeiten. Guardamar del Segura, berühmt für seine schönen Sandstrände und die natürliche Umgebung, bietet einen ruhigen und entspannten Lebensstil mit allen notwendigen Annehmlichkeiten in unmittelbarer Nähe.
Guardamar del Segura ist eine wunderschöne Küstenstadt in der Provinz Alicante in der Region Valencia in Spanien. Eingebettet in die atemberaubende Costa Blanca ist dieses mediterrane Juwel berühmt für seine goldenen Strände, seine reiche Artenvielfalt und seine faszinierende Geschichte. Guardamar del Segura ist mehr als 1.800 Jahre alt und war Zeuge von Zivilisationen, die diese wunderbare Ecke der Welt nachhaltig geprägt haben. Entdecken wir also die Schönheit der Strände, die üppige Natur und die kulturellen Traditionen, die Guardamar del Segura zu einem unvergleichlichen Reiseziel machen.
Die Strände von Guardamar del Segura sind die Hauptattraktion für Besucher, die sich in der warmen Mittelmeersonne sonnen möchten. Entlang der elf Kilometer langen Küste gibt es mehrere Strände, die endlose Möglichkeiten bieten, das Meer zu genießen und die Sonne zu tanken. Der Hauptstrand von Guardamar ist berühmt für seinen weichen, goldenen Sand und sein kristallklares Wasser. Der mit der Blauen Flagge ausgezeichnete Strand garantiert einen hohen Qualitäts- und Sicherheitsstandard für die Badegäste. Der Strand La Roqueta, der direkt am Jachthafen liegt, ist eine weitere beliebte Option. Er ist von beeindruckenden Sanddünen umgeben und bietet eine ruhigere und weniger überfüllte Atmosphäre für Sonnenanbeter, die einen Ort zum Entspannen und Bewundern der Natur suchen.
Guardamar del Segura ist mit einer einzigartigen und außergewöhnlichen Naturlandschaft gesegnet: den Dünen von Guardamar. Diese Dünen im Süden der Stadt sind ein geschütztes Gebiet, das eine wertvolle Artenvielfalt beherbergt. Ein Spaziergang durch die Dünen ist ein magisches Erlebnis, bei dem die Meeresbrise Ihr Gesicht streichelt und der Gesang der Vögel eine natürliche Symphonie erzeugt. Auch der Park Alfonso XIII. ist einen Besuch wert. Dieser Stadtpark ist eine schattige und grüne Oase, in der man sich entspannen, Sport treiben oder ein gemütliches Picknick in einer friedlichen Umgebung genießen kann.
Guardamar del Segura ist auch der perfekte Ort für Liebhaber des Aktivtourismus und des Sports im Freien. Die Strände und das Meer laden zu einer Vielzahl von Wassersportarten ein, darunter Tauchen, Segeln, Kajakfahren und Schnorcheln. Wandern und Radfahren sind in der Region aufgrund der Schönheit der umliegenden Landschaften sehr beliebt. Die Vía Verde del Segura ist eine ehemalige Eisenbahnstrecke, die zu einem Weg für Radfahrer und Fußgänger umfunktioniert wurde. Sie führt durch die wunderschöne Landschaft und ermöglicht es den Besuchern, die Gegend auf nachhaltige Weise zu erkunden.
Guardamar del Segura ist eine wunderschöne Küstenstadt in der Provinz Alicante in der Region Valencia in Spanien. Eingebettet in die atemberaubende Costa Blanca ist dieses mediterrane Juwel berühmt für seine goldenen Strände, seine reiche Artenvielfalt und seine faszinierende Geschichte. Guardamar del Segura ist mehr als 1.800 Jahre alt und war Zeuge von Zivilisationen, die diese wunderbare Ecke der Welt nachhaltig geprägt haben. Entdecken wir also die Schönheit der Strände, die üppige Natur und die kulturellen Traditionen, die Guardamar del Segura zu einem unvergleichlichen Reiseziel machen.
Die Strände von Guardamar del Segura sind die Hauptattraktion für Besucher, die sich in der warmen Mittelmeersonne sonnen möchten. Entlang der elf Kilometer langen Küste gibt es mehrere Strände, die endlose Möglichkeiten bieten, das Meer zu genießen und die Sonne zu tanken. Der Hauptstrand von Guardamar ist berühmt für seinen weichen, goldenen Sand und sein kristallklares Wasser. Der mit der Blauen Flagge ausgezeichnete Strand garantiert einen hohen Qualitäts- und Sicherheitsstandard für die Badegäste. Der Strand La Roqueta, der direkt am Jachthafen liegt, ist eine weitere beliebte Option. Er ist von beeindruckenden Sanddünen umgeben und bietet eine ruhigere und weniger überfüllte Atmosphäre für Sonnenanbeter, die einen Ort zum Entspannen und Bewundern der Natur suchen.
Guardamar del Segura ist mit einer einzigartigen und außergewöhnlichen Naturlandschaft gesegnet: den Dünen von Guardamar. Diese Dünen im Süden der Stadt sind ein geschütztes Gebiet, das eine wertvolle Artenvielfalt beherbergt. Ein Spaziergang durch die Dünen ist ein magisches Erlebnis, bei dem die Meeresbrise Ihr Gesicht streichelt und der Gesang der Vögel eine natürliche Symphonie erzeugt. Auch der Park Alfonso XIII. ist einen Besuch wert. Dieser Stadtpark ist eine schattige und grüne Oase, in der man sich entspannen, Sport treiben oder ein gemütliches Picknick in einer friedlichen Umgebung genießen kann.
Guardamar del Segura ist auch der perfekte Ort für Liebhaber des Aktivtourismus und des Sports im Freien. Die Strände und das Meer laden zu einer Vielzahl von Wassersportarten ein, darunter Tauchen, Segeln, Kajakfahren und Schnorcheln. Wandern und Radfahren sind in der Region aufgrund der Schönheit der umliegenden Landschaften sehr beliebt. Die Vía Verde del Segura ist eine ehemalige Eisenbahnstrecke, die zu einem Weg für Radfahrer und Fußgänger umfunktioniert wurde. Sie führt durch die wunderschöne Landschaft und ermöglicht es den Besuchern, die Gegend auf nachhaltige Weise zu erkunden.
Sonstige Informationen
Der Energieausweis ist in Vorbereitung.