Exposé
Objektart:
Wohnung
» Erdgeschoss
» Kauf
Standort: Wohnung »
Deutschland » Nordrhein-Westfalen » Mönchengladbach, Stadt (Kreis) » Mönchengladbach / Wickrath
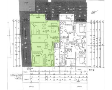
Moderne Erdgeschosswohnung mit Terrasse und Gartenoption – 109 m² purer Wohnkomfort
Visualisierung
Das Wichtigste auf einen Blick:
| Objektnummer: | 9380622 |
Preise
| Kaufpreis | 490.000 € |
| Nebenkosten | keine Angabe |
Flächen
| Wohnfläche | 109 m² |
| Nutzfläche | 20 m² |
| Maklerprovision | 4,76% |
Objekt Adresse
41189 Mönchengladbach / Wickrath
Sonstige Angaben
| Baujahr | 2024 |
| Zimmer | 4 |
| Verfügbar ab | keine Angabe |
| Bad | 1 |
| Anzahl der Etagen im Haus | 2 |
| Bad | 1 |
| Terrassen | 1 |
| Fahrstuhl | Ja |
| Keller | Ja |
| Heizungsart | Fußbodenheizung |
| Energieträger/Befeuerung | Luft-Wärme-Pumpe |
Objektbeschreibung
Wohnfläche: 109 m²
Preis pro Quadratmeter: 4.500 €
Gesamtpreis: 490.000€
Diese charmante Erdgeschosswohnung vereint modernen Wohnkomfort mit einer großzügigen Raumaufteilung. Auf ca. 109 m² bietet sie alles, was Familien und anspruchsvolle Paare sich wünschen. Der offene Wohn- und Essbereich mit einer eleganten Küche bildet das Herzstück der Wohnung und lädt zu gemeinsamen Stunden ein. Drei helle Schlafzimmer, ein hochwertig ausgestattetes Badezimmer sowie ein separates Gäste-WC sorgen für eine perfekte Wohnatmosphäre.
Der Clou:
Die Wohnung öffnet sich zu einer großzügigen Terrasse (ca. 12 m²), die ideal für entspannte Sommerabende oder das Frühstück im Freien ist. Optional kann der Außenbereich individuell gestaltet werden, z. B. als eigener Garten.
Diese charmante Erdgeschosswohnung vereint modernen Wohnkomfort mit einer großzügigen Raumaufteilung. Auf ca. 109 m² bietet sie alles, was Familien und anspruchsvolle Paare sich wünschen. Der offene Wohn- und Essbereich mit einer eleganten Küche bildet das Herzstück der Wohnung und lädt zu gemeinsamen Stunden ein. Drei helle Schlafzimmer, ein hochwertig ausgestattetes Badezimmer sowie ein separates Gäste-WC sorgen für eine perfekte Wohnatmosphäre.
Der Clou:
Die Wohnung öffnet sich zu einer großzügigen Terrasse (ca. 12 m²), die ideal für entspannte Sommerabende oder das Frühstück im Freien ist. Optional kann der Außenbereich individuell gestaltet werden, z. B. als eigener Garten.
Ausstattung
Besondere Ausstattungshighlights:
* Fußbodenheizung in allen Räumen für maximalen Komfort.
* Dreifachverglaste, energieeffiziente Fenster mit elektrischen Rollläden.
* Hochwertige Marken-Sanitärprodukte (Villeroy & Boch, Grohe).
* Nachhaltige Luft-Wasser-Wärmepumpe für kosteneffizientes Heizen.
* Barrierefreier Zugang und moderne Schließtechnik mit Video-Gegensprechanlage.
* Fußbodenheizung in allen Räumen für maximalen Komfort.
* Dreifachverglaste, energieeffiziente Fenster mit elektrischen Rollläden.
* Hochwertige Marken-Sanitärprodukte (Villeroy & Boch, Grohe).
* Nachhaltige Luft-Wasser-Wärmepumpe für kosteneffizientes Heizen.
* Barrierefreier Zugang und moderne Schließtechnik mit Video-Gegensprechanlage.
Lage des Objektes
Die Wohnanlage befindet sich in einer begehrten und gut etablierten Wohngegend im Stadtteil Wickrath. Diese zentrale Lage bietet eine ideale Kombination aus urbaner Lebensqualität und naturnaher Umgebung.
In unmittelbarer Nähe finden sich zahlreiche Einkaufsmöglichkeiten, Restaurants und Dienstleistungsangebote, die den täglichen Bedarf abdecken. Die ruhige und dennoch zentrale Lage sorgt für eine angenehme Wohnatmosphäre und bietet eine hohe Lebensqualität für alle Bewohner.
Die gute Verkehrsanbindung ermöglicht es, schnell in die umliegenden Stadtteile sowie in die Innenstadt von Mönchengladbach zu gelangen. Gleichzeitig lädt die umgebende Natur zu erholsamen Spaziergängen und Freizeitaktivitäten im Freien ein.
Diese Lage bietet somit eine perfekte Balance zwischen urbanem Lebensstil und naturnahem Wohnen und ist daher eine attraktive Wahl für Familien, Paare und Singles gleichermaßen.
In unmittelbarer Nähe finden sich zahlreiche Einkaufsmöglichkeiten, Restaurants und Dienstleistungsangebote, die den täglichen Bedarf abdecken. Die ruhige und dennoch zentrale Lage sorgt für eine angenehme Wohnatmosphäre und bietet eine hohe Lebensqualität für alle Bewohner.
Die gute Verkehrsanbindung ermöglicht es, schnell in die umliegenden Stadtteile sowie in die Innenstadt von Mönchengladbach zu gelangen. Gleichzeitig lädt die umgebende Natur zu erholsamen Spaziergängen und Freizeitaktivitäten im Freien ein.
Diese Lage bietet somit eine perfekte Balance zwischen urbanem Lebensstil und naturnahem Wohnen und ist daher eine attraktive Wahl für Familien, Paare und Singles gleichermaßen.
Sonstige Informationen
Die Immobilie wird voraussichtlich im April fertiggestellt, sodass Sie schon bald in Ihr neues Zuhause einziehen können. Derzeit besteht noch die Möglichkeit, individuelle Wünsche bei der Ausstattung einzubringen und das Wohnambiente nach Ihren Vorstellungen mitzugestalten.
Für Besichtigungstermine und weitere Informationen stehen wir Ihnen gerne zur Verfügung. Kontaktieren Sie uns und überzeugen Sie sich selbst von diesem außergewöhnlichen Angebot.
Alle Angaben in diesem Exposé wurden sorgfältig und nach bestem Wissen geprüft. Dennoch basieren einige Informationen auf Angaben Dritter, weshalb wir für deren Richtigkeit keine Gewähr übernehmen können. Dieses Angebot ist unverbindlich und freibleibend. Änderungen und Zwischenverkauf bleiben vorbehalten.
Frontansicht Haus
Wohnbereich_02
Diele_01
Wohnbereich_01
Wohnbereich_01
Grundriss Whg 1
Grundriss Kellergeschoss