Exposé
Objektart:
Haus
» Bungalow
» Kauf
Standort: Haus »
Deutschland » Niedersachsen » Emsland (Kreis) » Herzlake
Neubau-Winkelwalmdachbungalow - Kundenwünsche können berücksichtigt werden!
Moderner Bungalow
Das Wichtigste auf einen Blick:
| Objektnummer: | 9379638 |
Preise
| Kaufpreis | 362.000 € |
| Nebenkosten | keine Angabe |
Flächen
| Wohnfläche | 109,74 m² |
| Grundstücksfläche | 0 m² |
Objekt Adresse
49770 Herzlake
Sonstige Angaben
| Baujahr | 2026 |
| Zimmer | 3 |
| Verfügbar ab | nach Fertigstelllung |
| Garage/Stellplätze | 1 |
| Bad | Dusche, Wanne, Fenster |
| Boden | Fliesen, Laminat |
| Barrierefrei | |
| Garage/Stellplätze | 1 |
| Energieausweistyp | Bedarfsausweis |
| Baujahr (laut Energieausweis) | 2026 |
| Energieeffizienzklasse | A+ |
| Heizungsart | Fußbodenheizung |
| Wesentlicher Energieträger | Wärmepumpe |
| Energieträger/Befeuerung | Luft-Wärme-Pumpe |
Objektbeschreibung
Provisionsfrei für den Käufer: Dieser exklusive komfortable Neubau Winkelwalmdachbungalow kann auf einem Grundstück ihrer Wahl bzw. auf einem von ihnen zur Verfügung gestellten Grundstück im Emsland oder Ostfriesland erstellt werden. Der Kaufpreis bezieht sich auf das reine Wohnhaus das Grundstück ist nicht im Kaufpreis enthalten.
Die gesamte Grundrissgestaltung ist durchdacht und vor allem lichtdurchflutet, perfekte Anordnung der Fensterflächen bzw. Elemente. Im Dielenbereich befindet sich eine Aussparung (Treppenloch) in der Betondecke, hier wäre der Einbau einer formschönen Treppenanlage möglich. Der gesamte Dachgeschossbereich ist ausbaufähig, ca. 50 m² Ausbaureserve. Bei dem Ausbau des Dachgeschoss können die Wünsche oder Vorstellungen des Erwerbers berücksichtigt werden. Das Wohn/Esszimmer verfügt über bodentiefe Fensterelemente (kleiner Glaserker) von hier aus hat man einen traumhaften Blick auf das Gartengrundstück und betritt die großzügige und teilüberdachte Gartenterrasse. Das integrierte Esszimmer ist zur Küche hin mit einer Doppel-Schiebetür versehen. Durch die intelligent angeordneten Fensterflächen geht keine Stellplatzmöglichkeit verloren. Sie haben die Möglichkeit einen Kaminofen zu installieren, da ein Schornstein im Wohn-/Essbereich installiert wird. Es befinden sich 2 Schlafzimmer sowie ein großzügiges Bad im Objekt. Durchdachte Deckenspots Anordnung in der Immobilie sowie in den Dachüberständen von außen! Dieser Winkelwalmdachbungalow wird komplett schlüsselfertig inkl. Maler- & Gartenarbeiten erstellt. Auf eine hochwertige und einwandfreie Bauqualität wird geachtet.
Daten Energieausweis: In Vorbereitung!
Grundlegend erstellen wir klimafreundliche Gebäude nach BEG EH40 Standard
Die gesamte Grundrissgestaltung ist durchdacht und vor allem lichtdurchflutet, perfekte Anordnung der Fensterflächen bzw. Elemente. Im Dielenbereich befindet sich eine Aussparung (Treppenloch) in der Betondecke, hier wäre der Einbau einer formschönen Treppenanlage möglich. Der gesamte Dachgeschossbereich ist ausbaufähig, ca. 50 m² Ausbaureserve. Bei dem Ausbau des Dachgeschoss können die Wünsche oder Vorstellungen des Erwerbers berücksichtigt werden. Das Wohn/Esszimmer verfügt über bodentiefe Fensterelemente (kleiner Glaserker) von hier aus hat man einen traumhaften Blick auf das Gartengrundstück und betritt die großzügige und teilüberdachte Gartenterrasse. Das integrierte Esszimmer ist zur Küche hin mit einer Doppel-Schiebetür versehen. Durch die intelligent angeordneten Fensterflächen geht keine Stellplatzmöglichkeit verloren. Sie haben die Möglichkeit einen Kaminofen zu installieren, da ein Schornstein im Wohn-/Essbereich installiert wird. Es befinden sich 2 Schlafzimmer sowie ein großzügiges Bad im Objekt. Durchdachte Deckenspots Anordnung in der Immobilie sowie in den Dachüberständen von außen! Dieser Winkelwalmdachbungalow wird komplett schlüsselfertig inkl. Maler- & Gartenarbeiten erstellt. Auf eine hochwertige und einwandfreie Bauqualität wird geachtet.
Daten Energieausweis: In Vorbereitung!
Grundlegend erstellen wir klimafreundliche Gebäude nach BEG EH40 Standard
Ausstattung
Bodenbeläge:
Der gesamte Wohnbereich wird mit einer großformatigen und einheitlichen Bodenfliese bestückt. Die Schlafzimmer werden mit hochwertigen Laminatböden ausgelegt. Alle Räume des Wohnhauses verfügen über eine Fußbodenheizung.
Küche:
Angrenzend an dem Küchenbereich befindet sich ein großzügiger Hauswirtschaftsraum (Einbauschrank, Hauptanschlüsse Gas, Wasser und Stromzähler), direkter Zugang in den Garten sowie in die Garage. Gerne sind wir Ihnen auch bei der Wahl einer neuen Einbauküche behilflich, unser Küchenstudio wird Sie auch in diesem Punkt professionell beraten.
Bäder:
Das Top exklusive Badezimmer wird wie folgt ausgestattet: Wannenanlage, Waschbecken mit Halbsäule (Ablagefläche), bodentiefe Dusche mit Glastür, Hänge WC, deckenhohe und sehr geschmackvolle Verfliesung. Hochwertige Elemente und Armaturen. Das Gäste Dusch/WC wird gleichwertig ausgestattet, Hänge WC, Waschbecken mit Halbsäule sowie geschmackvoller Verfliesung.
Garage:
Die großzügige Garage mit angrenzendem Geräteraum hat einen direkten Zugang ins Objekt sowie in den hinteren Gartenbereich. Es wird ein hochwertiges Elektro-Sektionaltor eingebaut.
Grundstück:
Das Gartengrundstück wird komplett angelegt. Die Freiflächen werden mit Rasensaat versehen. Die Grundstücksgrenzen werden mit einer Lebensbaumhecke eingefriedet. Die teilüberdachte Gartenterrasse (Massivsäule) wird großzügig bepflastert. Ein Pflasterweg läuft um das gesamte Objekt. Die Hoffläche wird ebenfalls bepflastert.
Dieser Neubau Winkelwalmdachbungalow wird in einer hochwertigen Bauweise komplett schlüsselfertig nach BEG EH40 Standard erstellt. Eine ausführliche Baubeschreibung zum Objekt sowie eine aussagekräftige Bauzeichnung können wir Ihnen gerne bei Bedarf per Mail oder auf dem Postweg zukommen lassen. Lassen Sie sich bei einer Besichtigung von uns inspirieren damit Ihr Traum vom Eigenheim wahr wird. Bei weiteren Fragen steht Ihnen das Gründer-Immobilienmakler Team aus Dörpen im Emsland jeder Zeit zur Verfügung!
Der gesamte Wohnbereich wird mit einer großformatigen und einheitlichen Bodenfliese bestückt. Die Schlafzimmer werden mit hochwertigen Laminatböden ausgelegt. Alle Räume des Wohnhauses verfügen über eine Fußbodenheizung.
Küche:
Angrenzend an dem Küchenbereich befindet sich ein großzügiger Hauswirtschaftsraum (Einbauschrank, Hauptanschlüsse Gas, Wasser und Stromzähler), direkter Zugang in den Garten sowie in die Garage. Gerne sind wir Ihnen auch bei der Wahl einer neuen Einbauküche behilflich, unser Küchenstudio wird Sie auch in diesem Punkt professionell beraten.
Bäder:
Das Top exklusive Badezimmer wird wie folgt ausgestattet: Wannenanlage, Waschbecken mit Halbsäule (Ablagefläche), bodentiefe Dusche mit Glastür, Hänge WC, deckenhohe und sehr geschmackvolle Verfliesung. Hochwertige Elemente und Armaturen. Das Gäste Dusch/WC wird gleichwertig ausgestattet, Hänge WC, Waschbecken mit Halbsäule sowie geschmackvoller Verfliesung.
Garage:
Die großzügige Garage mit angrenzendem Geräteraum hat einen direkten Zugang ins Objekt sowie in den hinteren Gartenbereich. Es wird ein hochwertiges Elektro-Sektionaltor eingebaut.
Grundstück:
Das Gartengrundstück wird komplett angelegt. Die Freiflächen werden mit Rasensaat versehen. Die Grundstücksgrenzen werden mit einer Lebensbaumhecke eingefriedet. Die teilüberdachte Gartenterrasse (Massivsäule) wird großzügig bepflastert. Ein Pflasterweg läuft um das gesamte Objekt. Die Hoffläche wird ebenfalls bepflastert.
Dieser Neubau Winkelwalmdachbungalow wird in einer hochwertigen Bauweise komplett schlüsselfertig nach BEG EH40 Standard erstellt. Eine ausführliche Baubeschreibung zum Objekt sowie eine aussagekräftige Bauzeichnung können wir Ihnen gerne bei Bedarf per Mail oder auf dem Postweg zukommen lassen. Lassen Sie sich bei einer Besichtigung von uns inspirieren damit Ihr Traum vom Eigenheim wahr wird. Bei weiteren Fragen steht Ihnen das Gründer-Immobilienmakler Team aus Dörpen im Emsland jeder Zeit zur Verfügung!
Sonstige Informationen
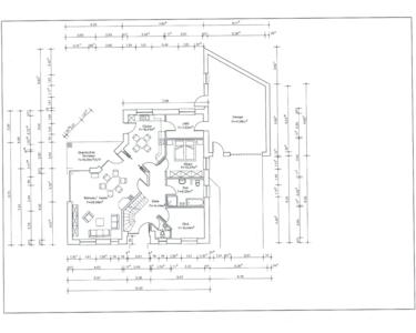
Wohnflächenaufteilung:
Erdgeschoss:
Diele ca. 14,44 m²
Gäste WC ca. 2,53 m²
Badezimmer ca. 9,25 m²
Küche ca. 16,21 m²
Wohnzimmer/Esszimmer ca. 39,06 m²
Schlafen I ca. 13,27 m²
Schlafen II ca. 10,44 m²
Hauswirtschaftsraum ca. 7,93 m²
Dachgeschoss:
Ausbaureserve ca. 50,00 m²
Hausansicht
Hausansicht
Hausansicht
Hausansicht
Hausansicht
Flur
Flur
Gäste-WC
Wohnzimmer
Wohnzimmer
Wohnen/Küche
Badezimmer
Badezimmer
Badezimmer
Ebenerdige Dusche
Schlafzimmer
Schlafzimmer
Grundriss EG