Exposé
Objektart:
Wohnung
» Dachgeschoss
» Kauf
Standort: Wohnung »
Deutschland » Bayern » Regensburg (Kreis) » Brunn
Einfach Mehr: 3-Zimmer-Dachgeschoss-Wohnung, EBK, Garage, Dachspeicher u. a.
Moderne EBK inklusive
Das Wichtigste auf einen Blick:
| Objektnummer: | 9375775 |
Preise
| Kaufpreis | 175.000 € |
| Nebenkosten | keine Angabe |
| Heizkosten enthalten | Ja |
| Kaufpreis pro m² | 1458 € |
Flächen
| Wohnfläche | 120 m² |
| Gesamtfläche | 132 m² |
| Maklerprovision | 3,57% inkl. 19% MwSt vom notariellen Kaufpreis |
Objekt Adresse
93164 Brunn
- Bayern
Sonstige Angaben
| Baujahr | 1960 |
| Zimmer | 3 |
| Verfügbar ab | Sofort |
| Bad | 1 |
| Garage/Stellplätze | 1 |
| Anzahl der Etagen im Haus | 3 |
| Inserat befindet sich im Stockwerk | 2 |
| Küche | Einbauküche |
| Bad | 1 |
| Bad | Dusche, Wanne, Fenster |
| Boden | Fliesen, Laminat |
| Garage/Stellplätze | 1 |
| Energieausweistyp | Bedarfsausweis |
| Ausstellungsdatum | 12. 08. 2025 |
| Gültig bis | 11.08.2035 |
| Energieeffizienzklasse | G |
| Endenergiebedarf | 215.9 kWh/(m²*a) |
| Heizungsart | Zentralheizung |
| Wesentlicher Energieträger | Öl |
| Energieträger/Befeuerung | Öl |
Objektbeschreibung
Verlieben Sie sich in diese 3-Zimmer-Dachgeschoss-Wohnung, ideal für ein (Ehe-)Paar mit Kindern.
Trotz der Energieeffizienzklasse G bietet das Haus durch seine solide Bauweise und die gute Raumaufteilung viele Möglichkeiten zur individuellen Gestaltung. Ein ideales Zuhause für Familien, die viel Platz und Komfort suchen.
Zur Dachgeschoss-Wohnung gehörend, im Kaufpreis der Wohnung enthalten, sind die moderne Einbauküche, 1 Garage(Strom, elektrisches Tor). Einen Balkon hat die Wohnung derzeit nicht, darf jedoch durch die Teilungserklärung an der Ostseite installiert werden.
Die Teilungserklärung ist in Auftrag gegeben und bis zum Notartermin fertig gestellt.
Sofort Einziehen und Wohlfühlen oder als solide Kapitalanlage vermieten.
Trotz der Energieeffizienzklasse G bietet das Haus durch seine solide Bauweise und die gute Raumaufteilung viele Möglichkeiten zur individuellen Gestaltung. Ein ideales Zuhause für Familien, die viel Platz und Komfort suchen.
Zur Dachgeschoss-Wohnung gehörend, im Kaufpreis der Wohnung enthalten, sind die moderne Einbauküche, 1 Garage(Strom, elektrisches Tor). Einen Balkon hat die Wohnung derzeit nicht, darf jedoch durch die Teilungserklärung an der Ostseite installiert werden.
Die Teilungserklärung ist in Auftrag gegeben und bis zum Notartermin fertig gestellt.
Sofort Einziehen und Wohlfühlen oder als solide Kapitalanlage vermieten.
Ausstattung
- Solides EFH mit 4 Wohnungen(jede Wohnung mit eigenem Eingang)
- Grundstück 1398 m²
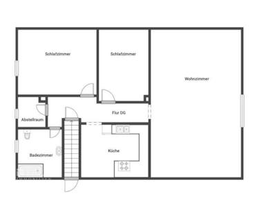
Dachgeschoss-Wohnung: ca. 120 m² - sofort bezugsfrei
3-Zimmer(2 Schlafzimmer, 1 großes Wohnzimmer), Küche mit neuwertiger EBK, Badezimmer(Badewanne, WC, WB, Fenster). Teilweise Sichtbalken. Speis. Garage.
- Wohnfläche: 120 m²
- Anzahl der Zimmer: 3
- Stein-Massiv
- Wandstärke ca. 36,50 cm
- Satteldach(Kaltdach, isoliert)
- Baujahr, diese Wohnung: 1960
- Anbau: 1974
- Großer Balkon kann/darf mittels Teilungserklärung installiert werden
- Moderne Einbauküche inklusive
- Badezimmer(funktionstüchtig, jedoch nicht mehr zeitgemäß) mit Badewanne, WC, WB, Platz für Waschmaschine/Trockner, Fenster
- Öl-Zentralheizung(2011)
- 5 Heizöl-Kunststoff-Tanks(gesamt ca. 10.000 Liter)
- Eigener Dachboden über die komplette Hausfläche
- Böden: Laminat, Fliesen
- Fenster: 2-fach-verglast, Kunststoff, weiß
- Große Fenster für viel Tageslicht
- 1 Garage(Strom, elektrisches Tor)
- Haus komplett trocken, keine Feuchtigkeit, kein Schimmel
- Nichtraucher
- frei von Haustieren
- Solide Kapitalanlage
- 2 Große Nebengebäude, eins davon mit 2 getrennten hohen Garagen(PKW und Wohnmobil, Schiebetore, Licht und Starkstrom), eigene Zufahrt, großes Lager im Obergeschoss etc. können separat für €25.000 erworben werden.
- Grundstück mit ca. 1.398 m²
- Ruhige Wohnlage
- Kindergärten fußläufig
- Bushaltestelle fußläufig
- Autobahnanschluss ca. 2 km
Die Teilungserklärung ist in Arbeit und ist bis zu Ihrem Notartermin dieser Wohnung fertig erstellt.
Diese 2022 modernisierte Dachgeschoss-Wohnung eignet sich perfekt für ein (Ehe-)Paar mit Kind oder als solide Kapitalanlage. Im Haus gibt es noch 3 weitere Wohnungen zu erwerben, die möglicherweise für Sie ebenfalls interessant sind.
- Grundstück 1398 m²
Dachgeschoss-Wohnung: ca. 120 m² - sofort bezugsfrei
3-Zimmer(2 Schlafzimmer, 1 großes Wohnzimmer), Küche mit neuwertiger EBK, Badezimmer(Badewanne, WC, WB, Fenster). Teilweise Sichtbalken. Speis. Garage.
- Wohnfläche: 120 m²
- Anzahl der Zimmer: 3
- Stein-Massiv
- Wandstärke ca. 36,50 cm
- Satteldach(Kaltdach, isoliert)
- Baujahr, diese Wohnung: 1960
- Anbau: 1974
- Großer Balkon kann/darf mittels Teilungserklärung installiert werden
- Moderne Einbauküche inklusive
- Badezimmer(funktionstüchtig, jedoch nicht mehr zeitgemäß) mit Badewanne, WC, WB, Platz für Waschmaschine/Trockner, Fenster
- Öl-Zentralheizung(2011)
- 5 Heizöl-Kunststoff-Tanks(gesamt ca. 10.000 Liter)
- Eigener Dachboden über die komplette Hausfläche
- Böden: Laminat, Fliesen
- Fenster: 2-fach-verglast, Kunststoff, weiß
- Große Fenster für viel Tageslicht
- 1 Garage(Strom, elektrisches Tor)
- Haus komplett trocken, keine Feuchtigkeit, kein Schimmel
- Nichtraucher
- frei von Haustieren
- Solide Kapitalanlage
- 2 Große Nebengebäude, eins davon mit 2 getrennten hohen Garagen(PKW und Wohnmobil, Schiebetore, Licht und Starkstrom), eigene Zufahrt, großes Lager im Obergeschoss etc. können separat für €25.000 erworben werden.
- Grundstück mit ca. 1.398 m²
- Ruhige Wohnlage
- Kindergärten fußläufig
- Bushaltestelle fußläufig
- Autobahnanschluss ca. 2 km
Die Teilungserklärung ist in Arbeit und ist bis zu Ihrem Notartermin dieser Wohnung fertig erstellt.
Diese 2022 modernisierte Dachgeschoss-Wohnung eignet sich perfekt für ein (Ehe-)Paar mit Kind oder als solide Kapitalanlage. Im Haus gibt es noch 3 weitere Wohnungen zu erwerben, die möglicherweise für Sie ebenfalls interessant sind.
Lage des Objektes
Diese Immobilie befindet sich in einer ruhigen und familienfreundlichen Umgebung, die ideal für alle Altersgruppen ist. Die Lage bietet eine hervorragende Anbindung an den öffentlichen Nahverkehr. Die nächste Bushaltestelle ist in wenigen Schritten zu erreichen, was den täglichen Pendelverkehr erleichtert.
Für Familien mit Kindern ist die Nähe zu 2 Kindergärten sowie Bildungseinrichtungen von großer Bedeutung. Ein Kindergarten befindet sich nur wenige Schritte entfernt, während die nächste Schule ebenfalls in fußläufiger Entfernung liegt. Dies ermöglicht einen stressfreien Start in den Tag für Eltern und Kinder.
In der Freizeit können sich Kinder auf einem nahegelegenen Spielplatz und in der Natur austoben, welche bequem zu Fuß erreichbar sind. Die Umgebung bietet zudem zahlreiche Möglichkeiten für sportliche Aktivitäten und Erholung für Groß & Klein.
Die Anbindung an die Autobahn(A3), Regensburg/Nürnberg, ist ebenfalls nah, was Ausflüge in die Umgebung oder den Weg zur Arbeit erleichtert. Der nächste Flughafen(Nürnberg) ist in etwa einer Stunde mit dem Auto erreichbar, was die Lage auch für Geschäfts-Reisende attraktiv macht.
Die Gegend zeichnet sich durch eine hohe Eigentümerquote aus, was auf eine stabile und gepflegte Nachbarschaft hinweist. Die durchschnittliche Wohnfläche pro Kopf ist großzügig bemessen, was auf ein komfortables Wohnumfeld schließen lässt.
Insgesamt bietet diese Immobilie eine ideale Kombination aus ruhiger Lage, guter Infrastruktur und familienfreundlichen Einrichtungen, die das Leben für (junge) Familien angenehm und unkompliziert gestalten.
Für Familien mit Kindern ist die Nähe zu 2 Kindergärten sowie Bildungseinrichtungen von großer Bedeutung. Ein Kindergarten befindet sich nur wenige Schritte entfernt, während die nächste Schule ebenfalls in fußläufiger Entfernung liegt. Dies ermöglicht einen stressfreien Start in den Tag für Eltern und Kinder.
In der Freizeit können sich Kinder auf einem nahegelegenen Spielplatz und in der Natur austoben, welche bequem zu Fuß erreichbar sind. Die Umgebung bietet zudem zahlreiche Möglichkeiten für sportliche Aktivitäten und Erholung für Groß & Klein.
Die Anbindung an die Autobahn(A3), Regensburg/Nürnberg, ist ebenfalls nah, was Ausflüge in die Umgebung oder den Weg zur Arbeit erleichtert. Der nächste Flughafen(Nürnberg) ist in etwa einer Stunde mit dem Auto erreichbar, was die Lage auch für Geschäfts-Reisende attraktiv macht.
Die Gegend zeichnet sich durch eine hohe Eigentümerquote aus, was auf eine stabile und gepflegte Nachbarschaft hinweist. Die durchschnittliche Wohnfläche pro Kopf ist großzügig bemessen, was auf ein komfortables Wohnumfeld schließen lässt.
Insgesamt bietet diese Immobilie eine ideale Kombination aus ruhiger Lage, guter Infrastruktur und familienfreundlichen Einrichtungen, die das Leben für (junge) Familien angenehm und unkompliziert gestalten.
Sonstige Informationen
Bei Interesse geben Sie bitte immer Ihre vollständigen Kontaktdaten(Vor- und Familien-Name, Anschrift, Telefon-Nummer-n) an und vereinbaren Sie bitte einen unverbindlichen Termin.
Die Objektbeschreibung beruht ganz oder zum Teil auf Angaben des Eigentümers. Für die Richtigkeit oder Vollständigkeit übernehmen wir keine Gewähr. Maßangaben sind Zirka(ca.)-Werte ohne Gewähr gemäß Angaben des Verkäufers.
Auf unser Homepage www.falcimmo.de unter der Rubrik Immobiliensuche halten wir für Sie zum einen den Online-Suchauftrag bereit, zudem finden Sie viele andere nützliche Informationen für Kaufinteressenten sowie Eigentümer, Mieter und Kapitalanleger.
Sie wünschen eine persönliche Besichtigung? Gerne zeigen wir Ihnen dieses Ensemble persönlich, kontaktieren Sie uns bitte für Ihren individuellen Besichtigungstermin.
Sie benötigen eine Finanzierung? Gerne hilft Ihnen unser Team dazu weiter, sprechen Sie mich gerne dazu an.
Sie sind Kapitalanleger und wollen vermieten? Gerne übernehmen wir die Professionelle Vermietung für Sie.
Wir freuen uns auf Sie. Ihr FALC Immobilien Matthias Heimel Kelheim und Team.
Schlafen 1
Top-Finanzierung finden!
Schlafen 2
Wohnen, Balkon möglich
Öl-Zentralheizung
Lageplan
Moderne EBK inklusive
Grundriss 2. OG=DG