Exposé
Objektart:
Einzelhandel
» Verkaufsflaeche
» Miete
Standort: Einzelhandel »
Deutschland » Hamburg » Hamburg, Freie und Hansestadt (Kreis) » Hamburg
Yogastudio, Bikeshop + Werkstatt, Galerie, Co-Working + Delikatessen
Ansicht
Das Wichtigste auf einen Blick:
| Objektnummer: | 9375576 |
Preise
| Kaltmiete | 7.830 € |
| Warmmiete | 10.962 € |
| Nebenkosten | 3132 € |
| Heizkosten enthalten | Ja |
| Mietpreis pro m² | 20 € |
Flächen
| Gesamtfläche | 391,46 m² |
| Ladenfläche | 391,46 m² |
| Verkaufsfläche | 391,46 m² |
Objekt Adresse
20359 Hamburg
Sonstige Angaben
| Baujahr | 2007 |
| Verfügbar ab | sofort |
| Inserat befindet sich im Stockwerk | 0 |
| Fahrstuhl | Ja |
| Energieausweistyp | Verbrauch |
| Gültig bis | 2030-05-17 |
| Baujahr (laut Energieausweis) | 2007 |
| Heizungsart | Zentralheizung |
| Wesentlicher Energieträger | Fern |
Objektbeschreibung
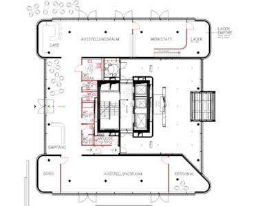
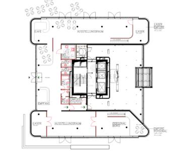
ASTRATURM - Erdgeschoßflächen
Wir könnten uns hier folgende Nutzungskonzepte vorstellen:
- Einzelhandel
- Yogastudio
- Bikershop inkl. Werkstatt
- Galerie
- Co-Working mit Delikatessen
Gern haben wir bereits erstellte erste Grundrissplanungen zu diesen Nutzungen beigefügt.
Höhe Rohdecke: ca. 4,60 m; Fläche aktuell im Rohbauzustand
Die Miete richtet sich nach Mietlaufzeit, Ausbaukosten etc.
Wir könnten uns hier folgende Nutzungskonzepte vorstellen:
- Einzelhandel
- Yogastudio
- Bikershop inkl. Werkstatt
- Galerie
- Co-Working mit Delikatessen
Gern haben wir bereits erstellte erste Grundrissplanungen zu diesen Nutzungen beigefügt.
Höhe Rohdecke: ca. 4,60 m; Fläche aktuell im Rohbauzustand
Die Miete richtet sich nach Mietlaufzeit, Ausbaukosten etc.
Ausstattung
- Anspruchsvolle Architektur, historischem Bezug
- Exklusive Dachterrasse zur Nutzung aller Mieter
- 3 Personenaufzüge
- Tiefgarage über 3 Ebenen
- ca.180 Kfz-Stellplätze
- Exklusive Dachterrasse zur Nutzung aller Mieter
- 3 Personenaufzüge
- Tiefgarage über 3 Ebenen
- ca.180 Kfz-Stellplätze
Lage des Objektes
Der "Astra Turm" liegt im südlichen Bereich des Hamburger Stadtteils St. Pauli, im Harbour Business District.
Exponierte Lage im Stadtteil St. Pauli
Zwischen Landungsbrücken und Reeperbahn gelegen
Hamburger Innenstadt ca. 3 km entfernt
Landungsbrücken befinden sich in ca. 500 m Entfernung
U-Bahn Anbindung in ca. 500 m Entfernung
Flughafen in ca. 25 Fahrminuten
Hauptbahnhof über die U-Bahn optimal erreichbar
Exponierte Lage im Stadtteil St. Pauli
Zwischen Landungsbrücken und Reeperbahn gelegen
Hamburger Innenstadt ca. 3 km entfernt
Landungsbrücken befinden sich in ca. 500 m Entfernung
U-Bahn Anbindung in ca. 500 m Entfernung
Flughafen in ca. 25 Fahrminuten
Hauptbahnhof über die U-Bahn optimal erreichbar
Sonstige Informationen
Die Provisionsfreiheit dieser Vermietung setzt einen Mietvertragsabschluss mit einer Mindest-Vertragslaufzeit von 5 Jahren voraus.
Für den Fall der kurzfristigeren Vertragslaufzeit wird dem Mieter eine Courtage in Höhe von 3,57 Brutto-Monatsmieten inkl. 19% Umsatzsteuer berechnet.
Alle Preise verstehen sich zzgl. 19% Umsatzsteuer.
Irrtum, Änderungen und Zwischenvermietung bleiben ausdrücklich vorbehalten.
Datenschutzhinweise Kontaktformular:
Mit dem Kontaktformular können Sie an uns eine Anfrage zu den Immobilien richten. Die von Ihnen eingegebenen Daten werden über unseren Providerservice per E-Mail an uns weitergeleitet. Die im Rahmen dieser Anfrage erhobenen personenbezogenen Daten werden nur zur Vertragsanbahnung und Bearbeitung Ihrer Anfragen genutzt und danach umgehend, spätestens nach 60 Tage der Erhebung, gelöscht
Wir verarbeiten personenbezogene Daten im Einklang mit den Bestimmungen der Europäischen Datenschutz-Grundverordnung (DS-GVO) und dem Bundesdatenschutzgesetz (BDSG).
Verantwortlicher für den Datenschutz von Klaus Meyer Immobilien: Herr Klaus Meyer, Marmstorfer Weg 52, 21077 Hamburg - E-Mail: info@klausmeyerimmobilien.de
IHR FLÄCHENGESUCH:
Sie haben noch nicht das passende Objekt gefunden? Bitte füllen Sie alle notwendigen Kontaktdaten von Ihnen in der Anfrage aus, sodass wir diese schnellstmöglich bearbeiten können.
Wir freuen uns aber auch auf Ihren Anruf um gemeinschaftlich Ihr Anforderungsprofil im Detail aufzunehmen. Sicherlich finden wir auch IHR Wunschobjekt!
Gesamtansicht
Ansicht
Ansicht
Umfeld
Umfeld
EG Delikatessen, Coworking
EG Fahrrad
EG Galerie