Exposé
Objektart:
Büro / Praxen
» Bueroflaeche
» Miete
Standort: Büro / Praxen »
Deutschland » Hamburg » Hamburg, Freie und Hansestadt (Kreis) » Hamburg
KLAUS MEYER IMMOBILIEN PROVISIONSFREI - Drumherum ist Hamburg. Mittendrin sind Sie!
Ausblick 2.OG
Das Wichtigste auf einen Blick:
| Objektnummer: | 9375602 |
Preise
| Nebenkosten | keine Angabe |
| Mietpreis pro m² | 19,5 € |
Flächen
| Bürofläche | 1.156 m² |
| Fläche teilbar ab | 434 m² |
Objekt Adresse
20457 Hamburg
Sonstige Angaben
| Verfügbar ab | sofort |
| Inserat befindet sich im Stockwerk | 2 |
| Boden | Doppelboden |
| Fahrstuhl | Ja |
| Heizungsart | Zentralheizung |
Objektbeschreibung
Das Columbus Haus befindet sich am Eingang zur HafenCity und stellt als imposantes Bürogebäude die Verbindung zwischen Speicherstadt und HafenCity dar.
Beim Columbus Haus handelt es sich um ein modernes Bürogebäude, das aus einem „Turm“ (21 Geschosse) sowie aus einem „Riegel“ (7 Geschosse) mit hauseigener Tiefgarage besteht.
Das Gebäude wurde 2002 errichtet und ist Teil des Hanseatic Trade Center (HTC).
Die äußerst repräsentative Lobby wurde 2009 fertiggestellt und ist tagsüber von einem Concierge-Service besetzt.
Die Mietflächen sind flexibel und effizient aufteilbar, so dass verschiedenste Raumaufteilungen realisierbar sind.
Auf einen Blick:
- hoher Wiedererkennungswert
- gute Auffindbarkeit
- maritime Trendlage
- Exklusivität
- historischer und zukunftsweisender Standort
- ideale Verkehrsanbindung
- umfangreicher Concierge Service
- direkt am Fleet
- Gastronomiebetriebe im Haus
- Tiefgarage im Haus
Energieausweis / Energiedaten:
- gültiger Energieausweis liegt vor:
- Verbrauchsausweis gültig bis 08.06.2030
- Endenergieverbrauch Wärme 57,8 kWh/(m²*a)
- Endenergieverbrauch Strom 40,3 kWh/(m²*a)
- Befeuerungsart / wesentl. Energieträger:
= KWK fossil (Grundversorger - Fernwärme)
Beim Columbus Haus handelt es sich um ein modernes Bürogebäude, das aus einem „Turm“ (21 Geschosse) sowie aus einem „Riegel“ (7 Geschosse) mit hauseigener Tiefgarage besteht.
Das Gebäude wurde 2002 errichtet und ist Teil des Hanseatic Trade Center (HTC).
Die äußerst repräsentative Lobby wurde 2009 fertiggestellt und ist tagsüber von einem Concierge-Service besetzt.
Die Mietflächen sind flexibel und effizient aufteilbar, so dass verschiedenste Raumaufteilungen realisierbar sind.
Auf einen Blick:
- hoher Wiedererkennungswert
- gute Auffindbarkeit
- maritime Trendlage
- Exklusivität
- historischer und zukunftsweisender Standort
- ideale Verkehrsanbindung
- umfangreicher Concierge Service
- direkt am Fleet
- Gastronomiebetriebe im Haus
- Tiefgarage im Haus
Energieausweis / Energiedaten:
- gültiger Energieausweis liegt vor:
- Verbrauchsausweis gültig bis 08.06.2030
- Endenergieverbrauch Wärme 57,8 kWh/(m²*a)
- Endenergieverbrauch Strom 40,3 kWh/(m²*a)
- Befeuerungsart / wesentl. Energieträger:
= KWK fossil (Grundversorger - Fernwärme)
Ausstattung
- z.T. Glastüren und Glaswände
- textiler Bodenbelag (Büros u. Flure)
- Kunststoffbelag in Pakettoptik (Küche)
- EDV-gerecht, hochwertige Stehleuchten
- Hohlraumboden
- vorhandene EDV-Verkabelung kann übernommen werden
- Dt. Telekom / Colt Telekom Anschlüsse
- innenliegender Sonnenschutz
- Sicherheitsdienst nachts / am Wochenende
- renovierte Übergabe
- ausreichend Personenaufzüge
- umfangreicher Concierge Service!
Flächen und Preise:
ca. 514 m². Hs. 38-41, 14. OG ab 31,00 €, gekühlt
ca. 514 m², Hs. 38-41, 12. OG ab 30,50 € gekühlt
ca. 142 m², Hs. 39 4. OG ab 24,50 € Fleet-Blick
ca. 167 m² inkl. anteil. Terrasse, Hs. 40, 3. OG ab 24,00 € 01.12.2025, Fleet-Blick
ca. 169 m² inkl. anteil. Terrasse, Hs. 38. 3. OG ab 24,00 € sofort, Fleet-Blick
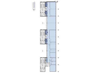
ca. 434 m², Hs. 38-40, 2. OG ab 18,50 € sofort Kühlung gegen Mietaufschlag mgl.
ca. 1.156 m², Hs. 38-41 2. OG ab 18,50 € sofort Kühlung gegen Mietaufschlag mgl.
ca. 670 m², Hs. 38-40 1. OG ab 18,00 € Kühlung gegen Mietaufschlag mgl.
Nebenkostenvorauszahlung: 7,50 €
Die Preise verstehen sich pro m², monatlich, netto, kalt.
- textiler Bodenbelag (Büros u. Flure)
- Kunststoffbelag in Pakettoptik (Küche)
- EDV-gerecht, hochwertige Stehleuchten
- Hohlraumboden
- vorhandene EDV-Verkabelung kann übernommen werden
- Dt. Telekom / Colt Telekom Anschlüsse
- innenliegender Sonnenschutz
- Sicherheitsdienst nachts / am Wochenende
- renovierte Übergabe
- ausreichend Personenaufzüge
- umfangreicher Concierge Service!
Flächen und Preise:
ca. 514 m². Hs. 38-41, 14. OG ab 31,00 €, gekühlt
ca. 514 m², Hs. 38-41, 12. OG ab 30,50 € gekühlt
ca. 142 m², Hs. 39 4. OG ab 24,50 € Fleet-Blick
ca. 167 m² inkl. anteil. Terrasse, Hs. 40, 3. OG ab 24,00 € 01.12.2025, Fleet-Blick
ca. 169 m² inkl. anteil. Terrasse, Hs. 38. 3. OG ab 24,00 € sofort, Fleet-Blick
ca. 434 m², Hs. 38-40, 2. OG ab 18,50 € sofort Kühlung gegen Mietaufschlag mgl.
ca. 1.156 m², Hs. 38-41 2. OG ab 18,50 € sofort Kühlung gegen Mietaufschlag mgl.
ca. 670 m², Hs. 38-40 1. OG ab 18,00 € Kühlung gegen Mietaufschlag mgl.
Nebenkostenvorauszahlung: 7,50 €
Die Preise verstehen sich pro m², monatlich, netto, kalt.
Lage des Objektes
Umgeben von Elbe und Fleeten liegt das "HTC" wie ein mächtiger Ocean-Liner auf der "Kehrwiederspitze".
Dieser Standort ist eine ideale Verbindung zwischen Hafenatmosphäre mit neuem Business und belebender Dynamik der City.
3-4 Gehminuten zur U-Baumwall, das Gebäude ist in wenigen Fahrminuten mit dem Pkw von der A1 und der A7 sowie mit der U3 (Baumwall), ferner mit den Buslinien 111 und M6 sehr einfach zu erreichen.
Die zentrale Lage zwischen Innenstadt, HafenCity und Hafen bietet eine hervorragende Verkehrsanbindung.
Dieser Standort ist eine ideale Verbindung zwischen Hafenatmosphäre mit neuem Business und belebender Dynamik der City.
3-4 Gehminuten zur U-Baumwall, das Gebäude ist in wenigen Fahrminuten mit dem Pkw von der A1 und der A7 sowie mit der U3 (Baumwall), ferner mit den Buslinien 111 und M6 sehr einfach zu erreichen.
Die zentrale Lage zwischen Innenstadt, HafenCity und Hafen bietet eine hervorragende Verkehrsanbindung.
Sonstige Informationen
Die Provisionsfreiheit dieser Vermietung setzt einen Mietvertragsabschluss mit einer Mindest-Vertragslaufzeit von 5 Jahren voraus.
Für den Fall der kurzfristigeren Vertragslaufzeit wird dem Mieter eine Courtage in Höhe von 3,57 Brutto-Monatsmieten inkl. 19% Umsatzsteuer berechnet.
Alle Preise verstehen sich zzgl. 19% Umsatzsteuer.
Irrtum, Änderungen und Zwischenvermietung bleiben ausdrücklich vorbehalten.
Datenschutzhinweise Kontaktformular:
Mit dem Kontaktformular können Sie an uns eine Anfrage zu den Immobilien richten. Die von Ihnen eingegebenen Daten werden über unseren Providerservice per E-Mail an uns weitergeleitet. Die im Rahmen dieser Anfrage erhobenen personenbezogenen Daten werden nur zur Vertragsanbahnung und Bearbeitung Ihrer Anfragen genutzt und danach umgehend, spätestens nach 60 Tage der Erhebung, gelöscht.
Wir verarbeiten personenbezogene Daten im Einklang mit den Bestimmungen der Europäischen Datenschutz-Grundverordnung (DS-GVO) und dem Bundesdatenschutzgesetz (BDSG).
Verantwortlicher für den Datenschutz von Klaus Meyer Immobilien: Herr Klaus Meyer, Marmstorfer Weg 52, 21077 Hamburg - E-Mail: info@klausmeyerimmobilien.de
IHR FLÄCHENGESUCH:
Sie haben noch nicht das passende Objekt gefunden? Bitte füllen Sie alle notwendigen Kontaktdaten von Ihnen in der Anfrage aus, sodass wir diese schnellstmöglich bearbeiten können.
Wir freuen uns aber auch auf Ihren Anruf, um gemeinschaftlich Ihr Anforderungsprofil im Detail aufzunehmen. Sicherlich finden wir auch IHR Wunschobjekt!
Gebäudeensemble
Ansicht
Ansicht
Einzigartig
2.OG, ca. 434m²
1.OG Fleet ca. 670m²