Exposé
Objektart:
Haus
» Einfamilienhaus
» Kauf
Standort: Haus »
Deutschland » Nordrhein-Westfalen » Krefeld, Stadt (Kreis) » Krefeld
Provisionsfrei: Freist. EFH in Krefeld-Bockum, Nähe Musikschule wartet auf liebevolle Modernisierung
EFH mit klassischem Charme!
Das Wichtigste auf einen Blick:
| Objektnummer: | 9375335 |
Preise
| Kaufpreis | 519.000 € |
| Nebenkosten | keine Angabe |
Flächen
| Wohnfläche | 183 m² |
| Nutzfläche | 135 m² |
| Grundstücksfläche | 434 m² |
Objekt Adresse
47800 Krefeld
Sonstige Angaben
| Baujahr | 1970 |
| Zimmer | 3 |
| Verfügbar ab | sofort/Absprache |
| Garage/Stellplätze | 1 |
| Boden | Stein, Parkett |
| Balkone | 1 |
| Terrassen | 1 |
| Garage/Stellplätze | 1 |
| Dachboden | Ja |
| Keller | Ja |
| Heizungsart | Zentralheizung |
| Energieträger/Befeuerung | Öl |
Beschreibung der Immobilie
Was für ein Empfang: Die wohnraummäßige Diele bietet mit über 20 m² nicht nur genügend Raum für einen freundlichen Empfang, sondern ist gleichzeitig das Herzstück in diesem Haus: Von hier aus gelangen Sie in alle Räume des EG, über eine elegant geschwungene Treppe aus Massivsteinstufen in die Schlafbereiche des Dachgeschosses sowie in den Spitzboden und ebenfalls in den Untergeschoss-/ Kellerbereich, der auch teilweise als Büronutzung mit WC ausgebaut wurde. Hierhin gelangen Sie auch über einen separaten Zugang,
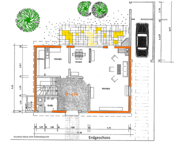
Im Erdgeschoss bieten sich Ihnen ca. 60 m² zum Ausgestalten Ihres Wohn- und Essbereiches an. Ein eingebauter, offener Kamin und der direkte Zugang auf die überdachte Terrasse und den Garten bilden die Basis für Gemütlichkeit und Treffpunkt für die ganze Familie und Freunde. Die angrenzende, geräumige Küche mit separatem Vorratsraum hat ebenfalls einen direkten Zugang in den Garten
.
Ein Garderobenbereich und ein Gäste-WC mit Fenster runden das Raumangebot im Erdgeschoss ab. Praktisch: Von der Terrasse gelangen Sie direkt in die Garage.
Über das Gartentörchen seitlich vom Haus lassen sich bequem Gartenabfälle und Müllgefäße abtransportieren.
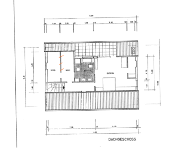
Im Dachgeschoss mit gemütlichen Schrägen befinden sich das großzügige Elternschlafzimmer mit knapp 32 m² und Zugang zur ca. 6 m langen Loggia und begehbarem Kleiderschrank mit Fenster, ein weiterer Schlafraum von ca. 16 m² (ursprünglich als 2 Kinderzimmer geplant). Der Clou in dieser Etage ist das von beiden Schlafräumen begehbare Bad mit Fenster zur Gartenseite, eingerichtet mit Badewanne, Dusche, Waschbecken, WC und Bidet mit über 10 m² bietet es ausreichend Fläche, um es in eine moderne Wellnessoase zu verwandeln.
Der Dielenbereich mit Fenster ist auch in dieser Etage großzügig und wurde als gemütliche Leseecke genutzt. Von hier aus hat man auch Zugang in zwei weitere Abstellkammern, die in die Dachschrägen integriert sind.
Der Spitzboden (nicht in der Wohnfläche enthalten) wurde bislang als weiteres, wohnmäßig ausgebautes Kinder- bzw. Gästezimmer und zusätzlicher Abstellraum genutzt und ist bequem über eine offene Stahltreppe mit Holzdielen erreichbar.
Das Haus ist komplett unterkellert und bietet neben den üblichen Heiz-/ und Wirtschaftsräumen 3 weitere große Räume. Zwei Räume sind büromäßig ausgestattet mit Fliesenboden und WC und sind auch über einen separaten Zugang erreichbar - ebenfalls nicht in der Wohnfläche enthalten.
Seitlich vom Haus finden Sie eine übergroße Garage mit elektrischem Rolltor und mit Abstellmöglichkeiten für Ihre Gartengeräte und Fahrräder. Auf der Zufahrt kann bequem ein weiteres Fahrzeug parken. Und auch für mehrere Besucher mit PKW befindet sich anders als in vielen Neubaugebieten - ausreichend Parkraum auf der öffentlichen Straße.
Diese Immobilie punktet mit dem enormen Flächenangebot und den vielen Möglichkeiten der individuellen Gestaltung. Und was viele freuen wird, die nicht unbedingt einen grünen Daumen haben: Vorgarten und Hausgarten sind von überschaubarer Größe und pflegeleicht angelegt und dabei doch sehr geeignet, ein Ort der Entspannung zu sein und die Seele baumeln zu lassen.
Hier können Sie sich mit einer grundlegenden Modernisierung Ihren Traum vom eigenen Heim verwirklichen!
Hier nochmal die Eckdaten:
Wfl.: Ca. 183 m², davon ca. 114 im EG und ca. 69 im DG
Nfl. Keller insges. ca. 104 m², teilweise als Büro ausgebaut
Nfl. Spitzboden ca. 30 m², 1 Raum wohnraummäßig ausgebaut
Und noch ein Plus: Diese Liegenschaft wird für den Käufer provisionsfrei angeboten!
Im Erdgeschoss bieten sich Ihnen ca. 60 m² zum Ausgestalten Ihres Wohn- und Essbereiches an. Ein eingebauter, offener Kamin und der direkte Zugang auf die überdachte Terrasse und den Garten bilden die Basis für Gemütlichkeit und Treffpunkt für die ganze Familie und Freunde. Die angrenzende, geräumige Küche mit separatem Vorratsraum hat ebenfalls einen direkten Zugang in den Garten
.
Ein Garderobenbereich und ein Gäste-WC mit Fenster runden das Raumangebot im Erdgeschoss ab. Praktisch: Von der Terrasse gelangen Sie direkt in die Garage.
Über das Gartentörchen seitlich vom Haus lassen sich bequem Gartenabfälle und Müllgefäße abtransportieren.
Im Dachgeschoss mit gemütlichen Schrägen befinden sich das großzügige Elternschlafzimmer mit knapp 32 m² und Zugang zur ca. 6 m langen Loggia und begehbarem Kleiderschrank mit Fenster, ein weiterer Schlafraum von ca. 16 m² (ursprünglich als 2 Kinderzimmer geplant). Der Clou in dieser Etage ist das von beiden Schlafräumen begehbare Bad mit Fenster zur Gartenseite, eingerichtet mit Badewanne, Dusche, Waschbecken, WC und Bidet mit über 10 m² bietet es ausreichend Fläche, um es in eine moderne Wellnessoase zu verwandeln.
Der Dielenbereich mit Fenster ist auch in dieser Etage großzügig und wurde als gemütliche Leseecke genutzt. Von hier aus hat man auch Zugang in zwei weitere Abstellkammern, die in die Dachschrägen integriert sind.
Der Spitzboden (nicht in der Wohnfläche enthalten) wurde bislang als weiteres, wohnmäßig ausgebautes Kinder- bzw. Gästezimmer und zusätzlicher Abstellraum genutzt und ist bequem über eine offene Stahltreppe mit Holzdielen erreichbar.
Das Haus ist komplett unterkellert und bietet neben den üblichen Heiz-/ und Wirtschaftsräumen 3 weitere große Räume. Zwei Räume sind büromäßig ausgestattet mit Fliesenboden und WC und sind auch über einen separaten Zugang erreichbar - ebenfalls nicht in der Wohnfläche enthalten.
Seitlich vom Haus finden Sie eine übergroße Garage mit elektrischem Rolltor und mit Abstellmöglichkeiten für Ihre Gartengeräte und Fahrräder. Auf der Zufahrt kann bequem ein weiteres Fahrzeug parken. Und auch für mehrere Besucher mit PKW befindet sich anders als in vielen Neubaugebieten - ausreichend Parkraum auf der öffentlichen Straße.
Diese Immobilie punktet mit dem enormen Flächenangebot und den vielen Möglichkeiten der individuellen Gestaltung. Und was viele freuen wird, die nicht unbedingt einen grünen Daumen haben: Vorgarten und Hausgarten sind von überschaubarer Größe und pflegeleicht angelegt und dabei doch sehr geeignet, ein Ort der Entspannung zu sein und die Seele baumeln zu lassen.
Hier können Sie sich mit einer grundlegenden Modernisierung Ihren Traum vom eigenen Heim verwirklichen!
Hier nochmal die Eckdaten:
Wfl.: Ca. 183 m², davon ca. 114 im EG und ca. 69 im DG
Nfl. Keller insges. ca. 104 m², teilweise als Büro ausgebaut
Nfl. Spitzboden ca. 30 m², 1 Raum wohnraummäßig ausgebaut
Und noch ein Plus: Diese Liegenschaft wird für den Käufer provisionsfrei angeboten!
Ausstattung
- Kamin im Wohnbereich
- Balkon und Terrasse
- Böden in Stein, Parkett und Teppichboden
- Fenster teilweise mit Rollläden
- 3 WC
- Tageslichtbad mit Wanne und Dusche
- Garage mit Abstellbereich für Gartengeräte
Die Ausstattung insgesamt entspricht im Wesentlichen dem des Baujahrs.
- Balkon und Terrasse
- Böden in Stein, Parkett und Teppichboden
- Fenster teilweise mit Rollläden
- 3 WC
- Tageslichtbad mit Wanne und Dusche
- Garage mit Abstellbereich für Gartengeräte
Die Ausstattung insgesamt entspricht im Wesentlichen dem des Baujahrs.
Lage & Infrastruktur
Diese Immobilie befindet sich in einem sehr bevorzugten Wohnumfeld mit überwiegender Einfamilienhausbebauung im beliebten Blumenviertel, im begehrtesten Ortsteil von Krefeld: Bockum. Nur wenige Schritte aus Ihrem neuen Zuhause und Sie haben einen herrlichen Blick auf die im Sollbrüggenpark gelegene Musikschule und beginnen Ihre Spaziergänge quasi vor der Haustüre vom Sollbrüggen-/ bis zum Schönhausenpark bis z.B. in den beliebten Krefelder Zoo. Genauso bequem erreichbar sind die Haltestellen auf der Uerdinger Straße, von wo aus Sie rasch z.B. im Zentrum von Krefeld oder Bockum sind. Bis zur Auffahrt auf die A 57 / B 288 sind es gerade mal 3 Minuten und bis zum Flughafen Düsseldorf gerade mal ein Viertelstündchen.
Sonstige Informationen
Interesse? Dann freuen wir uns auf Ihre Anfrage über das Kontaktformular mit Angabe Ihrer vollständigen Angaben.
WICHTIG: Bei Abstimmung eines Besichtigungstermins erhalten Sie von uns eine Bestätigungsemail - bitte kontrollieren Sie ggf. Ihren Spamordner!
Bitte haben Sie Verständnis dafür, dass wir Anfragen per E-Mail bevorzugt berücksichtigen!
Nicht das Richtige für Sie? Nehmen Sie Kontakt zu uns auf wir bieten Ihnen gerne alternative Angebote an oder nutzen unser hervorragendes Netzwerk, um das passende Objekt für Sie zu finden.
Sie beabsichtigen, Ihre Immobilie zu vermieten oder zu verkaufen? Profitieren Sie von unserer jahrzehntelangen Erfahrung und unseren vorgemerkten Interessenten. Gerne erstellen wir für Sie ein professionelles Vermarktungskonzept, auf Wunsch auch DISKRETIONSVERMARKTUNG!
Unsere Exposés stellen kein vertragliches Angebot dar. Die hier gemachten Angaben beruhen auf Angaben des Eigentümers bzw. der Objektdokumentationen. Wir übernehmen für Abweichungen und Fehlangaben keine Gewähr. Der Energieausweis ist in Bearbeitung und kann bei Besichtigung vorgelegt werden.
Großzügige Diele
Wohnzimmer mit Kaminplatz ...
... und gemütlicher Leseecke
Platz für einen großen Esstisch
Kaminplatz für gemütliche Stunden
Geräumige Küche mit Gartenzugang
Pflegeleichte Gartenoase
Blick zur Garderobe und Gäste-WC
Bequem ins DG
Elternschlafzimmer mit Blick in Ankleide
Elternschlafzimmer mit Blick in Diele und Bad
Großzügig
Kinder- oder Gästezimmer DG
Bereich Diele im DG
Raum 1 im Spitzboden
Raum 2 im Spitzboden
Büro 1 im Keller
zusätzliches WC im Keller
Erdgeschoss
Dachgeschoss
Keller
Schnitt
Gemütlichkeit pur!