Exposé
Objektart:
Haus
» Bungalow
» Kauf
Standort: Haus »
Deutschland » Baden-Württemberg » Rhein-Neckar-Kreis (Kreis) » Heddesheim
STREIF baut Euer perfektes Zuhause
Das Wichtigste auf einen Blick:
| Objektnummer: | 9375044 |
Preise
| Kaufpreis | 950.019 € |
| Nebenkosten | keine Angabe |
Flächen
| Wohnfläche | 113 m² |
| Grundstücksfläche | 570 m² |
Objekt Adresse
68542 Heddesheim
Sonstige Angaben
| Zimmer | 4 |
| Verfügbar ab | keine Angabe |
| Bad | 1 |
| Anzahl der Etagen im Haus | 1 |
| Bad | 1 |
| Terrassen | 1 |
| Barrierefrei | |
| Energietyp | KfW-40 |
| Heizungsart | Zentralheizung |
| Energieträger/Befeuerung | Luft-Wärme-Pumpe |
Objektbeschreibung
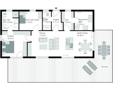
Bungalow mit Satteldach mit flexiblem Raumkonzept
Entdecken Sie die Möglichkeiten, Ihr Traumhaus als Bungalow mit einem Satteldach zu realisieren und erleben Sie eine zeitgemäße Architektur gepaart mit einem einzigartigen Raumkonzept. Der Wohn-/Ess- und Kochbereich erstreckt sich über großzügige 44 m² und bietet höchsten Komfort. Eine halbhohe Wand, die optional auch raumhoch sein kann, trennt geschickt den Koch- vom Wohnbereich und schafft so eine harmonische Balance zwischen gemeinsamen Beisammensein und klarer Struktur. Große Panoramafenster sowie eine geräumige Panorama-Hebeschiebetür sorgen für ein helles und offenes Ambiente, das Innen- und Außenbereich harmonisch miteinander verbindet. Der Schlafbereich überzeugt mit großzügiger Stellfläche für Schränke und einem direkten Zugang zum geräumigen Badezimmer. Ein zusätzlicher Raum, flexibel als Büro, Gäste- oder Hobbyraum nutzbar, sowie ein zweites Badezimmer mit optionaler Dusche, runden das Raumangebot ab. Auf Anfrage kann der Grundriss des Bungalows auch barrierefrei gestaltet werden, um allen individuellen Bedürfnissen gerecht zu werden.
Entdecken Sie die Möglichkeiten, Ihr Traumhaus als Bungalow mit einem Satteldach zu realisieren und erleben Sie eine zeitgemäße Architektur gepaart mit einem einzigartigen Raumkonzept. Der Wohn-/Ess- und Kochbereich erstreckt sich über großzügige 44 m² und bietet höchsten Komfort. Eine halbhohe Wand, die optional auch raumhoch sein kann, trennt geschickt den Koch- vom Wohnbereich und schafft so eine harmonische Balance zwischen gemeinsamen Beisammensein und klarer Struktur. Große Panoramafenster sowie eine geräumige Panorama-Hebeschiebetür sorgen für ein helles und offenes Ambiente, das Innen- und Außenbereich harmonisch miteinander verbindet. Der Schlafbereich überzeugt mit großzügiger Stellfläche für Schränke und einem direkten Zugang zum geräumigen Badezimmer. Ein zusätzlicher Raum, flexibel als Büro, Gäste- oder Hobbyraum nutzbar, sowie ein zweites Badezimmer mit optionaler Dusche, runden das Raumangebot ab. Auf Anfrage kann der Grundriss des Bungalows auch barrierefrei gestaltet werden, um allen individuellen Bedürfnissen gerecht zu werden.
Ausstattung
STREIF-Häuser sind Energiesparhäuser. Die Außenwände im Passiv-Haus-Standard und eine sparsame Heiztechnik mit integrierter Wohnraumlüftung und Wärmerückgewinnung, garantieren einen geringen Energieverbrauch und ein fantastisches Raumklima, das insbesondere Allergiker aufatmen lässt.
STREIF Leistungen sind MEHR WERT - schon im Grundpreis enthalten!
- 20-monatige Festpreisgarantie
- KfW-Energieeffizienzhaus 40 im Standard*
- Inkl. individueller Grundrissgestaltung und Raumaufteilung
- Inkl. gedämmter Fundamentplatte
- Inkl. STREIF-Luft-Luft-Wärmepumpen-Technologie mit integrierter Lüftungsanlage mit Wärmerückgewinnung
- Inkl. Haustür von KERA und Fenster von Porta/Kömmerling
- Inkl. Sanitärobjekte von Markenherstellern
- Inkl. Elektroinstallation
- Inkl. Photovoltaikanlage 7,12 KWP
- Inkl. Batteriespeicher mit 7,70 KWH
- Inkl. Baubetreuung u.v.m.
* In Abhängigkeit von Gebäudestandort, Gebäudeausrichtung, Fensterflächenanteile usw. können zusätzliche oder abweichende Leistungen erforderlich werden, die im Zuge der Bauantragsbewertung/-erstellung geprüft werden. Das Erreichen der Grenzwerte des QNG als Voraussetzung zum KFN ist bei einem Bungalow nur durch zusätzliche Maßnahmen (mehr Netto-Raumfläche = zusätzliches Geschoss und/oder Dachboden,
größere Photovoltaik-Anlage, ...) erreichbar. Hierzu ist im Vorfeld der Planung eine separate Beratung sowie zusätzlich die gemeinsame Festlegung der nachhaltigen Planungsziele erforderlich. Die Möglichkeit zur Erstellung der Ökobilanzierung durch STREIF muss separat je Bauvorhaben geprüft werden.
Die hohe Wertigkeit und Langlebigkeit eines STREIF-Energiespar-Hauses wird durch zahlreiche Auszeichnungen, Qualitäts- und Gütesiegel unabhängiger Institute und Verbände dokumentiert.
Der Angebotspreis ist inklusive Grundstück und bezieht sich auf die Standard-Ausbaustufe Fast-Fertig-Plus. Ihre Eigenleistungen: Spachtel-,Tapezier- und Malerarbeiten, Bodenbeläge, Innentüren.
Baunebenkosten fallen zuzüglich an.
Der Verkauf des Grundstücks erfolgt über einen unserer Netzwerkpartner.
Bilder können evtl. Anbauteile, Carports, Balkone, Gauben usw. zeigen, die nicht im Angebotspreis enthalten sind. Änderungen und Irrtümer vorbehalten.
STREIF Leistungen sind MEHR WERT - schon im Grundpreis enthalten!
- 20-monatige Festpreisgarantie
- KfW-Energieeffizienzhaus 40 im Standard*
- Inkl. individueller Grundrissgestaltung und Raumaufteilung
- Inkl. gedämmter Fundamentplatte
- Inkl. STREIF-Luft-Luft-Wärmepumpen-Technologie mit integrierter Lüftungsanlage mit Wärmerückgewinnung
- Inkl. Haustür von KERA und Fenster von Porta/Kömmerling
- Inkl. Sanitärobjekte von Markenherstellern
- Inkl. Elektroinstallation
- Inkl. Photovoltaikanlage 7,12 KWP
- Inkl. Batteriespeicher mit 7,70 KWH
- Inkl. Baubetreuung u.v.m.
* In Abhängigkeit von Gebäudestandort, Gebäudeausrichtung, Fensterflächenanteile usw. können zusätzliche oder abweichende Leistungen erforderlich werden, die im Zuge der Bauantragsbewertung/-erstellung geprüft werden. Das Erreichen der Grenzwerte des QNG als Voraussetzung zum KFN ist bei einem Bungalow nur durch zusätzliche Maßnahmen (mehr Netto-Raumfläche = zusätzliches Geschoss und/oder Dachboden,
größere Photovoltaik-Anlage, ...) erreichbar. Hierzu ist im Vorfeld der Planung eine separate Beratung sowie zusätzlich die gemeinsame Festlegung der nachhaltigen Planungsziele erforderlich. Die Möglichkeit zur Erstellung der Ökobilanzierung durch STREIF muss separat je Bauvorhaben geprüft werden.
Die hohe Wertigkeit und Langlebigkeit eines STREIF-Energiespar-Hauses wird durch zahlreiche Auszeichnungen, Qualitäts- und Gütesiegel unabhängiger Institute und Verbände dokumentiert.
Der Angebotspreis ist inklusive Grundstück und bezieht sich auf die Standard-Ausbaustufe Fast-Fertig-Plus. Ihre Eigenleistungen: Spachtel-,Tapezier- und Malerarbeiten, Bodenbeläge, Innentüren.
Baunebenkosten fallen zuzüglich an.
Der Verkauf des Grundstücks erfolgt über einen unserer Netzwerkpartner.
Bilder können evtl. Anbauteile, Carports, Balkone, Gauben usw. zeigen, die nicht im Angebotspreis enthalten sind. Änderungen und Irrtümer vorbehalten.
Lage des Objektes
Heddesheim ist eine Gemeinde im Norden des Rhein-Neckar-Kreises in Baden-Württemberg. Sie liegt in der oberrheinischen Tiefebene im fruchtbaren Ried, profitiert von ihrer unmittelbaren Nähe zu den Großstädten Mannheim und Weinheim und hat sich erfolgreich als moderne, familienfreundliche Wohngemeinde positioniert.
Heddesheim liegt verkehrsgünstig zwischen den Ballungszentren der Metropolregion Rhein-Neckar, in unmittelbarer Nähe zur Bundesautobahn A5 und der A6.
Ein großer Standortvorteil ist die Anbindung an die Straßenbahnlinie 4, die eine direkte und schnelle Verbindung zur Innenstadt von Mannheim bietet. Der Bahnhof Heddesheim/Hirschberg ist somit ein wichtiger Knotenpunkt. Der Ortskern bietet eine ausgezeichnete Nahversorgung mit zahlreichen Einzelhandelsgeschäften, Supermärkten und Dienstleistern.
Als familienfreundliche Kommune legt Heddesheim Wert auf ein umfassendes Bildungs- und Betreuungsangebot. Kindergärten und Kindertagesstätten sichert die Betreuung der jüngsten Bürgerinnen und Bürger. Die Gemeinde verfügt über Grundschulen sowie eine Integrierte Gesamtschule (IGS). Weiterführende Schulen (Gymnasium) sind in den nahegelegenen Städten durch die gute ÖPNV-Anbindung schnell erreichbar.
Das größte Freizeit-Highlight ist der Heddesheimer Badesee ("Heddesheimer Baggersee"), der in den Sommermonaten ein beliebtes Ziel für die gesamte Region ist. Die Gemeinde verfügt über moderne Sportanlagen und ein aktives Sportleben. Die umliegenden landwirtschaftlichen Flächen und das Ried bieten sich für Rad- und Wandertouren an. Ein aktives Vereinsleben organisiert traditionelle Feste (wie die Kerwe) und sorgt für einen starken sozialen Zusammenhalt in der Gemeinde.
Die lokale Wirtschaft wird von Handwerksbetrieben, Dienstleistungen und dem Handel getragen. Die meisten Erwerbstätigen pendeln dank der hervorragenden Anbindung in die Industrie- und Technologiezentren Mannheim, Ludwigshafen und Heidelberg.
Die direkte Straßenbahnanbindung an die Großstadt, ein umfassendes Freizeitangebot und eine gute soziale Infrastruktur machen Heddesheim zu einem attraktiven Wohnort, der eine ideale Kombination aus ruhiger Lage und urbaner Erreichbarkeit bietet.
Heddesheim liegt verkehrsgünstig zwischen den Ballungszentren der Metropolregion Rhein-Neckar, in unmittelbarer Nähe zur Bundesautobahn A5 und der A6.
Ein großer Standortvorteil ist die Anbindung an die Straßenbahnlinie 4, die eine direkte und schnelle Verbindung zur Innenstadt von Mannheim bietet. Der Bahnhof Heddesheim/Hirschberg ist somit ein wichtiger Knotenpunkt. Der Ortskern bietet eine ausgezeichnete Nahversorgung mit zahlreichen Einzelhandelsgeschäften, Supermärkten und Dienstleistern.
Als familienfreundliche Kommune legt Heddesheim Wert auf ein umfassendes Bildungs- und Betreuungsangebot. Kindergärten und Kindertagesstätten sichert die Betreuung der jüngsten Bürgerinnen und Bürger. Die Gemeinde verfügt über Grundschulen sowie eine Integrierte Gesamtschule (IGS). Weiterführende Schulen (Gymnasium) sind in den nahegelegenen Städten durch die gute ÖPNV-Anbindung schnell erreichbar.
Das größte Freizeit-Highlight ist der Heddesheimer Badesee ("Heddesheimer Baggersee"), der in den Sommermonaten ein beliebtes Ziel für die gesamte Region ist. Die Gemeinde verfügt über moderne Sportanlagen und ein aktives Sportleben. Die umliegenden landwirtschaftlichen Flächen und das Ried bieten sich für Rad- und Wandertouren an. Ein aktives Vereinsleben organisiert traditionelle Feste (wie die Kerwe) und sorgt für einen starken sozialen Zusammenhalt in der Gemeinde.
Die lokale Wirtschaft wird von Handwerksbetrieben, Dienstleistungen und dem Handel getragen. Die meisten Erwerbstätigen pendeln dank der hervorragenden Anbindung in die Industrie- und Technologiezentren Mannheim, Ludwigshafen und Heidelberg.
Die direkte Straßenbahnanbindung an die Großstadt, ein umfassendes Freizeitangebot und eine gute soziale Infrastruktur machen Heddesheim zu einem attraktiven Wohnort, der eine ideale Kombination aus ruhiger Lage und urbaner Erreichbarkeit bietet.
Sonstige Informationen
Zur Realisierung des Bauvorhabens und zur Bezugsfertigkeit des Gebäudes kommen zzgl. noch Baunebenkosten und Fertigstellungskosten.