Exposé
Objektart:
Wohnung
» Penthouse
» Kauf
Standort: Wohnung »
Deutschland » Hessen » Kassel, documtena-Stadt (Kreis) » Kassel
Luxuriöse Penthäuser am Brasselsberg ab Plan - 50% reserviert!
Blick über Kassel
Das Wichtigste auf einen Blick:
| Objektnummer: | 9374968 |
Preise
| Kaufpreis | 551.100 € |
| Nebenkosten | keine Angabe |
Flächen
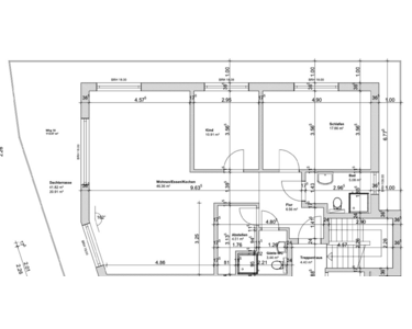
| Wohnfläche | 100,2 m² |
| Maklerprovision | keine Provision, courtagefrei |
Objekt Adresse
34132 Kassel
- Hessen
Sonstige Angaben
| Baujahr | 2025 |
| Zimmer | 3 |
| Verfügbar ab | nach Absprache |
| Bad | 1 |
| Inserat befindet sich im Stockwerk | 3 |
| Küche | Einbauküche |
| Bad | 1 |
| Boden | Fliesen |
| Balkone | 1 |
| Terrassen | 0 |
| Fahrstuhl | Ja |
| Keller | Ja |
| Heizungsart | Fußbodenheizung |
| Energieträger/Befeuerung | Luft-Wärme-Pumpe |
Objektbeschreibung
Angeboten werden insgesamt 4 Penthouse Wohnungen in zwei Gebäuden. Alle Wohnungen haben einen fantastischen Blick über Kassel, sind mit hochwertigen Materialien ausgestattet und sehr gut bewohnbar. Jedes Haus verfügt über einen Aufzug von der Tiefgarage bis in die Penthouse Etage.
Der Baubeginn ist erfolgt und die aktuelle Planung sieht die Fertigstellung Ende des Jahres vor.
Der angegebene Preis und die Größe bezieht sich auf die Wohnung 10 im Haus Nord. Die Wohnungen teilen sich wie folgt auf:
Wohnung 09 Haus Süd: 90,91 Quadratmeter (zwei Zimmer)
Wohnung 10 Haus Süd: 113,07 Quadratmeter (drei Zimmer)
Wohnung 09 Haus Nord: 107,55 Quadratmeter (drei Zimmer)
Wohnung 10 Haus Nord: 100,2 Quadratmeter (drei Zimmer)
Die Wohnungen 10 in den Häusern Süd und Nord sind reserviert.
Der Baubeginn ist erfolgt und die aktuelle Planung sieht die Fertigstellung Ende des Jahres vor.
Der angegebene Preis und die Größe bezieht sich auf die Wohnung 10 im Haus Nord. Die Wohnungen teilen sich wie folgt auf:
Wohnung 09 Haus Süd: 90,91 Quadratmeter (zwei Zimmer)
Wohnung 10 Haus Süd: 113,07 Quadratmeter (drei Zimmer)
Wohnung 09 Haus Nord: 107,55 Quadratmeter (drei Zimmer)
Wohnung 10 Haus Nord: 100,2 Quadratmeter (drei Zimmer)
Die Wohnungen 10 in den Häusern Süd und Nord sind reserviert.
Ausstattung
Keller, Dachterrasse, Fahrstuhl, Einbauküche, Fliesen
Bemerkungen:
Wir gestalten mit Ihnen Ihr Penthouse. Aus einer vorgefertigten Auswahl von edlen Fliesen, Natursteinbelägen, Wanddesigns, Küchen- und Badezimmermöbeln werden Sie entscheiden können, was Sie begeistert. Auch bei der
Raumaufteilung können Sie noch aktiv mitwirken und
Ihre Ideen mit einfließen lassen.
Bemerkungen:
Wir gestalten mit Ihnen Ihr Penthouse. Aus einer vorgefertigten Auswahl von edlen Fliesen, Natursteinbelägen, Wanddesigns, Küchen- und Badezimmermöbeln werden Sie entscheiden können, was Sie begeistert. Auch bei der
Raumaufteilung können Sie noch aktiv mitwirken und
Ihre Ideen mit einfließen lassen.
Lage des Objektes
Das Neubaugebiet Gänseweide/Hohefeldstraße am Kasseler Brasselsberg besticht durch einen einzigartigen Blick über Kassel und hoher Lebensqualität. Der Stadtteil Brasselsberg liegt im Süd-Westen der Stadt und ist bekannt für seine herrliche Lage zwischen dem Habichtswald und dem Naturschutzgebiet „Dönche“- zwei hochgeschätzte Naherholungsgebiete
Kassels. Brasselsberg überzeugt architektonisch durch Vielfalt: von
gemütlichen Einfamilienhäusern über Villenanlagen bis zur modernen
Bauhaus-Architektur. Heimelig wird der Brasselsberg durch seine kleine
Ortsmitte bestehend aus der Emmauskirche, einem italienischen
Restaurant und einem kleinen Supermarkt. Darüberhinaus befindet sich eine Kindertagesstätte im Stadtteil.
Infrastruktur (im Umkreis von 5 km):
Apotheke, Lebensmittel-Discount, Kindergarten, Grundschule, Gymnasium, Öffentliche Verkehrsmittel
Kassels. Brasselsberg überzeugt architektonisch durch Vielfalt: von
gemütlichen Einfamilienhäusern über Villenanlagen bis zur modernen
Bauhaus-Architektur. Heimelig wird der Brasselsberg durch seine kleine
Ortsmitte bestehend aus der Emmauskirche, einem italienischen
Restaurant und einem kleinen Supermarkt. Darüberhinaus befindet sich eine Kindertagesstätte im Stadtteil.
Infrastruktur (im Umkreis von 5 km):
Apotheke, Lebensmittel-Discount, Kindergarten, Grundschule, Gymnasium, Öffentliche Verkehrsmittel
Sonstige Informationen
Heizungsart: Fußbodenheizung
Energieträger: Luft-/Wasserwärme
Energieausweis nicht vorhanden
Weitblick Immobilien GmbH & Co. KG
Weidenbuschweg 8c
34132 Kassel
Deutschland
Tel.: +491739041638
E-Mail: s.itter@weitblickimmobilien.com
Registergericht: Amtsgericht Kassel
Registernummer: HRA 18303
Vertretungsberechtigte Gesellschafterin (Komplementärin): Weitblick Verwaltungs GmbH, Registergericht: Amtsgericht Kassel, Registernummer: HRB 19671, ihrerseits vertreten durch den Geschäftsführer: Norbert Itter
Plattform der EU-Kommission zur Online-Streitbeilegung: https://ec.europa.eu/odr
Wir sind zur Teilnahme an einem Streitbeilegungsverfahren vor einer Verbraucherschlichtungsstelle weder verpflichtet noch bereit.
Makleranfragen nicht erwünscht. Nach § 7 UWG sind unaufgeforderte Kontaktaufnahmen durch Makler ohne ausdrückliche Einwilligung des Empfängers verboten!
ohne-makler (OM) ist weder Anbieter noch Vermittler der Immobilie. OM betreibt eine Plattform für Immobilieneigentümer, die unter anderem die gleichzeitige Veröffentlichung einzelner Inserate auf mehreren Immobilienportalen ermöglicht. Die Inhalte dieser Inserate werden ausschließlich von Dritten verantwortet. Für die Richtigkeit, Vollständigkeit oder Rechtmäßigkeit der Angaben übernimmt OM keine Haftung. Hinweise auf mögliche Rechtsverstöße können jederzeit gemeldet werden und werden nach Prüfung umgehend bearbeitet.
Wohnung 09 Haus Süd
Wohnung 10 Haus Süd
Wohnung 09 Haus Nord
Wohnung 10 Haus Nord