Exposé
Objektart:
Wohnung
» Etage
» Miete
Standort: Wohnung »
Deutschland » Baden-Württemberg » Ravensburg (Kreis) » Isny im Allgäu
3,5-Zimmer-Wohnung mit Balkon in Isny-Wohngebiet
Hausansicht
Das Wichtigste auf einen Blick:
| Objektnummer: | 9374643 |
Preise
| Kaltmiete | 1.080 € |
| Nebenkosten | 180 € |
| Heizkosten enthalten | Ja |
| Kaution | 2 Kaltmieten |
Flächen
| Wohnfläche | 87,46 m² |
| Nutzfläche | 10,94 m² |
Objekt Adresse
88316 Isny im Allgäu
Sonstige Angaben
| Baujahr | 1988 |
| Zimmer | 3,5 |
| Verfügbar ab | nach Absprache |
| Bad | 1 |
| Garage/Stellplätze | 1 |
| Inserat befindet sich im Stockwerk | 2 |
| Küche | Einbauküche |
| Bad | 1 |
| Bad | Wanne, Fenster |
| Boden | Fliesen, Parkett |
| Balkone | 1 |
| Garten | Ja |
| Garage/Stellplätze | 1 |
| Keller | Ja |
| Energieausweistyp | Bedarfsausweis |
| Ausstellungsdatum | 07. 06. 2017 |
| Gültig bis | 06.06.2027 |
| Baujahr (laut Energieausweis) | 1988 |
| Energieeffizienzklasse | C |
| Endenergiebedarf | 97.2 kWh/(m²*a) |
| Heizungsart | Zentralheizung |
| Wesentlicher Energieträger | Gas |
| Energieträger/Befeuerung | Gas |
Objektbeschreibung
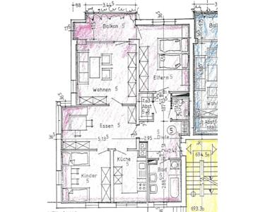
Diese charmante Etagenwohnung im 2.OG bietet eine Wohnfläche von 87,46 m² und befindet sich in einem gepflegten Gebäude aus dem Jahr 1988. Die Wohnung verfügt über eine Diele, Kinderzimmer, Tageslichtbad mit Badewanne, sep. WC, Abstellkammer, offenes Wohn-Esszimmer sowie Schlafzimmer. Wohnzimmer und Schlafzimmer haben beide Zugang zum sonnenverwöhnten Süd-Balkon. Die Einbauküche ist im Mietpreis enthalten. Ein Kellerraum mit ca. 11m² sorgt für zusätzlichen Stauraum.
Die Wohnung besteht aus insgesamt 3,5 Zimmern, welche dank der vielen Fensterflächen lichtdurchflutet sind. Der Süd-Balkon lädt dazu ein, die Sonne zu genießen und bietet einen schönen Ausblick über Isny.
Ideal ist die Wohnung für Paare, kleine Familien die auf der Suche nach einer gepflegten Immobilie in ruhiger Lage sind. Überzeugen Sie sich selbst von den Vorzügen dieser Etagenwohnung und vereinbaren Sie einen Besichtigungstermin.
Zur Wohnung gehört eine Tiefgaragenbox Nr. 26.
Hund oder Katze sind nicht erlaubt.
Die Wohnung besteht aus insgesamt 3,5 Zimmern, welche dank der vielen Fensterflächen lichtdurchflutet sind. Der Süd-Balkon lädt dazu ein, die Sonne zu genießen und bietet einen schönen Ausblick über Isny.
Ideal ist die Wohnung für Paare, kleine Familien die auf der Suche nach einer gepflegten Immobilie in ruhiger Lage sind. Überzeugen Sie sich selbst von den Vorzügen dieser Etagenwohnung und vereinbaren Sie einen Besichtigungstermin.
Zur Wohnung gehört eine Tiefgaragenbox Nr. 26.
Hund oder Katze sind nicht erlaubt.
Ausstattung
Bodenbeläge: Fliesen, Parkett
Süd-Balkon (Zugang vom Wohnzimmer und Schlafzimmer) mit Markise und Wasserhahn
Einbauküche im Mietpreis enthalten
Tageslichtbad mit Badewanne und Waschmaschinenanschluss
Abstellkammer
sep. WC
Kellerraum
Fahrradraum
Trockenraum
TG-Box für PKW
Süd-Balkon (Zugang vom Wohnzimmer und Schlafzimmer) mit Markise und Wasserhahn
Einbauküche im Mietpreis enthalten
Tageslichtbad mit Badewanne und Waschmaschinenanschluss
Abstellkammer
sep. WC
Kellerraum
Fahrradraum
Trockenraum
TG-Box für PKW
Lage des Objektes
Die Etagenwohnung befindet sich in einem ruhigen Wohnviertel im charmanten Stadtteil Isny im Allgäu. Die Umgebung zeichnet sich durch eine angenehme Wohnlage aus, in der man Ruhe und Erholung findet. In unmittelbarer Nähe gibt es zahlreiche Grünflächen, die zu Spaziergängen und Entspannung einladen. Einkaufsmöglichkeiten, Restaurants und Schulen sind ebenfalls gut erreichbar.
Isny im Allgäu ist eine idyllische Stadt inmitten der malerischen Landschaft des Allgäus. Hier findet man gemütliche Cafés, Geschäfte und kulturelle Sehenswürdigkeiten. Die Stadt bietet zudem eine gute Infrastruktur mit verschiedenen Freizeit- und Sportmöglichkeiten, wie zum Beispiel Wanderwege, Radwege und Wintersportgebiete in der Umgebung.
Die Region Allgäu ist bekannt für ihre atemberaubende Natur mit imposanten Bergen, saftigen Wiesen und klaren Seen. Hier kann man sich inmitten einer intakten Umwelt erholen und die frische Luft genießen. Die Gegend bietet zudem zahlreiche Freizeitangebote für Naturliebhaber, wie Wandern, Radfahren, Skifahren und Wellness. Mit seiner landschaftlichen Vielfalt und seinem hohen Erholungswert ist das Allgäu eine beliebte Region für Bewohner und Besucher gleichermaßen.
Isny im Allgäu ist eine idyllische Stadt inmitten der malerischen Landschaft des Allgäus. Hier findet man gemütliche Cafés, Geschäfte und kulturelle Sehenswürdigkeiten. Die Stadt bietet zudem eine gute Infrastruktur mit verschiedenen Freizeit- und Sportmöglichkeiten, wie zum Beispiel Wanderwege, Radwege und Wintersportgebiete in der Umgebung.
Die Region Allgäu ist bekannt für ihre atemberaubende Natur mit imposanten Bergen, saftigen Wiesen und klaren Seen. Hier kann man sich inmitten einer intakten Umwelt erholen und die frische Luft genießen. Die Gegend bietet zudem zahlreiche Freizeitangebote für Naturliebhaber, wie Wandern, Radfahren, Skifahren und Wellness. Mit seiner landschaftlichen Vielfalt und seinem hohen Erholungswert ist das Allgäu eine beliebte Region für Bewohner und Besucher gleichermaßen.
Sonstige Informationen
Hund oder Katze sind nicht erlaubt.
Hausansicht
Diele
Wohn- Esszimmer
Balkon
Blick vom Balkon
Kinderzimmer
Küche
Bad
sep. WC
Schlafzimmer
Treppenhaus
Fahrradraum
Tiefgarage
TG-Box
TG-Einfahrt
Wohnung im 2.OG mit Balkon
Hausansicht
Hausansicht - Eingang
gesamte Wohnanlage
Grundriss 2.OG