Exposé
Objektart:
Wohnung
» Etage
» Kauf
Standort: Wohnung »
Deutschland » Sachsen-Anhalt » Halle (Saale), Stadt » Halle
Dachgeschosswohnung über zwei Etagen
Wohn-Küchenbereich
Das Wichtigste auf einen Blick:
| Objektnummer: | 9373946 |
Preise
| Kaufpreis | 360.000 € |
| Nebenkosten | keine Angabe |
| Hausgeld | 279 € |
Flächen
| Wohnfläche | 104,75 m² |
| Maklerprovision | keine Provision, courtagefrei |
Objekt Adresse
Mozartstr. 17
06114 Halle
- Sachsen-Anhalt
Sonstige Angaben
| Baujahr | 1930 |
| Zimmer | 4 |
| Verfügbar ab | sofort |
| Bad | 1 |
| Anzahl der Etagen im Haus | 4 |
| Inserat befindet sich im Stockwerk | 3 |
| Bad | 1 |
| Bad | Wanne |
| Boden | Fliesen, Parkett |
| Keller | Ja |
| Energieausweistyp | Bedarfsausweis |
| Energieeffizienzklasse | E |
| Endenergiebedarf | 143 kWh/(m²*a) |
| Heizungsart | Zentralheizung |
| Energieträger/Befeuerung | Gas |
Objektbeschreibung
Das Haus Mozartstraße 17
Die Häuser Mozartstraße 16, 17 und 18 wurden in einheitlicher Bauweise errichtet und bilden heute eine aufgewertete Wohnanlage. Die drei Gebäudeteile sowie der gesamte Straßenblock wurden größtenteils ohne Seitenflügel oder Quergebäude gebaut.
In den Gebäuden Mozartstraße 16–18 wurden die Dachgeschosse zu Wohnraum ausgebaut. Die Remisen im Hof wurden zu zwei modernen Townhäusern umgestaltet.
Im Zuge des neuen Dachaufbaus wurden neben der Neueindeckung der Dächer auch die Fassaden, Eingangsbereiche, Treppenhäuser, Gemeinschaftselektrik und einiges mehr überarbeitet.
Der Hof selbst ist sehr großzügig und grün gehalten. Darüber hinaus gibt es im Hof sechs Stellplätze sowie eine Garage, die über die Tordurchfahrt der Hausnummer 18 erreichbar sind. Die Wohnhäuser haben je einen weiteren Eingang vom Hof.
Objektzustand: Erstbezug nach Sanierung
Die Häuser Mozartstraße 16, 17 und 18 wurden in einheitlicher Bauweise errichtet und bilden heute eine aufgewertete Wohnanlage. Die drei Gebäudeteile sowie der gesamte Straßenblock wurden größtenteils ohne Seitenflügel oder Quergebäude gebaut.
In den Gebäuden Mozartstraße 16–18 wurden die Dachgeschosse zu Wohnraum ausgebaut. Die Remisen im Hof wurden zu zwei modernen Townhäusern umgestaltet.
Im Zuge des neuen Dachaufbaus wurden neben der Neueindeckung der Dächer auch die Fassaden, Eingangsbereiche, Treppenhäuser, Gemeinschaftselektrik und einiges mehr überarbeitet.
Der Hof selbst ist sehr großzügig und grün gehalten. Darüber hinaus gibt es im Hof sechs Stellplätze sowie eine Garage, die über die Tordurchfahrt der Hausnummer 18 erreichbar sind. Die Wohnhäuser haben je einen weiteren Eingang vom Hof.
Objektzustand: Erstbezug nach Sanierung
Ausstattung
Keller, Vollbad, Parkett, Fliesen
Bemerkungen:
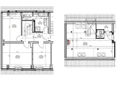
Die Dachwohnung Nr. 14
Die frisch ausgebaute Dachgeschosswohnung erstreckt sich über die zwei oberen Etagen des mittleren Hauses und verfügt über 104,75 m² Wohnfläche gemäß WoFlVO (128,91 m² Nutzfläche).
Die Maisonette-Wohnung bietet im oberen Geschoss einen offenen Wohn- und Küchenbereich sowie im darunterliegenden Geschoss drei Schlafzimmer – eine ideale Trennung zwischen privatem Bereich und Aufenthaltsräumen. Die Wohnung ist von beiden Etagen zugänglich.
Die obere Etage ist offen gestaltet, mit einer großzügigen Wohnküche, einem Gäste-WC, großen Dachfenstern sowie einer Klimaanlage. Auf der unteren Etage befinden sich drei Schlafzimmer, ein großes Badezimmer mit Wanne und Dusche sowie ein Hauswirtschaftsraum.
Die Wohnung ist durch große Fenster auf zwei Seiten sehr gut belichtet.
Alle Böden sind mit hochwertigem Vollholz-Eichenparkett ausgestattet.
Die Bäder verfügen über edle Steinfliesen, neue hochwertige Sanitärelemente, Fußbodenheizung sowie Fenster zur natürlichen Belichtung und Belüftung.
Bemerkungen:
Die Dachwohnung Nr. 14
Die frisch ausgebaute Dachgeschosswohnung erstreckt sich über die zwei oberen Etagen des mittleren Hauses und verfügt über 104,75 m² Wohnfläche gemäß WoFlVO (128,91 m² Nutzfläche).
Die Maisonette-Wohnung bietet im oberen Geschoss einen offenen Wohn- und Küchenbereich sowie im darunterliegenden Geschoss drei Schlafzimmer – eine ideale Trennung zwischen privatem Bereich und Aufenthaltsräumen. Die Wohnung ist von beiden Etagen zugänglich.
Die obere Etage ist offen gestaltet, mit einer großzügigen Wohnküche, einem Gäste-WC, großen Dachfenstern sowie einer Klimaanlage. Auf der unteren Etage befinden sich drei Schlafzimmer, ein großes Badezimmer mit Wanne und Dusche sowie ein Hauswirtschaftsraum.
Die Wohnung ist durch große Fenster auf zwei Seiten sehr gut belichtet.
Alle Böden sind mit hochwertigem Vollholz-Eichenparkett ausgestattet.
Die Bäder verfügen über edle Steinfliesen, neue hochwertige Sanitärelemente, Fußbodenheizung sowie Fenster zur natürlichen Belichtung und Belüftung.
Lage des Objektes
Die Mozartstraße verläuft als Horizontale vom östlich gelegenen Paulusviertel in Richtung zur westlich gelegenen Saale quer durch den Stadtteil Giebichenstein in der nördlichen Innenstadt.
Der Stadtteil Giebichenstein bekam seinen Namen von der direkt an der Saale liegenden Burg Giebichenstein, welche bereits im 12. Jahrhundert errichtet wurde. Auf ihrem Gelände befindet sich seit 1919 bis heute ein Teil des Kunstcampus der Kunsthochschule Halle. Die Bebauung dieses Stadtteils stammt überwiegend aus dem 19. Jahrhundert und wurde seit 1990 schrittweise saniert. In Zoonähe und in Richtung Saaleufer überwiegen villenartige Gebäude mit Vorgärten und wertvollem Baumbestand. Durch die Saalenähe und die teils historischen Park- und Grünanlagen (Amtsgarten, Reichardts Garten, Heinrich-Heine-Park) gehört dieser Stadtteil zu den am stärksten durchgrünten Vierteln. Der Stadtteil zählt ca. 10.000 Einwohner.
Die Hausnummer 18 der Mozartstraße ist eine sehr ruhig gelegene Adresse, direkt gegenüber der Rückseite des Naturkundemuseums.
In der nahe gelegenen Reilstraße gibt es diverse Tram- und Bushaltestellen.
Der Volkspark, sowie weitere Parkanlagen und auch die Saale sind in wenigen Gehminuten in weniger als 500 m erreichbar.
Infrastruktur (im Umkreis von 5 km):
Apotheke, Lebensmittel-Discount, Allgemeinmediziner, Kindergarten, Grundschule, Realschule, Gymnasium, Gesamtschule, Öffentliche Verkehrsmittel
Der Stadtteil Giebichenstein bekam seinen Namen von der direkt an der Saale liegenden Burg Giebichenstein, welche bereits im 12. Jahrhundert errichtet wurde. Auf ihrem Gelände befindet sich seit 1919 bis heute ein Teil des Kunstcampus der Kunsthochschule Halle. Die Bebauung dieses Stadtteils stammt überwiegend aus dem 19. Jahrhundert und wurde seit 1990 schrittweise saniert. In Zoonähe und in Richtung Saaleufer überwiegen villenartige Gebäude mit Vorgärten und wertvollem Baumbestand. Durch die Saalenähe und die teils historischen Park- und Grünanlagen (Amtsgarten, Reichardts Garten, Heinrich-Heine-Park) gehört dieser Stadtteil zu den am stärksten durchgrünten Vierteln. Der Stadtteil zählt ca. 10.000 Einwohner.
Die Hausnummer 18 der Mozartstraße ist eine sehr ruhig gelegene Adresse, direkt gegenüber der Rückseite des Naturkundemuseums.
In der nahe gelegenen Reilstraße gibt es diverse Tram- und Bushaltestellen.
Der Volkspark, sowie weitere Parkanlagen und auch die Saale sind in wenigen Gehminuten in weniger als 500 m erreichbar.
Infrastruktur (im Umkreis von 5 km):
Apotheke, Lebensmittel-Discount, Allgemeinmediziner, Kindergarten, Grundschule, Realschule, Gymnasium, Gesamtschule, Öffentliche Verkehrsmittel
Sonstige Informationen
Heizungsart: Zentralheizung
Energieträger: Gas
Das Hausgeld beträgt 279 Euro, zuzüglich 20,25 Euro Instandhaltungsrücklage.
Makleranfragen nicht erwünscht. Nach § 7 UWG sind unaufgeforderte Kontaktaufnahmen durch Makler ohne ausdrückliche Einwilligung des Empfängers verboten!
ohne-makler (OM) ist weder Anbieter noch Vermittler der Immobilie. OM betreibt eine Plattform für Immobilieneigentümer, die unter anderem die gleichzeitige Veröffentlichung einzelner Inserate auf mehreren Immobilienportalen ermöglicht. Die Inhalte dieser Inserate werden ausschließlich von Dritten verantwortet. Für die Richtigkeit, Vollständigkeit oder Rechtmäßigkeit der Angaben übernimmt OM keine Haftung. Hinweise auf mögliche Rechtsverstöße können jederzeit gemeldet werden und werden nach Prüfung umgehend bearbeitet.
Hausansicht
Hausansicht
Hauseingangstür
Hauseingangstür
Treppenhaus
Treppenhaus
Treppenhaus
Treppenhaus
Treppenhaus
Treppenhaus
Eingang
Eingang
Eingang Flur
Wohn-Küchenbereich
Wohn-Küchenbereich
Wohn-Küchenbereich
Wohn-Küchenbereich
Klimaanlage
Treppe
Schlafzimmer
Schlafzimmer
Schlafzimmer
Badezimmer
Badezimmer
Badezimmer
Hauswirtschaftsraum
Grundriss