Exposé
Objektart:
Wohnung
» Etage
» Kauf
Standort: Wohnung »
Deutschland » Berlin » Berlin, Stadt (Kreis) » Berlin
1-ZI.-ALTBAU SOLDINER KIEZ – SANIERUNGSBEDÜRFTIG, RUHIGE HOFLAGE, IDEAL FÜR ANLEGER & SELBSTNUTZER
Wohnbereichbeispiel nach Sanierung (Fotomontage)
Das Wichtigste auf einen Blick:
| Objektnummer: | 9373529 |
Preise
| Kaufpreis | 135.000 € |
| Nebenkosten | keine Angabe |
| Hausgeld | 155 € |
Flächen
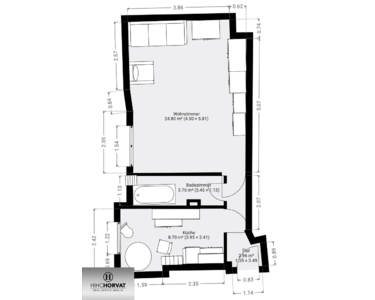
| Wohnfläche | 40 m² |
| Maklerprovision | Käuferprovision: 3,57 % inkl. MwSt. vom Kaufpreis, zahlbar nach notariellem Vertragsabschluss. |
Objekt Adresse
13359 Berlin
- Berlin
Sonstige Angaben
| Baujahr | 1905 |
| Letzte Modernisierung | 1905 |
| Zimmer | 1 |
| Verfügbar ab | SOFORT |
| Bad | 1 |
| Anzahl der Etagen im Haus | 5 |
| Inserat befindet sich im Stockwerk | 4 |
| Küche | Einbauküche |
| Bad | 1 |
| Bad | Dusche, Fenster |
| Boden | Teppich |
| Energieausweistyp | Bedarfsausweis |
| Ausstellungsdatum | 06. 07. 2020 |
| Gültig bis | 05.07.2030 |
| Energieeffizienzklasse | E |
| Endenergiebedarf | 141.9 kWh/(m²*a) |
| Heizungsart | Ofen |
| Wesentlicher Energieträger | Gas |
| Energieträger/Befeuerung | Gas |
Objektbeschreibung
Hierbei handelt es sich um einen typischen Berliner Altbau.
Ausstattung
Diese Altbauwohnung befindet sich im ruhigen zweiten Innenhof eines klassischen Berliner Gründerzeitgebäudes und liegt im 4. Obergeschoss.
Die Einheit bietet Ihnen eine solide Basis, um Ihre eigenen Wohnideen zu verwirklichen – sie befindet sich derzeit in einem sanierungsbedürftigen Zustand und eignet sich ideal für individuelle Ausbau- und Gestaltungskonzepte. Die drei Bilder im Inserat vom Innenbereich der Wohnung sind Fotomontagen die Ihnen neue Ideen nach Ihren Sanierungsmaßnahmen geben können. Viele weitere Bilder vom aktuellen, sanierungsbedürftigen Zustand der Wohnung erhalten Sie im Exposé überreicht, welches Sie bei Ihrer Anfrage an uns automatisch zugestellt bekommen.
Ausstattungsmerkmale:
✔ Klassischer Altbau im beliebten Soldiner Kiez
✔ 4. OG – ruhige Hoflage im ruhigen Seitenflügel - ohne Lift
✔ Kunststoff-Isolierglasfenster
✔ Küche mit Zugang zu einer praktischen Kammer mit Waschbecken
✔ Wannenbad
✔ Aktuell befindet sich eine Ofenheizung in der Wohnung
✔ Viel Potenzial für moderne Grundriss- und Designideen
Hier bietet sich eine seltene Gelegenheit, eine kleine Altbauperle nach eigenen Vorstellungen zu gestalten – perfekt zur Selbstnutzung oder Vermietung.
📲 WhatsApp-Kontakt: https://wa.me/message/NKREKY3DWQQSN1
🚀 YouTube-Kanal: www.youtube.com/@immobilienmaklerberlin
🌟 VIP-Anfragen per Mail: Betreff „VIP“ senden
📢 Facebook-Gruppe: https://www.facebook.com/groups/immobilienberlinmietenkaufen
🎥 TikTok: https://www.tiktok.com/@immobilienmaklerberlin
📸 Instagram: https://www.instagram.com/immobilienmaklerberlin24/
💡 Zusatzservice:
Auf Wunsch begleiten wir Sie auch bei der Vermietung oder dem Verkauf Ihrer bisherigen Immobilie – persönlich, zuverlässig und mit Erfahrung.
Die Einheit bietet Ihnen eine solide Basis, um Ihre eigenen Wohnideen zu verwirklichen – sie befindet sich derzeit in einem sanierungsbedürftigen Zustand und eignet sich ideal für individuelle Ausbau- und Gestaltungskonzepte. Die drei Bilder im Inserat vom Innenbereich der Wohnung sind Fotomontagen die Ihnen neue Ideen nach Ihren Sanierungsmaßnahmen geben können. Viele weitere Bilder vom aktuellen, sanierungsbedürftigen Zustand der Wohnung erhalten Sie im Exposé überreicht, welches Sie bei Ihrer Anfrage an uns automatisch zugestellt bekommen.
Ausstattungsmerkmale:
✔ Klassischer Altbau im beliebten Soldiner Kiez
✔ 4. OG – ruhige Hoflage im ruhigen Seitenflügel - ohne Lift
✔ Kunststoff-Isolierglasfenster
✔ Küche mit Zugang zu einer praktischen Kammer mit Waschbecken
✔ Wannenbad
✔ Aktuell befindet sich eine Ofenheizung in der Wohnung
✔ Viel Potenzial für moderne Grundriss- und Designideen
Hier bietet sich eine seltene Gelegenheit, eine kleine Altbauperle nach eigenen Vorstellungen zu gestalten – perfekt zur Selbstnutzung oder Vermietung.
📲 WhatsApp-Kontakt: https://wa.me/message/NKREKY3DWQQSN1
🚀 YouTube-Kanal: www.youtube.com/@immobilienmaklerberlin
🌟 VIP-Anfragen per Mail: Betreff „VIP“ senden
📢 Facebook-Gruppe: https://www.facebook.com/groups/immobilienberlinmietenkaufen
🎥 TikTok: https://www.tiktok.com/@immobilienmaklerberlin
📸 Instagram: https://www.instagram.com/immobilienmaklerberlin24/
💡 Zusatzservice:
Auf Wunsch begleiten wir Sie auch bei der Vermietung oder dem Verkauf Ihrer bisherigen Immobilie – persönlich, zuverlässig und mit Erfahrung.
Lage des Objektes
Die Wohnung befindet sich in der Koloniestraße im beliebten Soldiner Kiez im Berliner Ortsteil Wedding (Bezirk Mitte). Das Umfeld ist geprägt von klassischer Berliner Gründerzeitarchitektur, charmanten Altbauten und einer lebendigen Nachbarschaft.
In fußläufiger Entfernung liegen zahlreiche Einkaufsmöglichkeiten, Cafés, Restaurants und kleine Boutiquen. Grünflächen wie der Schillerpark, der Pankufer-Weg oder der Volkspark Humboldthain bieten vielseitige Freizeitmöglichkeiten im Freien.
Die Verkehrsanbindung ist hervorragend: Die U-Bahn-Stationen Osloer Straße (U8, U9) sowie mehrere Bus- und Tramlinien sind schnell erreichbar und verbinden das Quartier mit der Berliner Innenstadt, Prenzlauer Berg und dem Hauptbahnhof in wenigen Minuten.
Der Wedding zählt inzwischen zu den aufstrebenden Stadtteilen Berlins – beliebt bei jungen Berufstätigen, Studierenden und Familien, die urbanes Wohnen mit authentischem Berliner Flair schätzen.
In fußläufiger Entfernung liegen zahlreiche Einkaufsmöglichkeiten, Cafés, Restaurants und kleine Boutiquen. Grünflächen wie der Schillerpark, der Pankufer-Weg oder der Volkspark Humboldthain bieten vielseitige Freizeitmöglichkeiten im Freien.
Die Verkehrsanbindung ist hervorragend: Die U-Bahn-Stationen Osloer Straße (U8, U9) sowie mehrere Bus- und Tramlinien sind schnell erreichbar und verbinden das Quartier mit der Berliner Innenstadt, Prenzlauer Berg und dem Hauptbahnhof in wenigen Minuten.
Der Wedding zählt inzwischen zu den aufstrebenden Stadtteilen Berlins – beliebt bei jungen Berufstätigen, Studierenden und Familien, die urbanes Wohnen mit authentischem Berliner Flair schätzen.
Sonstige Informationen
Alle Angaben basieren auf Informationen des Eigentümers. Für deren Richtigkeit und Vollständigkeit übernehmen wir keine Gewähr.
Dieses Angebot ist freibleibend. Zwischenverkauf vorbehalten.
Küchenbeispiel nach Sanierung (Fotomontage)
Badbeispiel nach Sanierung - (Fotomontage)
IMG_8518
Ruhiger Innenhof
Haupttor
Umgebung
Umgebung weitere Ansicht
Hausansicht
Grobe Grundrissskizze