Exposé
Objektart:
Haus
» Reihenhaus
» Kauf
Standort: Haus »
Deutschland » Sachsen-Anhalt » Saalekreis (Kreis) » Großkugel
Kapitalanleger aufgepasst! 5 Reihenhäuser in attraktiver und gefragter Wohnlage zu verkaufen!
Hausansicht
Das Wichtigste auf einen Blick:
| Objektnummer: | 9372831 |
Preise
| Kaufpreis | 790.000 € |
| Nebenkosten | keine Angabe |
Flächen
| Wohnfläche | 565 m² |
| Nutzfläche | 189 m² |
| Grundstücksfläche | 650 m² |
| Maklerprovision | 3,57% inkl. 19% MwSt. |
Objekt Adresse
Am Beuditzer Weg -
06184 Großkugel
Sonstige Angaben
| Baujahr | 1995 |
| Zimmer | 22 |
| Verfügbar ab | sofort |
| Bad | 5 |
| Anzahl der Etagen im Haus | 3 |
| Bad | 5 |
| Bad | Fenster |
| Boden | Fliesen, Teppich, Fertigparkett, Laminat |
| Keller | Ja |
| Energieausweistyp | Bedarfsausweis |
| Gültig bis | 2029-03-26 |
| Baujahr (laut Energieausweis) | 1995 |
| Energieeffizienzklasse | D |
| Endenergiebedarf | 122.00 kWh/(m²*a) |
| Heizungsart | Zentralheizung |
| Wesentlicher Energieträger | Oel |
| Energieträger/Befeuerung | Öl |
Objektbeschreibung
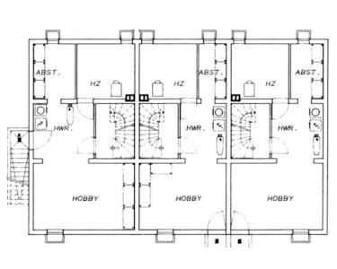
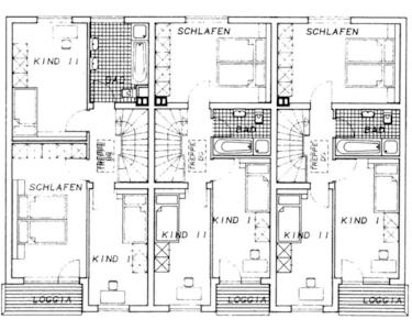
Zum Verkauf stehen fünf vermietete Reihenhäuser in einer gefragten Wohnlage – eine attraktive Kapitalanlage mit stabilem Mieteinkommen und langfristigem Wertsteigerungspotenzial. Jedes Haus besticht durch einen gepflegten Garten mit Terrasse, einen Balkon, ein Gäste-WC mit Fenster, sowie ein Badezimmer mit Wanne und Dusche. Ein Keller bietet zusätzlichen Stauraum, und das Dachgeschoss ist derzeit nicht ausgebaut, eröffnet jedoch die Möglichkeit, weitere Wohnfläche zu schaffen und den Wert der Immobilie zu steigern.
Die Häuser sind aktuell voll vermietet und erzielen eine Jahresnettomiete von 39.500 €, bei marktgerechter Anpassung ist ein Mietpotenzial von rund 59.400 € pro Jahr realistisch. Die Zentralheizung wird mit Öl betrieben, das von den Mietern selbst bezogen wird.
Mit dem Kaufpreis bietet dieses Investment eine attraktive Rendite bei gleichzeitig solider Sicherheit. Die Immobilien vereinen unmittelbare Mieteinnahmen mit Ausbau- und Wertsteigerungspotenzial – eine perfekte Gelegenheit für Kapitalanleger, die ihr Portfolio langfristig und rentabel erweitern möchten. Eine Verwaltung Ihrer Häuser kann direkt von uns auf Wunsch übernommen werden.
Die Häuser sind aktuell voll vermietet und erzielen eine Jahresnettomiete von 39.500 €, bei marktgerechter Anpassung ist ein Mietpotenzial von rund 59.400 € pro Jahr realistisch. Die Zentralheizung wird mit Öl betrieben, das von den Mietern selbst bezogen wird.
Mit dem Kaufpreis bietet dieses Investment eine attraktive Rendite bei gleichzeitig solider Sicherheit. Die Immobilien vereinen unmittelbare Mieteinnahmen mit Ausbau- und Wertsteigerungspotenzial – eine perfekte Gelegenheit für Kapitalanleger, die ihr Portfolio langfristig und rentabel erweitern möchten. Eine Verwaltung Ihrer Häuser kann direkt von uns auf Wunsch übernommen werden.
Ausstattung
- 5 Reihenhäuser (alle vermietet)
- Garten und Terrasse
- Balkon
- z.T. GWC mit Fenster
- Bad mit Wanne und Dusche
- Zentralheizung (Öl, Mieter beziehen ÖL selber)
- Keller
- DG nicht ausgebaut, aber ausbaufähig
- IST-Miete: 39.500,00 €
- erzielbare Miete: ca. 59.400,00 €
- Garten und Terrasse
- Balkon
- z.T. GWC mit Fenster
- Bad mit Wanne und Dusche
- Zentralheizung (Öl, Mieter beziehen ÖL selber)
- Keller
- DG nicht ausgebaut, aber ausbaufähig
- IST-Miete: 39.500,00 €
- erzielbare Miete: ca. 59.400,00 €
Lage des Objektes
Die Siedlung Großkugel befindet sich zwischen Halle und Leipzig, südöstlich von Gröbers, unweit der Landesgrenze von Sachsen-Anhalt und Sachsen. Nordöstlich des Orts liegt das Autobahnkreuz Schkeuditzer Kreuz, sowie der Flughafen Leipzig-Halle. Südlich verläuft die Bundesstraße 6. Nördlich verläuft die Bahnstrecke Magdeburg–Leipzig. Nordöstlich der Ortslage befindet sich der S-Bahn-Haltepunkt Großkugel der S-Bahn Mitteldeutschland.
Die Ortschaft Großkugel gehört zur Gemeinde Kabelsketal, die nach dem gleichnamigen Bach benannt ist. Kabelsketal hat sich nach der Wende einen guten Ruf als Gewerbestandort erarbeitet. Hier haben bekannte Unternehmen, wie Viesmann, DHL, Nagel, Ihre Niederlassungen. Aufgrund der sehr guten Verkehrsanbindung ist man schnell in Halle und Leipzig. Kindergarten, Schule und Einkaufsmöglichkeiten sind fussläufig zu erreichen.
Die Ortschaft Großkugel gehört zur Gemeinde Kabelsketal, die nach dem gleichnamigen Bach benannt ist. Kabelsketal hat sich nach der Wende einen guten Ruf als Gewerbestandort erarbeitet. Hier haben bekannte Unternehmen, wie Viesmann, DHL, Nagel, Ihre Niederlassungen. Aufgrund der sehr guten Verkehrsanbindung ist man schnell in Halle und Leipzig. Kindergarten, Schule und Einkaufsmöglichkeiten sind fussläufig zu erreichen.
Sonstige Informationen
Für weiterführende Informationen stehen Ihnen Herr Paerisch (0341 98 98 38 15) oder Herr Matthes (0341 98 98 38 14) gern zur Verfügung.
Lage_Ort
Übersicht_Siedlung
Lage
Grundriss_KG
Grundriss_EG
Grundriss_OG
Grundriss_DG_nach Ausbau
E-Ausweis