Exposé
Objektart:
Wohnung
» Apartment
» Miete
Standort: Wohnung »
Deutschland » Niedersachsen » Region Hannover (Kreis) » Hannover
Zentrum, Business-Apartment mit Boardingservice
Wohnen
Das Wichtigste auf einen Blick:
| Objektnummer: | 9372106 |
Preise
| Warmmiete | 1.290 € |
| Nebenkosten | keine Angabe |
| Kaution | Vereinbarung |
Flächen
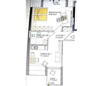
| Wohnfläche | 47 m² |
Objekt Adresse
30159 Hannover
- Niedersachsen
Sonstige Angaben
| Baujahr | 1954 |
| Zimmer | 2 |
| Verfügbar ab | 01.01.2026 |
| Inserat befindet sich im Stockwerk | 4 |
| Küche | Einbauküche |
| Bad | Dusche |
| Boden | Laminat |
| Heizungsart | Fernwärme |
| Energieträger/Befeuerung | Fernwärme |
Objektbeschreibung
City-Apartment im 4. OG eines Mehrfamilienhauses in ruhiger Lage zwischen Steintor und Uni. Nur 8 Gehminuten bis Fußgängerzone, Laminat. Komplett neu ausgebautes Dachgeschoss mit leichten Schrägen.
Wohnzimmer mit Schreibtisch mit Stuhl, Schlafsofa, Couchtisch,
offene Einbauküche, komplett ausgestattet mit 2 Kochplatten, Kühlschrank, div. Kleingeräte.
Schlafzimmer mit Boxspring-Bett (180x200 cm), LED-Flachbild-SAT-TV, Kleiderschrank.
Duschbad/WC.
Loggia mit Bangkirai-Holzplanken.
Internet/WLAN auf Anfrage.
(WLAN für 30,00 EUR/Monat)
Waschmaschine im Keller EUR 25,- / Monat.
Im Bürgeramt Aegi kann ein Bewohnerparkausweis beantragt werden, der zum Parken in den gekennzeichneten Bewohnerparkzonen berechtigt.
Kosten auf Anfrage.
-----
Angaben zum Energieausweis:
Art: Verbrauchsausweis
Energieeffizienzklasse:F
Verbrauchskennwert: 182,7 kWh/qm/a
Energieträger: Fernwärme
Gebäudebaujahr: 1954
-----
Bei 1 Person inklusive 14 tägiger Reinigung mit Wäschewechsel.
2. Person auf Anfrage.
Bei Firma als Mieter zzgl. gesetzlicher MwSt.
Deutsche Rundfunk- und Fernsehgebühr nicht enthalten.
Die Endreinigungsgebühr wird nach Aufwand berechnet.
Waschmaschine im Keller EUR 30,- / Monat.
Weitere Apartments auf Anfrage und Verfügbarkeit.
Wohnzimmer mit Schreibtisch mit Stuhl, Schlafsofa, Couchtisch,
offene Einbauküche, komplett ausgestattet mit 2 Kochplatten, Kühlschrank, div. Kleingeräte.
Schlafzimmer mit Boxspring-Bett (180x200 cm), LED-Flachbild-SAT-TV, Kleiderschrank.
Duschbad/WC.
Loggia mit Bangkirai-Holzplanken.
Internet/WLAN auf Anfrage.
(WLAN für 30,00 EUR/Monat)
Waschmaschine im Keller EUR 25,- / Monat.
Im Bürgeramt Aegi kann ein Bewohnerparkausweis beantragt werden, der zum Parken in den gekennzeichneten Bewohnerparkzonen berechtigt.
Kosten auf Anfrage.
-----
Angaben zum Energieausweis:
Art: Verbrauchsausweis
Energieeffizienzklasse:F
Verbrauchskennwert: 182,7 kWh/qm/a
Energieträger: Fernwärme
Gebäudebaujahr: 1954
-----
Bei 1 Person inklusive 14 tägiger Reinigung mit Wäschewechsel.
2. Person auf Anfrage.
Bei Firma als Mieter zzgl. gesetzlicher MwSt.
Deutsche Rundfunk- und Fernsehgebühr nicht enthalten.
Die Endreinigungsgebühr wird nach Aufwand berechnet.
Waschmaschine im Keller EUR 30,- / Monat.
Weitere Apartments auf Anfrage und Verfügbarkeit.
Ausstattung
Couch/Schlafcouch
Doppelbett
DSL WLAN
Internet
Mikrowelle
Sat TV
Telefondose
Tisch/Schreibtisch
Laminat
Einbauküche
Waschmaschine
Balkon/Terrasse
Doppelbett
DSL WLAN
Internet
Mikrowelle
Sat TV
Telefondose
Tisch/Schreibtisch
Laminat
Einbauküche
Waschmaschine
Balkon/Terrasse
Lage des Objektes
8 Min. Steintor U 4,5,6 oder 4 Min. Königsworther PLatz U 4,5
Sonstige Informationen
Kaution: Vereinbarung
beliebter Stadtteil, freundlich, hell, möbliert, verkehrsgünstig, Uninähe, ruhig, Dachgeschoss, renoviert
Firmenname: HomeCompany - Mitwohnzentrale Immobilien Manfred Buschmann e.K.
Inhaber: Manfred Buschmann
Adresse: Steinmetzstr. 16
30163 Hannover
Tel.: + 49 (0) 511 - 19445
E-Mail: hannover@homecompany.de
USt.-IdNr.: DE 192649496
Kammer: IHK Hannover
Aufsichtsbehörde: Ordnungsamt Hannover, Leinstr. 14, 30159 Hannover
V.i.S.d.P.: Manfred Buschmann
HR-Nummer: HRA 24658
Registergericht: Hannover
Wohnen
Arbeiten
Schlafen
Schlafen
Küche
Bad
Balkon
Essen
Küche
Wohnen
Bad
Flur
Grundriss