Exposé
Objektart:
Wohnung
» Dachgeschoss
» Kauf
Standort: Wohnung »
Deutschland » Bayern » Günzburg (Kreis) » Leipheim
Helle 2-Zimmer-Wohnung in Leipheim
Außenansicht 1
Das Wichtigste auf einen Blick:
| Objektnummer: | 9372095 |
Preise
| Kaufpreis | 179.000 € |
| Nebenkosten | keine Angabe |
Flächen
| Wohnfläche | 49,79 m² |
| Maklerprovision | 3,57 % inkl. MwSt. |
Objekt Adresse
89340 Leipheim
Sonstige Angaben
| Baujahr | 2000 |
| Zimmer | 2 |
| Verfügbar ab | 01.2026 |
| Bad | 1 |
| Anzahl der Etagen im Haus | 3 |
| Inserat befindet sich im Stockwerk | 2 |
| Bad | 1 |
| Balkone | 1 |
| Energieausweistyp | Verbrauch |
| Gültig bis | 2028-07-18 |
| Baujahr (laut Energieausweis) | 2000 |
| Energieeffizienzklasse | D |
| Energieverbrauchkennwert | 110.50 kWh/(m²*a) |
| Heizungsart | Zentralheizung |
| Wesentlicher Energieträger | Gas |
| Energieträger/Befeuerung | Gas |
Objektbeschreibung
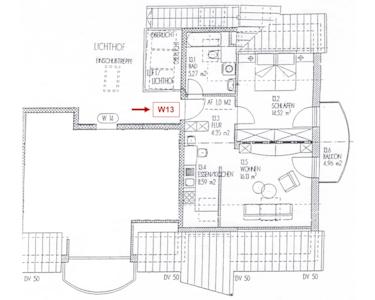
Die helle und praktisch geschnittene Wohnung liegt in einem Mehrfamilienhaus mit großzügigem Treppenhaus im Dachgeschoß.
Sie besteht aus einem hellen Wohn-/Esszimmer, einem Schlafzimmer, einer gut geplanten Küche sowie einem Bad mit Wanne, WC und Platz für Waschmaschine und Trockner. Ein Balkon zur Sonnenseite rundet den positiven Gesamteindruck ab.
Der Tiefgaragen-Stellplatz ist im Kaufpreis enthalten.
Sie besteht aus einem hellen Wohn-/Esszimmer, einem Schlafzimmer, einer gut geplanten Küche sowie einem Bad mit Wanne, WC und Platz für Waschmaschine und Trockner. Ein Balkon zur Sonnenseite rundet den positiven Gesamteindruck ab.
Der Tiefgaragen-Stellplatz ist im Kaufpreis enthalten.
Ausstattung
Die 2-Zimmer-Wohnung im Dachgeschoss hat eine Wohnfläche von rund
50 m² und kann über ein sehr großzügiges Treppenhaus (da wird ein Umzug zu keinem Problem) erreicht werden.
Große Fenster sorgen in der ganzen Wohnung für eine angenehme, warme und lichtdurchflutete Atmosphäre, Wohlfühlfaktor garantiert. Alle Wohnräume sind mit einem hochwertigen Vinyl-Designboden in Holzoptik sowie Küche und Bad gefliest. ausgestattet.
Das Badezimmer mit Tageslicht lädt zum Verweilen ein. Hier gibt es eine Badewanne, ein Waschbecken, das WC sowie einen Anschluss für die Waschmaschine und Trockner. Die Einrichtungsgegenstände sind aus Keramik und in weiß gehalten. Der Boden hat helle Fliesen, die Wände sind weiß gefliest bzw. weiß gestrichen.
Eine praktisch geplante Küchenzeile ist im Kaufpreis enthalten.
Weiter verfügt die Wohnung über einen großzügigen Balkon und einem Tiefgaragen-Stellplatz.
50 m² und kann über ein sehr großzügiges Treppenhaus (da wird ein Umzug zu keinem Problem) erreicht werden.
Große Fenster sorgen in der ganzen Wohnung für eine angenehme, warme und lichtdurchflutete Atmosphäre, Wohlfühlfaktor garantiert. Alle Wohnräume sind mit einem hochwertigen Vinyl-Designboden in Holzoptik sowie Küche und Bad gefliest. ausgestattet.
Das Badezimmer mit Tageslicht lädt zum Verweilen ein. Hier gibt es eine Badewanne, ein Waschbecken, das WC sowie einen Anschluss für die Waschmaschine und Trockner. Die Einrichtungsgegenstände sind aus Keramik und in weiß gehalten. Der Boden hat helle Fliesen, die Wände sind weiß gefliest bzw. weiß gestrichen.
Eine praktisch geplante Küchenzeile ist im Kaufpreis enthalten.
Weiter verfügt die Wohnung über einen großzügigen Balkon und einem Tiefgaragen-Stellplatz.
Lage des Objektes
Die Wohnung befindet sich in zentrumsnaher und dennoch ruhiger Lage von Leipheim. Einkaufsmöglichkeiten, Ärzte, Schulen und Kindergärten sind in wenigen Minuten erreichbar. Der Bahnhof sowie die Anbindung an die A8 sorgen für eine schnelle Verbindung nach Ulm, Augsburg und München. Die Nähe zur Donau und zu grünen Naherholungsgebieten bietet zudem einen hohen Freizeitwert.
Sonstige Informationen
Haben wir Ihr Interesse geweckt? Möchten Sie die Wohnung gerne besichtigen? Dann stellen Sie uns bitte mit nur einem Mausklick eine vollständige Anfrage (Anbieter kontaktieren).
Wir nehmen dann direkt Kontakt mit Ihnen auf und freuen uns darauf, Sie persönlich kennenzulernen und beraten zu dürfen.
Außenansicht 2
Außenansicht 3
Treppenhaus
Treppenhaus
Tiefgarage
Flur
Wohnzimmer
Wohnzimmer
Küche
Bad
Bad
Schlafzimmer
Grundriss W13