Exposé
Objektart:
Haus
» Bungalow
» Kauf
Standort: Haus »
Deutschland » Baden-Württemberg » Karlsruhe (Kreis) » Oberhausen-Rheinhausen
STREIF baut Euer perfektes Zuhause
Das Wichtigste auf einen Blick:
| Objektnummer: | 9371984 |
Preise
| Kaufpreis | 619.019 € |
| Nebenkosten | keine Angabe |
Flächen
| Wohnfläche | 113 m² |
| Grundstücksfläche | 355 m² |
Objekt Adresse
68794 Oberhausen-Rheinhausen
Sonstige Angaben
| Zimmer | 4 |
| Verfügbar ab | keine Angabe |
| Bad | 1 |
| Anzahl der Etagen im Haus | 1 |
| Bad | 1 |
| Terrassen | 1 |
| Barrierefrei | |
| Energietyp | KfW-40 |
| Heizungsart | Zentralheizung |
| Energieträger/Befeuerung | Luft-Wärme-Pumpe |
Objektbeschreibung
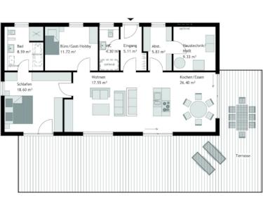
Bungalow mit Satteldach mit flexiblem Raumkonzept
Entdecken Sie die Möglichkeiten, Ihr Traumhaus als Bungalow mit einem Satteldach zu realisieren und erleben Sie eine zeitgemäße Architektur gepaart mit einem einzigartigen Raumkonzept. Der Wohn-/Ess- und Kochbereich erstreckt sich über großzügige 44 m² und bietet höchsten Komfort. Eine halbhohe Wand, die optional auch raumhoch sein kann, trennt geschickt den Koch- vom Wohnbereich und schafft so eine harmonische Balance zwischen gemeinsamen Beisammensein und klarer Struktur. Große Panoramafenster sowie eine geräumige Panorama-Hebeschiebetür sorgen für ein helles und offenes Ambiente, das Innen- und Außenbereich harmonisch miteinander verbindet. Der Schlafbereich überzeugt mit großzügiger Stellfläche für Schränke und einem direkten Zugang zum geräumigen Badezimmer. Ein zusätzlicher Raum, flexibel als Büro, Gäste- oder Hobbyraum nutzbar, sowie ein zweites Badezimmer mit optionaler Dusche, runden das Raumangebot ab. Auf Anfrage kann der Grundriss des Bungalows auch barrierefrei gestaltet werden, um allen individuellen Bedürfnissen gerecht zu werden.
Entdecken Sie die Möglichkeiten, Ihr Traumhaus als Bungalow mit einem Satteldach zu realisieren und erleben Sie eine zeitgemäße Architektur gepaart mit einem einzigartigen Raumkonzept. Der Wohn-/Ess- und Kochbereich erstreckt sich über großzügige 44 m² und bietet höchsten Komfort. Eine halbhohe Wand, die optional auch raumhoch sein kann, trennt geschickt den Koch- vom Wohnbereich und schafft so eine harmonische Balance zwischen gemeinsamen Beisammensein und klarer Struktur. Große Panoramafenster sowie eine geräumige Panorama-Hebeschiebetür sorgen für ein helles und offenes Ambiente, das Innen- und Außenbereich harmonisch miteinander verbindet. Der Schlafbereich überzeugt mit großzügiger Stellfläche für Schränke und einem direkten Zugang zum geräumigen Badezimmer. Ein zusätzlicher Raum, flexibel als Büro, Gäste- oder Hobbyraum nutzbar, sowie ein zweites Badezimmer mit optionaler Dusche, runden das Raumangebot ab. Auf Anfrage kann der Grundriss des Bungalows auch barrierefrei gestaltet werden, um allen individuellen Bedürfnissen gerecht zu werden.
Ausstattung
STREIF-Häuser sind Energiesparhäuser. Die Außenwände im Passiv-Haus-Standard und eine sparsame Heiztechnik mit integrierter Wohnraumlüftung und Wärmerückgewinnung, garantieren einen geringen Energieverbrauch und ein fantastisches Raumklima, das insbesondere Allergiker aufatmen lässt.
STREIF Leistungen sind MEHR WERT - schon im Grundpreis enthalten!
- 20-monatige Festpreisgarantie
- KfW-Energieeffizienzhaus 40 im Standard*
- Inkl. individueller Grundrissgestaltung und Raumaufteilung
- Inkl. gedämmter Fundamentplatte
- Inkl. STREIF-Luft-Luft-Wärmepumpen-Technologie mit integrierter Lüftungsanlage mit Wärmerückgewinnung
- Inkl. Haustür von KERA und Fenster von Porta/Kömmerling
- Inkl. Sanitärobjekte von Markenherstellern
- Inkl. Elektroinstallation
- Inkl. Photovoltaikanlage 7,12 KWP
- Inkl. Batteriespeicher mit 7,70 KWH
- Inkl. Baubetreuung u.v.m.
* In Abhängigkeit von Gebäudestandort, Gebäudeausrichtung, Fensterflächenanteile usw. können zusätzliche oder abweichende Leistungen erforderlich werden, die im Zuge der Bauantragsbewertung/-erstellung geprüft werden. Das Erreichen der Grenzwerte des QNG als Voraussetzung zum KFN ist bei einem Bungalow nur durch zusätzliche Maßnahmen (mehr Netto-Raumfläche = zusätzliches Geschoss und/oder Dachboden,
größere Photovoltaik-Anlage, ...) erreichbar. Hierzu ist im Vorfeld der Planung eine separate Beratung sowie zusätzlich die gemeinsame Festlegung der nachhaltigen Planungsziele erforderlich. Die Möglichkeit zur Erstellung der Ökobilanzierung durch STREIF muss separat je Bauvorhaben geprüft werden.
Die hohe Wertigkeit und Langlebigkeit eines STREIF-Energiespar-Hauses wird durch zahlreiche Auszeichnungen, Qualitäts- und Gütesiegel unabhängiger Institute und Verbände dokumentiert.
Der Angebotspreis ist inklusive Grundstück und bezieht sich auf die Standard-Ausbaustufe Fast-Fertig-Plus. Ihre Eigenleistungen: Spachtel-,Tapezier- und Malerarbeiten, Bodenbeläge, Innentüren.
Baunebenkosten fallen zuzüglich an.
Der Verkauf des Grundstücks erfolgt über einen unserer Netzwerkpartner.
Bilder können evtl. Anbauteile, Carports, Balkone, Gauben usw. zeigen, die nicht im Angebotspreis enthalten sind. Änderungen und Irrtümer vorbehalten.
STREIF Leistungen sind MEHR WERT - schon im Grundpreis enthalten!
- 20-monatige Festpreisgarantie
- KfW-Energieeffizienzhaus 40 im Standard*
- Inkl. individueller Grundrissgestaltung und Raumaufteilung
- Inkl. gedämmter Fundamentplatte
- Inkl. STREIF-Luft-Luft-Wärmepumpen-Technologie mit integrierter Lüftungsanlage mit Wärmerückgewinnung
- Inkl. Haustür von KERA und Fenster von Porta/Kömmerling
- Inkl. Sanitärobjekte von Markenherstellern
- Inkl. Elektroinstallation
- Inkl. Photovoltaikanlage 7,12 KWP
- Inkl. Batteriespeicher mit 7,70 KWH
- Inkl. Baubetreuung u.v.m.
* In Abhängigkeit von Gebäudestandort, Gebäudeausrichtung, Fensterflächenanteile usw. können zusätzliche oder abweichende Leistungen erforderlich werden, die im Zuge der Bauantragsbewertung/-erstellung geprüft werden. Das Erreichen der Grenzwerte des QNG als Voraussetzung zum KFN ist bei einem Bungalow nur durch zusätzliche Maßnahmen (mehr Netto-Raumfläche = zusätzliches Geschoss und/oder Dachboden,
größere Photovoltaik-Anlage, ...) erreichbar. Hierzu ist im Vorfeld der Planung eine separate Beratung sowie zusätzlich die gemeinsame Festlegung der nachhaltigen Planungsziele erforderlich. Die Möglichkeit zur Erstellung der Ökobilanzierung durch STREIF muss separat je Bauvorhaben geprüft werden.
Die hohe Wertigkeit und Langlebigkeit eines STREIF-Energiespar-Hauses wird durch zahlreiche Auszeichnungen, Qualitäts- und Gütesiegel unabhängiger Institute und Verbände dokumentiert.
Der Angebotspreis ist inklusive Grundstück und bezieht sich auf die Standard-Ausbaustufe Fast-Fertig-Plus. Ihre Eigenleistungen: Spachtel-,Tapezier- und Malerarbeiten, Bodenbeläge, Innentüren.
Baunebenkosten fallen zuzüglich an.
Der Verkauf des Grundstücks erfolgt über einen unserer Netzwerkpartner.
Bilder können evtl. Anbauteile, Carports, Balkone, Gauben usw. zeigen, die nicht im Angebotspreis enthalten sind. Änderungen und Irrtümer vorbehalten.
Lage des Objektes
Oberhausen-Rheinhausen ist die nordwestlichste Gemeinde im Landkreis Karlsruhe und besteht aus den beiden Ortsteilen Oberhausen und Rheinhausen.
Durch die Gemeinde führt die Bundesstraße B36 und gewährleistet eine schnelle Anbindung an die umliegenden Städte. Ein besonderes Merkmal ist die in den Sommermonaten wieder aufgenommene Fährverbindung zwischen Rheinhausen und Speyer, die sowohl für den Tourismus als auch für die Anbindung an die Metropolregion Speyer von Bedeutung ist.
In den örtlichen Kindergärten haben Kleinkinder die Möglichkeit, vielfältige und fördernde Aktivitäten wahrzunehmen. Schulanfänger und Jugendliche genießen ein ausgezeichnetes Schulangebot mit modernen Lerninhalten. Programme, Vorträge und Kurse für alle Altersklassen sorgen für ein harmonisches Miteinander und stärken das Gemeinschaftsgefühl.
Senioren haben allerlei Möglichkeiten abwechslungsreicher Freizeitgestaltung, ob zuhause oder als Bewohner des Seniorenhauses St. Klara. Im Vordergrund stehen dabei vor allem Geselligkeit und Erholung.
Die Gemeinde überzeugt darüber hinaus durch ein hervorragendes Sport- und Freizeitangebot. Zahlreiche Vereine bieten Sportmöglichkeiten in den verschiedensten Sparten. Sporthallen, Schwimmbäder und Sportanlagen bieten jedem sportlich Interessierten ein kameradschaftliches Umfeld. Musikvereine, Gesangvereine, Musikschule, Gemeindebibliothek und Postmuseum sorgen für das kulturelle Angebot. Abseits des Trubels lädt die ausgeprägte Naturlandschaft zur Erholung ein. Sie besticht vor allem durch eine beeindruckende Fauna und Flora sowie faszinierende Seeflächen.
Mit einer Vielzahl von Ärzten, Banken, Bäckereien, Metzgereien, Gaststätten und Großmärkten bietet die Gemeinde eine umfangreiche Abdeckung des alltäglichen Bedarfs. Die Infrastruktur sorgt für eine gute Anbindung an diese wichtigen Standorte.
Die rasante Entwicklung zu einem wirtschaftlich und regional interessanten Standort zog im Laufe der Jahre auch zahlreiche Unternehmen an, wodurch Oberhausen-Rheinhausen eine attraktive und weiterhin aufstrebende Gemeinde ist.
Durch die Gemeinde führt die Bundesstraße B36 und gewährleistet eine schnelle Anbindung an die umliegenden Städte. Ein besonderes Merkmal ist die in den Sommermonaten wieder aufgenommene Fährverbindung zwischen Rheinhausen und Speyer, die sowohl für den Tourismus als auch für die Anbindung an die Metropolregion Speyer von Bedeutung ist.
In den örtlichen Kindergärten haben Kleinkinder die Möglichkeit, vielfältige und fördernde Aktivitäten wahrzunehmen. Schulanfänger und Jugendliche genießen ein ausgezeichnetes Schulangebot mit modernen Lerninhalten. Programme, Vorträge und Kurse für alle Altersklassen sorgen für ein harmonisches Miteinander und stärken das Gemeinschaftsgefühl.
Senioren haben allerlei Möglichkeiten abwechslungsreicher Freizeitgestaltung, ob zuhause oder als Bewohner des Seniorenhauses St. Klara. Im Vordergrund stehen dabei vor allem Geselligkeit und Erholung.
Die Gemeinde überzeugt darüber hinaus durch ein hervorragendes Sport- und Freizeitangebot. Zahlreiche Vereine bieten Sportmöglichkeiten in den verschiedensten Sparten. Sporthallen, Schwimmbäder und Sportanlagen bieten jedem sportlich Interessierten ein kameradschaftliches Umfeld. Musikvereine, Gesangvereine, Musikschule, Gemeindebibliothek und Postmuseum sorgen für das kulturelle Angebot. Abseits des Trubels lädt die ausgeprägte Naturlandschaft zur Erholung ein. Sie besticht vor allem durch eine beeindruckende Fauna und Flora sowie faszinierende Seeflächen.
Mit einer Vielzahl von Ärzten, Banken, Bäckereien, Metzgereien, Gaststätten und Großmärkten bietet die Gemeinde eine umfangreiche Abdeckung des alltäglichen Bedarfs. Die Infrastruktur sorgt für eine gute Anbindung an diese wichtigen Standorte.
Die rasante Entwicklung zu einem wirtschaftlich und regional interessanten Standort zog im Laufe der Jahre auch zahlreiche Unternehmen an, wodurch Oberhausen-Rheinhausen eine attraktive und weiterhin aufstrebende Gemeinde ist.
Sonstige Informationen
Zur Realisierung des Bauvorhabens und zur Bezugsfertigkeit des Gebäudes kommen zzgl. noch Baunebenkosten und Fertigstellungskosten.