Exposé
Objektart:
Haus
» Stadthaus
» Kauf
Standort: Haus »
Deutschland » Rheinland-Pfalz » Bernkastel-Wittlich (Kreis) » Wittlich
Historisches Stadthaus in der Fußgängerzone - renoviert - mit Potential
Außenansicht
Das Wichtigste auf einen Blick:
| Objektnummer: | 9370236 |
Preise
| Kaufpreis | 285.000 € |
| Nebenkosten | keine Angabe |
Flächen
| Wohnfläche | 110 m² |
| Gesamtfläche | 170 m² |
| Grundstücksfläche | 85 m² |
| Maklerprovision | 3,57 % |
Objekt Adresse
54516 Wittlich
- Rheinland-Pfalz
Sonstige Angaben
| Baujahr | 1910 |
| Letzte Modernisierung | 2021 |
| Zimmer | 4 |
| Verfügbar ab | keine Angabe |
| Bad | 2 |
| Bad | 2 |
| Bad | Wanne, Fenster |
| Boden | Fliesen, Parkett, Laminat |
| Keller | Ja |
| Energieausweistyp | Bedarfsausweis |
| Ausstellungsdatum | 26. 03. 2025 |
| Gültig bis | 25.03.2035 |
| Energieeffizienzklasse | G |
| Endenergiebedarf | 246.2 kWh/(m²*a) |
| Heizungsart | Zentralheizung |
| Wesentlicher Energieträger | Gas |
| Energieträger/Befeuerung | Gas |
Objektbeschreibung
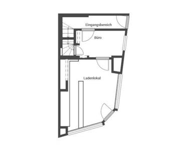
Dieses charmante Reiheneckhaus aus dem Jahr 1910, das 2021 umfassend renoviert wurde, befindet sich in einer erstklassigen Lage in der Fußgängerzone von Wittlich. Beim Betreten des Erdgeschosses gelangen Sie in die Diele mit Garderobe und dem Zugang zu dem vermieteten Ladenlokal, das eine jährliche Mieteinnahme von 7.200 Euro generiert. Dies bietet sowohl Kapitalanlegern als auch Eigennutzern interessante Möglichkeiten.
Über eine einladende Treppe erreichen Sie die erste Etage, die den Mittelpunkt des Wohnbereichs darstellt. Das Wohnzimmer lädt zum Verweilen ein. Angrenzend befindet sich die großzügig gestaltete Küche, die Platz für einen Tisch bietet und sich als Wohnküche eignet.
Der Aufgang innerhalb der Küche zur zweiten Etage führt Sie in den privaten Rückzugsbereich des Hauses. Hier finden Sie ein geräumiges Schlafzimmer. Das große Badezimmer mit Fenster und Badewanne bietet einen idealen Ort zum Entspannen nach einem langen Tag. Hier befindet sich auch der Anschluss für die Waschmaschine.
Eine Holztreppe führt weiter hinauf in das Dachgeschoss. Diese Ebene beherbergt zwei weitere Zimmer, die flexibel als Kinder-, Gästezimmer oder Büro genutzt werden können. Ein zusätzliches Duschbad mit Fenster sorgt hier für Funktionalität und Komfort.
Das Haus ist komplett unterkellert und bietet reichlich Stauraum für all Ihre Bedürfnisse. Die im Zuge der Renovierung erneuerte Heizungsanlage, die moderne Elektrik sowie die Bäder tragen zur Energieeffizienz bei. Zudem wurde eine dreifach verglaste Kunststofffensterfront installiert, die für eine angenehme Wohnatmosphäre sorgt.
Dieses Haus bietet mit seinen ca. 110 m² Wohnfläche und vier Zimmern eine ideale Kombination aus historischem Charme und modernem Wohnkomfort. Es eignet sich sowohl für Kapitalanleger als auch für Familien, die ein zentral gelegenes Zuhause mit Potenzial zur individuellen Gestaltung suchen. Eine weitere Nutzung wäre auch als Ferienwohnung möglich.
Bitte stellen Sie Ihre Anfrage schriftlich per Kontaktformular oder E-Mail. Wir laden Sie herzlich zu einer persönlichen Besichtigung ein und zeigen Ihnen gerne dieses Wohn- und Geschäftshaus vor Ort. Für weitere Informationen stehen wir Ihnen während unserer Geschäftszeiten zur Verfügung. Kontaktieren Sie uns gerne, um einen Besichtigungstermin zu vereinbaren oder weitere Unterlagen anzufordern. Sie erhalten automatisch unser INTERAKTIVES EXPOSÉ mit ZUSÄTZLICHEN FOTOS.
Wir freuen uns darauf, Ihnen dieses interessante Objekt vorstellen zu dürfen und stehen für alle Ihre Fragen bereit.
Über eine einladende Treppe erreichen Sie die erste Etage, die den Mittelpunkt des Wohnbereichs darstellt. Das Wohnzimmer lädt zum Verweilen ein. Angrenzend befindet sich die großzügig gestaltete Küche, die Platz für einen Tisch bietet und sich als Wohnküche eignet.
Der Aufgang innerhalb der Küche zur zweiten Etage führt Sie in den privaten Rückzugsbereich des Hauses. Hier finden Sie ein geräumiges Schlafzimmer. Das große Badezimmer mit Fenster und Badewanne bietet einen idealen Ort zum Entspannen nach einem langen Tag. Hier befindet sich auch der Anschluss für die Waschmaschine.
Eine Holztreppe führt weiter hinauf in das Dachgeschoss. Diese Ebene beherbergt zwei weitere Zimmer, die flexibel als Kinder-, Gästezimmer oder Büro genutzt werden können. Ein zusätzliches Duschbad mit Fenster sorgt hier für Funktionalität und Komfort.
Das Haus ist komplett unterkellert und bietet reichlich Stauraum für all Ihre Bedürfnisse. Die im Zuge der Renovierung erneuerte Heizungsanlage, die moderne Elektrik sowie die Bäder tragen zur Energieeffizienz bei. Zudem wurde eine dreifach verglaste Kunststofffensterfront installiert, die für eine angenehme Wohnatmosphäre sorgt.
Dieses Haus bietet mit seinen ca. 110 m² Wohnfläche und vier Zimmern eine ideale Kombination aus historischem Charme und modernem Wohnkomfort. Es eignet sich sowohl für Kapitalanleger als auch für Familien, die ein zentral gelegenes Zuhause mit Potenzial zur individuellen Gestaltung suchen. Eine weitere Nutzung wäre auch als Ferienwohnung möglich.
Bitte stellen Sie Ihre Anfrage schriftlich per Kontaktformular oder E-Mail. Wir laden Sie herzlich zu einer persönlichen Besichtigung ein und zeigen Ihnen gerne dieses Wohn- und Geschäftshaus vor Ort. Für weitere Informationen stehen wir Ihnen während unserer Geschäftszeiten zur Verfügung. Kontaktieren Sie uns gerne, um einen Besichtigungstermin zu vereinbaren oder weitere Unterlagen anzufordern. Sie erhalten automatisch unser INTERAKTIVES EXPOSÉ mit ZUSÄTZLICHEN FOTOS.
Wir freuen uns darauf, Ihnen dieses interessante Objekt vorstellen zu dürfen und stehen für alle Ihre Fragen bereit.
Ausstattung
- Wohnfläche: ca. 110 qm
- Anzahl der Zimmer: 4, zzgl. Wohnküche, 2 Bäder
- Ladenlokal mit Nebenraum und Toilette
- Baujahr: 1910, renoviert 2021
- Energieeffizienzklasse: G
- Nutzungsart: Wohnen und Einzelhandel
- Keller vorhanden, voll unterkellert
- Holztreppen
- Böden: Fliesen, Laminat, Holz
- Anzahl der Zimmer: 4, zzgl. Wohnküche, 2 Bäder
- Ladenlokal mit Nebenraum und Toilette
- Baujahr: 1910, renoviert 2021
- Energieeffizienzklasse: G
- Nutzungsart: Wohnen und Einzelhandel
- Keller vorhanden, voll unterkellert
- Holztreppen
- Böden: Fliesen, Laminat, Holz
Lage des Objektes
Die Immobilie in der Fußgängerzone von Wittlich bietet eine hervorragende Lage mit einer Vielzahl von Annehmlichkeiten in unmittelbarer Nähe. In nur wenigen Gehminuten erreichen Sie den zentralen Busbahnhof, der eine optimale Anbindung an den öffentlichen Nahverkehr gewährleistet. Für den täglichen Bedarf stehen mehrere Supermärkte, darunter ein Lidl und ein NORMA, in der Umgebung zur Verfügung.
Familien mit Kindern profitieren von der Nähe zu mehreren Kindergärten und Schulen, die alle innerhalb eines kurzen Spaziergangs erreichbar sind. Für die Freizeitgestaltung bieten sich der Stadtpark Wittlich und mehrere Spielplätze an, die ebenfalls fußläufig erreichbar sind.
Die Gesundheitsversorgung ist durch nahegelegene Arztpraxen und Zahnärzte gesichert. Sportbegeisterte finden in der Umgebung verschiedene Sportstätten und ein Therapie- und Trainingszentrum.
Für kulinarische Genüsse sorgen diverse Restaurants in der Nähe. Die zentrale Lage der Immobilie ermöglicht es, alle wichtigen Einrichtungen und Freizeitmöglichkeiten schnell und bequem zu erreichen, was sie zu einem idealen Wohnort für Familien und Berufstätige oder Urlaubern macht.
weitere Informationen unter: https://www.wittlich.de/de/
Familien mit Kindern profitieren von der Nähe zu mehreren Kindergärten und Schulen, die alle innerhalb eines kurzen Spaziergangs erreichbar sind. Für die Freizeitgestaltung bieten sich der Stadtpark Wittlich und mehrere Spielplätze an, die ebenfalls fußläufig erreichbar sind.
Die Gesundheitsversorgung ist durch nahegelegene Arztpraxen und Zahnärzte gesichert. Sportbegeisterte finden in der Umgebung verschiedene Sportstätten und ein Therapie- und Trainingszentrum.
Für kulinarische Genüsse sorgen diverse Restaurants in der Nähe. Die zentrale Lage der Immobilie ermöglicht es, alle wichtigen Einrichtungen und Freizeitmöglichkeiten schnell und bequem zu erreichen, was sie zu einem idealen Wohnort für Familien und Berufstätige oder Urlaubern macht.
weitere Informationen unter: https://www.wittlich.de/de/
Sonstige Informationen
Für einen Besichtigungstermin bitten wir um Kontaktaufnahme per E-Mail: Geben Sie bitte immer die vollständige Adresse und Rufnummer an - vielen Dank!
Die Objektbeschreibung beruht des Eigentümers. Für die Richtigkeit oder Vollständigkeit übernimmt FALC Immobilien Trier keine Gewähr.
Möchten auch Sie Ihre Immobilie verkaufen oder vermieten? Benötigen Sie eine Wertanalyse? Mein Angebot für sie, ist ein lückenloser Rundum-Service. Kontaktieren Sie mich gerne: FALC Immobilien Trier, Jörg Holstein, +49 651 99 83 282
Außenansicht
Außenansicht
Eingang
Diele EG
Aufgang 1. OG
Wohnzimmer 1. OG
Küche (KI-generiert)
Aufgang 2. OG
Schlafzimmer I
Badezimmer 2. OG
Aufgang 3. OG
Treppe 3. OG
Ladenlokal EG
FALC Immobilien Trier
Keller
Erdgeschoss
1. Etage
2. Etage
3. Etage