Exposé
Objektart:
Büro / Praxen
» Bueroflaeche
» Miete
Standort: Büro / Praxen »
Deutschland » Hamburg » Hamburg, Freie und Hansestadt (Kreis) » Hamburg
Attraktive -Büro-/ Praxisfläche in Harvestehude
Gebäude Außenansicht
Das Wichtigste auf einen Blick:
| Objektnummer: | 9369617 |
Preise
| Kaltmiete (netto) | 950 € |
| Nebenkosten | 95 € |
| Kaution | 2.850 € |
Flächen
| Gesamtfläche | 40 m² |
| Bürofläche | 40 m² |
| Maklerprovision | keine Provision, courtagefrei |
Objekt Adresse
Hansastraße 16
20149 Hamburg
- Hamburg
Sonstige Angaben
| Baujahr | 1956 |
| Verfügbar ab | 01.01.2026 |
| Inserat befindet sich im Stockwerk | 0 |
| Küche | Einbauküche |
| Boden | Fliesen, Parkett |
| Garten | Ja |
| Heizungsart | Zentralheizung |
| Energieträger/Befeuerung | Fernwärme |
Objektbeschreibung
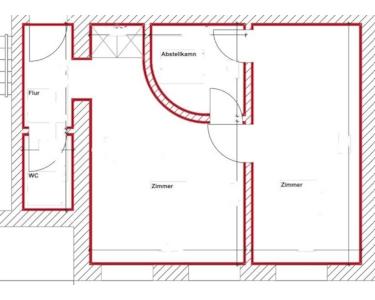
Die attraktive und freundliche 2 Zimmer Praxis- / Bürofläche befindet sich im EG eines im Jahr 1958 errichteten Mehrfamilienhauses mit Fahrstuhl in Hamburg Harvestehude. Die Fläche mit ihrem gelungenen Grundriss sowie das zeitgemäß grau geflieste WC in sehr begehrter Wohnlage. Der rückwärtige Gemeinschaftsgarten lädt zur Erholung im Freien ein.
Hervorzuheben ist die geräumige Abstellraum, der als Zwischenraum vielseitig genutzt werden kann.
Am besten Sie besichtigen die Fläche persönlich, um sich einen Eindruck zu verschaffen.
Hervorzuheben ist die geräumige Abstellraum, der als Zwischenraum vielseitig genutzt werden kann.
Am besten Sie besichtigen die Fläche persönlich, um sich einen Eindruck zu verschaffen.
Ausstattung
Garten, Einbauküche, Gäste-WC, Parkett, Fliesen
Lage des Objektes
Die Hansastraße ist eine gewachsene Straße zwischen der Rothenbaumchaussee und Hochallee. Harvestehude der Stadtteil, zählt zu den gefragtesten Lagen der Hansestadt.
Die Außenalster erreichen Sie fußläufig in nur wenigen Minuten. Die U-Bahn Station "Hallerstraße" erreichen Sie in ca. 2 Minuten zu Fuß. Dort befinden sich auch gastronomische Betriebe.
Am Mittelweg findet sich ein noch größeres Angebot an Freizeitaktivitäten und Einkaufsmöglichkeiten. Ebenfalls fußläufig in wenigen Minuten erreichbar, befindet sich das Grindel-Viertel. Hier sind verschiedenste Cafés und Restaurants zuhause, sowie das Abaton Kino, das durch Filme in Originalsprache bekannt wurde. Mit der Bahn ist die Innenstadt in Kürze erreichbar. Bis zum Stephansplatz ist es mit der U1 ab Hallerstraße eine Station und die nächste ist schon der Jungfernstieg.
Nördlich befindet sich der Eppendorfer Baum, diese Straße lädt zu kleinen Shopping-Ausflügen ein. Mit der U-Bahn (Haltestelle Hallerstraße direkt gegenüber) erreichen Sie die City (Jungfernstieg) alle 2-4 Minuten innerhalb von 5 Minuten.
Infrastruktur (im Umkreis von 5 km):
Apotheke, Lebensmittel-Discount, Allgemeinmediziner, Kindergarten, Realschule, Gymnasium, Gesamtschule, Öffentliche Verkehrsmittel
Die Außenalster erreichen Sie fußläufig in nur wenigen Minuten. Die U-Bahn Station "Hallerstraße" erreichen Sie in ca. 2 Minuten zu Fuß. Dort befinden sich auch gastronomische Betriebe.
Am Mittelweg findet sich ein noch größeres Angebot an Freizeitaktivitäten und Einkaufsmöglichkeiten. Ebenfalls fußläufig in wenigen Minuten erreichbar, befindet sich das Grindel-Viertel. Hier sind verschiedenste Cafés und Restaurants zuhause, sowie das Abaton Kino, das durch Filme in Originalsprache bekannt wurde. Mit der Bahn ist die Innenstadt in Kürze erreichbar. Bis zum Stephansplatz ist es mit der U1 ab Hallerstraße eine Station und die nächste ist schon der Jungfernstieg.
Nördlich befindet sich der Eppendorfer Baum, diese Straße lädt zu kleinen Shopping-Ausflügen ein. Mit der U-Bahn (Haltestelle Hallerstraße direkt gegenüber) erreichen Sie die City (Jungfernstieg) alle 2-4 Minuten innerhalb von 5 Minuten.
Infrastruktur (im Umkreis von 5 km):
Apotheke, Lebensmittel-Discount, Allgemeinmediziner, Kindergarten, Realschule, Gymnasium, Gesamtschule, Öffentliche Verkehrsmittel
Sonstige Informationen
Heizungsart: Zentralheizung
Energieträger: Fernwärme
Hamburger Mietvertrag mit Indexmiete
2 Jahre Kündigungsausschluss
Bitte schreiben Sie ein paar Zeilen in der Kontaktaufnahme zu sich persönlich, sodass es uns möglich ist, Sie für einen Besichtigungstermin zu berücksichtigen. Vielen herzlichen Dank!
ohne-makler (OM) ist weder Anbieter noch Vermittler der Immobilie. OM betreibt eine Plattform für Immobilieneigentümer, die unter anderem die gleichzeitige Veröffentlichung einzelner Inserate auf mehreren Immobilienportalen ermöglicht. Die Inhalte dieser Inserate werden ausschließlich von Dritten verantwortet. Für die Richtigkeit, Vollständigkeit oder Rechtmäßigkeit der Angaben übernimmt OM keine Haftung. Hinweise auf mögliche Rechtsverstöße können jederzeit gemeldet werden und werden nach Prüfung umgehend bearbeitet.
Sicht Hansastraße
WC
Zimmer
Zimmer
Grundriss