Exposé
Objektart:
Einzelhandel
» Ladenlokal
» Miete
Standort: Einzelhandel »
Deutschland » Berlin » Berlin, Stadt (Kreis) » berlin
Vielseitige Gewerbefläche mit großer Schaufensterfront in Kreuzberg
Raum1
Das Wichtigste auf einen Blick:
| Objektnummer: | 9369457 |
Preise
| Kaltmiete (netto) | 2.875 € |
| Nebenkosten | 180 € |
Flächen
| Gesamtfläche | 115 m² |
| Maklerprovision | keine Provision, courtagefrei |
Objekt Adresse
10997 berlin
- Berlin
Sonstige Angaben
| Verfügbar ab | 01.01.2026 |
| Inserat befindet sich im Stockwerk | 0 |
| Bad | Dusche |
| Boden | Fliesen, Parkett |
| Keller | Ja |
| Heizungsart | Etagenheizung |
Objektbeschreibung
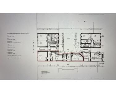
Diese Gewerbefläche im Erdgeschoss eines Altbaus bietet Ihnen auf 115 m² zahlreiche Möglichkeiten zur Umsetzung Ihrer Geschäftsidee oder kreativen Initiative.
Die Fläche eignet sich ideal für folgende gewerbliche Nutzungsarten: Atelier, Studio, Tattoo-/Beauty-Studio, Fotostudio, Büro, Praxis (Therapie/Beratung/Agentur), Seminarraum, Beratungsstelle, Workshop, Showroom, Einzelhandel (Design-Shop, Buchladen, Concept Store), Dienstleistungsunternehmen, Sprachschule, Coworking oder Yoga-/Pilatesstudio.
Kita und Tagespflege sind mit Genehmigung möglich.
Die breite Fensterfront sorgt für optimale Sichtbarkeit und viel Tageslicht. Der flexible Grundriss und die offene Raumstruktur erlauben vielseitige Nutzungskonzepte. Das Haus ist von einer ruhigen Hausgemeinschaft bewohnt und verfügt über zwei wunderschöne, grüne Innenhöfe.
Wichtiger Hinweis: Die Fläche eignet sich bevorzugt für ruhige Gewerbebetriebe, die sich harmonisch in die Hausgemeinschaft und das kreative, urbane Flair des Kreuzberger Quartiers integrieren. Gastronomische oder laute Nutzungen sind ausgeschlossen.
Besonderheiten:
- Kein Gastronomiebetrieb, keine Beherbergung, keine Wohnnutzung
- Nutzung vorbehaltlich behördlicher Genehmigung
Die Fläche eignet sich ideal für folgende gewerbliche Nutzungsarten: Atelier, Studio, Tattoo-/Beauty-Studio, Fotostudio, Büro, Praxis (Therapie/Beratung/Agentur), Seminarraum, Beratungsstelle, Workshop, Showroom, Einzelhandel (Design-Shop, Buchladen, Concept Store), Dienstleistungsunternehmen, Sprachschule, Coworking oder Yoga-/Pilatesstudio.
Kita und Tagespflege sind mit Genehmigung möglich.
Die breite Fensterfront sorgt für optimale Sichtbarkeit und viel Tageslicht. Der flexible Grundriss und die offene Raumstruktur erlauben vielseitige Nutzungskonzepte. Das Haus ist von einer ruhigen Hausgemeinschaft bewohnt und verfügt über zwei wunderschöne, grüne Innenhöfe.
Wichtiger Hinweis: Die Fläche eignet sich bevorzugt für ruhige Gewerbebetriebe, die sich harmonisch in die Hausgemeinschaft und das kreative, urbane Flair des Kreuzberger Quartiers integrieren. Gastronomische oder laute Nutzungen sind ausgeschlossen.
Besonderheiten:
- Kein Gastronomiebetrieb, keine Beherbergung, keine Wohnnutzung
- Nutzung vorbehaltlich behördlicher Genehmigung
Ausstattung
Keller, Duschbad, Gäste-WC, Parkett, Fliesen
Bemerkungen:
- 3 separate Eingänge (Straße, Hausflur, Innenhof)
- Großzügige Fensterfront
- 2 Räume mit Gas- und Wasseranschluss (ideal für Küche)
- Komplettes Bad mit Badewanne, separates Gäste-WC
- Keller verfügbar
- Gasetagenheizung (autonom)
Aktuell als Atelier mit Tattoo-Studio genutzt; auf Wunsch kann Inventar (Beleuchtung, Möbel usw.) übernommen werden, ist aber nicht verpflichtend. Zusätzlich ist die Komplettübernahme des bestehenden Tattoo-Studios möglich!
Bemerkungen:
- 3 separate Eingänge (Straße, Hausflur, Innenhof)
- Großzügige Fensterfront
- 2 Räume mit Gas- und Wasseranschluss (ideal für Küche)
- Komplettes Bad mit Badewanne, separates Gäste-WC
- Keller verfügbar
- Gasetagenheizung (autonom)
Aktuell als Atelier mit Tattoo-Studio genutzt; auf Wunsch kann Inventar (Beleuchtung, Möbel usw.) übernommen werden, ist aber nicht verpflichtend. Zusätzlich ist die Komplettübernahme des bestehenden Tattoo-Studios möglich!
Lage des Objektes
Zentrale Lage im beliebten Wrangelkiez/Kreuzberg! Die Lübbener Straße liegt in einer ruhigen Seitenstraße nah an Spree, Görlitzer Park und belebten Szenestraßen. Zahlreiche Cafés, Restaurants, Bars und kleine Läden prägen das kreative Kiezleben. U-Bahn (Görlitzer Bahnhof, Schlesisches Tor) sowie Busverbindungen sind in wenigen Minuten erreichbar. Perfekte Infrastruktur für urbanes Business, Kultur und Alltag – international, vielseitig, urban und grün.
Sonstige Informationen
Heizungsart: Etagenheizung
Energieausweis nicht vorhanden
Makleranfragen nicht erwünscht. Nach § 7 UWG sind unaufgeforderte Kontaktaufnahmen durch Makler ohne ausdrückliche Einwilligung des Empfängers verboten!
ohne-makler (OM) ist weder Anbieter noch Vermittler der Immobilie. OM betreibt eine Plattform für Immobilieneigentümer, die unter anderem die gleichzeitige Veröffentlichung einzelner Inserate auf mehreren Immobilienportalen ermöglicht. Die Inhalte dieser Inserate werden ausschließlich von Dritten verantwortet. Für die Richtigkeit, Vollständigkeit oder Rechtmäßigkeit der Angaben übernimmt OM keine Haftung. Hinweise auf mögliche Rechtsverstöße können jederzeit gemeldet werden und werden nach Prüfung umgehend bearbeitet.
Raum 1
Raum 1
Raum1
Gästetoilette
Raum 2
Raum 2
Raum 2
Raum 2
Raum 3
Raum 3
Raum 3
Gemeinschaftlicher Innenhof