Exposé
Objektart:
Haus
» Resthof
» Kauf
Standort: Haus »
Deutschland » Niedersachsen » Göttingen (Kreis) » Hann. Münden
Provisionsfrei - Einzigartiger Vierseithof an der Weser
Backhaus
Das Wichtigste auf einen Blick:
| Objektnummer: | 9366170 |
Preise
| Kaufpreis | 300.000 € |
| Nebenkosten | keine Angabe |
Flächen
| Wohnfläche | 240 m² |
| Grundstücksfläche | 1.700 m² |
| Maklerprovision | keine Provision, courtagefrei |
Objekt Adresse
Flößerweg 20
34346 Hann. Münden
- Niedersachsen
Sonstige Angaben
| Baujahr | 1571 |
| Zimmer | 9 |
| Verfügbar ab | sofort |
| Anzahl der Etagen im Haus | 2 |
| Küche | Einbauküche |
| Boden | Parkett |
| Garten | Ja |
| Heizungsart | Ofen |
| Energieträger/Befeuerung | Pellet |
Objektbeschreibung
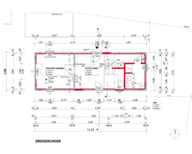
1. Ehemaliges Backhaus (um 1900)
•Komplettsanierung zum KfW-Effizienzhaus Denkmal mit Holzfaser- und Hanfdämmung sowie Lehmputz
•40 m² Grundfläche, teilunterkellert, Spitzboden als Schlafzimmer
•Erdgeschoss: Eiche-Massivdielenboden, Einbauküche, Bad mit Armaturen von Gessi, Fußleisten, Kellerklappe, Innentür zum Bad noch offen
•Heizung: Pelletofen; Warmwasser: Durchlauferhitzer
•Komplett neue Elektroinstallation mit eigener Unterverteilung
•Handgemalter Fliesenspiegel in Küche, Neue EBK mit Backofen, Induktionsfeld und Kühlschrank
2. Wohnhaus (1571)
•Ältestes Wohngebäude im Landkreis außerhalb der Städte
•100 m² Grundfläche, teilunterkellert
•detaillierte Bestandspläne, dendrochronologische und bauhistorische Gutachten liegen vor
•Aktueller Zustand: stromlos (Hauptanschluss in Scheune verlegt), stark sanierungsbedürftig, aber mit vollständiger Entwurfsplanung und bereits genehmigtem denkmalrechtlichem Konzept
•Gut sanierbar, da praktisch keine "Bausünden" begangen wurden
3. Scheune
•Spätes 19. Jh.,
•Große, offene Tenne für trockene Lagerung und Werkstattbetrieb
•Neue Gebündelte Stromversorgung und Zählerplatz für alle Hofgebäude
4. „Gänsestall“
•Schmaler, zweigeschossiger Lagerraum (2 × 10 m)
•Perfekt für trockene Lagerraum von Baumaterial etc.
•Komplettsanierung zum KfW-Effizienzhaus Denkmal mit Holzfaser- und Hanfdämmung sowie Lehmputz
•40 m² Grundfläche, teilunterkellert, Spitzboden als Schlafzimmer
•Erdgeschoss: Eiche-Massivdielenboden, Einbauküche, Bad mit Armaturen von Gessi, Fußleisten, Kellerklappe, Innentür zum Bad noch offen
•Heizung: Pelletofen; Warmwasser: Durchlauferhitzer
•Komplett neue Elektroinstallation mit eigener Unterverteilung
•Handgemalter Fliesenspiegel in Küche, Neue EBK mit Backofen, Induktionsfeld und Kühlschrank
2. Wohnhaus (1571)
•Ältestes Wohngebäude im Landkreis außerhalb der Städte
•100 m² Grundfläche, teilunterkellert
•detaillierte Bestandspläne, dendrochronologische und bauhistorische Gutachten liegen vor
•Aktueller Zustand: stromlos (Hauptanschluss in Scheune verlegt), stark sanierungsbedürftig, aber mit vollständiger Entwurfsplanung und bereits genehmigtem denkmalrechtlichem Konzept
•Gut sanierbar, da praktisch keine "Bausünden" begangen wurden
3. Scheune
•Spätes 19. Jh.,
•Große, offene Tenne für trockene Lagerung und Werkstattbetrieb
•Neue Gebündelte Stromversorgung und Zählerplatz für alle Hofgebäude
4. „Gänsestall“
•Schmaler, zweigeschossiger Lagerraum (2 × 10 m)
•Perfekt für trockene Lagerraum von Baumaterial etc.
Ausstattung
Garten, Einbauküche, Kamin, Parkett
Lage des Objektes
Der historische Vierseithof liegt am ruhigen Ortsrand, nur hundert Meter von der Weser entfernt, mit unverbaubarem Blick auf den Reinhardswald. Das weitläufige Anwesen umfasst ca. 1.700 m² Bauland plus zwei Wiesenparzellen (600 m² Obstwiese direkt gegenüber, 1.200 m² Wiese 500 m entfernt, derzeit verpachtet).
Infrastruktur (im Umkreis von 5 km):
Lebensmittel-Discount
Infrastruktur (im Umkreis von 5 km):
Lebensmittel-Discount
Sonstige Informationen
Heizungsart: Ofenheizung
Energieträger: Holzpellets
Makleranfragen nicht erwünscht. Nach § 7 UWG sind unaufgeforderte Kontaktaufnahmen durch Makler ohne ausdrückliche Einwilligung des Empfängers verboten!
ohne-makler (OM) ist weder Anbieter noch Vermittler der Immobilie. OM betreibt eine Plattform für Immobilieneigentümer, die unter anderem die gleichzeitige Veröffentlichung einzelner Inserate auf mehreren Immobilienportalen ermöglicht. Die Inhalte dieser Inserate werden ausschließlich von Dritten verantwortet. Für die Richtigkeit, Vollständigkeit oder Rechtmäßigkeit der Angaben übernimmt OM keine Haftung. Hinweise auf mögliche Rechtsverstöße können jederzeit gemeldet werden und werden nach Prüfung umgehend bearbeitet.
Backhaus Front
Blick durch Garten zu Scheune
Hinterer Garten
Blick in den Hof
Blick vom hinteren Garten in H
Scheune Front
Blick aus Garten in Hof
Blick auf Wohnhaus vom Straße
Halle im Wohnhaus
Backhaus Küche
Backhaus Bad
Backhaus Dusche
Backhaus - Wohnraum
Blick in Vordergarten
Wiese vor dem Grundstück
Backhaus Erdgeschoss
Backhaus Schnitte
Wohnhaus Ansicht Nord-Ost
Wohnhaus Ansicht Süd West
Wohnhaus Erdgeschoss
Wohnhaus Obergeschoss
Wohnhaus Keller
Wohnhaus Dachgeschoss
Wohnhaus Schnitte A, B
Wohnhaus Schnitte C,D