Exposé
Objektart:
Wohnung
» Etage
» Miete
Standort: Wohnung »
Deutschland » Brandenburg » Oder-Spree (Kreis) » Rauen
2 Zimmer Wohnung mit Stellplatz - frei ab Februar 2026
Zimmer 1
Das Wichtigste auf einen Blick:
| Objektnummer: | 9365782 |
Preise
| Kaltmiete (netto) | 510 € |
| Nebenkosten | 220 € |
| Heizkosten enthalten | Ja |
Flächen
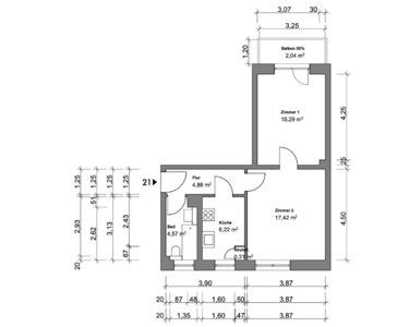
| Wohnfläche | 51 m² |
Objekt Adresse
Kiesweg 15
15518 Rauen
- Brandenburg
Sonstige Angaben
| Baujahr | 1965 |
| Zimmer | 2 |
| Verfügbar ab | 01.02.2026 |
| Bad | 1 |
| Inserat befindet sich im Stockwerk | 2 |
| Bad | 1 |
| Bad | Dusche |
| Balkone | 1 |
| Terrassen | 0 |
| Keller | Ja |
| Energieausweistyp | Verbrauch |
| Energieeffizienzklasse | C |
| Energieverbrauchkennwert | 84 kWh/(m²*a) |
| Heizungsart | Zentralheizung |
| Energieträger/Befeuerung | Gas |
Objektbeschreibung
Diese 2-Raumwohnung mit 51 Quadratmetern Wohnfläche und einem Balkon wird zum 01.02.2026 bezugsfrei.
Die Fotos sind größtenteils von den aktuellen Mietern bereitgestellt - daher sind Einrichtungsgegenstände/Möbel auf den Fotos zu sehen. Die Wohnung wird jedoch leer vermietet. Es ist keine Einbauküche vorhanden.
Zur Wohnung gehört ein Kellerraum und ein Stellplatz.
Kosten:
Kaltmiete Wohnung: 510 Euro
Miete Stellplatz: 50 Euro
Vorauszahlung Nebenkosten: 220 Euro
Gesamt Warmmiete: 780 Euro
Die Übergabe der Wohnung kann am 31.01.2026 erfolgen.
Es wird eine Staffelung in 5 Schritten vereinbart (+10 Euro alle zwei Jahre; insgesamt 5x; nach 10 Jahren liegt die Kaltmiete damit 50 Euro höher).
Wenn Sie Interesse an dieser Wohnung haben, melden Sie sich bitte schriftlich.
Ich würde mich freuen, wenn Sie zwei, drei Zeilen zu sich schreiben könnten, damit ich mir ein (erstes) Bild von Ihnen machen kann. Mich erreichen leider viele Nachrichten, die keinerlei Informationen über die Interessenten enthalten.
Folgende Unterlagen sollten für eine Vermietung an Sie vorliegen:
•Ausweisdokument(e)
•die 3 letzten Einkommensnachweise
•Mietschuldenfreiheitsbestätigung des Vormieters
•Schufa oder anderer Bonitätsnachweis
Die Fotos sind größtenteils von den aktuellen Mietern bereitgestellt - daher sind Einrichtungsgegenstände/Möbel auf den Fotos zu sehen. Die Wohnung wird jedoch leer vermietet. Es ist keine Einbauküche vorhanden.
Zur Wohnung gehört ein Kellerraum und ein Stellplatz.
Kosten:
Kaltmiete Wohnung: 510 Euro
Miete Stellplatz: 50 Euro
Vorauszahlung Nebenkosten: 220 Euro
Gesamt Warmmiete: 780 Euro
Die Übergabe der Wohnung kann am 31.01.2026 erfolgen.
Es wird eine Staffelung in 5 Schritten vereinbart (+10 Euro alle zwei Jahre; insgesamt 5x; nach 10 Jahren liegt die Kaltmiete damit 50 Euro höher).
Wenn Sie Interesse an dieser Wohnung haben, melden Sie sich bitte schriftlich.
Ich würde mich freuen, wenn Sie zwei, drei Zeilen zu sich schreiben könnten, damit ich mir ein (erstes) Bild von Ihnen machen kann. Mich erreichen leider viele Nachrichten, die keinerlei Informationen über die Interessenten enthalten.
Folgende Unterlagen sollten für eine Vermietung an Sie vorliegen:
•Ausweisdokument(e)
•die 3 letzten Einkommensnachweise
•Mietschuldenfreiheitsbestätigung des Vormieters
•Schufa oder anderer Bonitätsnachweis
Ausstattung
Balkon, Keller, Duschbad
Lage des Objektes
Die Wohnung liegt in Rauen, 10-15 Autominuten von Fürstenwalde entfernt. Vor der Tür findet sich ein großer Wald, welcher zu herrlichen Waldspaziergängen einlädt und Ruhe und Entspannung verspricht.
Sonstige Informationen
Heizungsart: Zentralheizung
Energieträger: Gas
Makleranfragen nicht erwünscht. Nach § 7 UWG sind unaufgeforderte Kontaktaufnahmen durch Makler ohne ausdrückliche Einwilligung des Empfängers verboten!
ohne-makler (OM) ist weder Anbieter noch Vermittler der Immobilie. OM betreibt eine Plattform für Immobilieneigentümer, die unter anderem die gleichzeitige Veröffentlichung einzelner Inserate auf mehreren Immobilienportalen ermöglicht. Die Inhalte dieser Inserate werden ausschließlich von Dritten verantwortet. Für die Richtigkeit, Vollständigkeit oder Rechtmäßigkeit der Angaben übernimmt OM keine Haftung. Hinweise auf mögliche Rechtsverstöße können jederzeit gemeldet werden und werden nach Prüfung umgehend bearbeitet.
Außenansicht
Flur
Bad
Grundriss
Balkon 1
Balkon 2
Zimmer 2
Küche