Exposé
Objektart:
Wohnung
» Etage
» Kauf
Standort: Wohnung »
Deutschland » Hessen » Darmstadt, Wissenschaftsstadt (Kreis) » Darmstadt
Kapitalanlage TOP! DA- Johannesviertel !!! Zwei Wohnungen - ganze Etage 151 m² - 6 Zimmer !!!
Ausblick vom Balkon WE rechts
Das Wichtigste auf einen Blick:
| Objektnummer: | 9365767 |
Preise
| Kaufpreis | 569.000 € |
| Nebenkosten | keine Angabe |
Flächen
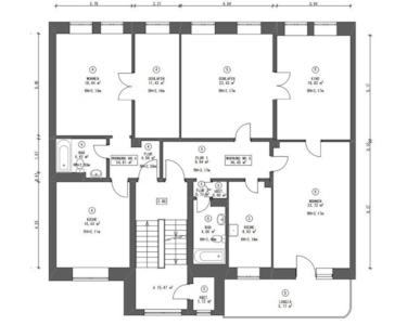
| Wohnfläche | 151,3 m² |
| Maklerprovision | keine Provision, courtagefrei |
Objekt Adresse
Wilhelm-Leuschner-Str., 40
64293 Darmstadt
- Hessen
Sonstige Angaben
| Baujahr | 1900 |
| Zimmer | 6 |
| Verfügbar ab | nach Absprache |
| Bad | 2 |
| Anzahl der Etagen im Haus | 4 |
| Inserat befindet sich im Stockwerk | 2 |
| Bad | 2 |
| Balkone | 1 |
| Terrassen | 0 |
| Keller | Ja |
| Heizungsart | Etagenheizung |
| Energieträger/Befeuerung | Gas |
Objektbeschreibung
+ Beide Wohnungen sind aktuell vermietet
+ Zwei in sich abgeschlossene Wohnungen auf einer Etage.
+ Wohnungen können zu einer Wohnung zusammengelegt werden
+ eine Wohnung 54,8 m² und die andere 96,50 m²
+ Balkon
+ zwei Bäder
+ bei Zusammenlegung kann eine Küche als normales Zimmer genutzt werden
+ Stil-Fassade (Straßenseite) Denkmalschutz
+ Haus mit nur 7 Wohnungen
+ es können auch weitere Wohnungen im Haus oder Seitenbau gekauft werden
+ zwei Kellerräume
+ Es können auch Garagen auf dem Grundstück gekauft werden
+ Zwei in sich abgeschlossene Wohnungen auf einer Etage.
+ Wohnungen können zu einer Wohnung zusammengelegt werden
+ eine Wohnung 54,8 m² und die andere 96,50 m²
+ Balkon
+ zwei Bäder
+ bei Zusammenlegung kann eine Küche als normales Zimmer genutzt werden
+ Stil-Fassade (Straßenseite) Denkmalschutz
+ Haus mit nur 7 Wohnungen
+ es können auch weitere Wohnungen im Haus oder Seitenbau gekauft werden
+ zwei Kellerräume
+ Es können auch Garagen auf dem Grundstück gekauft werden
Ausstattung
Balkon, Keller
Lage des Objektes
Gesuchte Lage von Darmstadt - Johannesviertel
Sonstige Informationen
Heizungsart: Etagenheizung
Energieträger: Gas
+ Durch entfernen einer Wand im Flur, können beide Wohnungen zu einer großen zusammengelegt werden!
Makleranfragen nicht erwünscht. Nach § 7 UWG sind unaufgeforderte Kontaktaufnahmen durch Makler ohne ausdrückliche Einwilligung des Empfängers verboten!
ohne-makler (OM) ist weder Anbieter noch Vermittler der Immobilie. OM betreibt eine Plattform für Immobilieneigentümer, die unter anderem die gleichzeitige Veröffentlichung einzelner Inserate auf mehreren Immobilienportalen ermöglicht. Die Inhalte dieser Inserate werden ausschließlich von Dritten verantwortet. Für die Richtigkeit, Vollständigkeit oder Rechtmäßigkeit der Angaben übernimmt OM keine Haftung. Hinweise auf mögliche Rechtsverstöße können jederzeit gemeldet werden und werden nach Prüfung umgehend bearbeitet.
Ansicht von oben
Balkon WE rechts
Zimmer WE rechts
Stadtteil
andere Ansicht Zi. WE rechts
Zimmer WE rechts
Zimmer WE rechts
Bad WE rechts
Küche WE rechts
Küche WE rechts -Bild2
Ansicht von oben Stadtteil
Küche WE links
Küche WE links - Bild 2
Zimmer WE links
Bad WE links
Zimmer WE links
Zimmer WE links -Bild2
Straßenansicht
Beide WE Einzelgrundrisse