Exposé
Objektart:
Haus
» Landhaus
» Kauf
Standort: Haus »
Deutschland » Bayern » Fürstenfeldbruck (Kreis) » Egenhofen
Einmalig u. prov.frei ! Wohn-/lifestyle Anwesen, 3 WE, ca. 480m² Wfl., 800m² Lagerfl., 7 ha Grund
Das Anwesen - Vogelperspektive
Das Wichtigste auf einen Blick:
| Objektnummer: | 9365649 |
Preise
| Kaufpreis | 2.650.000 € |
| Nebenkosten | keine Angabe |
Flächen
| Wohnfläche | 480 m² |
| Grundstücksfläche | 6.939 m² |
| Maklerprovision | keine Provision, courtagefrei |
Objekt Adresse
82281 Egenhofen
- Bayern
Sonstige Angaben
| Baujahr | 1793 |
| Zimmer | 15 |
| Verfügbar ab | nach Absprache |
| Bad | 5 |
| Garage/Stellplätze | 3 |
| Anzahl der Etagen im Haus | 2 |
| Küche | Einbauküche |
| Bad | 5 |
| Bad | Dusche, Wanne |
| Boden | Fliesen, Teppich, Kunststoff |
| Balkone | 0 |
| Garten | Ja |
| Terrassen | 1 |
| Garage/Stellplätze | 3 |
| Keller | Ja |
| Heizungsart | Zentralheizung |
| Energieträger/Befeuerung | Öl |
Objektbeschreibung
Hier erwartet Sie das Besondere ....
Historie trifft Moderne:
Das Gebäudeensemble stammt aus dem Jahr 1793 und galt als Kleinod des bayerischen Barocks. Das Baujahr dieses Denkmals ist in die gut erhaltene Eingangstüre geschnitzt. Der nordseitige Anbau wurde ca. 1976 ausgeführt. Die ehemalige Schloßgaststätte samt den zwei dazugehörigen Wohn- und Wirtschaftsgebäuden liegt direkt gegenüber dem Schloß Weyhern.
Im Jahr 2006 endeten die 400 Jahre Geschichte der Schloßgaststätte. Das Bauwerk drohte zu verfallen.
In 2012 fand sich ein privater Käufer, der das Anwesen in ein Wohngebäude umwidmen ließ und mit höchstem persönlichen und technischen Aufwand, sowie entsprechender Kreativität nach strengen Denkmalschutz-Auflagen in ein traumhaftes Wohnanwesen verwandelte.
Der Bau:
Es handelt sich um einen massiven Mauerwerksbau mit einem Dachstuhl in zimmermannsmäßiger Konstruktion und Biberschwanzeindeckung. Das teilunterkellerte Gebäude steht auf einem umlaufend komplett isolierten Sockel und hat zwei vollwertige Stockwerke sowie einen doppelgeschoßigen Dachstuhl.
Ausstattung / Nutzung:
Das Anwesen umfaßt drei gemauerte Gebäude sowie mehrere Holz(an-)bauten.
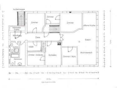
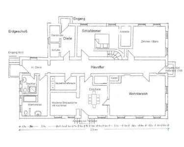
Das Hauptgebäude misst alleine ca. 23 m x 13,5 m. Die historische restaurierte Eingangstüre wurde erhalten, wird aber nicht als Eingang genutzt. Dahinter erschließt sich der lange Flur mit Zugang zu den Zimmern und Bädern. Die historischen Türen wurden geschmackvoll restauriert, ebenso wie die innenliegende Holztreppe ins Obergeschoß. Die ehemalige Gaststube wurde zum Wohnbereich mit einem gemauerten Kaminofen, die Schänke, Küche und Lagerräume wurden zu Essbereich, Hauswirtschaftsraum und einer offenen modernen Einbauküche mit Kochinsel und allen elektrischen Geräten. Die früheren Gäste-Toiletten wurden zu geräumigen attraktiven Bädern. Der überdachte Hauptzugang befindet sich nun auf der Ostseite mit Diele und Garderobe.
Das Obergeschoß wurde als komplett eigene Wohneinheit konzipiert, sowohl über die innen liegende Treppe wie auch von außen über eine Holztreppe mit separatem Eingang zu begehen. Auch hier findet man hochwertige geschmackvolle Gestaltung und Ausstattung. Der "riesige" Wohnbereich mit offener Küche, sowie 5-6 Zimmer, Hauswirtschaftsraum und 2 Bäder bieten Platz für eine große Familie.
Der gewaltige Dachstuhl ist nicht ausgebaut, bietet aber als Nutzfläche jede Menge Platz. Er wurde im Rahmen der Sanierung komplett restauriert und komplett neu eingedeckt.
Der frühere westseitige Biergarten wurde umfunktioniert in eine wunderbare mehrflächige Steinterrasse. Die ehemalige Kegelbahn wurde großteils erhalten und dient heute als urgemütliches Gartenhaus und Geräte-Aufbewahrung.
Das große Nebengebäude, die Remise, bietet vielfältig nutzbare größzügige Nutz- und Laferflächen, Garagen, Werkstatt und der ehem. Pferdestall, im Giebel eine durchgehende Tenne. Eine ideale Konstellation für z.B. Handwerksbetriebe mit Bedarf an großen indoor-Lagerflächen oder/und für (Groß-)tierhaltung.
Ein zweites kleines Nebenhaus, das ehemalige Wirte-Wohnhaus, ist liebevoll ausgebaut und gestaltet und als eigene kleine Wohneinheit nutzbar, mit einem Wohnraum, interner Holztreppe in den zweigeteilten Dachgiebel für Schlaf- und Kinderzimmer, kleinem Bad und Küche.
Dies alles wird umringt von einem ca. 7000 m² großen „Park“. Das ermöglicht Tier-/Pferdehaltung auf eigener Koppel, sowie viele KFZ-Stellplätze.
Das Gelände ist komplett mit einem Bauzaun umgeben, das Hauptgebäude zusätzlich eingezäunt. (perfekt für z.B. Hundehaltung).
Aufgrund anderweitiger Orientierung der Eigentümer wird das Anwesen komplett und nach Absprache bezugsfertig an einen neuen Liebhaber verkauft. Auf Wunsch mit (Teil-) Möblierung. Küchen inklusive.
Historie trifft Moderne:
Das Gebäudeensemble stammt aus dem Jahr 1793 und galt als Kleinod des bayerischen Barocks. Das Baujahr dieses Denkmals ist in die gut erhaltene Eingangstüre geschnitzt. Der nordseitige Anbau wurde ca. 1976 ausgeführt. Die ehemalige Schloßgaststätte samt den zwei dazugehörigen Wohn- und Wirtschaftsgebäuden liegt direkt gegenüber dem Schloß Weyhern.
Im Jahr 2006 endeten die 400 Jahre Geschichte der Schloßgaststätte. Das Bauwerk drohte zu verfallen.
In 2012 fand sich ein privater Käufer, der das Anwesen in ein Wohngebäude umwidmen ließ und mit höchstem persönlichen und technischen Aufwand, sowie entsprechender Kreativität nach strengen Denkmalschutz-Auflagen in ein traumhaftes Wohnanwesen verwandelte.
Der Bau:
Es handelt sich um einen massiven Mauerwerksbau mit einem Dachstuhl in zimmermannsmäßiger Konstruktion und Biberschwanzeindeckung. Das teilunterkellerte Gebäude steht auf einem umlaufend komplett isolierten Sockel und hat zwei vollwertige Stockwerke sowie einen doppelgeschoßigen Dachstuhl.
Ausstattung / Nutzung:
Das Anwesen umfaßt drei gemauerte Gebäude sowie mehrere Holz(an-)bauten.
Das Hauptgebäude misst alleine ca. 23 m x 13,5 m. Die historische restaurierte Eingangstüre wurde erhalten, wird aber nicht als Eingang genutzt. Dahinter erschließt sich der lange Flur mit Zugang zu den Zimmern und Bädern. Die historischen Türen wurden geschmackvoll restauriert, ebenso wie die innenliegende Holztreppe ins Obergeschoß. Die ehemalige Gaststube wurde zum Wohnbereich mit einem gemauerten Kaminofen, die Schänke, Küche und Lagerräume wurden zu Essbereich, Hauswirtschaftsraum und einer offenen modernen Einbauküche mit Kochinsel und allen elektrischen Geräten. Die früheren Gäste-Toiletten wurden zu geräumigen attraktiven Bädern. Der überdachte Hauptzugang befindet sich nun auf der Ostseite mit Diele und Garderobe.
Das Obergeschoß wurde als komplett eigene Wohneinheit konzipiert, sowohl über die innen liegende Treppe wie auch von außen über eine Holztreppe mit separatem Eingang zu begehen. Auch hier findet man hochwertige geschmackvolle Gestaltung und Ausstattung. Der "riesige" Wohnbereich mit offener Küche, sowie 5-6 Zimmer, Hauswirtschaftsraum und 2 Bäder bieten Platz für eine große Familie.
Der gewaltige Dachstuhl ist nicht ausgebaut, bietet aber als Nutzfläche jede Menge Platz. Er wurde im Rahmen der Sanierung komplett restauriert und komplett neu eingedeckt.
Der frühere westseitige Biergarten wurde umfunktioniert in eine wunderbare mehrflächige Steinterrasse. Die ehemalige Kegelbahn wurde großteils erhalten und dient heute als urgemütliches Gartenhaus und Geräte-Aufbewahrung.
Das große Nebengebäude, die Remise, bietet vielfältig nutzbare größzügige Nutz- und Laferflächen, Garagen, Werkstatt und der ehem. Pferdestall, im Giebel eine durchgehende Tenne. Eine ideale Konstellation für z.B. Handwerksbetriebe mit Bedarf an großen indoor-Lagerflächen oder/und für (Groß-)tierhaltung.
Ein zweites kleines Nebenhaus, das ehemalige Wirte-Wohnhaus, ist liebevoll ausgebaut und gestaltet und als eigene kleine Wohneinheit nutzbar, mit einem Wohnraum, interner Holztreppe in den zweigeteilten Dachgiebel für Schlaf- und Kinderzimmer, kleinem Bad und Küche.
Dies alles wird umringt von einem ca. 7000 m² großen „Park“. Das ermöglicht Tier-/Pferdehaltung auf eigener Koppel, sowie viele KFZ-Stellplätze.
Das Gelände ist komplett mit einem Bauzaun umgeben, das Hauptgebäude zusätzlich eingezäunt. (perfekt für z.B. Hundehaltung).
Aufgrund anderweitiger Orientierung der Eigentümer wird das Anwesen komplett und nach Absprache bezugsfertig an einen neuen Liebhaber verkauft. Auf Wunsch mit (Teil-) Möblierung. Küchen inklusive.
Ausstattung
Terrasse, Garten, Keller, Vollbad, Duschbad, Einbauküche, Gäste-WC, Kamin, Teppichboden, Fliesen
Bemerkungen:
Es ist unschwer zu erkennen daß dieses Anwesen in seiner Lage, Art und Ausstattung einzigartig ist und sich einen neuen Eigentümer wünscht, der dieses Niveau zu schätzen weiß.
Es ist als Familienhaus, Generationen-Objekt oder work-life Domizil gleichermaßen geeignet.
Die Qualität der Sanierung und verwendeten Baustoffe, die hochwertige Ausstattung und Einrichtung entsprechen aufgrund der Komplettsanierung und Modernisierung einem hohen Gebäudestandard und dem hohen Eigenanspruch der jetzigen Bewohner.
Bemerkungen:
Es ist unschwer zu erkennen daß dieses Anwesen in seiner Lage, Art und Ausstattung einzigartig ist und sich einen neuen Eigentümer wünscht, der dieses Niveau zu schätzen weiß.
Es ist als Familienhaus, Generationen-Objekt oder work-life Domizil gleichermaßen geeignet.
Die Qualität der Sanierung und verwendeten Baustoffe, die hochwertige Ausstattung und Einrichtung entsprechen aufgrund der Komplettsanierung und Modernisierung einem hohen Gebäudestandard und dem hohen Eigenanspruch der jetzigen Bewohner.
Lage des Objektes
Weyhern / Egenhofen – grüne Idylle ca. 30km vor den westl. Toren Münchens
Dieses Kleinod bayerischer Geschichte und heute einzigartig saniertes und modernisiertes Anwesen ist vom westlichen Münchner Stadtrand in nur ca. 30 Minuten mit dem Auto über die A8 – Ausfahrt Odelzhausen zu erreichen.
Direkt gegenüber dem komplett renovierten und sanierten Schloß Weyhern befindet sich dieses Anwesen, die ehemalige historische Schloßgaststätte aus dem Jahr 1793. Idyllisch am Lauf der Glonn gelegen, war die Traditionsgaststätte mit Biergarten bis vor ca. 15 Jahren beliebtes und weit über die Landkreisgrenzen hinaus bekanntes Ausflugsziel mit gastronomischem Erlebnischarakter.
Mit dem Auto sind es nur ca. 7 Min. bis zur Autobahn A8 in Odelzhausen, wo sich die meisten Einrichtungen des täglichen Lebens finden, ebenso wie in den umliegenden Gemeinden Egenhofen, Mammendorf, Maisach oder in Fürstenfeldbruck.
Auch „öffentlich“ erreicht man bequem per Bus 871 (direkt vor der Haustüre) die S-Bahn in Maisach.
Das Erholungsangebot läßt kaum Wünsche offen ! Neben den umliegenden Wiesen und Wäldern mit endlosen Rad-, Reit- und Wandermöglichkeiten laden zwei Golfanlagen und zahlreiche Sportvereine mit modernen Sportanlagen zu allerlei Freizeitaktivitäten ein. Abgerundet wird das Freizeitangebot durch viele attraktive Lokale unterschiedlicher Ausrichtung, „griabige“ Biergärten und die zahlreiche kulturelle Veranstaltungen in den Gemeinden und dem Kulturzentrum um das Fürstenfelder Schloß.
Infrastruktur (im Umkreis von 5 km):
Apotheke, Lebensmittel-Discount, Allgemeinmediziner, Kindergarten, Grundschule, Hauptschule, Realschule, Gymnasium, Gesamtschule, Öffentliche Verkehrsmittel
Dieses Kleinod bayerischer Geschichte und heute einzigartig saniertes und modernisiertes Anwesen ist vom westlichen Münchner Stadtrand in nur ca. 30 Minuten mit dem Auto über die A8 – Ausfahrt Odelzhausen zu erreichen.
Direkt gegenüber dem komplett renovierten und sanierten Schloß Weyhern befindet sich dieses Anwesen, die ehemalige historische Schloßgaststätte aus dem Jahr 1793. Idyllisch am Lauf der Glonn gelegen, war die Traditionsgaststätte mit Biergarten bis vor ca. 15 Jahren beliebtes und weit über die Landkreisgrenzen hinaus bekanntes Ausflugsziel mit gastronomischem Erlebnischarakter.
Mit dem Auto sind es nur ca. 7 Min. bis zur Autobahn A8 in Odelzhausen, wo sich die meisten Einrichtungen des täglichen Lebens finden, ebenso wie in den umliegenden Gemeinden Egenhofen, Mammendorf, Maisach oder in Fürstenfeldbruck.
Auch „öffentlich“ erreicht man bequem per Bus 871 (direkt vor der Haustüre) die S-Bahn in Maisach.
Das Erholungsangebot läßt kaum Wünsche offen ! Neben den umliegenden Wiesen und Wäldern mit endlosen Rad-, Reit- und Wandermöglichkeiten laden zwei Golfanlagen und zahlreiche Sportvereine mit modernen Sportanlagen zu allerlei Freizeitaktivitäten ein. Abgerundet wird das Freizeitangebot durch viele attraktive Lokale unterschiedlicher Ausrichtung, „griabige“ Biergärten und die zahlreiche kulturelle Veranstaltungen in den Gemeinden und dem Kulturzentrum um das Fürstenfelder Schloß.
Infrastruktur (im Umkreis von 5 km):
Apotheke, Lebensmittel-Discount, Allgemeinmediziner, Kindergarten, Grundschule, Hauptschule, Realschule, Gymnasium, Gesamtschule, Öffentliche Verkehrsmittel
Sonstige Informationen
Heizungsart: Zentralheizung
Energieträger: Öl
Bei ernsthaftem Interesse und gegen Finanzierungsnachweis laden wir Sie herzlich ein, sich dieses einmalige Anwesen anzusehen. Das Objekt wird im Auftrag des Verkäufers exklusiv angeboten von Hans-Jürgen Steg (www.steg-projekte.de). Eine Käuferprovision fällt nicht an!
Bitte keine Makleranfragen ! Danke.
Makleranfragen nicht erwünscht. Nach § 7 UWG sind unaufgeforderte Kontaktaufnahmen durch Makler ohne ausdrückliche Einwilligung des Empfängers verboten!
ohne-makler (OM) ist weder Anbieter noch Vermittler der Immobilie. OM betreibt eine Plattform für Immobilieneigentümer, die unter anderem die gleichzeitige Veröffentlichung einzelner Inserate auf mehreren Immobilienportalen ermöglicht. Die Inhalte dieser Inserate werden ausschließlich von Dritten verantwortet. Für die Richtigkeit, Vollständigkeit oder Rechtmäßigkeit der Angaben übernimmt OM keine Haftung. Hinweise auf mögliche Rechtsverstöße können jederzeit gemeldet werden und werden nach Prüfung umgehend bearbeitet.
Anwesen mit ca. 7000 m² Grund
Vogelperspektive von Nordost
Ansicht Haupthaus von Osten
Haupthaus+Terrasse von Westen
Remise
Wohneinheit Wirtehaus
parkähnliche Gartenanlage
Originaltüre von 1793
Willkommen, Flur im EG
Wohnbereich im EG
Wohnbereich EG
Schlafzimmer im EG
Wohnküche im EG
Duschbad EG
Bad im EG
Wohnbereich OG-Wohnung
Wohnen / Essen OG-Wohnung
Küche der OG Wohnung
Bad der OG Wohnung
Schlafzimmer mit Ankleide
Wohnbereich Wirtehaus
Wohnbereich Wirtehaus
Küche Wirtehaus
Schlafbereich Wirtehaus
Lagerraum Remise
Garage in der Remise
Tenne in der Remise
Dachstuhl als Stauraum
Pferdehaltung wieder möglich
Grundriss Erdgeschoß
Grundriss Obergeschoß
Grundriss Keller
Grundriss Remise