Exposé
Objektart:
Büro / Praxen
» Bueroflaeche
» Miete
Standort: Büro / Praxen »
Deutschland » Nordrhein-Westfalen » Düsseldorf, Stadt (Kreis) » Düsseldorf
Bürofläche in hervorragender Citylage zur Miete | provisionsfrei!
Das Wichtigste auf einen Blick:
| Objektnummer: | 9364788 |
Preise
| Nebenkosten | keine Angabe |
Flächen
| Gesamtfläche | 1.234,98 m² |
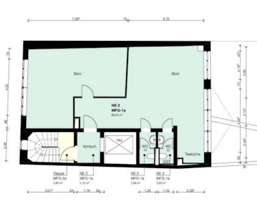
| Bürofläche | 106 m² |
Objekt Adresse
Luisenstraße 9
40215 Düsseldorf
- Nordrhein-Westfalen
Sonstige Angaben
| Baujahr | 1992 |
| Verfügbar ab | kurzfristig |
| Anzahl der Etagen im Haus | 7 |
| Fahrstuhl | Ja |
| Keller | Ja |
| Energieausweistyp | Bedarfsausweis |
| Gültig bis | 2020-05-19 |
| Baujahr (laut Energieausweis) | 1992 |
| Heizungsart | Zentralheizung |
| Wesentlicher Energieträger | Gas |
| Energieträger/Befeuerung | Gas, Elektro |
Beschreibung der Immobilie
Das Objekt ist ein 8-geschossiges Bürohaus mit 2-geschossiger Hofbebauung. Es hat eine repräsentative Fassadengestaltung durch großzügige Belichtungselemente und Granitverkleidungen. Der Eingangsbereich ist in Marmor bzw. Granit gestaltet. Ein Personenaufzug mit Edelstahlkabine und Natursteinboden sowie eine objekteigene Tiefgarage ist ebenfalls vorhanden.
Ausstattung
Das Objekt verfügt über folgende Ausstattungsdetails:
-antistatischer Teppichboden
-Glasfasertapete
-Fensterbank-Kabelkanäle
-EDV-gerechte Rasteraufbauleuchten
-Gegensprechanlage
-getrennte WC-Anlagen
-Teeküche
-antistatischer Teppichboden
-Glasfasertapete
-Fensterbank-Kabelkanäle
-EDV-gerechte Rasteraufbauleuchten
-Gegensprechanlage
-getrennte WC-Anlagen
-Teeküche
Lage & Infrastruktur
Das Objekt befindet sich in hervorragender Citylage. Zwischen Königsalle und Friedrichstraße gelegen. Über die nahe gelegene Rhein-Knie-Brücke besteht eine hervorragende Anbindung an das linksrheinische Stadtgebiet und die BAB's A 52 und A 57. Mehrere öffentiche Parkhäuser befinden sich in direkter Nähe des Objektes.
S-Bahn, Straßenbahn- und Bushaltestellen sind nur wenige Gehminuten vom Objekt entfernt.
S-Bahn, Straßenbahn- und Bushaltestellen sind nur wenige Gehminuten vom Objekt entfernt.
Sonstige Informationen
Eine kurze Mietvertragslaufzeit (ca. 3 Jahre ist erwünscht)
Außenansicht
Büro
Büro
Teeküche
2.OG